“Nhà đẹp” điều mà bất cứ ai cũng mong muốn có cơ hội sở hữu. Ngôi nhà giờ đây không chỉ đơn thuần là chỗ che mưa che nắng, mà nó còn là “bộ mặt”, nơi tạo dựng được phong cách cũng như đẳng cấp của chủ nhân sở hữu. Nếu có cơ hội sở hữu một mảnh đất với 9,4 x 16m, bạn sẽ làm gì? Với bản thiết kế mẫu nhà phố 2 tầng mặt tiền 9m đây sẽ là gợi ý tuyệt vời cho những ai đang muốn sở hữu một ngôi nhà của riêng mình.
“Hiện đại – sang trọng – trang nhã” những mỹ từ này là không quá khi nói đến bản thiết kế mẫu nhà phố 2 tầng dưới đây. Ngay từ tổng thể đầu tiên, nó đã thu hút được ánh nhìn của người đối diện. Đây là sản phẩm của sự hòa quyện hoàn hảo giữa màu sắc, kiến trúc, kết cấu và cả ý tưởng của người xây dựng.
Chi tiết phối cảnh tổng thể mẫu nhà phố 2 tầng mặt tiền 9m

Ở bất cứ phương diện nào, mọi người cũng có thể cảm nhận được sức hấp dẫn của thiết kế này. Xét cả về chiều cao lẫn chiều sâu, căn nhà là một tổng thể hài hòa, mang lại cảm giác bình yên, nhẹ nhàng nhưng đầy sang trọng.

Thoáng nhìn từ cánh cổng cho đến khung cửa sổ tầng 2, mọi thứ đều như đầy gọi mời, hướng ánh nhìn của người xem đi vào khám phá nội thất bên trong.

Hình ảnh từ góc nhìn trên cao cho thấy một tổng thể được sắp xếp hợp lý, bố cục gọn gàng, đẹp mắt và thuận tiện.

Hình ảnh từ góc nhìn chính diện, đã phần nào lột tả hết được vẻ đẹp của căn nhà. Với các mảng xanh của thiên nhiên xen kẽ, tạo nên sắc thái đa dạng và đầy tươi mới cho căn nhà. Theo đó, lối kiến trúc hiện đại, kết hợp màu sắc trang nhã, góp phần gây dựng nên một tổng thể thu hút và ấn tượng.


Bên cạnh đó, đối với những ai đam mê công trình kiến trúc thu nhỏ như hồ cá, thác nước cũng có thể áp dụng vào phần không gian này. Một cây phượng vĩ ở góc sân nhà cũng là gợi ý đáng để tham khảo.

Đối với thiết kế nhà đẹp này, việc dành một khoảng diện tích vừa đủ để chưng bày tiểu cảnh cũng rất hợp lý và được nhiều gia chủ ưa chuộng. Việc tạo dựng một không gian nhiều màu sắc, hòa quyện vào thiên nhiên sẽ góp phần mang lại không gian an lành, bình yên cho ngôi nhà.
Nội thất bên trong mẫu thiết kế nhà phố 2 tầng đẹp mang dấu ấn khác biệt

Phòng khách hiện lên đầy sang trọng với nội thất được sắp đặt hợp lý. Một vài họa tiết nhỏ được trang trí tạo cảm giác tinh tế cho căn phòng. Sự pha trộn giữa các mảng màu sắc cũng góp phần làm nên sự đa dạng, ấn tượng trong phong cách thiết kế. Tại đây các thành viên trong gia đình có thể thoải mái quây quần bên nhau.

Sự giao thông liên kết giữa phòng khách và phòng bếp góp phần làm tăng thêm không gian cho toàn bộ ngôi nhà, tạo cảm giác thoáng đãng mà vẫn rất riêng tư. Sử dụng kệ sách để tách biệt không gian tạo cảm giác thoải mái mà cực kỳ tiện nghi cho gia chủ.

Phòng bếp được bố trí nội thất gọn gàng, tạo sự thuận tiện nhưng cũng rất đẹp mắt. Tông màu trắng trang nhã càng tôn lên vẻ đẹp của căn nhà, đồng thời tạo cảm giác ấm cúng, sạch sẽ. Hệ thống cầu thang, phòng WC, và sự tận dụng những khoảng trống tưởng chừng như thừa lại trở thành những ngăn tủ tiện ích khiến phòng bếp tăng thêm tính hiện đại và thẩm mỹ. Mặt bằng tầng trệt rộng rãi, thoáng đãng,thuận tiện sinh hoạt.

Phòng ngủ vốn là nơi nghỉ ngơi, nên việc thiết kế sao cho hợp lý cũng được quan tâm chú trọng. Nắm bắt nhu cầu của mọi người là muốn sở hữu một không gian riêng tư nhưng phải thể hiện được sự đẳng cấp. Chúng tôi cho ra bản thiết kế phòng ngủ với không gian thông thoáng, cửa hổ đón nắng gió tự nhiên, cùng các nội thất được sắp xếp hợp lý, thông minh.

Thiên nhiên hiện diện ở mọi góc trong căn nhà, kể cả phòng ngủ. Điều này góp phần tăng sự tươi mới, cảm giác như căn nhà luôn tràn đầy sức sống và năng lượng.

Bên cạnh đó, phòng WC cũng được thiết kế đẹp mắt, đúng chuẩn căn hộ sang trọng và tiện nghi. Phòng tắm được thiết kế vừa vặn với diện tích có sẵn, không quá lớn cũng không quá nhỏ.

Phòng ngủ thứ 2 có thiết kế đơn giản nhưng tạo dựng được cảm giác yên bình, dịu dàng. Tùy thep sở thích và tính cách của mỗi thành viên trong gia đình để tạo nên không gian thoải mái nhất.
Xem chi tiết bản vẽ mẫu nhà phố 2 tầng hiện đại 9,4 x 16m

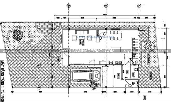
Mặt bằng tầng trệt của ngôi nhà bao gồm: sân, phòng khách, nhà kho, phòng học, phòng bếp và phòng WC.

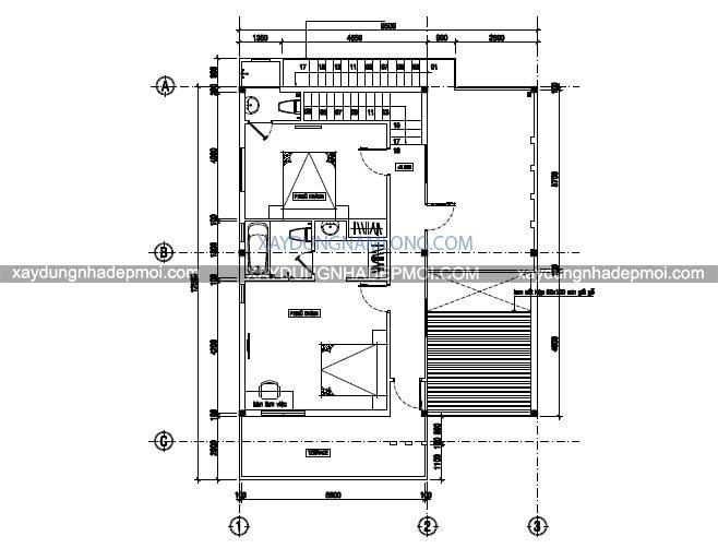
Mặt bằng tầng 1 của ngôi nhà bủ, phòng WC vàao gồm: 2 phòng ng sân phơi.

Mặt bằng mái khá vững chắc và tiện dụng cho việc đặt hệ thống bồn nước cũng như hệ thống năng lượng mặt trời.
Nhìn chung tổng thể thì mẫu nhà phố 2 tầng mặt tiền 9m này khá bắt mắt, từ mặt tiền căn nhà cũng như cách bố trí công năng sử dụng rất hợp lý. Kiến trúc mang lại vẽ đẹp sang trọng, không gian thoáng mát. Hứa hẹn đây sẽ là mẫu thiết kế rất được chuộng trong năm nay.
Nguồn tin: xaydungnhadepmoi.com


































