Nhiều ngôi nhà mặc dù hình thành lên rất khang trang đẹp mắt nhưng nguyên trạng ban đầu thì lại là một khu đất nở hậu, méo mó. Đối với các gia đình đang có ý định xây dựng một mái ấm cho riêng mình nhưng lại sở hữu một nền tảng chưa thực sự nguyên vẹn thì có thể tham khảo ngay mẫu nhà phố 5 tầng 2 mặt tiền dưới đây, chắc chắn sẽ làm hài lòng khách hàng.
Sở hữu khu đất méo tham khảo ngay mẫu nhà phố 5 tầng 2 mặt tiền đẹp
Tổng thể ngôi nhà giống như một tòa tháp cao, đồ sộ và rất vững chãi. Với 5 tầng nhà, thiết kế này chắc chắn sẽ rất nổi bật giữa không gian, tạo cảm giác an toàn và cực kỳ mạnh mẽ. Cá tính độc đáo ấy còn thể hiện ở vật liệu sắt được sử dụng để làm các khung chắn ở các tầng, lan can. Đây được nhận định là một trong những yếu tố tạo nên sự mới lạ và ấn tượng cho ngôi nhà này.

Mẫu nhà phố 5 tầng xây dựng trên mảnh đất méo
Mẫu nhà phố đẹp là sự đan kết hài hòa giữa các mảng khối mang màu sắc nhẹ nhàng và tone nền chủ đạo trắng tinh khôi. Theo đó ngôi nhà còn được nhấn nhá thêm bởi sắc xanh của cây cối. Hầu hết không gian mặt tiền của căn nhà đều được bố trí thêm những chậu cây, giàn dây leo tạo cảm giác tươi mới, tràn đầy sức sống.

Thiết kế nhà hợp phong cách hiện đại
Từ tầng trệt đến tầng 5, thiên nhiên luôn hiện hữu mang lại không gian an lành, yên bình và nhẹ nhàng cho cư dân sống ở đây. Có thể thấy thiết kế này cực kỳ phù hợp với những gia đình yêu thích sự phóng khoáng, mạnh mẽ nhưng cũng mong cầu một cuộc sống thoải mái, nhẹ nhàng giữa phố thị tấp nập, phồn hoa.
Bản vẽ mặt bằng mẫu nhà phố 5 tầng trên mảnh đất méo

Mặt bằng tầng trệt
Mặc dù chỉ sở hữu một quỹ đất hạn hẹp nhưng đối với mặt bằng tầng trệt, nơi đây vẫn được bố trí một khoảng diện tích vừa phải để làm nơi đỗ, đậu xe. Đồng thời các phòng từ phòng khách, phòng bếp đến nhà vệ sinh đều được thiết kế lưu thông với nhau, vừa tạo cảm giác thông thoáng cho toàn gia đình, vừa tối ưu diện tích mang lại sự thuận tiện tối đa.

Mặt bằng tầng lửng
Những góc xéo của mảnh đất là nền tảng cho sự sáng tạo, biến nơi đây thành hệ thống cầu thang gọn gàng, mang đến sự độc đáo và thông thoáng cho kiến trúc nhà phố. Tiếp đó, một phòng ngủ nhỏ nhắn sẽ được xât dựng tiện nghi giữa khu vực phòng khách và phòng bếp.
Đây sẽ là địa điểm để bậc phụ huynh, ông bà những người cao tuổi an tâm nghỉ dưỡng. Tổng thể không gian sẽ được bố trí nội thất một cách thông minh khéo léo, theo đó là sự pha trộn giữa các mảng màu tạo sự hiện đại nhưng vẫn đầy trang nhã, sang trọng. Các đường nét, mảng khối cách điệu thành các dạng hình học vuông vức, lúc lồi lúc lõm càng tăng thêm sự độc đáo cho bản mẫu. Bên cạnh đó, những ánh đèn lung linh được trang trí góp phần điểm tô sắc màu, nơi đây sẽ là chốn bình yên, mái ấm trọn vẹn của mọi người.

Mặt bằng lầu 1
Phòng thờ được bố trí phía trước của mặt bằng lầu 1, đây vừa là nơi cung kính tổ tiên vừa có thể sử dụng làm không gian sinh hoạt chung của toàn gia đình. Tiếp đó sẽ là phong ngủ, được ưu ái với mặt bằng vuông vức, thoáng đãng mang đến những giấc ngủ ngon lành, chốn để các thành viên tìm đến bình yên sau những giờ mệt mỏi. Bản mẫu còn khéo léo biến các góc xéo trở thành phòng vệ sinh tiện dụng. Hệ thống giếng trời xuyên suốt trong 5 tầng lầu sẽ mang thêm luồng sinh khí, ánh sáng lan tỏa khắp không gian.

Mặt bằng lầu 2
Tiếp đến, mặt bằng lầu 2 và mặt bằng lầu 3 của mẫu nhà đẹp cũng bao gồm 2 phòng ngủ và 1 phòng vệ sinh chung, thêm vào đó sẽ có một phòng giặt và sân phơi diện tích nhỏ phục vụ nhu cầu tối đa cho người sử dụng. Phòng ngủ sẽ là không gian riêng tư nên được đảm bảo độ yên tĩnh nhất định, cùng với đó, các nội thất, chi tiết trong căn phòng sẽ được bố trí và sắp đặt một cách thẩm mỹ và tinh tế nhất, mang đến sự thích thú và gần gũi cho gia
chủ.

Mặt bằng tầng thượng
Mặt bằng lầu 4 cũng sẽ được thiết kế thêm thêm 1 phòng ngủ, 1 phòng giặt và phòng vệ sinh chung. Vì là không gian cao nhất tòa nhà, nên nơi đây cũng sẽ trở thành điểm đến lý tưởng để các thành viên ngồi lại, quây quần bên nhau, đặc biệt là dưới bầu không khí trong lành của thiên nhiên cùng sự thông thoáng, tầm nhìn đẹp mắt nơi khu vực sân thượng.

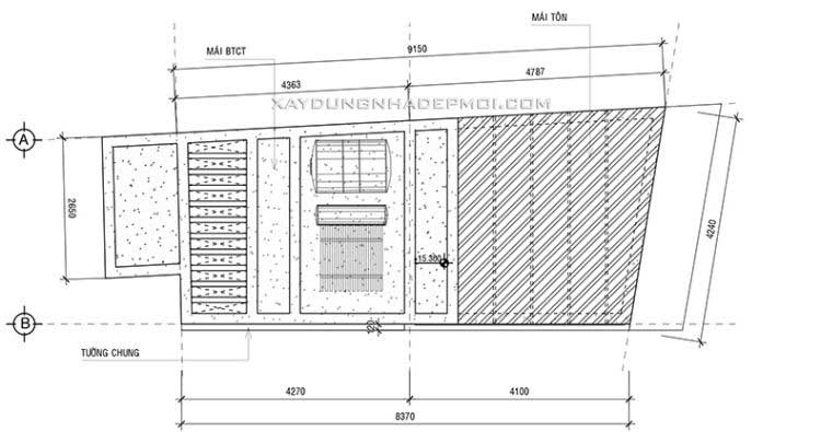
Mặt bằng tầng mái
Đối với mẫu thiết kế nhà phố 5 tầng 2 mặt tiền này cho dù được xây dựng trên mảnh đất méo, không vì thế mà gặp quá nhiều khó khăn trong khâu triển khai. Nó biến đổi từ khuyết điểm thành ưu điểm nổi bật mang tới vẻ đẹp ấn tượng cho tổng thể công trình, hơn hết đáp ứng được nhu cầu công năng sử dụng tối ưu hóa phù hợp với hoạt động của mọi gia đình có đông thành viên.
Nguồn tin: xaydungnhadepmoi.com


































