Nhà 2 tầng ngày nay có rất nhiều biến tấu thiên biên vạn hóa, với vô vàng kiểu dáng độc đáo đi trước xu hướng giúp cho những ai có nhu cầu xây dựng gợi lên nhiều ý tưởng độc đáo. Nhà 2 tầng này thiết kế theo phong cách hiện đại với cách bố trí ấn tượng. Xây dựng trên tổng diện tích khu đất 225m2, lô đất hình vuông rộng rãi khá đẹp trong việc thiết kế các công năng. Một chút đơn giản, một chút mộc mạc, một chút độc đáo là những gì gia chủ gia nhà ở độc đáo này mong muốn sở hữu. Mẫu nhà 2 tầng hình vuông đẹp sau là một trong những kiểu dáng mang đậm nét nông thôn, được nhiều người đánh giá cao về tính thẩm mỹ và công năng sử dụng tối ưu. Để hiểu rõ hơn, mời mọi cùng đón xem phối cảnh thiết kế nhà 2 tầng dự kiến xây dựng tại Triệu Sơn – Thanh Hóa.
*Thông tin chi tiết:
- Kiến trúc: Nhà 2 tầng đơn giản.
- Tổng diện tích đất: 15m x 15m = 225m2.
- Địa điểm thi công: Triệu Sơn – Thanh Hóa.
- Thời gian hoàn thiện nhà: Khoảng 3 tháng.
Ngắm nhìn mẫu nhà 2 tầng hình vuông đẹp 225m2
Với lợi thế sở hữu lô đất rộng rãi, các kiến trúc sư đã ngồi lại với nhau bàn bạc và đưa ra phương án thiết kế nhà 2 tầng đầy trẻ trung cho gia chủ. Diện tích theo khối hình vuông, giúp thiết kế và bố trí công năng tối ưu bên trong ngôi nhà dễ dàng hơn rất nhiều, không gây khó khăn đến các kiến trúc sư. Ngoài ra những kiến trúc nhà đẹp khối hình vuông còn đem lại cảm giác khỏe khoắn, chắc chắn và kiến cố hơn so với những lô đất diện tích nhỏ hẹp.

Hình ảnh mặt tiền căn nhà 2 tầng hình vuông đẹp
Nhà 2 tầng thiết kế theo kiểu dáng đơn giản, nhưng vẫn có thể gây ấn tượng đặt biệt cho những ai lần đầu đến chơi. Màu sắc sử dụng tone màu vàng nhẹ nhàng phối hợp hài hòa cùng gạch ốp tường màu gỗ, đem đến cảm giác dễ chịu. Nhà xây dựng trong không gian xung quanh có nhiều cây xanh sinh động, giúp cho kiến trúc thêm phần nổi bật với tone màu nhẹ nhàng. Các chi tiết trang trí mặt tiền phía trước không quá màu mè, tạo điểm nhấn qua các đường kẻ khá tinh tế. Có thể đánh giá đây là kiến trúc nhà đơn giản nhưng vẫn đảm bảo được tính thẩm mỹ cao.
Đặc biệt: Kiến trúc nhà đơn giản tại Thanh Hóa này có chi phí thi công không quá tốn kém, phù hợp với kinh tế nhiều cặp vợ chồng mới cưới. Có rất nhiều gia đình mong muốn sở hữu một tổ ấm riêng, nhưng bài toán về “tài chính” luôn là chủ đề nan giải. Đối với nhà 2 tầng này có chi phí thiết kế – xây dựng phù hợp với nhiều hộ gia đình có thu nhật ổn định. Sử dụng vật liệu + nội thất loại đơn giản góp phần tiết kiệm khá nhiều khoản chi phí đầu ra cho chủ nhà. Hướng cửa chính, màu sắc, các căn phong bên trong được kiến trúc sư tính toán khá khoa học và hợp phong thủy của chủ nhân.
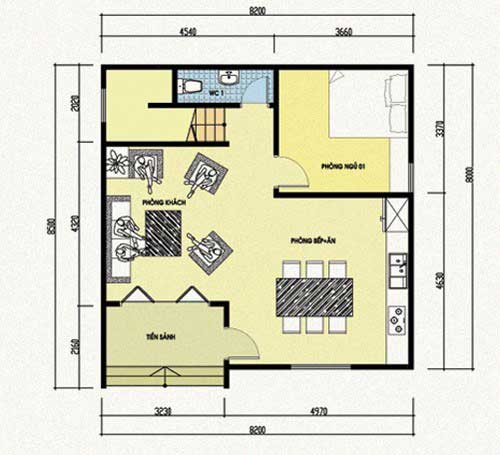
Bản vẽ mặt bằng công của căn nhà 2 tầng mang phong cách hiện đại

Mặt bằng tầng 1
Mặt bằng tầng 1: Sân để xe riêng, không gian phòng khách, phòng bếp, khụ vực ăn uống, phòng ngủ, phòng vệ sinh.

Mặt bằng tầng 2
Mặt bằng tầng 2: 3 Phòng ngủ riêng, 1 phòng vệ sinh, ban công.
Màu sắc trẻ trung, không gian sống tiện nghi, công năng sắp xếp tối ưu là những điều được thể hiện trên nhà 2 tầng có chi phí phải chăng trên. Nếu bạn là người yêu thích nét đẹp đơn giản, nhẹ nhàng và tinh tế thì nhà 2 tầng xây dựng tại Thanh Hóa này là điều bạn đang tìm kiếm. Hãy cùng chúng tôi bắt đầu lên kế hoạch xây dựng tổ ấm được thuận lợi nhé. Chúc bạn thành công!
Xem thêm:
































