Nếu như những thiết kế từ nhà ống hiện đại làm bạn cảm thấy nhàm chán từ sự tương đồng bởi sự hiện diện ngày càng nhiều tại các trung tâm thành phố. Nếu như bạn đòi hỏi nhiều hơn ở nét thẩm mỹ bên ngoài mặt tiền và phong cách xây dựng mới lạ hơn so với phần còn lại của kiến trúc. Sao không thử ngay với các kết cấu từ phong cách tân cổ điển. Chắc chắn đây sẽ là gợi ý hoàn hảo dành cho mọi người đấy, hãy cùng chúng tôi xem qua thiết kế ngay phía bên dưới.

Mẫu nhà ống tân cổ điển 3 tầng tuy không được sử dụng quá nhiều nhưng hiệu quả về giá trị của chúng mang đến thực sự làm rất nhiều người hài lòng. Đặc biệt là các chủ đầu tư thường đi theo khuynh hướng nghệ thuật với độ tuổi từ U40 trở lên. Giá trị của chúng vẫn luôn là một phần tạo nên từ sắc màu, chi tiết trang trí, hoặc các vật dụng, vật liệu kết hợp để làm nên.
Phối cảnh nhà ống tân cổ điển 3 tầng tại quận 11 :
Thông tin về mẫu nhà ống 3 tầng tân cổ điển :
- Dự án thiết kế : mẫu nhà ống 3 tầng phong cách tân cổ điển
- Chủ đầu tư:Mai Xuân Hồng sinh năm 1965
- Phong cách xây dựng : “Với mong muốn sở hữu về một kiến trúc được nâng tầm từ giá trị tân cổ điển từ kết cấu nhà ống 3 tầng, mong rằng với những chia sẻ từ kiến trúc sư sẽ góp phần tạo nên một giá trị cho căn nhà trong thời gian tới.” yêu cầu từ chủ đầu tư.
- Địa chỉ : Quận 11 – thành phố Hồ Chí Minh
- Bản quyền thiết kế: Kiến trúc mới
- Kiến trúc sư : Phan Bảo Huy
- Thời gian thi công: ~ 3.5 tháng.
Phối cảnh nhà ống 3 tầng tân cổ điển :
Đơn vị đã tiếp nhận yêu cầu từ chủ đầu tư để từ đó có thể triển khai công trình bám sát với các thông tin đó và thể hiện giá trị riêng biệt từ sự sáng tạo mang đến cho công trình nhà ống 3 tầng. Với tiêu chí hàng đầu luôn là nét thẩm mỹ tinh tế ở phần mặt tiền và thuận lợi cho việc sinh hoạt của nội thất phía bên trong, hãy cùng xem qua công trình và cho chúng tôi biết cảm nhận của bạn !

Thực sự từ những giá trị được kết hợp phía mặt tiền đã làm cho ngôi nhà trở nên đúng hướng so với phong cách tân cổ điển được yêu cầu. Đó có thể là sự kết hợp nhuần nhuyễn từ kiến trúc sư mang đến cho chủ đầu tư từ nguồn vật liệu, màu sơn, cửa chính, lan can, cột nhà, đèn chiếu và không thể thiếu đi các chi tiết uốn lượn tinh xảo thường thấy ở phong cách nhà ống tân cổ điển.
Các chi tiết tạo hình dễ dàng mang đến sự thiện cảm dành cho ánh mắt đầu tiên khi bắt gặp công trình. Từ bàn tay khéo léo của kiến trúc sư và cả những người thợ lành nghề với các chi tiết phức tạp từ nhỏ nhất cho đến lớn nhất để tạo nên góc nhìn tổng quan mà mọi người được thấy.

Bạn dễ dàng hình dung được hướng xây dựng được khéo léo cân đối về chiều cao của ngôi nhà và cả diện tích xây dựng như được bám sát vào diện tích của thửa đất, màu trắng sáng thể hiện được nét sang trọng của công trình tạo nên một sự mới mẻ và tinh khiết cho công trình một cách hoàn hảo. Khi phong cách tân cổ điển đẹp, sang trọng và đẳng cấp được chăm chút đến từng chi tiết hoa văn, phào chỉ, là một điểm nhấn kiến trúc của cả khu phố này.
Toàn bộ không gian được bao kín bởi các bức tường do vậy, phần mặt tiền là không gian khoảng không gian đối lưu nguồn không khí khi được sử dụng với sân trước. Cổng chính được tô điểm từ các chi tiết hoa văn đặc thù của phong cách tân cổ điển vừa đảm bảo cho sự an toàn của ngôi nhà còn là một điểm nhấn trang trí thú vị. Với công năng bố trí khéo léo khoa học, phân bổ chặt chẽ theo thói quen sử dụng của gia đình mà ngôi nhà đã thực hiện khá tốt các yêu cầu về một kiến trúc nhà ở.
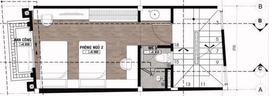
Bản vẽ thiết kế nhà ống 3 tầng tân cổ điển tại quận 11 :
Bản vẽ xây dựng là một phần công việc thiết yếu và dường như không thể thiếu cho mọi công trình trước khi bắt tay vào xây dựng một công trình xây dựng. Kiến trúc tân cổ điển được xem như một đặc thù riêng biệt. Khi kiến trúc sư phải là những người đáp ứng đầy đủ những quy chuẩn, quy định nghiêm ngặt của kỹ thuật một cách nghệ thuật, đầy tính thẩm mỹ. Cũng vì vậy bản vẽ giúp con người tạo ra những công trình thẩm mỹ với đầy đủ chức năng hiện đại và cả việc đáp ứng được nhu cầu về phong cách tân cổ điển.

Mặt bằng tầng 1 : Dựa trên bản vẽ mà bạn có thể thấy được hình thù của lô đất, bám sát với ưu điểm và nhược điểm của chúng mà bản vẽ đã thể hiện được một cách đầy đủ. Từ ngoài đổ vào trong là sân để xe, phòng khách, nhà bếp và 1 bàn ăn nằm liên tiếp được tạo nên từ không gian mở. Phía căn phòng chức năng cuối cùng là 1 nhà vệ sinh và dẫn lên mặt bằng tầng 2 từ hệ thống cầu thang.

Mặt bằng tầng 2 : Mặt bằng sử dụng với các chức năng riêng của từ hệ thống phòng ngủ, 1 nhà vệ sinh và kèm theo là 1 khoảng ban công trước nhà có thể sắp xếp được một bộ bàn ghế thư giãn hiệu quả. Mặt bằng tầng 2 khá thích hợp cho vợ chồng chủ đầu tư khi không gian được tách biệt hoàn toàn và xuyên suốt từ chân cầu thang ra ngoài ban công.

Mặt bằng tầng 3 : Sử dụng cho các thành viên nhỏ trong gia đình nên chủ đầu tư yêu cầu không gian thông thoáng, thoải mái kèm không gian học tập hiệu quả cho 2 bé. Khi chúng đã thể hiện khá tốt chức năng của mình với một căn phòng lớn kèm 1 nhà vệ sinh, nhà tắm và 1 ban công nhỏ phía ngoài. Đây là không gian của 2 bé trai nên đây sẽ là phương án phù hợp.

Mặt bằng sân thượng : Nơi mà các thành viên có thể sử dụng chúng theo các mục đích riêng hoặc chung. Bởi chúng có thể tích hợp được nhiều chức năng khác nhau như : sân phơi, sân vườn, không gian luyện tập thể dục hay chứa các chức năng, vật dụng vật liệu cho việc sinh hoạt cho cả gia đình.
Theo chúng tôi, không gian nội thất bên trong khá phù hợp cho các gia đình từ 4 thành viên. Nhưng theo thời gian các bé sẽ lớn dần và cần có cho mình không gian riêng nên mặt bằng tầng 3 sử dụng chỉ với thời gian không lâu. Nhưng có thể sau đó mặt bằng sân thượng hoàn toàn có thể cải tạo, xây dựng hay nâng cấp bằng mặt bằng tầng 4 vẫn rất đơn giản. Chắc hẳn chủ đầu tư đã tính toán trước khi thông qua bộ hồ sơ từ bản vẽ này.
Thiết kế nội thất nhà ống 3 tầng phong cách tân cổ điển :
Bên cạnh việc kiến tạo nên một không gian thẩm mỹ từ hệ thống trang trí từ mặt tiền ngôi nhà. Thì nội thất cũng là một phần quan trọng để đánh giá cho sự hài hòa, xuyên suốt trong phong cách mà chủ đầu tư mong muốn hướng đến. Thấu hiểu được những điều này, chúng tôi sẽ mang đến cho bạn cùng tham khảo về nội thất bên trong của nhà ống 3 tầng mang dấu ấn tân cổ điển.


Bám sát theo một phong cách xây dựng được định hướng rõ ràng ngay từ ban đầu, phần nội thất quả thật mang đến sự hài hòa thông qua sự sắp xếp khéo léo của người làm kiến trúc. Như khẳng định giá trị của bản thân, của đơn vị bằng một kinh nghiệm làm việc chuyên nghiệp để mang đến cho chủ đầu tư một không gian tiện nghi, tinh tế và đầy sang trọng.

Nhà ống 3 tầng tân cổ điển thường được sắp xếp và bố trí, sắp đặt các không gian trong nhà ống dọc theo 2 bức tường ngôi nhà để chừa lối di chuyển chính giữa. Một cách thông thường nhất trên các phương diện kiến trúc, kết cấu tạo nên cho lối sinh hoạt thuận tiện phù hợp về công năng. Hướng đến một môi trường sống thuận tiện, thoải mái và cả niềm tự hào cho chủ nhân, cùng các thành viên trong gia đình mà kiến trúc sư đã hoàn thành chúng một cách hoàn hảo nhất.

Sự phối hợp nhịp nhàng giữa các màu sắc và được thay đổi ở các chức năng riêng biệt. Với màu xám ở không gian phòng khách, màu trắng ở khu vực nhà bếp, phòng ngủ. Kèm theo là các vật dụng trang trí cũng được bám sát theo phong cách tân cổ điển với các chi tiết hoa văn vô cùng tinh tế như đèn chiếu sáng, vách ngăn, bàn ghế, kệ tủ…vv đã làm khá tốt nhiệm vụ của mình thông qua lối tổ chức mang tính khoa học cao.


Với những tư liệu đầy đủ từ các hình ảnh, phối cảnh mặt tiền, bản vẽ thiết kế nhà ống 3 tầng trang trí theo phong cách tân cổ điển, mong rằng sẽ giúp bạn hiểu rõ hơn về phong cách này. Mặt khác, chúng sẽ là tư liệu bổ ích dành cho mọi người cùng tham khảo để có thể tạo nên một công trình trong tương lai của gia đình bạn. Xin chào và hẹn gặp lại mọi người trong các bài viết tiếp theo nằm trong chuyên mục nhà ống 2024.
Xem thêm :



























