Vốn được biết đến từ tính năng ưu việt, nhà ống 1 tầng đang dần chiếm được sự ưu ái đến từ phía các gia đình đang có dự tính cho việc xây dựng một ngôi nhà. Lợi thế là việc xây dựng với nhiều diện tích khác nhau 40m2, 50m2, 60m2, 70m2, 80m2..vv và linh hoạt trong hình thức bố trí không gian theo các hình thức xây dựng. Có thể khẳng định nhà ống sẽ tiếp tục mang đến những tiếng vang trong kiến trúc Việt theo thời gian.

Thiết kế nhà ống 1 tầng 40m2 - Mẫu nhà đẹp tháng 10
Bài viết này chúng ta sẽ tìm hiểu về mẫu nhà có kích thước nhỏ gọn với chỉ 40m2. Giúp mọi người có thể cân đối các chức năng sinh hoạt, giảm chi phí xây dựng và đặc biệt là việc ứng dụng các tính năng đôc đáo từ kiên trúc sư. Hãy cùng chúng tôi tiếp tục tham khảo qua tư liệu phía dưới nhé !
Xem qua bảng xếp hạng những mẫu nhà ống 1 tầng diện tích 40m2 ấn tượng :
Nhiều người cho rằng, việc biến hóa ngôi nhà 40m2 thật sự mang đến nhiều khó khăn với hạn chế từ diện tích xây dựng. Tuy nhiên với những hình thức bài trí thông mình, bố cục hài hòa, ứng dụng các tính năng thông minh từ hệ thống nội thất đã và đang mang đến những thành công nhất định giúp ngôi nhà trở nên hoàn thiện hơn, mà phía dưới sẽ là những dẫn chứng cụ thể.
1. Mẫu nhà ống 1 tầng 40m kết hợp gác lửng giúp tối ưu không gian :
Thông tin về mẫu nhà ống 1 tầng diện tích 40m2
- Dự án thiết kế : mẫu nhà ống 1 tầng kết hợp gác lửng
- Chủ đầu tư: Phạm Minh Trí - 1971
- Địa chỉ: 2331 Tân An – Thành phố Biên Hòa – Tỉnh Đồng Nai
- Thời gian thi công: 3 tháng.
- Phong cách kiến trúc: Là mẫu nhà ống 1 tầng 3 phòng ngủ được kết hợp hệ thống gác lửng bên trong cấu trúc.
Việc bổ sung hệ thống gác lửng trong kết cấu của các ngôi nhà không còn quá xa lạ với nhiều người, nhiều gia đình. Mẫu nhà gác lửng được đánh giá như một phần kết cấu phụ nhưng sự hiện diện của chúng lại mang đến kết quả mang tính hiệu quả cao nhằm giải quyết việc nâng cao diện tích sử dụng. Khi chúng có thể phân bổ không gian lên đến 2 phòng ngủ khi số lượng thành viên trong ngôi nhà bạn đang có chiều hướng gia tăng theo thời gian.

Bản vẽ về mẫu nhà ống 1 tầng diên tích 40m2 có gác lửng
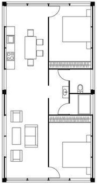
Thông qua bản vẽ, mọi người có thể thấy kiến trúc sư đã kết hợp không gian với màu sắc hoàn toàn tươi mới. Hệ thống được sắp xếp lần lượt từ mặt tiền với :
- Mặt bằng tầng trệt : Sân trước để xe, bếp cạnh với bàn ăn và ngăn cách với phòng ngủ của bố mẹ là tiểu cảnh nhỏ, 2 nhà vệ sinh .
- Mặt bằng gác lửng : Theo chân cầu thang đi lên sẽ là 2 phòng ngủ dành cho các con và 1 gian thờ phía trước.

Mẫu nhà ống 1 tầng diện tích 40m2 có gác lửng - bản 1
Thông qua bản vẽ 3d thứ nhất không gian ngôi nhà có gác lửng hiện đại ngày nay, không còn đơn thuần là những căn nhà tiết kiệm chi phí, tận dụng không gian mà là đó còn là một mô hình với lối kiến trúc độc đáo sáng tạo rất được các gia đình trẻ ưa chuộng. Phối cảnh đã thể hiện được giá trị độc đáo khi kết hợp được các yêu cầu từ phía gia chủ mang đến một không gian đặc biệt.

Mẫu nhà ống 1 tầng diện tích 40m2 có gác lửng – bản 2
Với bản vẽ từ phối cảnh 3d thứ 2 : Vẫn là lối tạo hình từ kết cấu đó nhưng đã được thay thế thành kiến trúc với hệ thống mái chữ A. Tạo độ dốc với hệ thống thoát nước cực kì hiệu quả. Mang các màu sắc đối lập giữa trắng và đen,ngôi nhà đã làm nên một giá trị mang tính hiện thực được đông đảo người xem tán thưởng bởi với diện tích hạn hẹp như thế mà kiến trúc sư vẫn sắp xếp không gian một cách tài hoa đến vậy.
Thông qua 2 bản vẽ được chúng tôi giới thiệu, chúng tôi đã mang đến cho mọi người nhiều hơn sự lựa chọn từ cấu trúc mái khác nhau. Mang đến những khái niệm hoàn toàn khác cho ngôi nhà ống với diện tích xây dựng khiêm tốn để tạo nên diện mạo mới mẻ cho công trình.
2. Mẫu nhà ống mái bằng 1 tầng có diện tích 40m2:
Thông tin về mẫu nhà ống 1 tầng diện tích 40m2
- Dự án thiết kế : mẫu nhà vườn 1 tầng sân vườn
- Chủ đầu tư: Tô Cẩm Minh - 1975
- Địa chỉ: 97 Hùng Vương – Thành phố Đông Hà – Tỉnh Quảng Trị
- Thời gian thi công: 3 tháng.
- Phong cách kiến trúc: Là mẫu nhà ống 1 được tối giản với 2 phòng ngủ
a. Bản vẽ nhà ống 1 tầng 40m2 :
Thông qua bản vẽ, mọi người có thể thấy được sự tối giản trong phong cách bài trí với 2 gian nhà chính được kiến trúc sư thể hiện một cách chi tiết. Với gian nhà thứ nhất (phong khách – bàn ăn- nhà bếp ) và gian nhà thứ hai gồm (2 phòng ngủ - 1 nhà vệ sinh) tất cả đã thể hiện được nét riêng biệt. Tối ưu không gian và lược bỏ đi các chi tiết không cần thiết giúp ngôi nhà trở nên tối ưu nhất.

Bản vẽ từ mẫu nhà ống 1 tầng diện tích 40m2
Phối cảnh 3d phía dưới được thể hiện mô phỏng ngôi nhà ống với diện tích 40m2 được kiến trúc sư thiết kế với các tiêu chí : Tiết kiệm chi phí xây dựng, dựa trên diện tích thửa đất với 40m2, kết hợp 2 nhà vệ sinh, 1 phòng khách và 1 nhà bếp. Ngoài ra tiêu chí tiện lợi, phục vụ cho gia đình với 4 thành viên cũng là các yêu cầu kèm theo từ gia chủ.
Thông qua các tiêu chí và yêu cầu từ gia chủ thì kiến trúc sư đã mang đến cho gia chủ với 2 bố cục ngôi nhà để gia chủ có thể lựa chọn một không gian ưng ý. Với phối cảnh thứ nhất, ngôi nhà có cho mình kết cấu từ hệ thống mái với dáng chữ A và vật liệu lợp là mái tôn nhằm tiết kiệm một khoản chi phí. Ngôi nhà thể hiện tính tối giản với các đường nét tạo hình chắc chắn và sử dụng 2 gam màu chính là xanh và trắng một cách đẹp mắt. Phần mái giả được nằm chếch ra phía ngoài để tạo điểm nhấn. Ngôi nhà sử dụng hệ thống kính cường lực giúp lấy sáng hiệu quả với cả cửa chính và cửa sổ. Ngoài ra, còn được kết hợp một khoảng sân rộng phía trước để gia chủ có thể làm sân để xe hoặc đáp ứng với mục đích riêng.

Phối cảnh mẫu nhà ống 1 tầng diện tích 40m2 -1
Phối cảnh thứ 2 được thể hiện với kết cấu từ mái nhà dạng bằng, lợi thế của ngôi nhà này là giúp cách nhiệt, cách âm, chắc chắn hơn nhiều so với việc lợp tôn với bản thiết kế số 1. Và cũng đồng nghĩa chúng sẽ làm tốn một khoản chi phí cao hơn so với bản vẽ số 1. Phần mặt tiền bên ngoài được kiến trúc sư cân đối hơn với cánh cửa chính rộng rãi hơn nhiều giúp việc di chuyển cũng trở nên đơn giản hơn. Lối tạo hình có nét đồng bộ và mang một màu sắc tinh tế vốn là do nét bài trí tối giản và phù hợp cho những ai yêu thích sự khỏe khoắn và tạo hình vuông vắn mang ý nghĩa mạnh mẽ và bền bỉ.

Phối cảnh mẫu nhà ống 1 tầng diện tích 40m2 – 2
Sau khi nhận được thiết kế từ kiến trúc sư thì gia đình đã có những tính toán một cách chi tiết thông qua các tiêu chí riêng như :sở thích, chi phí xây dựng, công năng sử dụng,…vv. Và mẫu nhà thứ nhất sẽ được chọn vì đáp ứng các mục đích riêng của chủ nhà. Đội thi công có thể tiến hành khảo sát mặt bằng và tiến hành đưa vào thi công.

Thi công mẫu nhà ống 1 tầng diện tích 40m2 – 3
“Theo đơn vị chủ quản công trình chia sẻ :
Thông qua bản vẽ xây dựng thể hiện chi tiết thì việc tiến hành thi công cũng trở nên đơn giản hơn rất nhiều. Đơn vị đã tiến hành theo đúng các quy trình tiêu chuẩn trong hạng mục xây dựng nhằm tạo nên ngôi nhà theo đúng tiến độ mà. Mặt khác, đây là trách nhiệm mà chủ nhà giao phó nên phải hoàn thành một cách hiệu quả cũng là sứ mệnh được giao cho đơn vị. Hy vọng sẽ làm chủ nhà hài lòng từ tính chuyên nghiệp mà chúng tôi mang đến.”

Lắp đặt nội thất mẫu nhà ống 1 tầng diện tích 40m2 – 4
Không làm gia chủ phải đợi quá lâu thì ngôi nhà đã hoàn thành lên đến 70% với hệ thống nội thất đang được trang bị đầy đủ từ : hệ thống trần thạch cao, cửa sổ, cửa chính, cửa phòng ngủ, hệ thống chiếu sáng….vv. Kèm theo là các vật dụng nội thất thông minh nhằm tiết kiệm không gian một cách hiệu quả nhất.

Nhà ống không khó xây dựng nhưng cái khó nằm ở việc tạo hình bố trí không gian, công năng sao cho hợp lý. Mong rằng đây sẽ là những tư liệu xây dựng hiệu quả cho công trình của bạn trong tương lai. Xin chào và hẹn gặp lại trong các bài viết tiếp theo của chúng tôi !


































