Việc sở hữu cho mình một mặt tiền của ngôi nhà đẹp luôn mang một sự hấp dẫn mà không ít người đã bỏ ra một nguồn chi phí xây dựng không hề nhỏ. 9x15 được biết đến như một diện tích “thoải mái” để gia chủ có thể phối hợp nhịp nhàng các công năng sử dụng kèm các tiện nghi bên trong nội thất mà còn là việc tái tạo lại phần mặt tiền giúp ngôi nhà trở nên hoàn thiện hơn.
Việc xây dựng một kiến trúc nhà ống đang dần trở nên hơn bao giờ hết trong thời điểm hiện tại. Nhằm nhấn mạnh vai trò quan trọng của các đơn vị thi công, bộ phận thiết kế và cả sự sáng tạo không ngừng nghỉ của đội ngũ kiến trúc sư trong việc duy trì và phát triển kiến trúc độc đáo này. Bài viết này, chúng ta sẽ tìm hiểu các thiết kế nhà ống 1 tầng 9x15m chắc chắn sẽ tạo nên ấn tượng mạnh dành cho bạn.

Tư vấn thiết kế nhà ống 1 tầng 9x15m đẹp cho năm 2020 :
Sau khi tiếp nhận thông tin của chủ đầu tư, đơn vị sẽ tiến hành khảo sát thửa đất nhằm tìm kiếm những lợi thế và hạn chế nhằm khắc phục một cách tốt nhất. Sau đó tiến hành đo đạc và thiết kế vẽ tay sơ bộ cho các bản thiết kế chính. Dựa theo các thông tin và bàn bạc một cách cụ thể từ 2 bên (Chủ đầu tư – đơn vị thiết kế thi công) Kiến trúc sư sẽ nhanh chóng đưa ra phương án quyết định kết cấu công trình để từng bước lên các phương án thi công.
Thông tin về mẫu nhà ống 1 tầng diện tích 9x15m hiện đại
- Dự án thiết kế : mẫu nhà ống 1 tầng diện tích 9x15m
- Chủ đầu tư: Phan Văn Thiện sinh 1991
- Phong cách xây dựng : Kết cấu hiện đại, kèm những gian phòng thiết yếu bên trong nội thất. 3 phòng ngủ - 2 nhà vệ sinh – 1 phòng khách – 1 nhà bếp – 1 phòng thờ
- Địa chỉ : Quận Bình Thạnh – thành phố Hồ Chí Minh
- Thời gian thi công: ~ 3 tháng.

Trao đổi với chủ đầu từ :
Đơn vị thiết kế thi công “ Anh có mong muốn gì hơn so với các yêu cầu mà anh đưa ra cho đơn vị ? Chúng tôi có thể khai thác tối đa sự sáng tạo của bản thân để mang đến cho trình của anh hay chỉ dừng lại ở việc mà anh yêu cầu”
Chủ đầu tư : “ Rất vui vì những chia sẻ từ đơn vị, đây là công trình thứ 2 trong đời tôi và chưa thấy đơn vị nào có những đóng góp mang tính thiết thực cho công trình, họ chỉ dập khuôn cách thông tin tư liệu ban đầu và không tổ chức sự sáng tạo cho không gian sống. Và tôi rất mong muốn đơn vị có thể sáng tạo nên một không gian hoàn hảo cho gia đình tôi sinh sống một cách thuận tiện nhất !”
Đơn vị thiết kế thi công “ Vâng ! chung tôi sẽ hoàn thành tốt hơn những dự kiến ban đầu mà anh đưa ra. Từ đơn vị thi công lẫn thiết kế đã có cho mình kinh nghiệm lâu năm trong lĩnh vực mà còn kết hợp với các thành viên trẻ là nơi mà họ có thể thỏa sức sáng tạo. Vì mỗi công trình là một lời khẳng định về chất lượng mà chúng tôi muốn mang đến cho khách hàng !”
Chủ đầu tư “ Thật tuyệt, đây là những điều mà chúng tôi đang mong đợi ! mong rằng công trình sẽ diễn ra một cách thuận lợi như dự kiến ban đầu”
Đơn vị thiết kế thi công “ Chắc chắn rồi ! chúng ta sẽ bắt tay nhau và tiến hành thi công !
1. Dựa theo thửa đất đưa ra phương án thi công thông qua bản vẽ
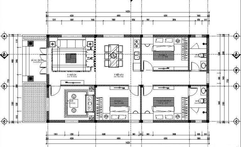
Khai thác tư liệu nhằm đưa ra một phương án mang tính hiệu quả cho công trình, kiến trúc sư đã làm tốt nhiệm vụ của mình khi phân bổ không gian từ các chức năng chính và phụ một cách thuận tiện nhất. Dựa theo các lợi thế từ thửa đất mà khai thác tối đa diện tích hoặc đi theo một diện tích định sẵn nhằm hướng đến yêu cầu từ phía chủ đầu tư. Đưa ra các ý tưởng, góp ý để công trình được thi công một cách suôn sẻ.

Từ hệ thống cửa ra vào, bạn có thể thấy ngay không gian phòng khách rộng rãi khi được bố trí một bộ sofa và năm đối diện là một gian thờ riêng biệt mà gia chủ luôn mong muốn sở hữu. Đi dọc theo phía hành lang là nhà bếp kèm 1 bàn ăn, điểm hay ở đây là không gian này ngăn cách với phòng khách bằng một vách ngăn làm không gian trở nên thông thoáng hơn. 3 gian phòng chức năng tiếp theo là nhà 3 phòng ngủ và 2 nhà vệ sinh nằm ở phía cuối của ngôi nhà. Nhà được phân chia ra 2 gian nằm đối diện nhau với chức năng sinh hoạt chung và sinh hoạt riêng mà từ các gian phòng có thể di chuyển một cách đơn giản.
2. Phối cảnh nhà ống 1 tầng diện tích 9x15m khi sở hữu mặt tiền ấn tượng (thiết kế số 1) :
Thông qua phối cảnh mà chúng tôi mang đến bạn có thể nhận thấy sự hiện đại từ mặt tiền bên ngoài từ việc trang trí theo một quy luật nhất định. Điều thành công ở kiến trúc này có thể là những giá trị cần có cho cuộc sống hiện đại ngày nay khi phần mặt tiền được xem như phần quan trọng trong mọi ngôi nhà mọi thiết kế mà gia chủ muốn hướng đến, nào hãy xem ngay phối cảnh 3d và cho chúng tôi những đánh giá cụ thể nhất nhé !

Trong đầu tháng tới, kiến trúc nãy sẽ bắt đầu trở lại hoạt động bởi những ảnh hưởng từ đại dịch covid. Rất may mắn khi anh Thiện đã cho phép chúng tôi chia sẻ kiến trúc này với mọi người một cách công khai. Khi thông qua yêu cầu từ bản vẽ từ phía chủ nhà có yêu cầu thêm một kết cấu phụ làm gara để xe nhằm bảo quản tài sản của anh một cách tốt nhất. Khi kết cấu bên trong vẫn được anh giữ nguyên. Nằm trên một diện tích đất rất rộng đây có thể là một điều tuyệt vời mà gia đình anh có thể sử dụng chúng với các mục đích xây dựng tiếp theo khi có nhu cầu.

Trở lại với kiến trúc, ngôi nhà ống với kết cấu 1 tầng thông qua phối cảnh đã hiện lên bằng một màu sắc khá khác biệt so với phần còn lại của các kiến trúc được xaydungso.vn giới thiệu từ gam màu đen được cho rằng là gam màu chính mà gia chủ đã yêu cầu. Đánh bật giữa một màu xanh từ hệ thực vật là một kết cấu hiện đại, ở đường nét tạo hình khi chúng có phần mái giật cấp xếp lên nhau tạo đọ dốc mà không dính liền như các phần mái thường thấy. khi hàng gạch từ cửa chính cũng là điểm nhấn cho cả một ngôi nhà. Không thể phủ nhận tầm quan trọng của phần kính cường lực giúp nâng cao chức năng lấy sáng hiệu quả tạo chiều rộng cho ngôi nhà mà còn là các ô thông gió được phân bổ xung quanh ngôi nhà giúp điều tiết nhiệt độ một cách hiệu quả.

Vẫn là các ô cửa sổ phân bổ rộng khắp các chức năng nhằm tạo nên một độ thông thoáng, đối lưu không khí cho cả bên trong và bên ngoài ngôi nhà. Bạn có thể hinh dung ra phần sau của kết cấu này là một khoảng sân sau dùng cho các mục đích riêng như : tạo thêm một không gian sinh hoạt và nghỉ ngơi cho các thành viên, là nơi họp mặt các gia đình với các buổi dã ngoại ngoài trời sau những ngày lao động giúp thư giãn và gắn kết các mối quan hệ một cách tốt nhất. Giữa khoảng không xanh tươi này, có thể nằm thư thả ngắm nhìn trời mây cùng với các thành viên, nhâm nhi một tách trà quả là một điều tuyệt vời.

Dựa theo các tiêu chí riêng hoặc chung mà có thể đánh giá không gian ngôi nhà bằng một sự hiện đại mà đã gây ấn tượng mạnh cho người xem. Dựa theo việc xây dựng nhà ống theo các bước đúng với quy trình như bản vẽ, thiết kế và thi công để làm nên một ngôi nhà trao tay cho chủ đầu từ. Không phải công trình nào cũng có thể hoàn thiện một cách hoàn hảo và không phải công trình nào cũng tự vươn mình để trở thành một kiến trúc đẹp mà đòi hỏi đội ngũ thiết kế xây dựng phải khai thác kinh nghiệm từ công việc của mình và dồn tâm huyết cho công trình để đạt được kết quả tốt hơn so với mong đợi.
3. Phối cảnh nội thất nhà ống 1 tầng diện tích 9x15m khi sở hữu mặt tiền ấn tượng :
Nội thất nhà ống không đòi hỏi các vật dụng sang trọng mà đặt nặng hơn về tính tiện lợi, dễ sử dụng. Đó có thể là những ý kiến khác nhau từ mọi người nhưng với anh Thiện chủ đầu tư công trình nhà ống 9x15 vẫn muốn hiện hữu sự sang trọng và cả tiện nghi bên trong không gian nội thất của anh, mà cách hình ảnh phía dưới sẽ làm bạn bất ngờ.


Dựa trên yêu cầu mà gia chủ đưa ra, không gian nội thất đã hiện lên như một bức tranh với đầy đủ màu sắc đầy đủ các thiết bị sử dụng thiết yếu và đầy đủ nét sang trọng vốn là điều mà chủ đầu tư mong muốn. Khá ấn tượng với những hình khối, đường nét thiết kế tinh tế, thể hiện sự sang trọng từ mọi gian phòng chức năng mà nhờ đó đã làm nên một không gian hoàn hảo.


Phía trên là thiết kế nhà ống 9x15m kết cấu 1 tầng, ngoài ra còn có rất nhiều các bài viết đang đợi mọi người cùng tham khảo. Hãy nhớ đón đọc chúng và tim ra cho mình một ngôi nhà phù hợp nhất nhé !
Xem thêm












![[Free thiết kế bản vẽ] mẫu nhà ống 500 triệu cực đẹp năm 2024](/img.php?url=https%3A%2F%2Fxaydungso.vn%2F%2Fimg%2Fposts%2Fa487a0-200x160-2.jpg)








![Mẫu nhà ống 7x12m hiện đại, tiện nghi [Kèm bản vẽ thiết kế]](/img.php?url=https%3A%2F%2Fxaydungso.vn%2F%2Fimg%2Fposts%2Fa584a0-200x160-2.jpg)

![[Top thiết kế nhà đẹp 2024] Nhà ống với mức giá 800 triệu](/img.php?url=https%3A%2F%2Fxaydungso.vn%2F%2Fimg%2Fposts%2Fa604a0-200x160-2.jpg)










