Với nhiều người, việc xây dựng một ngôi nhà ống với kết cấu 1 tầng thể hiện đầy đủ các chức năng đã là một điều tuyệt vời rồi. Nhưng với nhiều gia đình có điều kiện kinh tế thoải mái, yêu mến các công trình có kết cấu 2 tầng luôn là những lựa chọn mà họ ưu tiên hơn cả. Trước là việc thể hiện giá trị của một không gian sống của mình và sau là việc phân bổ không gian riêng tư cho việc sinh hoạt có phần thuận tiện hơn.

Với cấu trúc từ 2 tầng kèm diện tích 90m có thể xem như một lợi thế dành cho chủ đầu tư khi có thể sắp xếp các chức năng một cách hiệu quả, không gian rộng rãi, thoáng mát. Theo các yếu tố khách quan hay chủ quan mà bạn có thể lựa chọn một ngôi nhà dựa theo các thiết kế được chia sẽ một cách miễn phí hoặc có thể liên hệ đến các đơn vị thiết kế thi công nhằm tạo nên một không gian độc nhất, riêng biệt mà không sợ “đụng hàng” với các kiến trúc khác.
Dự toán chi phí xây nhà 2 tầng với tổng diện tích 90m2

Dựa theo bộ phận kế toán chia sẻ thì với hạng mục xây dựng nhà ống sẽ được chia ra thành 2 gói xây dựng thông qua :
1. Phần thô : Tổng diện tích x đơn giá xây nhà 2 tầng phần thô = 243m2 x 3,5 triệu/m2 = 850 triệu.
2. Trọn gói = Tổng diện tích x đơn giá xây nhà 2 tầng trọn gói = 243m2 x 5,5 triệu/m2 = 1 tỷ 336 triệu.
Lưu ý, đây là tư liệu tạm tính cho ngôi nhà từ đơn vị, các thông tin có thể sai lệch và tùy theo gói xây dựng từ các đơn vị khác nhau và vị trí xây dựng cũng như giá thành có thể thay đổi theo thời gian.
Gợi ý bố trí công năng sử dụng cho ngôi nhà ống 2 tầng diện tích 90m

Khi thiết kế nhà ống 2 tầng bạn cần phải đảm bảo không gian có cho mình đi theo một lối bài trí khoa học và nhất quán từ những ý tưởng ban đầu, tránh đi việc thay đổi để công trình hoàn thiện theo đúng dự tính.
Đảm bảo các yếu tố phong thủy nhà ống nhằm hướng đến sự may mắn, thịnh vượng cho ngôi nhà. Các diện tích cần được khai thác hiệu quả nhằm tạo nên một không gian tràn đầy tiện nghi.
Cũng lưu ý đến vị trí dẫn lên kết cấu tầng 2 bằng cầu thang thể hiện tích khoa học, an toàn cho người sử dụng.
Cần lưu ý đến các chức năng cách nhiệt, lấy sáng, giếng trời sẽ mang lại nguồn năng lượng bổ ích cho việc sinh hoạt bên trong và mang đến một không gian thoáng đãng tiết kiệm chi phí cho thiết bị chiếu sáng.
Lựa chọn kết cấu mái cho công trình xây dựng nhà ống 2 tầng 90m :
Theo sự phát triển của lĩnh vực xây dựng thì trong thời điểm hiện tại, bạn hoàn toàn có thể lựa chọn cho mình với các kết cấu khác nhau như : Mái thái, mái bằng, mái nhật, mái giật cấp hay xếp tầng và cả việc lựa chọn cho mình với nguồn vật liệu từ : tôn, ngói, giả ngói, hoặc các hạng mục mái lợp áp dụng công nghệ chống nóng, chống cháy, chống ẩm từ các đơn vị cung cấp trên khắp cả nước.

Nhưng cũng lưu ý rằng, mọi kết cấu đều có cho mình với những lợi ích và hạn chế riêng và nên tìm hiểu một cách kỹ lưỡng trước khi đưa quyết định xây dựng. Cân nhắc chi phí cho từng hạng mục để không gây hao hụt khi công trình đã được hoàn công.
Tìm kiếm bố cục trang trí cho nhà ống 2 tầng diện tích 90m2 :
Dựa theo thay đổi theo thời gian, nhà ống đã cho ra mắt chủ đầu tư với rất nhiều các lối tạo hình khác nhau nhưng nhìn nhận chung thì các phong cách đó cũng được biến tấu từ : Phong cách tối giản, phong cách hiện đại, phong cách cổ điển hay tân cổ điển mà mọi người vẫn thường thấy. Bạn hoàn toàn có thể lựa chọn một lối bài trí phù hợp nhất với sở thích hay giá tiền của mình một cách thoải mái.

Đây có thể là một dẫn chứng cho một ngôi nhà ống 2 tầng với kiểu dáng tân cổ điển mang đến sự tiện nghi cho người sử dụng với công năng hoàn hảo. Khi lối bài trí sử dụng từ hệ thống mái thái, bố cục hiện đại và đâu đó vẫn là sự cổ điển vẫn được các gia đình lưu giữ cho đến tận ngày hôm nay.
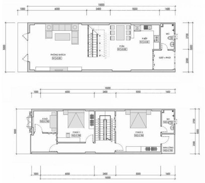
Xây dựng bố cục tổng quan bên trong ngôi nhà bằng bản vẽ nhà ống 2 tầng diện tích 90m :
Thông qua bản vẽ mà chúng tôi cung cấp, bạn có thể nhận thấy không gian hiện lên bên trong nội thất với một tiện nghi khi không gian chia đều thành 2 mảng đối lập giữa không gian sinh hoạt chung gồm phòng khách, nhà bếp, nhà vệ sinh và không gian kết cấu tầng 2 với : 2 phòng ngủ kèm 1 gian thờ phía trước.

Tất cả đã mang đến cho các thành viên việc sinh hoạt một cách đơn giản nhưng phần thiếu sót ở đây có thể là bên trong phòng ngủ không có cho mình nhà vệ sinh riêng và phải đi xuống mặt bằng tầng trệt hoặc thông qua phòng ngủ số 2. Đây có thể xem như phần thiết sót cần khắc phục.
Xây nhà ống 2 tầng đẹp từ kết cấu nhà ống hiện đại với diện tích 90m :
Thông qua tư liệu ban đầu từ diện tích mà gia chủ có thể tìm kiếm các kiểu mẫu thiết kế khác nhau hoặc trực tiếp sử dụng thiết kế từ bài viết này. Nhằm đưa ra hướng giải quyết nhanh nhất cho công trình để gia đình bạn có thể có ngay cho mình không gian sống trong thời gian tới. Nào hãy cùng chúng tôi xem qua các tư liệu ngay phía bên dưới và đừng quên để lại những lời nhận xét thông qua phần bình luận ngay phía bên dưới nhé !
Thiết kế nhà ống 2 tầng (mẫu số 1)
Dựa theo phối cảnh từ ngôi nhà số 1, bạn có thể nhận thấy được sự thay đổi từ phần mái khi kết hợp với mái thái là tạo hình bên ngoài với phần mái bằng khá độc đáo. Đây được xem như một điểm sáng mà chủ đầu tư đã hướng đến cho công trình nhà mình. Đó còn là màu sắc chan hòa khi kết hợp từ các màu sắc đối lập tạo nên một công trình hoàn hảo mà ai bắt gặp cũng dễ dàng yêu mến.

Thiết kế nhà ống 2 tầng (mẫu số 2)
Các mẫu nhà ống 2 tầng mái bằng đã dần trở nên phổ biến với rất nhiều người nhiều chủ đầu tư và chúng cũng nhận được sự ưu ái từ đông đảo các gia đình trẻ hiện nay. Sự đa dạng trong kiến trúc của các ngôi nhà dạng ống cùng với việc tối ưu các mặt bằng xây dựng chính là một trong những ưu điểm vượt trội của loại hình kiến trúc này. Chúng đã trở thành một kiến trúc kiểu mẫu ở nhiều trung tâm thành phố.

Thiết kế nhà ống 2 tầng (mẫu số 3)
Tạo hình mang đến điểm nhấn với một màu sắc rất riêng rất có gu thẩm mỹ từ chủ đầu tư khi phối cảnh từ mẫu nhà số 3 có thể mang đến cho nhiều người phải trầm trồ khen ngợi. Các đường chỉ khỏe khoắn bổ trợ cho các bức tường trắng cũng là một điểm nhấn mang tính sáng tạo từ đơn vị thi công mang đến cho ngôi nhà. Tất cả đã làm nên bố cục hiện đại mà mọi gia chủ vẫn luôn mong muốn sở hữu.

Thiết kế nhà ống 2 tầng (mẫu số 4)
Nếu như các mẫu nhà phía trên vẫn chưa làm bạn hài lòng thì thiết kế số 4 sẽ là một gam màu hoàn toàn mới cho những ai yêu mến lối trẻ trung, hiện đại và đầy phóng khoáng đã góp phần tạo nên một ngôi nhà mà bạn được thấy. Không gian sân trước rộng rãi là nơi để xe và hoàn toàn có thể kết hợp một hệ thống sân vườn phía trước nhằm tạo cảnh quan sinh động cho cả một công trình giá trị.

Thiết kế nhà ống 2 tầng (mẫu số 5)
Với sự kết hợp một cách hài hòa của kiến trúc hiện đại cùng với đó là sự nổi bật từ các khối hình, mang đến một loại hình xây dựng vô cùng ấn tượng và bắt mắt. mà bạn có thể thấy thông qua phối cảnh thứ 5 cũng là ngôi nhà cuối cùng mà chúng tôi chia sẻ trong bài viết ngày hôm nay. Như một lời khẳng định về giá trị mà chủ đầu tư đã hướng đến cho ngôi nhà các công năng phân bổ rộng khắp tạo sự thuận lợi cho việc sinh hoạt vốn là sự tìm kiếm từ đông đảo các gia đình trẻ.

Nhà ống, dần trở nên quan trọng và thiết yếu hơn bao giờ hết. Khi chúng đang là một kiến trúc kiểu mẫu tại các thành phố, trung tâm nhằm tạo nên tổng quan cho đo thị đã được áp dụng. Theo đó mà các thiết kế đã ngày càng gia tăng nhằm tạo nên một danh sách để mọi người có thể thoải mái lựa chọn và mang đến cho gia đình của mình. Bạn hoàn toàn có thể bám sát các phối cảnh mà lên cho mình một ý tưởng trước khi xây dựng nhé, đó là một điều đáng lưu tâm mà không phải ai cũng biết.
Dựa theo những chia sẻ mà chúng tôi gửi đến cho quý đọc giả và cả quý khách hàng, mong rằng chúng sẽ là nguồn tư liệu bổ ích để mọi người có thể tham khảo và định hình cho kiến trúc xây dựng của mình trong tương lai. Và đừng quên đón xem các bài viết tiếp theo của chúng tôi nhé !
Xem thêm :










![[Free thiết kế bản vẽ] mẫu nhà ống 500 triệu cực đẹp năm 2024](/img.php?url=https%3A%2F%2Fxaydungso.vn%2F%2Fimg%2Fposts%2Fa487a0-200x160-2.jpg)








![Mẫu nhà ống 7x12m hiện đại, tiện nghi [Kèm bản vẽ thiết kế]](/img.php?url=https%3A%2F%2Fxaydungso.vn%2F%2Fimg%2Fposts%2Fa584a0-200x160-2.jpg)

![[Top thiết kế nhà đẹp 2024] Nhà ống với mức giá 800 triệu](/img.php?url=https%3A%2F%2Fxaydungso.vn%2F%2Fimg%2Fposts%2Fa604a0-200x160-2.jpg)












