Luôn là một trong những thiết kế mang đến sự mới lạ với kết cấu hiện đại và tiện lợi cho các gia đình, nhà ống dần trở nên nổi bật hơn rất nhiều so với các kiến trúc khác. Đây được xem như một phần quan trọng mà các kiến trúc sư không ngừng sáng tạo để mang đến cho mọi người một ngôi nhà đẹp.

Điều mà nhiều người bất ngờ phía bên trong các mẫu thiết kế nhà ống 1 tầng tại Việt Nam có lẽ chính là phần kích thước bởi lẽ chúng có một diện tích khá khiêm tốn, chiều dài là đặc trưng với hình dạng ống mà mọi người thường thấy. Thông thường, với diện tích phổ biến các khách hàng dành cho công trình nhà ống của mình sẽ nằm ở các diện tích : 40m2, 50m2, 60m2, 70m2, hoặc với con số cao hơn 80m2, 90m2 và 100m2….vv.
Phân loại các thiết kế từ nhà ống 1 tầng :
Dựa theo việc phân loại các cấu trúc từ nhà ống tưởng chừng sẽ rất đơn giản nhưng ít người có thể biết rằng kết cấu 1 tầng từ nhà ống vẫn tồn tại song song như cấu phụ như gác lửng và tum… mỗi kết cấu sẽ có cho mình với các bố cục khác nhau và công năng cũng cũng như giá trị thẩm mỹ mà chúng mang lại. Ngoài ra, phải luôn được đảm bảo sự phù hợp và mang đến các lợi thế cho việc sinh hoạt dành cho nhu cầu sống của các thành viên trong gia đình.

Các thiết kế từ nhà ống 1 tầng thường có cho mình với các kiểu mẫu về hình dạng một cách tối giản bởi diện tích hẹp ở các lô đất khó có thể mà nhìn thấy. Nhưng với các diện tích rộng rãi thì nhiều gia đình vẫn sử dụng các đường nét trang trí xung quanh. Các mẫu thiết kế nhà ống 1 tầng tại Việt Nam thông thường sẽ được chia thành thiết kế với các dạng mái thái, mái bằng ,mái lệch, mái giật cấp hoặc mái ngói.
Chi phí xây dựng nhà ống 1 tầng là bao nhiêu ?
Mặc dù các thiết kế của nhà ống 1 tầng dần trở nên phổ biến nhưng một số người có nhu cầu xây dựng hoặc đang tìm hiểu về ngôi nhà này vẫn chưa có cho mình một con số cụ thể hoặc hình dung ra chi phí của chúng nằm ở khoảng bao nhiêu.

Xuất phát từ các nhu cầu thực tế thì xaydungso.vn đã mang đến cho quý khách hàng và độc giả với rất nhiều các bài viết về các mức giá khác nhau từ 300 – 900 triệu. Mà mọi người có thể tìm đọc trong hạng mục về mẫu nhà ống giá rẻ. Ngoài ra, theo kinh nghiệm trong lĩnh vực xây dựng từ chúng tôi thì đã rút ra cho mình thì lối kiến tạo có thể ảnh hưởng trực tiếp đến giá thành của một ngôi nhà. Cụ thể là hình thức xây dựng đơn giản không tạo nên quá nhiều các hình thái trang trí, tối giản các chức năng xây dựng và áp dụng theo các tính năng thông minh từ nhà ống sẽ mang đến một chi phí tiết kiệm nhất.
Thiết kế nhà ống 1 tầng đẹp theo chức năng xây dựng :
Theo các ý tưởng xây dựng ban đầu, mà chức năng cũng được phân bổ một cách cụ thể thông qua các nhu cầu khác nhau từ phía chủ đầu tư. Thông thường kết cấu bên trong nội thất mà nhiều người vẫn lựa chọn là 2 phòng ngủ. Mà theo số lượng thành viên các gian phòng cũng trở nên cao hơn với 3 hoặc 4 phòng ngủ.

Ngoài các chức năng từ phòng ngủ mà nhiều người quan tâm thì các gian phòng chức năng như phòng khách, nhà bếp, nhà vệ sinh cũng được nâng cao theo các nhu cầu riêng hoặc chung. Với cách bố trí không gian một cách khoa học, kèm theo là sự tiện nghi cũng như đáp ứng mục đích sử dụng của gia chủ luôn là phần quan trọng hơn cả.
Lý do mà bạn và gia đình nên chọn nhà ống 1 tầng :
Có thể xem đây là một kiến trúc phù hợp với các đặc điểm quy hoạch từ thành phố cũng như nông thôn. Khi nhà phố chính là giải pháp hoàn hảo cho các gia đình giúp tiết kiệm chi phí xây dựng. Ngoài ra, chúng có thể nâng cấp hay cải tạo một cách đơn giản khi lên tầng nếu như kết cấu ban đầu có sự tính toán.

Ở các thành phố lớn, khu dân cư thì bạn có thể đánh giá chúng như một kiến trúc kiểu mẫu là sự lựa chọn ưu tiên từ các diện tích đất đã được phân lô sẵn. Theo lối bố trí công năng khoa học hoàn toàn có thể đáp ứng cho số lượng lớn thành viên sinh sống bên trong.
Tham khảo kiến trúc nhà ống 1 tầng diện tích 80m2 với 3 phòng ngủ tiện nghi :
Theo thời gian hình thành và phát triển thì nhà ống đã chứng minh rằng mình là một kiến trúc phù hợp ở mọi điều kiện dù cho là khắc nghiệt nhất. Khi diện tích hạn hẹp, kinh phí để xây dựng và các yếu tố khác ảnh hưởng trực tiếp hay gián tiếp đến công trình. Mà theo kiến trúc mà chúng tôi giới thiệu bên dưới bạn hoàn toàn có thể lưu lại như một ý tưởng cho công trình của riêng mình.
Thông tin về mẫu nhà ống 1 tầng diện tích 80m2
- Dự án thiết kế : mẫu nhà ống 1 tầng diện tích 6x20m
- Chủ đầu tư: Đào Duy Cảm sinh 1984
- Phong cách xây dựng : Kết cấu hiện đại, kèm những tiện ích thông minh bên trong nội thất. 3 phòng ngủ - 2 nhà vệ sinh – 1 phòng khách – 1 nhà bếp
- Địa chỉ: Phường Tân Thạnh – thành phố Tam Kỳ – Quảng Nam
- Thời gian thi công: ~ 3 tháng.
Nhìn từ góc cạnh tổng quan thì mẫu thiết kế nhà ống 1 tầng 80m2 người xem có thể dễ dàng cảm nhận được sự bình yên, trong lành đến lạ thường khi công năng chính là việc bổ sung nguồn năng lượng của sắc xanh thiên nhiên. Nhà được thiết kế theo kiểu kiến trúc không gian mở. Ngôi nhà vừa đón được năng lượng trực tiếp ánh sáng ngoài trên vừa tạo cảm giác ngôi nhà rộng rãi, thoáng mát hơn. Kèm theo là hệ thống cửa chính và cửa sổ bằng kính cũng tạo điểm nhấn cho tổng thể tổng quan cho cả căn nhà.

Kết cấu từ ngôi nhà khá độc đáo và hình thái tổng quan là điểm nhấn với phần mái hiện đại vừa kết hợp phần mái bằng vừa kèm theo một phần mái dốc. Phối cảnh còn là sự độc đáo khi kết hợp đan xen các màu sắc ở các vị trí cụ thể mà còn là các hình khối không hề tạo cho người nhìn cảm giác rườm rà ngược lại là sự phối hợp nhịp nhàng. Bạn cần tính toán và điều chỉnh chi phí sao cho phù hợp nhất với điều kiện kinh tế của gia đình mình.

Bản vẽ thứ nhất giúp bạn có thể hình dung hình dạng để xây dựng với các chi tiết được thông qua việc thể hiện đầy đủ từ các hàng gạch, cửa ra vào, cửa sổ, cửa thông gió và cả kết cấu từ phần mái nhà. Nét tiện nghi được thể hiện thông qua phối cảnh mặt tiền mà kiến trúc sư cung cấp. Đây là một bản vẽ thể hiện rõ nét kiến trúc nhằm tạo điều kiện tốt nhất cho các gia đình có thể tham khảo.

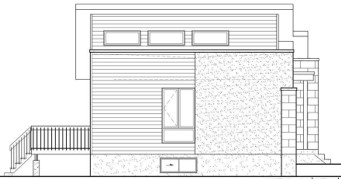
Thông qua bản vẽ thứ 2, là góc nhìn bên hông của ngôi nhà nơi mà có các hệ thống được phân bổ rõ ràng với hệ thống thông gió, cửa phụ mà còn là một cấu trúc ban công nhỏ phía sau giúp ngôi nhà có thêm cho mình một không gian sinh hoạt, nơi mà gia chủ có thể đặt một bộ bàn ghế để thư giãn tránh đi sự nhộn nhịp từ đường xá, xe cộ qua lại. Theo gia chủ thì trong năm tới, họ sẽ cải tạo kết cấu bên trên và mở rộng không gian sinh hoạt của ngôi nhà từ kết cấu mái bằng có thể dùng làm một nơi làm việc, học tập hoặc là một nhà kho chứa đồ để mở rộng diện tích sinh hoạt nằm bên dưới tầng trệt.

Kế tiếp là phần bản vẽ từ phía sau ngôi nhà khi được sử dụng khá nhiều cửa nhằm tạo nên không gian sáng và thoáng. Nhà đã thể hiện tốt các yếu tố khác nhau nhằm tạo nên một không gian hoàn hảo, toàn diện kèm với các tiện ích khác nhau mà khi có nhu cầu xây dựng gia chủ có thể thực hiện một cách cụ thể nhất thông qua bản vẽ mà đơn vị cung cấp.
Ngôi nhà đã mang đến một góc nhìn hoàn toàn khác cho hệ thống kiến trúc nhà ống, mặt khác còn thể hiện tối đa các chức năng mang tính tiện dụng phù hợp cho mọi gia đình sinh hoạt với kết cấu 3 phòng ngủ,2 nhà vệ sinh, 1 nhà bếp, 1 phòng khách mà gia chủ đã yêu cầu. Phân bổ rõ ràng các không gian với 3 phòng ngủ xếp lần lượt và trải dài đến hết diện tích xây dựng. Phía đối diện là các chức năng sinh hoạt chung như phòng khách, nhà bếp kèm với 2 nhà vệ sinh được phân bổ với 1 ở không gian sinh hoạt chung và 1 ở bên trong phòng ngủ.

Dựa theo các đánh giá khác nhau từ kiến trúc mà bạn có thể cân đối diện tích của thửa đất sẵn có nhằm xây dựng lên một ngôi nhà đúng với mong muốn và yêu cầu của gia đình bạn. Thông qua bài viết về mẫu nhà ống 1 tầng với diện tích 80m2 mà Xaydungso.vn cung cấp, chúng tôi mong rằng nó sẽ bổ ích và là nguồn tư liệu dành cho mọi nhà, mọi gia đình trong thời gian tới. Xin chào và hẹn gặp lại trong các bài viết tiếp theo !
Xem thêm :















![[Free thiết kế bản vẽ] mẫu nhà ống 500 triệu cực đẹp năm 2024](/img.php?url=https%3A%2F%2Fxaydungso.vn%2F%2Fimg%2Fposts%2Fa487a0-200x160-2.jpg)








![Mẫu nhà ống 7x12m hiện đại, tiện nghi [Kèm bản vẽ thiết kế]](/img.php?url=https%3A%2F%2Fxaydungso.vn%2F%2Fimg%2Fposts%2Fa584a0-200x160-2.jpg)

![[Top thiết kế nhà đẹp 2024] Nhà ống với mức giá 800 triệu](/img.php?url=https%3A%2F%2Fxaydungso.vn%2F%2Fimg%2Fposts%2Fa604a0-200x160-2.jpg)







