Nền tảng để xây dựng một ngôi nhà đẹp cần đến rất nhiều các yếu tố xây dựng khác nhau, những việc mà bạn cần làm là tìm kiếm cho mình một ý tưởng xây dựng, bố cục nội thất của ngôi nhà, định hướng cho phong cách xây dựng, lối trang trí cho mặt tiền ngôi nhà và cả các yếu tố phụ nhằm bổ trợ cho không gian một cách hoàn thiện nhất. Đúng theo các tiêu chí ban đầu và kèm theo là việc sử dụng thuận lợi khi sinh sống bên trong ngôi nhà.

Định hướng ban đầu về ngôi nhà luôn là một bước đệm quan trọng cho kiến trúc về sau khi chúng sẽ giúp bạn có thể khai thác những tư liệu với việc cân nhắc chi phí xây dựng cho công trình. Cân đối cả nguồn tài chính để hướng đến việc trang trí ngôi nhà mà còn thể hiện giá trị của chúng cho cuộc sống hiện đại ngày nay, bài viết này sẽ mang đến cho mọi người 2 mẫu thiết kế với kết cấu nhà 1 tầng đẹp và cả kết cấu nhà ống 2 tầng với diện tích 9m mặt tiền. Hãy chọn ra cho mình một ngôi nhà ưng ý nhất để phục vụ cho mục đích xây dựng trong tương lai của bạn nhé !
Định hướng về thiết kế nhà ống diện tích 9m với kết cấu 1 và 2 tầng :
Nhà ống dần trở nên là một kiến trúc được yêu thích vì công năng khác nhau kèm theo là các thay đổi tạo nên sự sáng tạo độc đáo cho công trình của bạn. Khi các thiết kế phổ biến hơn với nhiều chủ đầu tư từ các nguồn tư liệu dài vô số thông qua thanh công cụ tìm kiếm google.com.vn. Bạn nên chọn lọc các thông tin để tìm ra cho mình một thiết kế phù hợp với thửa đất mà mình đang sở hữu và các thông tin xoay quanh kiến trúc đáp ứng tốt yêu cầu về thẩm mỹ, công năng và phong thủy theo xu hướng hiện đại ngày này.
1. Thiết kế nhà ống 1 tầng hiện đại với diện tích 9m hiện đại với công năng tiện nghi được các gia đình trẻ ưu ái :
Thông tin về mẫu nhà ống 1 tầng mặt tiền rộng 9m
- Dự án thiết kế : mẫu nhà ống 1 tầng diện tích 9m
- Chủ đầu tư: Trương Hoài Bảo sinh năm 1976
- Phong cách xây dựng : mặt tiền tối giản công năng trang trí nhằm tạo nên sự khác biệt từ nội thất với sự tiện nghi. 3 phòng ngủ - 1 nhà vệ sinh – 1 phòng khách – 1 nhà bếp
- Địa chỉ : Quận 12 – thành phố Hồ Chí Minh
- Thời gian thi công: ~ 3 tháng.
Có thể thấy rằng các gia đình trẻ ngày nay luôn yêu mến nét tiện nghi và hiện đại và mong muốn chúng sẽ góp mặt vào trong không gian sinh sống của mình một cách hiệu quả nhất. Nhưng không phải thiết kế nào cũng có thể khai thác được tối đa mục đích mà chủ đầu tư hướng đến, thay vì từ tìm kiếm thì việc liên hệ cho các đơn vị thiết kế thi công sẽ mang đến hiệu quả cao hơn. Mà chúng luôn là phương án tốt nhất cho việc xây dựng nhà trong thời điểm hiện tại.

Thông qua phối cảnh đẹp mắt từ góc chụp chính diện từ mặt tiền ngôi nhà, bố cục hiện lên mang đến sự tối giản từ các bức tường trắng khi sự đối lập về màu sắc từ các đường viền từ hệ thống mái, cửa kính tạo nên sự chắc chắn, khỏe khoắn. Nhà ống diện tích 9m mặt tiền trở nên tiện nghi hơn nhờ không gian sân vườn xanh tươi đánh bật lên một khoảng không mang màu sắc sinh thái riêng biệt. Đây là nơi mà chủ nhà có thể tận hưởng nguồn năng lượng từ thiên nhiên, là nơi ngả lưng thư giãn sau một ngày lao động bên ngoài.

Không nói quá khi chúng đã làm tốt nhiệm vụ của mình nhằm hướng đến sự tiện nghi mà gia chủ đã yêu cầu từ nguồn thông tin ban đầu cung cấp cho kiến trúc sư. Lợi thế mặt tiền rộng 9m cùng khu đất vuông vắn cộng thêm kinh nghiệm, năng lực thiết kế của kiến trúc sư đã mang tới diện mạo đẹp kiến trúc mở ấn tượng cùng tiện nghi trong công năng cho ngôi nhà 1 tầng.

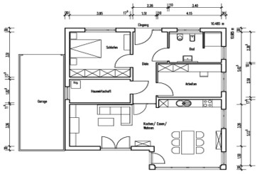
Với công năng phục vụ cho 3 thế hệ kết hợp sinh sông bên trong gồm : vợ chồng anh bảo, bố và con trai. Thông qua các tiêu chí này thì ngôi nhà anh được hiện lên với 3 phòng ngủ hiện đại, 1 nhà vệ sinh sử dụng chung, 1 nhà bếp kèm 1 phòng khách là phương án mà anh đã lựa chọn cho bố cục bên trong. Dựa theo các yêu cầu đó kiến trúc sư đã thể hiện bao quát các chức năng dựa trên diện tích với mặt tiền 9m rất tốt.

Nội thất phòng khách ngôi nhà sử dụng phong cách tối giản từ cả màu sơn, hình thức trang trí nhằm tiết kiệm nguồn chi phí phải chi trả cho công trình. Đây là phương án nhằm mang đến sự thông thoáng, tránh đi các đường lối cũ khi sử dụng quá nhiều các vật dụng hay vật liệu bên trong. Có thể cảm giác được sự tiện nghi mà ngôi nhà mang lại một cách đầy đủ sở hữu nét khang trang vô cùng thông thoáng.

Quả thật ngôi nhà đã thể hiện rất tốt các chức năng của mình dành cho việc sinh hoạt của mọi thành viên được diễn ra một cách thuận lợi nhất. Bạn có thể lưu lại các tư liệu này để dành cho mục đích xây dựng của mình trong tương lai và đừng quên để lại những cảm nhận riêng của mình cho công trình đẹp mắt này thông qua phần bình luận bên dưới nhé.
2. Thiết kế nhà ống 2 tầng sang trọng với diện tích 9m hiện đại với công năng tiện nghi thể hiện đẳng cấp của gia chủ :
Thông tin về mẫu nhà ống 1 tầng mặt tiền rộng 9m
- Dự án thiết kế : mẫu nhà ống 1 tầng diện tích 9m
- Chủ đầu tư: Nguyễn Cao Cường sinh năm 1982
- Phong cách xây dựng :Bố cục mặt tiền sang trọng từ các ứng dụng thông minh cần có từ đơn vị thi công. Không gian nội thất cần có 2 phòng ngủ - 2 nhà vệ sinh – 1 phòng khách – 1 nhà bếp – 1 phòng sinh hoạt chung
- Địa chỉ : Quận Tân Bình – thành phố Hồ Chí Minh
Sở hữu cho mình với vị trí đắc địa với 2 mặt tiền sang trọng là điều mà chủ đầu tư luôn mong muốn một sự tiện nghi, đặc sắc từ phối cảnh mặt tiền mà còn là nét đẹp tổng quan mà mọi người nhìn thấy phải trầm trồ khen ngợi. Với nhiều gia đình sở hữu nguồn kinh phí xây dựng lớn thì hoàn toàn có thể lựa chọn cho mình với một kết cấu nhà ống 2 tầng mà thông qua các phối cảnh chúng tôi mang đến đã thể hiện được những giá trị mà gia đình hướng đến, mà còn làm tốt hơn những gì mà họ mong đợi từ chủ đầu tư.

Góc nhìn thứ nhất là phần sân sau của ngôi nhà khi gia chủ đã kết hợp một khoảng không bằng hệ thống sân vườn với sự đa dạng về thảm thực vật. Hiện lên như một mẫu nhà giá trị với kết cấu vững chắc, khỏe khoắn từ các khối hình được đan xen với nhau bằng một sự nhất quan mà công trình hiện đại ngày nay luôn sử dụng rất nhiều.

Kế tiếp là phối cảnh thứ 2 với phần mặt tiền ngôi nhà, có thể thấy gia chủ đã phân bổ rộng khắp hệ thống thông gió cho không gian bên trong bằng các ô cửa trãi dài các chức năng bên trong một cách hiệu quả. Màu sắc tổng quan là trắng và đan xen là gam màu nâu nhạt được thể hiện ở phần cửa chính ra vào. Sân bên cạnh là nơi để xe khi gia chủ không cần với kết cấu từ gara khi đã có một hệ thống hàng rào an toàn. Các chi tiết được phối hợp chặt chẽ với nhau tạo nên một ngôi nhà đẹp – sang trọng đến lạ thường.

Kết cấu từ vị trí tầng trệt đã được kiến trúc sư thể hiện thông qua phần bản vẽ dựa trên lối xây dựng từ không gian mở. Mở ra một bố cục thông thoáng vốn là hạn chế từ nhà ống và nay đã được khắc phục một cách hiệu quả. Đó là một phòng khách rộng thông qua nhà bếp nhà vệ sinh từ các cánh cửa kéo và dẫn lên mặt bằng tầng 2 thông qua phần cầu thang nằm tại vị trí chính giữa ngôi nhà.

Mặt bằng tầng 2 gồm có 2 phòng ngủ, 1 nhà vệ sinh kèm theo là một phòng sinh hoạt chung với các tiện nghi hiện đại đã được kết hợp. Đây có thể là nơi học tập làm việc của các thành viên mà còn là nơi nghỉ ngơi giải trí cùng mọi thành viên gia đình. Tất cả sự tiện nghi này không thể không nhắc đến sự sáng tạo và khả năng phân bổ các chức năng mà kiến trúc sư đã hướng đến cho công trình từ một diện mạo hoàn toàn mới thay thế hoàn toàn bố cục thường thấy ở 1 công trình nhà ống.
Dựa trên các yêu cầu từ chủ đầu tư mà không gian đã được bám sát theo những mong muốn và sở thích đó. Mỗi bố cục 1 tầng hay 2 tầng sẽ mang đến những lợi thế và hạn chế riêng cho mình. Bạn cần cân nhắc một cách kỹ lưỡng và có chủ đích nhằm tạo nên một ngôi nhà sang trọng - tiện nghi - hiện đại cho cuộc sống dần được chuyển hóa theo thời đại ngày nay.
Mong rằng các tư liệu trên sẽ giúp các bạn có thêm ý tưởng cho ngôi nhà của mình trong tương lai. Đừng quên tham khảo thiết kế thông qua phần báo giá được chúng tôi thêm vào phần hình ảnh đã được cung cấp !
Xem thêm :









![[Free thiết kế bản vẽ] mẫu nhà ống 500 triệu cực đẹp năm 2024](/img.php?url=https%3A%2F%2Fxaydungso.vn%2F%2Fimg%2Fposts%2Fa487a0-200x160-2.jpg)








![Mẫu nhà ống 7x12m hiện đại, tiện nghi [Kèm bản vẽ thiết kế]](/img.php?url=https%3A%2F%2Fxaydungso.vn%2F%2Fimg%2Fposts%2Fa584a0-200x160-2.jpg)

![[Top thiết kế nhà đẹp 2024] Nhà ống với mức giá 800 triệu](/img.php?url=https%3A%2F%2Fxaydungso.vn%2F%2Fimg%2Fposts%2Fa604a0-200x160-2.jpg)













