So với các thiết kế khác mái thái công phu và phức tạp hơn sẽ làm tăng chi phí và trở nên khá đắt so với các loại mái thông thường khác. Tuy nhiên, nhiều chủ nhà rất ưu tiên và dành riêng cho thiết kế này vì ngoài tính thẩm mỹ,nó còn mang lại những trải nghiệm mới. Ở đây, chúng tôi xin giới thiệu đến mọi người bản vẽ thiết kế nhà cấp 4 mái thái đẹp ấn tượng với kinh phí đầu tư từ 450 triệu đến 500 triệu đồng.
*Thông tin chung:
- Kiến trúc: Nhà cấp 4 mái thái hiện đại.
- Diện tích xậy dựng: 9.5×13.22m
- Chủ đầu tư: Anh Nguyễn Văn Nam.
- Kinh phí đầu tư: 450 - 500 triệu đồng.
Chi tiết bản vẽ thiết kế nhà cấp 4 mái thái đẹp hiện đại và tiện ích
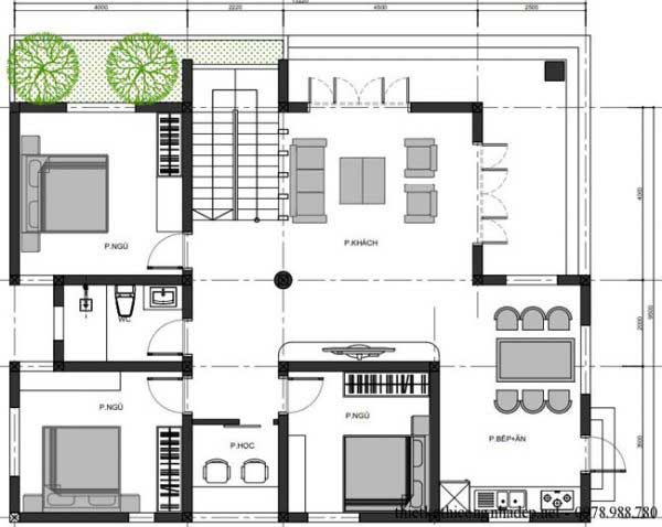
Thiết kế này cực kỳ phù hợp cho những ai đang muốn sở hữu một không gian để hòa mình vào thiên nhiên vì mô hình này sẽ kết hợp nhà ở và sân vườn. Với quy mô 20 × 22 mét, diện tích xây dựng là 9,5 x 13,22 mét, nó cung cấp đầy đủ các không gian sống cho các không gian riêng biệt bao gồm phòng khách, 3 phòng ngủ, 1 phòng học cho trẻ em và nhà bếp và phòng ăn.

Bởi vì nó là điểm nhấn của toàn bộ ngôi nhà, nhìn vào thiết kế tổng thể từ trên cao, bạn có thể nhận ra rằng mái thái là yếu tố nổi bật và ấn tượng nhất, từ đó tạo nên một cái nhìn độc đáo, hấp dẫn người xem. Từ mặt tiền của nhà đẹp cấp 4 mở ra một không gian sang trọng, thiết kế đơn giản nhưng rất thanh lịch. Theo đó, nhiều khung cửa sổ được thiết kế để tận dụng tối đa ánh sáng từ bên ngoài. Phần tum cũng được xây dựng lệch sang một bên để tạo sự thoải mái, tiện nghi.

Phối cảnh tổng thể của toàn mẫu thiết kế này được bao quanh bởi cảnh quan ấn tượng, cách thiết kế thẩm mỹ mang lại không gian sống thoải mái. Điểm nổi bật là khu vườn phía sau tạo ra bầu không khí trong lành, mát mẻ. Ở đây chủ nhà có thể thỏa mãn mong muốn bài trí cảnh quan nhỏ hoặc vài chậu cây cảnh rất hợp lý.

Để có thể hình dung rõ hơn khu vườn phía sau, chúng tôi sẽ gợi ý một hình ảnh để khách hàng dễ dàng nhận thấy. Theo đó, hệ thống cây xanh sẽ được trồng phủ kín mảnh vườn. Để lại một lối đi nhỏ lót cỏ xanh để tạo không gian ấn tượng, mát mẻ và trong lành.

Mặt bằng tầng 1 sẽ có 3 phòng ngủ, trong đó 2 phòng ngủ sẽ dành cho trẻ em và 1 phòng cho không gian riêng tư của bố mẹ.

Từ nóc nhà nhìn từ trên cao xuống, thật dễ dàng để tưởng tượng không gian tổng thể của kiến trúc ngôi nhà.

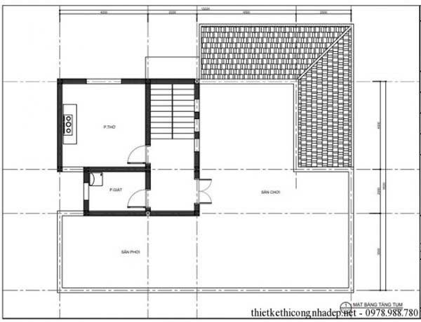
Tầng áp mái sẽ là nơi dành cho không gian thờ cúng linh thiêng, và một phần của sự sắp xếp sẽ là một phòng giặt ủi.

Thiết kế nhà cấp 4 mà chúng tôi giới thiệu ở trên, ngoài điểm nhấn là mái Thái, còn được kết hợp với mái bằng ấn tượng. Để tối ưu hóa không gian và tăng sự tiện lợi cho chủ nhân, gác mái cũng được xây dựng hợp lý và thẩm mỹ, đây sẽ là không gian cho phòng thờ, kết hợp với không gian riêng cho phòng giặt.
Để có thể sở hữu một ngôi nhà cấp 4 mái thái ấn tượng như trên, chủ nhà chỉ cần bỏ ra từ 450-500 triệu đồng để có thể tận hưởng ngay không gian sang trọng, nơi cả gia đình vun đắp hạnh phúc. Hy vọng đây sẽ là một trong những gợi ý thú vị và hấp dẫn cho những khách hàng quan tâm đến thiết kế nhà 4 hiện đại và tiện lợi của kiểu mái thái này.
Nguồn: thietkethicongnhadep.net
Có thể bạn muốn xem thêm:
Những mẫu nhà cấp 4 mái tôn đẹp
Mẫu nhà cấp 4 mái thái hình chữ L
Mẫu nhà cấp 4 mái thái giá 300 triệu
































