- Bạn đang có dự định xây dựng một ngôi nhà mơ ước?
- Chưa có ý tưởng cho ngôi nhà trong tương lại của mình?
- Mong muốn sở hữu nhà sang trọng, tiện nghi và tiện lợi?
- Không gian sinh sống thoải mái? Khu vực sống thoáng đãng?
Thì phương án mẫu nhà phố 2 tầng mái ngói kết hợp sân vườn cây xanh sang trọng này là ý tưởng tuyệt vời dành cho bạn. Nhà phố đẹp này đang là tâm điểm chú ý của nhiều kiến trúc sư và chủ đầu tư tại Việt Nam. Kiến trúc nhà được nhiều người đánh giá cao về cách tối ưu không gian, cách trang trí có thẩm mỹ cao, cách bố trí bản vẽ khoa học. Cùng với nó là những ưu điểm không thể nào kể hết như: Không bao giờ lỗi thời, đáp ứng mọi nhu cầu sống, chi phí xây dựng vừa phải, khối hình chắc chắn, sự tiện nghi. Không quá màu mè về cách trang trí, không quá sang trọng như những căn biệt thự cao tầng, không quá bề thế như những kiến trúc cổ điển nhưng cũng đủ để làm người khác ngước nhìn đó nhé. Sẽ rất tuyệt vời khi sở hữu một ngôi nhà phố 2 tầng có sân vườn đẹp lộng lẫy này làm tổ ấm mơ ước trong tương lại đúng không nào? Hãy cùng chúng tôi chiêm ngưỡng qua mẫu thiết kế nhà phố 2 tầng có sân vườn được yêu thích trong năm 2021 này nhé.
Hình ảnh phối cảnh mẫu nhà phố 2 tầng mái ngói đẹp

Nhà có sân vườn tại đây được chủ đầu tư lựa chọn chủ đề hiện đại làm điểm nhấn, thể hiện qua màu sắc cũng như cách trang trí tinh tế. Nhà thiết kế trên diện tích xây dựng 120m2, trong đó kích thuốc lô đất là 336m2, đây là số diện tích khá thoải mái trong việc thi công nhà đẹp có sân vườn cây xanh xung quanh. Các chi tiết đơn giản, màu sắc trẻ trung, cách trang trí khỏe khoắn là nguyện vọng của chủ đầu tư. Kiến trúc tại đây xây dựng theo kiểu dáng đơn giản nhưng vẫn đảm bảo được sự tiện nghi và tiện lợi, đây là một trong những ưu điểm nổi bật của ngôi nhà này.

Là người khá quan trọng về sức khỏe của các thành viên yêu quý trong gia đình, nên vị chủ đầu tư tại Biên Hòa nhờ đến đội ngũ kiến trúc sư thiết kế sân vườn cây xanh xung quanh khá sinh động. Biết được môi trường tại Việt Nam đang ảnh hưởng nghiêm trọng, khí hậu đang bắt đầu nóng dần lên, nên chủ nhà đã lựa chọn cây xanh làm giải pháp. Như bạn cũng biết, cây xanh không những mang đến bầu không khí trong lành và thoáng đãng, nó còn góp phần tăng tính thẩm mỹ cho phối cảnh mặt tiền nhà phố 2 tầng. Ngắm nhìn các loại cây cảnh do chính bản thân mình chăm sóc hàng ngày, đang là thú vui tao nhã của nhiều người khi bắt đầu một ngày mới đầy năng lượng.
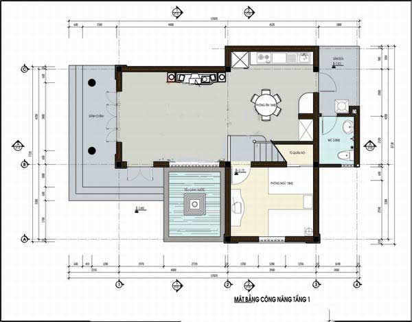
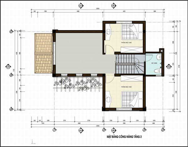
Bản vẽ mặt bằng công năng của thiết kế nhà phố 2 tầng phong cách hiện đại

Mặt bằng tầng 1

Mặt bằng tầng 2
Nhà phố 2 tầng hiện đại này được bao quanh hàng rao bằng bê tông + sắt thép khá kiên cố, liền kề với nó là sân để xe hơi riêng. Khuôn viên phía trước rộng rãi có thể làm sân vui chơi giải trí cho trẻ nhỏ, hoặc tổ chức tiệc tùng cùng các thành viên mà bạn yêu quý. Mái ngói hai chiều có tone màu xám ghi phối hợp hài hòa cùng màu trắng sáng và các chi tiết trang trí. Toàn bộ các khu vực bên trong liên kết nhau chặt chẽ, đem lại cảm giác thoải mái và sự thuận tiện cho các thành viên sinh sống. Bản vẽ nhà phố thiết kế theo hình chữ L, giúp cho kiến trúc sư dễ dàng sắp xếp các căn phòng theo khoa học cũng như hợp phong thủy của chủ nhà.
Mẫu nhà phố hiện đại kết hợp không gian sân vườn đang trở thành là xu hướng mới nhất năm 2021. Đây là kiến trúc hợp thời đại và không bao giờ lỗi xu hướng theo thời gian mà chúng tôi muốn chia sẽ đến mọi người, hi vọng sẽ giúp bạn gợi lên những ý tưởng tuyệt vời trong kế hoạch xây dựng tổ ấm sắp tới.
Nguồn tin: https://wedo.vn/
Xem thêm tin mới:
Mẫu nhà ống 2 tầng 3 phòng ngủ 100m2
Thiết kế nhà phố 2 tầng hiện đại chỉ 700 Triệu


































