Tiếp tục giới thiệu đến khách hàng thiết kế biệt thự 2 tầng, lần này chúng tôi sẽ mang đến một bản vẽ khác vừa hiện đại vừa sang trọng và toát lên sự quý phái. Bài viết sau đây là thông tin liên quan đến bản vẽ biệt thự 2 tầng 8x15m mang lối kiến trúc hiện đại. Mô hình biệt thự 2 tầng đẹp được xây dựng trên diện tích 8x15m với diện tích sàn tầng 1 gồm 120m2 và diện tích sàn tầng 2 gồm 120m2, tổng diện tích: 240m2. Thiết kế này dự kiến sẽ được hoàn thành với chi phí 1,2 tỷ đồng.
Đây là một thiết kế cực kỳ phù hợp cho các gia đình có nhiều thành viên khi có tới 4 phòng ngủ được xây dựng, đảm bảo không gian riêng tư cho mọi người. Phong cách kiến trúc mái thái được áp dụng để vừa tăng tính thẩm mỹ cho ngôi nhà vừa tạo điểm nhấn ấn tượng, thu hút ánh nhìn của người đi đường.
Phối cảnh bản vẽ biệt thự 2 tầng 8x15m kinh phí đầu tư 1,2 tỷ đồng
Đối với bản vẽ này, các nhà thiết kế sẽ chừa lại khoảng không gian trước để làm tiền sảnh và tiến hành xây dựng trên diện tích đất 8x15m. Khu vực tiền sảnh sẽ được chú trọng xây dựng theo thiết kế mái thái hiện đại và 2 cột bê tông.
Các không gian trong nhà sẽ được chia thành hai, một bên sẽ bao gồm phòng ngủ và phòng khách, bên còn lại sẽ là cầu thang, nhà để xe và nhà bếp. Tùy thuộc vào chủ nhà, sẽ có cách sắp xếp không gian sao cho hợp lý và thuận tiện. Một lựa chọn bố trí khác mà khách hàng có thể tham khảo là thay đổi phòng ngủ thành bếp để căn hộ sẽ trở nên rộng rãi và thoáng mát hơn. Để tránh đi lại nguy hiểm cũng như mệt mỏi trong quá trình vận chuyển, phòng ngủ cho người già sẽ được đặt ở tầng một.

Hố trồng cây hiện lên nổi bật ở hai bên tiền sảnh. Tại đây hệ thống tiểu cảnh sẽ góp phần mang lại sự tươi mới, tràn đầy sức sống cho căn nhà. Vì là điểm dừng chân đầu tiên, nên khu vực này tạo được sự ấn tượng sâu sắc, mang màu xanh tràn ngập trong căn nhà. Với tone màu trắng chủ đạo kết hợp với các khung cửa sổ cửa chính sử dụng vật liệu nhôm kính, góp phần tăng thêm sự lung linh, nhẹ nhàng song cũng thật nổi bật và sang trọng. Các đường cong mềm mại ở phần tiền sảnh và các đường góc cạnh tạo cảm giác uyển chuyển nhẹ nhàng nhưng cũng đầy mạnh mẽ, quyền lực và cuốn hút.

Nhìn tổng thể của biệt thự 2 tầng từ góc nhìn này có thể thấy rõ vẻ đẹp và sự hấp dẫn của dự án. Đây là một trong những căn biệt thự lớn với không gian thoáng mát và thoải mái, tận dụng tối đa quỹ đất 240m2 vốn có, ngôi nhà được xây dựng bề thế và khá đồ sộ. Do đó, những khách hàng quan tâm đến thiết kế này sẽ phải cân nhắc kỹ vì chi phí đầu tư xây dựng khá lớn.

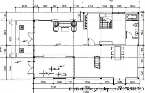
Chức năng sử dụng của mặt bằng tầng 1 sẽ được bố trí với một phòng khách, một phòng ngủ, nhà để xe, khu vực nhà bếp và phòng tắm chung cho cả gia đình ở tầng một. Các không gian được sắp xếp hợp lý để thuận tiện tối đa.

Không gian mặt bằng tầng 2 với 3 phòng ngủ cho các thành viên, 1 phòng khách và phòng vệ sinh cho toàn bộ tầng 2 sử dụng. Cách bố trí chức năng sử dụng hợp lý, thuận tiện cho việc sử dụng.
Trên đây là bài viết về mẫu biệt thự đẹp dạng nhà 2 tầng hiện đại mà chúng tôi muốn giới thiệu với bạn. Đây là một trong những thiết kế ấn tượng, phù hợp với gia đình nhiều thế hệ.
Nguồn: thietkethicongnhadep.net
Xem thêm:
Mẫu nhà biệt thự 2 tầng mái lệch 8x17m
Mẫu nhà biệt thự 2 tầng 100m2 kết hợp sân vườn


































