Bài viết sau đây, chúng tôi sẽ giới thiệu đến các bạn mẫu biệt thự nhà vườn 1 tầng mái thái ở nông thôn với diện tích 11x13m. Có 2 lựa chọn lợp mái được đưa ra, lợp ngói và tôn, tùy thuộc vào sở thích và mong muốn của chủ nhà. Ngôi nhà được thiết kế theo kiến trúc của biệt thự 1 tầng mái thái sử dụng tôn hoặc ngói. Chức năng sử dụng sẽ bao gồm 5 phòng bao gồm 1 phòng khách, 1 bếp và phòng ăn và 3 phòng ngủ cho các thành viên trong gia đình. Diện tích xây dựng biệt thự vườn một tầng là 11x13m = 143 mét vuông.
Hình ảnh phối cảnh mẫu biệt thự nhà vườn 1 tầng mái thái đẹp ở nông thôn

Mẫu nhà đẹp xuất hiện khá lớn và ấn tượng với thiết kế độc đáo và bắt mắt. Theo đó, các màu sắc hòa quyện với nhau tạo nên phong cách thanh lịch, nhẹ nhàng, đáng yêu.

Mái nhà có thiết kế lạ mắt kết hợp các ô cửa được sắp xếp hợp lý để làm nổi bật toàn bộ dự án. Sở hữu diện tích đất rộng ở quê thì thiết kế này sẽ là lựa chọn tuyệt vời dành cho gia đình bạn.

Dù là ngày hay đêm, ngôi nhà vẫn rất sáng và nổi bật với ánh đèn được lắp đặt xung quanh, Bố chậu cây cảnh kết hợp khu vườn xanh được bố trí ở phía trước và hai bên, tạo ra một không gian thoáng mát.
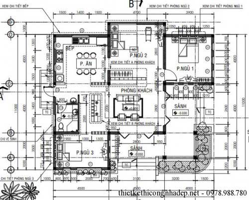
1. Mặt bằng biệt thự 1 tầng

Ngôi nhà mẫu này được thiết kế bao gồm một phần phòng khách được chia thành 2 sảnh với 2 cửa cho phòng khách. Theo đó, phòng khách sẽ được đặt ở vị trí trung tâm và được bao quanh bởi 3 phòng ngủ và 1 phòng ăn. Phòng ăn được bố trí ở cùng một góc của mẫu biệt thự đẹp. Mặt sau của ngôi nhà sẽ mở cửa sau để mang lại sự thông thoáng và thoải mái hơn.
2. Mặt đứng biệt thự 1 tầng

Từ góc nhìn này, khách hàng có thể tưởng tượng rõ hơn không gian để cắt một mô hình biệt thự vườn 1 tầng đẹp ở vùng nông thôn trên diện tích xây dựng 11x13m.
3. Mặt bằng mái biệt thự 1 tầng:

Để giúp quý khách hàng có thêm nhiều sự lựa chọn về kiểu kiến trúc mái, chúng tôi sẽ giới thiệu đến 2 phương án cho mọi người tham khảo. Nếu kiểu kiến trúc thứ nhất chỉ làm mái thái thông thường thì kiểu kiến trúc thứ 2 sẽ có phần mái hiên chạy xung quanh nhà. Vì phức tạp và đòi hỏi kỹ thuật nhiều hơn nên kiểu kiến trúc thứ hai sẽ tốn kém chi phí thi công hơn.
Nguồn: thietkethicongnhadep.net
Xem thêm tin mới:
=> Mẫu nhà biệt thự 1 tầng 3 phòng ngủ
=> Mẫu nhà biệt thự mini 1 tầng có gác lửng


































