Nhà cấp 4 xây dựng theo phong cách mới đang là xu hướng hiện nay của khu vực nông thôn. Những mái nhà cấp 3, cấp 4 ngày xưa đã dần được thay thế bởi những ngôi nhà cấp 4 khang trang hơn, to rộng hơn và phong cách hơn. Trong bài viết hôm nay, chúng ta sẽ cùng tìm hiểu bản vẽ và dự toán xây dựng mẫu nhà cấp 4 hiện nay nhé!
Hiện nay, nhu cầu thiết kế xây dựng kiến trúc nhà cấp 4 vùng nông thôn đẹp và khang trang đang tăng dần. Khi các người con đi xa công thành danh toại và muốn xây dựng cho bố mẹ mình một mẫu nhà thật đẹp tiện dụng để đáp đền 1 phần công ơn sinh thành của bố mẹ. Hay các hộ gia đình ở nông thôn sau vài chục năm tích cóp đã có một số tiền kha khá để xây dựng
Tuy nhiên, việc thiết kế và dự toán xây dựng các mẫu nhà cấp 4 ở quê thì không phải ai cũng rành, hiểu rõ về điều đó. Khả năng nắm bắt thông tin còn chậm, đôi khi đi hỏi nhưng không rõ ràng, khiến mọi người mơ hồ và không nắm bắt rõ vấn đề. Điều quan trọng là phải tìm người uy tín và địa chỉ uy tín để có thể tham khảo. Chắc chắn việc đầu tiên đó là tìm kiếm thông tin trên mạng để tham khảo những bản vẽ và dự toán nhà cấp 4. Tuy nhiên, để có thể hiểu sâu hơn thì khó. Vì vậy, nếu cần người tư vấn trực tiếp hãy liên hệ ngay với chúng tôi, chắc chắn sẽ kỹ lưỡng và đầy đủ nhất thông tin đến bạn.
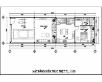
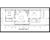
Trong bài viết hôm nay, chúng tôi xin gửi tới các bạn một vài mẫu nhà cấp 4 nông thôn bao gồm mặt bằng, phối cảnh, dự toán xây dựng…. Các mẫu nhà cấp 4 này được thiết kế và quy hoạch từ những năm 2011. Vì vậy các bạn có thể dựa vào chỉ số giá xây dựng công trình để tính dự toán cho hiện tại. ở mỗi một thời điểm chỉ số giá xây dựng có thể khác nhau nên chỉ cần áp dụng công thức như vậy các bạn hoàn toàn có thể tự tính được dự toán xây dựng cho ngôi nhà của mình.
1. Nhà cấp 4 ở và kết hợp kinh doanh
- Diện tích xây dựng: 144 m2
- Dự toán xây dựng: 400 triệu

2. Nhà cấp 4 kinh phí xây dựng 430 triệu
- Diện tích xây dựng: 134 m2
- Dự toán xây dựng: 430 triệu

3. Nhà cấp 4 kinh phí xây dựng 500 triệu
- Diện tích xây dựng: 132.6 m2
- Dự toán xây dựng: 500 triệu

4. Nhà cấp 4 kinh phí xây dựng 550 triệu
- Nhà chính 144 m2
- Nhà phụ ( khối phụ: nhà kho, chuồng trại chăn nuôi….)
- Dự toán xây dựng: 550 triệu

Bản vẽ mẫu nhà đẹp không nhiều, tuy nhiên để đáp ứng yêu cầu của mọi người, chúng tôi đã cố gắng thiết kế những bản vẽ mới hơn, sáng tạo hơn để
phục vụ theo đúng nhu cầu. Những ai cần có một bản thiết kế hoàn chỉnh và đầy đủ nhất hãy để lại mail dưới bài viết này. Chúng tôi sẵn sàng chia sẻ miễn phí cho các bạn.
Dự toán xây dựng mẫu nhà cấp 4 tham khảo
Sau đây là một ví dụ để các bạn có thể và mẫu dự toán nhà cấp 4 này chỉ tính tổng chi phí xây dựng không có chi tiết cụ thể khối lượng nhé các bạn. Dự toán xây dựng nhà cấp 4 năm 2011 của một mẫu nhà cấp 4 là 400 triệu. Trong bảng chỉ số tham khảo thêm: chỉ số giá năm 2011 là 100, theo bảng ta có chỉ số giá xây dựng của quý III/2013 là 97,36% ( nhà ở dưới 8 tầng) . Ta có dự toán của mẫu nhà cấp 4 trong quý III/2013 = 400 x 97,36 : 100 = 389.44 triệu. Trong các mẫu dưới đây chúng tôi có ghi tổng dự toán của từng mẫu nhà cấp 4, vì vậy các bạn áp dụng theo công thức trên để tính dự toán cho cuối năm 2013 vừa qua. Tương tự có thể áp dụng cho các năm khác tùy vào từng thời điểm.

Chỉ số giá xây dựng công trình năm 2013
Chúng tôi là địa chỉ uy tín hàng đầu trong thiết kế Thi công Nhà đẹp. Với phương châm ” khách hàng là ông chủ duy nhất”, chúng tôi luôn đặt ra mục tiêu đặt lợi ích của khách hàng lên trước hết và mong muốn tất cả mọi người đều có được 1 căn nhà ưng ý và hạnh phúc dù nhiều hay ít. Với nhiều năm trong lĩnh vực thiết kế, thi công trọn gói nhà, chúng tôi sẽ không ngừng cố gắng để mang đến những sản phẩm tốt nhất. Nếu bạn cần bản vẽ và dự toán xây dựng mẫu nhà cấp 4 đẹp hiện đại, đừng quên hãy gọi cho chúng tôi để nhận được sự tư vấn tốt nhất nhé.
Nguồn tin: https://thietkethicongnhadep.net/
Có thể bạn muốn xem:


































