Hiện nay, nhà cấp 4 mái thái đang trở thành xu hướng của nước ta. Với những ưu điểm của nó, mái thái dần được ưa chuộng tại Việt Nam. Trong bài này, chúng ta sẽ tìm hiểu sâu hơn về mẫu thiết kế nhà cấp 4 mái thái đẹp có phối cảnh.
Thiết kế nhà cấp 4 mái thái đẹp có phối cảnh có gì mới?
Có lẽ cái tên nhà cấp 4 mái thái đã quá quen thuộc với những ai đã và đang có ý định xây nhà đúng không nào? Mái thái tạo nên sự sang trọng mới lạ cho ngôi nhà bởi sự thu hút vốn có của nó. Thiết kế mái thái tạo điểm nhấn và về công dụng và tính năng của nó thì có lẽ ai cũng biết rồi. Vì thế, lựa chọn mái thái thay cho mái ngói đỏ thông thường là một phương án tốt cho ngôi nhà của bạn.

Thiết kế nhà cấp 4 mái thái hiện nay đang khá nổi
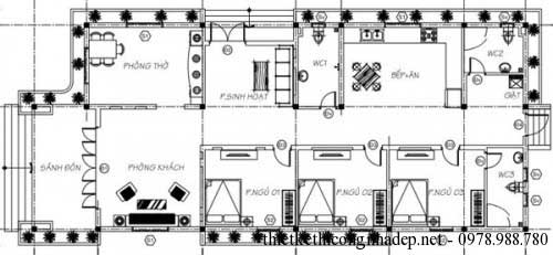
Chúng tôi giới thiệu đến các bạn thiết kế nhà cấp 4 mái thái đẹp có phối cảnh. Ngôi nhà bao gồm mặt bằng, mặt cắt và phối cảnh nhà cấp 4 tổng thể của cả căn nhà. Mẫu nhà cấp 4 mái thái này có diện tích 9 x 21.6 mét nên việc bố trí phòng trong nhà cũng không quá khó.
Tổng thể ngôi nhà được chia thành 3 phòng ngủ, 1 phòng khách, 1 phòng bếp + phòng ăn, 1 phòng thờ và 1 phòng sinh hoạt chung. Khu vực phòng ngủ được chia sang 1 bên và 1 bên là khu vực sinh hoạt chung của gia đình, ở giữa là hành lang nội bộ trong nhà. Ngoài ra còn có 2 phòng vệ sinh, 1 phòng vệ sinh chung, 1 phòng vệ sinh riêng trong phòng ngủ của bố mẹ.
Phối cảnh trong thiết kế nhà cấp 4 mái thái đẹp 2021

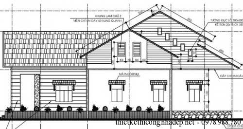
Thiết kế mẫu nhà cấp 4 mái thái thường được xây dựng khá to và rộng. Thiết kế không gian trong phòng cũng phải rộng để thoải mái sinh hoạt trong ngôi nhà của mình. Đẹp, đầy đủ công năng, đơn giản xong cũng không kém phần sang trọng chính là những đặc điểm nổi trội của các mẫu thiết kế nhà cấp 4 mái thái ở nông thôn Việt Nam. Mẫu thiết kế nhà cấp 4 mái thái ở nông thôn sẽ rất phù hợp bởi diện tích đất rộng. Ngôi nhà có kết cấu mái thái lớn, toàn bộ hệ mái tuân theo kết cấu bê tông chịu lực sau đó dán ngói thái theo quy trình.

Đặc biệt dáng mái xuôi 2 chiều nên khả năng thoát nước rất nhanh, hệ mái đua ra 1m giúp che chắn đảm bảo nắng mưa không tạt vào nhà. Với mục đích tạo sự tương phản màu sắc thu hút sự chú ý của người nhìn, chúng ta có thể khéo léo sử dụng màu trắng để sơn cho các mảng tường lớn tại phần thân ngôi nhà cấp 4 nông thôn. Rõ ràng sự tương phản màu sắc ngoại thất đã làm toát lên phong cách sang trọng khi nhìn vào hình ảnh nhà cấp 4 mái thái đẹp.

Mặt bằng bố trí phòng

Mặt bằng phòng bếp

Mặt đứng chính

Mặt bên
Sự kết hợp khéo léo giữa phòng khách và khu phòng ăn, không gian phòng rất rộng rãi và sạch sẽ sang trọng với nhiều ô cửa sổ thoáng và hai lối đi lớn giúp mọi người dễ dàng sinh hoạt. Khu phòng thờ ở phía bên trong được bố trí bộ bàn thờ lớn là nơi thờ cúng tổ tiên của mọi thành viên trong gia đình.
Nếu các bạn có nhu cầu tư vấn thiết kế mẫu nhà cấp 4 mái thái đẹp có phối cảnh xin vui lòng liên hệ với chúng tôi, đội ngũ kiến trúc sư chúng tôi sẽ hết lòng để phục vụ các bạn. Phương châm làm việc “khách hàng là ông chủ duy nhất”, chắc chắn sẽ có những bản thiết kế nhà cấp 4 mái thái đẹp có phối cảnh hiện đại, độc đáo khiến các bạn hài lòng.
Nguồn tin: https://thietkethicongnhadep.net/
Tin hot liên quan => Những mẫu nhà cấp 4 giá 300 triệu


































