Các cụ ta vẫn dạy con cháu rằng: “đàn ông xây nhà, đàn bà xây tổ ấm” câu nói trên với hàm ý chỉ sự quan trọng và cần thiết của mái ấm gia đình đối với mỗi con người chúng ta. Hiện nay có rất nhiều kiểu nhà đẹp, thời thượng cho các quý gia chủ lựa chọn song mẫu nhà 3 tầng 5x10m có lẽ vẫn là sự lựa chọn tốt nhất bởi các thế mạnh về độ bền vững, tính thẩm mĩ và giá thành phù hợp mà nó mang lại. Mời các bạn hãy cùng theo dõi những chia sẻ cụ thể của chúng tôi dưới đây về mẫu nhà đẹp 3 tầng đang được quan tâm nhiều nhất này.

Bản vẽ đầy đủ nhất cho mẫu nhà 3 tầng 5x10m bạn đã biết
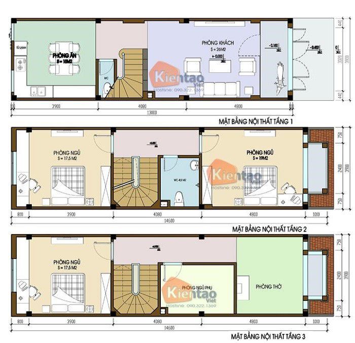
Đây là bản mô phỏng hình ảnh thu nhỏ đầy đủ nhất của nội thất cũng như ngoại thất mẫu nhà 3 tầng 5x10. Kiểu thiết kế này đặc biệt ở chỗ có thêm phần gác lửng làm mở rộng thêm không gian của ngôi nhà đảm bảo cho sự riêng tư của gia đình có nhiều thành viên sinh sống.

Tại sao mô hình nhà ở theo kiểu thiết kế nhà ống lại được ưa chuộng nhiều đến vậy? Chúng ta hãy cùng tham khảo bàn vẽ chính xác nhất của mẫu nhà 3 tầng 5x10 trên đây. Mặt bằng 3 tầng phân khu rõ ràng mà trong đó từ nội thất cho đến các phòng đều có sự tính toán sao cho phù hợp nhất với từng không gian sử dụng của gia đình. Đối với mặt bằng tầng 1 được thiết kế với một phòng khách sang trọng và rộng rãi. Mẫu nhà ống 3 tầng 5x10 này chính là sự góp mặt của mẫu thiết kế mới trong xây dựng đó là kiểu nhà tầng sàn lệch có thể “ ăn gian” diện tích nhà bạn và mở rộng không gian lớn nhất trong cùng một nếp nhà.
Tầng 1 gồm hai gian chính là phòng khách rộng và được tính toán phù hợp với hướng nhà, tiếp đến bên trong là nhà bếp. Khu này chiếm diện tích lớn nhất vì nó còn được chia thành các phòng nhỏ hơn như: phòng ăn, nhà vệ sinh phụ, bếp nấu. Vì là sàn lệch nên các phòng sẽ không đảm bảo cân đối và thẳng nhau kể cả tầng 2 và tầng 3 cũng vậy. Lên đến khu vực tầng 2 gia chủ tập trung bố trí làm khu vực phòng ngủ của các thành viên. Phần sàn thấp được chia làm hai phòng ngủ của con cái và một phòng vệ sinh chung cuối dãy tầng. Còn phần sàn cao được thiết kế làm phòng ngủ của bố mẹ với nhà vệ sinh khép kín bên trong. Trên tầng 3 cũng được chia làm hai khu vực. Phần hướng ra ngoài được làm phòng thờ trang trọng và thoáng sáng
Màu sơn và cách trang trí cũng ưu tiên những màu trầm cùng những vật dụng đơn giản, bình dị. Phần sàn còn lại gia chủ dùng để thiết kế một phòng ngủ cho khách,một phòng vệ sinh và sân phơi nhỏ để những ngày mưa dễ dàng hòn phơi quần áo đồ dùng. Nếu ai đó còn hoài nghi về sự tối giản mà tiện ích thì không thể bỏ qua được bản vẽ cho mẫu nhà 3 tầng 5x10 này được. Đặc biệt gia cư này còn rất thông thoáng bởi hệ thống cửa sổ dày đặc và lối hành lang hút gió trời mát mẻ.
Ngoài ra hình ảnh cầu thang hình xoắn ốc cũng làm nổi bạt lên vẻ đẹp ngôi nhà. 3 tầng, 3 sanfd tương ứng với ba cầu thang lên xuống đặt ngay chỗ giao của sàn nhàn. Để tiết kiệm tối đa diện tích và công năng sử dụng, gia chủ còn tận dụng chân cầu thang của tầng 1 làm nhà vệ sinh phụ, chân cầu thang tầng 2 làm tủ chứa đồ với cửa khép kín và bên trọng rộng rãi rất tiện ích.
Phối cảnh đẹp nhất của mẫu nhà 3 tầng 5x10
Như một quy luật của cuộc sống, cái đẹp chân thực sẽ luôn tồn tại mãi với thời gian và những kiệt tác kiến trúc nhà ở 3 tầng 5x10 sau đây chính là điển hình của câu nói này. Nhìn từ góc độ bên ngoài dưới nền trời xanh mây trắng ngôi nhà 3 tầng đẹp như một bức tranh bởi chính không gian hoà hợp cùng thiên nhiên và màu sơn dịu mát. Toàn bộ cánh cửa, ô thoáng đều được bố trí ở những vị trí cần thiêt để tăng ánh sáng tự nhiên ấm áp đón lộc khí vào nhà

Lan can màu trắng tinh tế đồng điệu cùng gam màu cửa chính và nước sơn càng tăng thêm tính hiện đại vốn có của ngôi nhà 3 tầng 5x10 này.
Một ngôi nhà 3 tầng hình hộp gần như hoàn hảo từ kiến trúc hình hộp đến màu sơn sang trọng. Điểm nhấn của ngôi nhà 3 tầng này chính là hình ảnh mái dốc độc đáo mà chủ nhà đã lên ý tưởng rất kĩ càng. Trên tầng áp mái này vừa duy trì được một phòng ngủ lại có cả một sân vườn trên cao để cả nhà cùng thư giãn trò chuyện mỗi ngày. Tuy nhiên để tăng thêm tính hiện đại cho ngôi nhà thì phải đặc biệt chua ý đến màu sơn gần như giống với màu gạch nguyên bản và những mặt tiền được trang trí xếp li cầu kì kiểu cách. Kết hợp với ô cửa kính mở xoay cùng tông màu cà phê càng tăng thêm sự sang trọng cho “đứa con tinh thần” đẹp đẽ này. Nhìn vào gia cư này ai cũng chỉ có thể trầm trồ và mơ ước được sở hữu.

Tiếp theo đây mời quý gia chủ tiếp tục chiêm ngưỡng một ngôi nhà ống 3 tầng 5x10 trang nhà và đơn giản. Với tông màu kem chủ đạo hoà cùng màu xanh của cây cối và những giò hoa trang trí hẳn gia chủ của ngôi nhà là người rất tinh tế và tao nhã. Đáng yêu nhất vẫn chính là khung nhà chữ G bao lấy toàn bộ mặt tiền của mỗi tầng. Vê đẹp này chính là sự sáng tạo độc đáo của đội ngũ kiến trúc sư tài năng và giàu ý tưởng.

Còn đây chính là thiết kế nhà ống 3 tầng chữ Z đang được tìm kiếm nhiều nhất hiện nay. Với lối kiến trúc hình khối đơn giản nhưng khoẻ khoắn bắt mắt. Mẫu nhà ống 3 tầng 5x10 này thực sự là một tư gia rất hiện đại. Mặc dù xây dựng theo lối nhà ở khép kín nhưng các thành viên sống trong đó vẫn cảm nhận được sự thoáng đãng và mát mẻ k hề bị gò bó hay bí bách. Bởi lẽ, ngôi nhà được thiết kế với cửa chính dài rộng, bên trên là giến trời hút gió đồng thời kết hợp làm vườn sinh thái rất tiện lợi. Quả là những ý tưởng hay nhằm nâng cao cuộc sống của chúng ta.

Cùng thâm nhập và tìm đến những thiết kế nội thất của mẫu nhà 3 tầng 5x10
Để đánh giá sự hoàn thiện của một ngôi nhà thì nội thất bên trong là điều không thể bỏ qua. Mời quý độc giả hãy cùng chúng tôi cùng chiêm nghưỡng một không gian như mơ của mẫu nhà 3 tầng 5x10 cả về kiến trúc bên ngoài và nội thất bên trong. Ánh đèn trùm cổ điển, những bức tranh tĩnh mịch có lẽ vẫn không thể lấn át được không gian tinh tế đậm tính hiện đại này. Có lẽ nét đẹp cổ điển và truyền thống đặc trưng của kiến trúc đã hội tụ đầy đủ trong không gian phòng khách này.

Vẫn là không gian phòng khách ấy nhưng dường như nở đây có sự yên ắng hơn. Thứ gì đã làm nên điều đó? Phải chăng chính là sự mơ màng của ánh sáng đã bao trùm lên khắp không gian và sự thiết kế thoáng đãng của ngôi nhà? Nếu liện quan về mặt cảm xúc thì có lẽ những nơi ở như thế này sẽ khiến chủ nhà và các thành viên luôn cảm thấy bình yên và hạnh phúc.

Còn đây là một lát cắt của nhà tắm khong khu vệ sinh khép kín của phòng ngủ tầng 2. Mặc dù diện tích khiêm tốn xong vẫn đáp ứng được đầy đủ tính năng sử dụng của một nhà tắm. Nội thất của nó luôn đảm bảo bền bỉ, đẹp đẽ bởi lớp tráng men cao cấp từ bồn tắm, bồn rửa tay đến cả những chiếc gương soi.

Và một không gian không thể thiếu trong ngôi nhà của chúng ta đó chính là nhà bếp. Được xem là nơi “ giữ lửa” của nữ chủ nhân nên phòng bếp luôn được sắp đặt một các tỉ mỉ, chu đáo từ vị trí đặt bếp ga, tủ, dụng cụ cho đến bàn ăn phải luôn đảm bảo tính thẩm mĩ và sự ngăn nắp. Chưa kể đến màu sơn được lựa chọn làm bừng lên cảm giác ấm cúng của cả gia đình. Có lẽ chính bởi tình cảm dành cho căn bếp của mình quá lớn lao nên người “ nghệ sĩ” xây dựng mới cho ra những mấu thiết kế nội thất hoàn hảo như thế này.

Với những chia sẻ về mẫu nhà tầng nói chung và cụ thể mẫu nhà 3 tầng 5x10 chúng tôi mong rằng sẽ giúp cho quý độc giả tìm chọn cho gia đình mình một mẫu nhà tiện nghi và thẩm mĩ nhất. Hãy đến với xaydungso để được hỗ trợ tốt nhất từ ý tưởng đến thi công. Kính chúc mọi công trình luôn bền đẹp mãi với thời gian và các thế hệ gia đình Việt.


































