Kiểu nhà cấp 4 có 2 phòng ngủ hiện nay đang được nhiều gia đình yêu thích bởi thiết kế đơn giản, công năng tiện lợi và tiết kiệm chi phí.Do đó mẫu nhà cấp 4 có 2 phòng ngủ mang phong cách hiện đại cũng là một trong những mẫu nhà cấp 4 được các gia đình trẻ hiện đại đặc biệt yêu thích. Bạn có thể tìm hiểu những mẫu nhà cấp 4 có 2 phòng ngủ đẹp, hiện đại qua bài viết này để có thêm những ý tưởng hay cho ngôi nhà của gia đình mình nhé!
Đặc điểm của mẫu nhà cấp 4 có 2 phòng ngủ
Nhà cấp 4 có 2 phòng ngủ là kiểu nhà được xây ngày càng phổ biến ở nước ta. Tuy nhiên, so với trước đây, mẫu thiết kế nhà cấp 4 sử dụng những đường nét tinh tế và nội thất hiện đại, mang đến sự thoải mái, dễ chịu cho các thành viên trong gia đình

Kiểu nhà 2 phòng ngủ thường có những đặc điểm sau:
- Diện tích xây dựng hiện tại rất nhỏ, dưới 120m2, chiều cao của các căn nhà này không cao. Thường chỉ có một căn nhà nhỏ 2 phòng ngủ đậu ở tầng một.
-Có rất nhiều mẫu mái tôn khác nhau được thiết kế cho gia chủ. Bạn có thể thoải mái lựa chọn ví như có thể linh hoạt lựa chọn nhà xưởng mái bằng, mái thái, mái dốc… theo gu thẩm mỹ và sở thích của gia chủ.
-Có thể được thiết kế thành nhiều kiểu dáng khác nhau như từ cổ điển đến hiện đại, từ kiến trúc truyền thống Á Đông đến Châu Âu, có rất nhiều phong cách cho bạn lựa chọn. Nhà cấp 4 có 2PN, chữ U, chữ L, chữ T ...
-Ví dụ không gian trong nhà cấp 4 nhỏ xinh với các công năng riêng biệt. Phòng ngủ, phòng khách, bếp, khu nấu nướng. Khu vui chơi giải trí gia đình… phù hợp nhất với thị hiếu gia đình.
Lợi ích của thiết kế nhà cấp 4 có 2 phòng ngủ
- Mẫu thiết kế nhà cấp 4 2 phòng ngủ rất phù hợp với những gia đình có diện tích nhỏ hạn chế. Xây nhà cấp 4 2 phòng ngủ sẽ giúp gia chủ tận dụng được tối đa diện tích sân vườn, đồng thời tận dụng không gian để trồng thêm cây xanh, thông thoáng sân vườn.
- Nhà cấp 4 có 2 phòng ngủ đảm bảo không gian sống thoải mái với phòng khách, 2 phòng ngủ đảm bảo sự riêng tư nhất định. Những gia đình có từ 4-6 thành viên có thể lựa chọn mẫu thiết kế nhà cấp 4 này.
- Mọi thế lực siêu nhiên đều tập trung ở tầng 1 nên quá trình di chuyển, sinh hoạt diễn ra tốt hơn. Các thành viên luôn có ý thức tập hợp, nhiệt tình nhưng không thái quá như những tòa nhà cao tầng. Đặc biệt với những gia đình có người già thì mẫu nhà cấp 4 là sự lựa chọn không thể tuyệt vời hơn để đảm bảo sự an toàn nhất định.
- Mẫu nhà cấp 4 2 phòng ngủ đa dạng về kiểu dáng và mẫu mã nhưng chi phí xây dựng và thời gian thi công sẽ không quá nhiều có thể tiết kiệm chi phí một cách tối đa, tùy thuộc vào sở thích của người sử dụng và diện tích đất. chủ nhà có thể chọn một trong những phù hợp với gia đình của bạn.
Khác với những mẫu nhà cấp 4 3 gian ngày xưa, các mẫu nhà cấp 4 hiện nay được thiết kế theo kiểu nhà vườn, nhà có gác lửng, nhà ống phù hợp với nhiều diện tích đất khác nhau. Hôm nay, Xaydungso xin giới thiệu mẫu thiết kế nhà 2 phòng ngủ đẹp để các bạn tham khảo nhé.
Mẫu nhà mái thái 2 phòng ngủ đẹp hiện đại

Mẫu biệt thự 2 phòng ngủ mái thái đẹp hiện đại và sang trọng trên đây chỉ là gợi ý đầu tiên dành cho bạn. Qua hình ảnh bạn có thể thấy, màu trắng nhẹ nhàng được chọn làm tông màu chủ đạo, phần chân được trang trí bằng những mảng màu riêng biệt tạo điểm nhấn.

Mái thái đỏ tươi không chỉ đảm bảo tính thẩm mỹ mà còn giúp ngôi nhà cấp 4 trở nên thoáng mát bên trong. Mái dốc hình chữ A, các cửa chính đua ra phía trước tạo sân thượng thoáng mát. Kết hợp với đó là cửa kính giúp ánh sáng tự nhiên tràn vào.
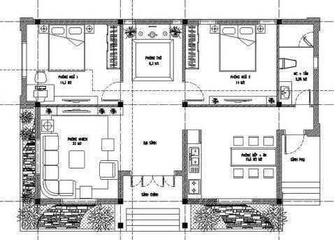
Mặt bằng Nhà cấp 4 có 2 phòng ngủ đẹp

Mời các bạn tham khảo phương án thiết kế nhà cấp 4 mái thái hiện đại, các phòng trong ngôi nhà này được phân chia khoa học đáp ứng công năng trong quá trình sử dụng. Phòng khách, bếp và phòng ăn, phòng ngủ đều được thiết kế thông thoáng, có cửa sổ, được bố trí gọn gàng mang đến cho bạn không gian sống thoải mái và thư giãn riêng tư nhất.
Mẫu nhà cấp 4 có 2 phòng ngủ 1 phòng thờ mái thái hiện đại
Mẫu nhà cấp 4 mái thái 2 phòng ngủ 1 phòng ngủ mái chéo siêu đẹp. Diện tích xây dựng với diện tích 5x20m đơn giản, bắt mắt và vô cùng tiện nghi. Diện tích xây dựng 100m2, có 2 phòng ngủ khá rộng rãi, phòng thờ và khu phòng khách, sân phơi. Nó sẽ đặc biệt phù hợp với những cặp đôi trẻ mới cưới.

Tổng quan mẫu nhà cấp 4 2 phòng ngủ với thiết kế đơn giản nhưng không hề đơn điệu, ngôi nhà sử dụng tông màu xanh kết hợp với hệ thống mái thái uyển chuyển ấn tượng tạo điểm nhấn. Mặt tiền rộng rãi được thiết kế sân trước cây xanh nên cảnh rất đẹp.

Hiện nay rất nhiều cặp vợ chồng trẻ thích mẫu nhà cấp 4 màu xanh dương này với thiết kế trẻ trung, thời thượng. Với kinh phí vừa và khá là bạn đã có thể có được một ngôi nhà cấp 4 đẹp lung linh như thế này rồi.

Mặt tiền mẫu thiết kế nhà cấp 4 rộng rãi, thoáng mát. Những bức tường gạch chỉ vô cùng sang trọng và hiện đại. Hệ thống trụ đứng đơn giản không có quá nhiều chi tiết tẻ nhạt.

Từ trong ra ngoài, thiết kế phòng khách từ tiền sảnh đến khu vực phòng khách đều rất gần gũi. Ngăn cách không gian bên trong bằng các bức tường. Phòng thờ đi vào bên trong được thiết kế thoáng sáng và rộng rãi. Bên trong là diện tích gồm 2 phòng ngủ. Trong cùng là nhà vệ sinh. Ngôi nhà cũng có một khu vườn nhỏ, nhưng độc đáo và quyến rũ.
Mẫu nhà cấp 4 có 2 phòng ngủ 1 phòng khách sang trọng
Mẫu phòng khách hiện đại 4 tầng 2 phòng ngủ được thiết kế theo kiểu 3 gian mang đến không gian sống thông thoáng cho những gia đình nông thôn sở hữu diện tích đất rộng và yêu thích thiên nhiên.
Phong cách hiện đại đơn giản với tường vôi trắng nhẹ nhàng nhưng khung cửa chính, cửa sổ kính màu nâu sẫm hài hòa và mái tôn đảm bảo tính đồng bộ cho mẫu nhà đẹp.

Sân trước và sân vườn đầy cỏ mang đến một khung cảnh yên bình, tuy không có hoa văn rườm rà hay trang trí công phu nhưng vẻ đẹp yên bình giản dị của nó đã chinh phục hàng triệu người.

Thiết kế đầy đủ các công năng của nhà 1 trệt 4 lầu 2 phòng ngủ 1 phòng khách. Phòng khách sát cửa chính với bộ bàn ghế sofa cao cấp và liền kề phòng ăn với bếp tạo không gian sinh hoạt chung tối ưu diện tích hiệu quả.
Hai phòng ngủ, đầy đủ tiện nghi, bố trí nội thất gọn gàng giúp cho việc nghỉ ngơi, thư giãn đảm bảo sự riêng tư và yên tĩnh nhất định.
Mẫu nhà cấp 4 có 2 phòng ngủ với mức giá vừa bình ổn

Phối cảnh mặt tiền mẫu thiết kế nhà cấp 4 giá rẻ hiện đại sang trọng, mái thái chữ A màu nâu, mái dài nghiêng về phía trước hạn chế tốt tình trạng này không có nắng mưa bên trong.
Ngôi nhà giá rẻ được lát đá bậc thềm sang trọng, khuôn viên cây xanh tận dụng diện tích nhỏ phía trước tạo sự gần gũi với thiên nhiên. Cửa kính được sử dụng để lấy ánh sáng tự nhiên mang lại bầu không khí trong lành.
Mặt bằng mẫu nhà cấp 4 có 2 phòng ngủ giá rẻ

Các vị trí công năng gồm phòng khách, đại sảnh bếp và phòng ăn, 2 phòng ngủ, phòng thờ, khu vệ sinh được bố trí khoa học, phân chia diện tích phù hợp đáp ứng công năng của khu nghỉ dưỡng. Nghỉ ngơi cho gia đình.
Nhà cấp 4 được thiết kế 2 phòng ngủ và 1 phòng thờ.

Mẫu thiết kế nhà cấp 4 2 phòng ngủ 1 phòng thờ đẹp hiện đại nhưng khi cửa chính hiện nay có cửa vòm cong và hệ thống cột vững chắc thì thiết kế này vô cùng tinh tế. Ngôi nhà tầng 4 chủ đạo là màu trắng nhưng những mảng tường ốp đá cao cấp màu vàng vừa là điểm nhấn vừa tôn lên vẻ sang trọng cho ngôi nhà.
Mẫu nhà cấp 4 2 phòng ngủ sử dụng mái dốc màu nâu và mái dài để tránh mưa nắng chiếu trực tiếp vào cửa sổ trong nhà.

Các công năng bao gồm: phòng khách, phòng bếp + ăn, 1 phòng thờ, 2 phòng ngủ và 1 phòng vệ sinh
Ngôi nhà được chia làm hai phần, sử dụng chung không gian sinh hoạt như phòng khách, bếp và phòng ăn nằm liền kề nhau ở bên phải, còn phòng ngủ và phòng thờ nằm ở nửa bên trái của ngôi nhà. Không gian riêng và yên tĩnh, nghỉ ngơi thoải mái.
Phương án bố trí trong nhà hợp lý và phân chia diện tích hợp lý khiến ngôi nhà cấp 4 tuy không lớn nhưng vẫn có thể đảm bảo được công năng và tính thẩm mỹ nhất định.
Một số góc nhìn mẫu nhà cấp 4 có 2 phòng ngủ 1 phòng thờ đẹp
Đối với kiểu nhà cấp 4 2 phòng ngủ 1 phòng không gian phải đảm bảo được sự gắn kết nhất định nhưng đồng thời cũng phải có sự riêng tư. Diện tích nhà cấp 4 không quá lớn nhưng vẫn đảm bảo được công năng sử dụng thông qua cách thiết kế và bố trí khoa học. Một số không gian thiết kế đẹp khác trong mẫu nhà cấp 4 2 phòng ngủ 1 phòng thờ như sau:

Không gian sống đẹp và bài trí khoa học. Thiết kế đẹp, sảnh chính hiện đại, cầu thang trang trí hài hòa. Liên thông phòng khách và phòng bếp để đảm bảo diện tích sử dụng của ngôi nhà được tốt nhất. Có thiết kế 2 phòng ngủ và 1 vệ sinh lớn bên trong cho cả gia đình vừa tiết kiệm diện tích vừa đảm bảo nhu cầu sử dụng của các thành viên trong gia đình.

Mẫu nhà cấp 4 đẹp được thiết kế khanh trang, tinh tế. Mẫu thiết kế nhà cấp 4 mái thái này được trang trí đẹp mắt, diện tích rộng rãi càng thu hút hơn. Phòng khách rộng, điểm nhấn là không gian bên ngoài với khu thư giãn, nơi có cây xanh thú vị. Phòng ngủ, phòng bếp và các khu vực sinh hoạt khác được bố trí hài hòa, tinh tế đảm bảo công năng sử dụng thuận tiện nhất cho các thành viên trong gia đình.
Trên đây là một số mẫu nhà cấp 4 có gác lửng được ưa chuộng nhất hiện nay mà http://xaydungso.vn/gửi đến các bạn. Hi vọng bạn sẽ tìm được ý tưởng cho ngôi nhà sắp tới của mình!
































