Mẫu nhà cấp 4 xưa nay vẫn là mẫu nhà được ưa chuộng tại Việt Nam, đặc biệt là ở khu vực nông thôn nơi có diện tích đất rộng. Bạn đang sở hữu lô đất rộng 6m và có ý định xây dựng một ngôi nhà cấp 4. Bài viết của chúng tôi hôm nay giúp quý khách có được mẫu nhà cấp 4 rộng 6m đẹp nhất hiện nay.
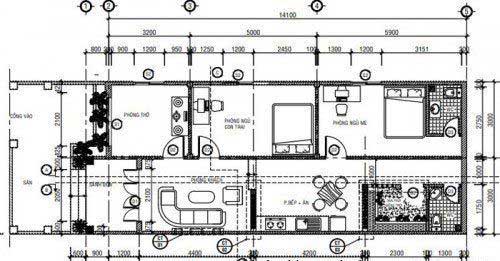
Mẫu nhà cấp 4 rộng 6m với 3 phòng ngủ mái thái
Mẫu thiết kế dưới đây có diện tích bề ngang là 6m và diện tích chiều dài là 17m. Ngôi nhà được thiết kế khá phổ biến ở nước ta hiện nay. Nó có mặt ở khắp mọi nơi trên mọi miền Tổ Quốc. Ngôi nhà được ưa chuộng bởi hình thức mái thái mới mẻ không bao giờ lo lỗi thời. Phần mái chính là điểm nhấn của ngôi nhà. Bạn có thể lựa chọn hệ mái ngói màu xanh, màu ghi xám, màu đỏ. Dù mái ngói là màu nào thì nó cũng thực sự nổi bật dưới một nền màu trắng của ngôi nhà.

Ngôi nhà được thiết kế thông thoáng với mặt tiền khá rộng rãi, có nhiều cửa sổ đưa nguồn ánh sáng tự nhiên vào phòng. Ngôi nhà này rất thích hợp khi được xây dựng ở vùng nông thôn hoặc là vùng ngoại ô của thành phố nhằm tận dụng tối đa dự thông thoáng.
Bản thiết kế này là ngôi nhà cấp 4 có diện tích ngang là 6m và dài là 17m được thiết kế với 3 phòng ngủ. Mặt tiền của ngôi nhà cấp 4 này có diện tích là 6m. Ngôi nhà được thiết kế theo đúng chuẩn mẫu nhà cấp 4 hiện đại theo phong cách mới nhất hiện nay. Nếu như mẫu nhà cấp 4 trước kia ở khu vực nông thôn không được chia thành những phòng ngủ riêng biệt có chăng thì cũng chỉ là chiếc buồng quầy.

Hiện nay mẫu nhà cấp 4 3 phòng ngủ tiện nghi, mỗi thành viên trong gia đình có những khoảng riêng tư thoải mái nhất. Bản vẽ trên đây được thiết kế với các phòng chức năng cụ thể là: 1 phòng khách, 1 phòng thờ, 3 phòng ngủ, 1 phòng bếp và phòng ăn được lối liền , 1 phòng wc chung.
Đối diện với phòng khách sẽ là phòng thờ được thiết kế riêng biệt không ảnh hưởng đến cuộc sống sinh hoạt của gia đình, để tách biệt không gian riêng tư thì đi qua phòng khách là 3 phòng ngủ. Còn phòng bếp và phòng ăn được thiết kế kéo ra sau cùng để tạo không gian thoải mái cho mọi sinh hoạt, mùi thức ăn khi chế biến cũng không ảnh hưởng đến không gian chung của ngôi nhà.
Mẫu nhà cấp 4 chiều rộng 6m chiều dài 16m đơn giản
Tiếp tục là mẫu nhà cấp 4 được thiết kế theo hình thức mái thái có chiều rộng là 6m và chiều dài là 16m. Hình thức ngôi nhà được thiết kế khá đơn giản nhưng đã ghi lại dấu ấn đẹp cho rất nhiều chủ đầu tư. Ngôi nhà nổi bật với màu mái ngói đỏ tươi dưới sắc trắng của màu sơn.

Phía trước cửa chính của ngôi nhà được thiết kế với 1 ô cửa chính và 2 cửa sổ hai bên bằng khung gỗ nâu trầm kết hợp với kính trong suốt, khiến cho ngôi nhà luôn được thông thoáng, rộng rãi. Đội ngũ kiến trúc sư dưới bàn tay tài hoa đã vận dụng một cách linh hoạt những điểm mới của một nền kiến trúc hiện đại nhằm tạo ra một phong thái nhã nhặn tràn đầy sức sống.
Bản thiết kế trên đây rất chi tiết về mẫu nhà cấp 4 có chiều rộng là 6m và chiều dài là 16m phù hợp với 3 phòng ngủ. Về phía mặt tiền của ngôi nhà và tổng quan vẻ ngoại thất của ngôi nhà cấp 4 này chúng ta thấy khá tiết kiệm chi phí vì vật liệu trang trí không có nhiều, vẻ đẹp được tạo nên bằng sự đơn giản, hiện đại.

Màu sơn trắng sáng là màu chủ đạo cho toàn bộ căn nhà. Diện tích xây dựng của ngôi nhà này là 96m2 nhưng công năng của mẫu nhà cấp 4 này mang lại khá lớn cho cuộc sống sinh hoạt của gia đình từ 4 – 5 thành viên. Để đảm bảo một không gian sống tiện nghi, đầy đủ mỗi thành viên trong gia đình đều có khoảng không gian riêng tư thì mẫu thiết kế này được bố trí với 3 phòng ngủ. Trong đó phòng khách và phòng thờ được đặt ở trước tiên tiếp đến là 3 phòng ngủ và cuối cùng là phòng bếp, nhà tắm, nhà vệ sinh chung.
Mẫu nhà cấp 4 có diện tích chiều ngang 6m chiều dài 18m
Với diện tích thiên về chiều dài tới 18m, yêu thích sự mộc mạc gần gũi với thiên nhiên cùng cỏ cây, hoa lá bạn có thể tham khảo mẫu thiết kế trên đây của chúng tôi. Ngôi nhà có diện tích chiều ngang 6m được làm ở trung tâm của lô đất và xung quanh được thiết kế như một khu vườn nhỏ.

Xét theo tổng thể của ngôi nhà cấp 4 này được lựa chọn gam màu chủ đạo vẫn là màu trắng sáng. Có lẽ đây là gam màu phổ biến nhất cho những ngôi nhà có diện tích tương đối hẹp. Dưới nền màu trắng chúng ta càng thấy sự nổi bật của mái đỏ của ngói và khung cửa gỗ với đường vân sắc nét. Đồng thời cũng làm ngôi nhà gần gũi với thiên nhiên hơn.
Mặt tiền nhà cấp 4 có diện tích 6×18m tuy hẹp những được thiết kế khá thoáng đãng. Ngôi nhà đầy đủ tiện nghi được chia làm 3 phần rõ rệt. Phòng khách được ưu ái nhất về diện tích khi được bố trí với bộ bàn ghế salon, kệ ti vi nhỏ gọn cùng một số vật dụng trang trí khác. Mẫu nhà cấp 4 này được thiết kế với 2 phòng ngủ rất phù hợp với những đôi vợ chồng trẻ ra ở riêng.

Phía trong căn bếp có 1 cửa phụ đi thẳng vào khu vực bếp chính, trên bản vẽ chúng ta thấy rõ sự bố trí không gian bếp với chiếc tủ bếp chữ L tiết kiệm không gian. Mẫu nhà này này có 2 phòng vệ sinh, 1 phòng được thiết kế cái có cửa thông với phòng ngủ tiện lợi trong sinh hoạt nhất là về khuya, nhà vệ sinh còn lại thông với bếp.
Mẫu thiết kế nhà cấp 4 rộng 6m dài 15m mái chữ A
Với diện tích rộng 6m và dài 15m mẫu nhà này được thiết kế để phần mặt tiền trước nhà thoáng đãng, rộng rãi. Bạn có thể đậu ô tô ngay khu vực sân trước nhà. Ngôi nhà được lấy ý tưởng với hệ mái chữ A xếp chồng lên nhau. Nổi bật là hệ cửa gỗ tự nhiên làm tên nên vẻ đẹp mộc mạc của ngôi nhà cấp 4.

Mẫu thiết kế nhà cấp 4 có diện tích ngang 6m dài 15m này được chia làm 2 phần rõ rệt: 1 bên được thiết kế với các phòng ngủ là khoảng riêng tư cho các thành viên trong gia đình. Khu vực còn lại là không gian sinh hoạt chung để cả gia đình có thể quây quần bên nhau sau một ngày dài làm việc.
Cửa phòng ngủ và phòng thờ của ngôi nhà cấp 4 này được thiết kế hướng ra phòng khách. Phòng thờ được thiết kế riêng biệt tách hẳn để có một không gian yên tĩnh thể hiện sự thanh tịnh, tôn nghiêm lòng thành kính của con cháu với ông bà tổ tiên.

Cả 2 phòng ngủ của bố mẹ và con được thiết kế khá rộng rãi. Diện tích phòng con được thiết kế nhỏ hơn phòng của bố mẹ một chút. Giữa nhà là hành lang nội bộ ngăn cách giữa không gian sinh hoạt chung và riêng tiện lợi. Để đảm bảo cho tính thẩm mỹ thì ngay cạnh phòng vệ sinh được thiết kế khu vực phơi đồ rất hợp lý.
Mẫu thiết kế nhà cấp 4 rộng 6m mái bằng
Mẫu nhà cấp 4 tiếp theo nằm trong bộ sưu tập những mẫu nhà được ưa chuộng nhất hiện nay được thiết kế theo dạng nhà ống mái bằng. Phía trước mặt tiền của ngôi nhà được thiết kế với một khoảng không khá rộng rãi với ô cỏ xanh, hàng cây thẳng tắp. Chắc chắn sẽ là nơi trở về bình an cho các thành viên sau một ngày làm việc căng thẳng.

Ngôi nhà cấp 4 mái bằng này có diện tích chiều ngang 6m 1 tầng. Mẫu nhà caaps4 này đáp ứng đầy đủ công năng sử dụng, tiết kiệm chi phí tối đa nhất, đặc biệt những đôi vợ chồng trẻ mới ra ở riêng tài chính còn eo hẹp thì đây là mẫu giá phù hợp nhất.
Bản vẽ của ngôi nhà này được thể hiện rõ ràng với các phòng chức năng bao gồm 1 phòng 1 phòng khách, 1 phòn bếp thông với phòng ăn, 2 phòng ngủ và 2 phòng vệ sinh tiện lợi trong sinh hoạt của tất cả các thành viên trong gia đình. Cũng giống như những mẫu nhà cấp 4 truyền thống hay hiện đại thì phòng khách được bố trí đầu tiên. Sau đó đến 2 phòng ngủ và phòng bếp đối diện. Cuối cùng là 2 nhà vệ sinh.

Trên đây là những mẫu thiết kế nhà cấp 4 rộng 6m đẹp nhất hiện nay. Chắc hẳn với những mẫu thiết kế chi tiết này bạn đã có cho mình một mẫu nhà cấp 4 ưng ý nhất. Khi đã có ý tưởng bạn hãy bàn bạc với các thành viên trong gia đình để đi đến thống nhất nhé. Chúc bạn sớm sở hữu một tổ ấm riêng đẹp nhất.


































