Những kiểu nhà cấp 4 được các gia đình yêu thích đặc biệt là những gia đình trẻ có kinh phí xây nhà không cao. Với những gia đình đang sở hữu lô đất nhỏ với diện tích mặt tiền khiêm tốn và chiều dài tương đối thì mẫu nhà cấp 4 diện tích 5x20 dưới đây sẽ là một trong những gợi ý để xây dựng những ngôi nhà mà bạn mong muốn. Hãy cùng Xây Dựng Số khám phá những mẫu nhà cấp 4 diện tích 5x20 tuyệt vời với giá cả phải chăng tại đây !
Những ưu điểm nổi bật mẫu nhà cấp 4 diện tích 5x20m
Với những gia đình sở hữu những mảnh đất có diện tích 5 x 20m (không gian tương đối phổ biến hiện nay) thường có xu hướng lựa chọn phong cách thiết kế hiện đại để tận dụng không gian sử dụng, những mẫu nhà. Các tính năng sau đây:
- Phong cách nhà cấp 4 hiện đại, đơn giản không cầu kì nhưng tạo được không gian sử dụng tốt nhất, sử dụng được hết diện tích lô đất. Đồng thời, phong cách thiết kế hiện đại cũng phù hợp với những ngôi nhà có diện tích nhỏ.
- Các mẫu thiết kế nhà cấp 4 5x20m thường được trang trí theo kiến trúc nhà hình ống, đẹp mắt và hài hòa. Diện tích khiêm tốn về chiều ngang nên các kiến trúc sư đã tận dụng thiết kế nhà hình ống để tạo không gian riêng cho từng thành viên trong gia đình.
- Có rất nhiều mẫu nhà cấp 4 5x20m và trong đó những mẫu nhà cấp 4 1 lầu, nhà cấp 4 có gác lửng hay nhà cấp 4 2 tầng 5x20m… được nhiều gia đình lựa chọn.
- Chi phí xây dựng các mẫu nhà cấp 4 nhìn chung khiêm tốn hơn so với chi phí xây dựng các kiểu nhà khác và là mẫu nhà dành cho những gia đình có kinh phí xây nhà khiêm tốn.
Trên đây là những đặc điểm cơ bản nhất của mẫu nhà cấp 4 đẹp 5x20m, dưới đây là một số mẫu nhà cấp 4 đẹp mà Xây Dựng Số trình bày chi tiết mời các bạn tham khảo. Phong cách hiện đại của các mẫu nhà cấp 4 5x20m đang là xu hướng thiết kế chủ đạo, tận dụng diện tích vuông vắn khiêm tốn để tạo nên không gian sống tối ưu cho gia đình. Các mẫu nhà cấp 4 100 m2 đẹp nhất hiện nay là:
Mẫu nhà cấp 4 diện tích 5x20m 3 phòng ngủ
Những gia đình có đông thành viên thì mẫu nhà 5x20m 3 phòng ngủ này là một trong những sự lựa chọn hoàn hảo nhất.
Mẫu nhà cấp 4 có diện tích 5x20m này được xây dựng với kiến trúc hiện đại, kết hợp với việc sử dụng mái thái đảm bảo tiết kiệm chi phí mà lại che chắn, chống nóng, chống ồn và thoát nước tốt nhất phù hợp với điều kiện khí hậu Việt Nam. Mẫu thiết kế nhà cấp 4 này được thiết kế với chiều sâu không quá rộng nhưng vẫn đảm bảo được không gian thông thoáng nhất cho ngôi nhà.

Với thiết kế đơn giản, tận dụng được diện tích của lô đất trống để tạo không gian thoáng đãng hơn, đồng thời giúp ngôi nhà đạt tính thẩm mỹ cao nhất. Cách phối màu hài hòa, từ màu sắc của mái đến cách sử dụng mái thái cho cửa, các thanh cửa tối màu càng làm nổi bật nền sơn trắng của ngôi nhà. Đặc biệt, ngoại thất ngôi nhà được thiết kế với phần mái che sảnh lớn, không quá rộng nhưng đủ để tạo nên một sảnh vào hiện đại và thiết thực.

Mẫu nhà cấp 4 5x20m này với cách bài trí nội thất rất khoa học, từ sảnh chính đi vào phòng khách, cạnh phòng thờ hướng ra cổng chính, bên trong là phòng sinh hoạt chung, đối diện là phòng ngủ, cùng hướng phòng sinh hoạt chung là 2 phòng ngủ 2 và 3. Đối diện phòng ngủ 2, 3 là phòng bếp rộng và bàn ăn, bên trong là khu vực phơi đồ nhỏ tạo sự thoải mái cho gia đình.

Bản vẽ chi tiết nhà cấp 4 diện tích 5x20 có 3 phòng ngủ
Mẫu nhà cấp 4 mái thái 5 × 20 có 2 phòng ngủ
Hãy cùng tham khảo mẫu nhà cấp 4 5 × 20 mái thái mang phong cách thiết kế hiện đại, tinh tế đang là sự lựa chọn của nhiều cặp vợ chồng trẻ hiện nay. Phối Cảnh Mặt Tiền Mẫu Nhà cấp 4 mái thái 5 × 20 với thiết kế kiến trúc hiện đại, kinh phí xây dựng 450 triệu được nhiều gia đình trẻ hiện nay.

Căn hộ áp mái 4 phòng ngủ 5 × 20 với kiến trúc mái thái hiện đại mang đến sự nổi bật và tinh tế cho ngôi nhà. Thiết kế mặt tiền thông thoáng, kiến trúc hình khối đơn giản, vững chãi vô cùng đặc biệt. Mẫu nhà cấp 4 mái thái 5 × 20 hiện đại 2 phòng ngủ kinh phí xây dựng thấp.

Hệ thống cửa chính sử dụng hệ thống cửa nhôm xingfa rất chắc chắn và hiện đại, không sang trọng như cửa gỗ nhưng lại vô cùng kiểu cách phù hợp với thiết kế nhà mái thái mới hiện đại. Từ cửa chính là không gian phòng khách vô cùng rộng rãi, hệ thống cửa chính bằng kính giúp lượng ánh sáng vào nhà vô cùng thoáng đãng.

Khu bếp nấu tuy nhỏ nhưng được thiết kế 2 cửa sổ giúp khu bếp luôn tràn ngập ánh sáng và ít bị ám mùi khi nấu nướng.
Mẫu nhà cấp 4 chữ L diện tích 5x20m
Đối với kiểu nhà chữ L cho diện tích 5x20m thường được bài trí không gian khoa học và tiện nghi. Bên ngoài được thiết kế đơn giản nhưng vẫn đảm bảo sự thống nhất và hài hòa.

Ngoại thất của mẫu nhà cấp 4 chữ L 5x20m khá đơn giản, sử dụng mái thái hình chữ A truyền thống kết hợp hài hòa với các lớp xếp ngăn cách khu vực sảnh và các khối bên trong, mẫu thiết kế chữ L không quá rộng nhưng được thiết kế đẹp mắt và thoải mái.

Mẫu nhà cấp 4 này được thiết kế gồm 2 phòng, 1 phòng chính và 1 phòng phụ tạo sự lưu thông và thu hút ánh sáng tối đa. Từ sảnh chính đi vào là phòng khách rộng rãi, đối diện là phòng ngủ và bên trong là phòng ăn + bếp rộng. Đối diện phòng ăn và bếp là 2 phòng ngủ còn lại là 2 phòng vệ sinh được thiết kế bên ngoài đảm bảo hài hòa nhất cho nhu cầu sử dụng của gia đình.
Mẫu nhà cấp 4 mái thái 5×20 tuyệt đẹp
Với giá cả thi công hợp lý, tối đa hóa công năng sử dụng, vì vậy mà hình ảnh thể loại cấp 4 mái thái 5 × 20 và các mẫu thiết kế nhà cấp 4 mái thái 5 × 20 đang được nhu cầu sử dụng nhiều hiện nay.

Mẫu nhà cấp 4 5 × 20 mái thái có thiết kế mặt tiền sang trọng và hiện đại, các cửa nhô ra bên ngoài tạo nên một thiết kế nhà hình ống vô cùng bắt mắt. Mẫu nhà cấp 4 5 × 20 đẹp với chi phí không quá cao, phù hợp với những gia đình có kinh phí cũng có thể làm được điều này và đang là xu hướng được nhiều khách hàng lựa chọn.

Mẫu nhà cấp 4 mái thái 5x20m có gác lửng hiện nay được sử dụng rộng rãi ở các vùng nông thôn và nó như một xu hướng mới ở phố. Đơn giản trong thiết kế nhưng mẫu căn hộ penthouse 2 phòng ngủ 5 × 20 vẫn đảm bảo được vẻ đẹp tinh tế, trang nhã cho ngôi nhà. Màu tường nhẹ nhàng, trang nhã, không quá chói nhưng đủ hút mắt người nhìn.

Mẫu nhà cấp 4 mái thái 5 × 20 có 3 phòng ngủ sử dụng thiết kế mái thái khác biệt theo phong cách truyền thống tạo nên sự mới mẻ cho công trình. Hệ thống sân thượng chắc chắn giúp ngôi nhà trở nên cân đối hơn.
Mẫu nhà cấp 4 diện tích 5x20m có gác lửng
Đối với những gia đình đông thành viên thì mẫu nhà 5x20m có gác lửng là sự lựa chọn khoa học, không gian các tầng được bài trí hài hòa, đảm bảo mặt bằng công năng sử dụng tối đa.


Bản vẽ chi tiết nhà cấp 4 diện tích 5x20 có gác lửng
Từ sảnh chính đi vào phòng khách, bên trong là phòng ngủ, chia đôi không gian tầng 1 bằng cầu thang nối thông tầng lên gác lửng. Bên trong là phòng sinh hoạt chung, bếp và bàn ăn. Từ cầu thang tròn chia tầng lửng thành 2 phần, một phần nhỏ thiết kế phòng ngủ, phần diện tích lớn thiết kế phòng ngủ và khu vệ sinh cũng như khu vực phơi đồ nhỏ.
Mẫu nhà cấp 4 diện tích 5x20m có 2 phòng ngủ truyền thống
Ngôi nhà ở nông thôn với mái ngói đỏ trên tông màu xám. Mặt bên của ngôi nhà được lát gạch và sử dụng màu vàng để tăng thêm vẻ tươi mới. Nếu bạn có một mảnh đất rộng ở nông thôn, mô hình này nên được xem xét. Nó được thiết kế để lấy sáng tối đa với hệ thống cửa kính. Khi bạn mở cửa sổ, ngôi nhà của bạn có gió và thoáng mát.

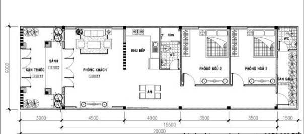
Bên trong ngôi nhà bao gồm tất cả các chức năng cần thiết như phòng khách rộng rãi, đủ tiện nghi cho một buổi họp mặt gia đình, tiếp đến là phòng bếp với khu vực ăn uống,khu bếp tách biệt với phòng khách bằng vách ngăn nhẹ. Bên cạnh phòng bếp là phòng vệ sinh chung được đặt giữa nhà nhằm tăng thêm sự tiện nghi cho các thành viên. Bên trong là dãy 2 phòng ngủ đảm bảo không gian riêng tư cho gia đình. Cuối nhà được làm thêm một nhà vệ sinh và một sân phơi nhỏ.

Bản vẽ chi tiết nhà cấp 4 diện tích 5x20 có 2 phòng ngủ
Về cơ bản các mẫu nhà cấp 4 5x20m được thiết kế theo kiểu nhà ống hiện đại đảm bảo không gian sử dụng cho gia đình. Diện tích các căn nhà luôn được cân đối, bố trí khoa học mang đến chất lượng không gian sống tốt nhất. Những mẫu thiết kế nhà đẹp trên đây hi vọng sẽ giúp các gia đình có thêm nhiều ý tưởng mới cho ngôi nhà mơ ước của gia đình mình! Mọi thắc mắc vui lòng liên hệ Xây Dựng Số để được tư vấn chi tiết hơn
































