Mái Thái mặc dù tạo được ấn tượng và có tính thẩm mỹ cao nhưng lại khá tốn chi phí và yêu cầu kỹ năng gia công cao, tỉ mỉ trong từng khâu thiết kế. Do vậy, phần để tối giản chi phí, phần đẩy nhanh tiến độ thi công nhưng vẫn đảm bảo được vẻ đẹp nhất định, nhiều gia chủ đã lựa chọn vật liệu khác để thay thế như sử dụng mái ngói hoặc tôn. Thấu hiểu được nhu cầu của mọi người, bài viết dưới đây chúng tôi xin giới thiệu đến quý khách hàng 7 mẫu nhà cấp 4 đẹp ở nông thôn mái tôn hiện đại. Hy vọng sẽ giúp ích thêm cho quý vị đang quan tâm.
1. Mẫu nhà cấp 4 đẹp ở nông thôn mái tôn 350 triệu

Mẫu thiết kế này sẽ bao gồm 1 phòng khách, 1 phòng ăn và bếp, 2 phòng ngủ và 2 phòng vệ sinh. Nhìn chung, phối cảnh nhà cấp 4 khá đơn giản nhưng vẫn rất tinh tế và nhẹ nhàng. Theo đó, độ cao của nền tôn thành 5 bậc góp phần giúp bảo vệ ngôi nhà vào những ngày mưa lớn hay lũ lụt. Diện tích xây dựng căn nhà là 5x17m, diện tích nhà cấp 4:80m2. Chi phí dự trù cho bản mẫu này là từ 320-350 triệu.

Đối với những quỹ đất nhỏ hơn, hoặc gia chủ muốn một không gian nhỏ xin thì có thể linh động thay đổi kích thước, có thể giảm 4 đến 5m. Để đảm bảo được tính thẩm mỹ thì phần thân nhà không nên làm quá dài. Phần mái sẽ là điểm nhấn bao gồm mái tiền sảnh, mái phòng khách riêng và cuối cùng là mái của thân nhà.
2. Mẫu nhà cấp 4 đẹp ở nông thôn mái tôn đơn giản

Mẫu nhà có diện tích 10m2. Dự toán giá xây nhà cấp 4: 300-350 triệu. Mẫu thiết kế này có chung mặt bằng với mẫu nhà tiếp theo, nhưng phần phối cảnh sẽ có một vài thay đổi, tạo ánh nhìn khác biệt hơn một chút. Đối với mẫu thiết kế này, gia chủ sẽ được tận hưởng một không gian yên bình và nhẹ nhàng, tạo cảm giác khoan thai thú vị.
3. Mẫu nhà cấp 4 đẹp ở nông thôn mái tôn diện tích 70m2

Đây cũng là một mẫu nhà xinh xắn rất đáng tham khảo với quỹ đất 7x12m; Diện tích nhà cấp 4: 70m2. Để sở hữu được ngôi nhà này, gia chủ chỉ cần bỏ từ 300-350 triệu đồng.
4. Mẫu nhà cấp 4 đẹp ở nông thôn mái tôn diện tích 100m2
Có 2 phương án cho mẫu thiết kế này là phần mái thái thả xuống che hết phần hiên để xe ô tô hoặc sẽ để trống phần hiên bên cạnh nhà. Theo đó phần này sẽ được làm giàn bê tông giả gỗ đan nhau, có thể tích hợp làm giàn để trồng các loại lan, giây leo đẹp mắt, ấn tượng.
Thiết kế mặt bằng nhà cấp 4 sẽ bao gồm 1 phòng khách, 3 phòng ngủ và 1 phòng bếp + phòng ăn. Đối với mẫu nhà cấp 4 nhiều gia chủ đã quyết định bố trí phòng vệ sinh bên ngoài hợp lý và thuận tiện. Dự kiến chi phí xây dựng căn nhà sẽ là 400-450 triệu, với diện tích đất xây dựng: 7.5x14m và diện tích nhà cấp 4: 100m2

Phương án 1
Đối với phương án 1: sẽ có tông màu chủ đạo là ghi trắng đan xen kết hợp với màu xám và ngói xám.

Phương án 2
Phương án 2 sẽ tạo điểm nhấn bằng giàn cây leo xanh mát, điểm tô sắc tươi cho toàn ngôi nhà.

Bản vẽ mặt bằng
3 phòng ngủ nhỏ gọn, 1 phòng khách, 1 gara xe và khu vực phòng bếp, phòng ăn sẽ được bố trí ở phần mặt bằng với đầy đủ công năng và không gian sang trọng, thuận tiện. Phía sau nhà là khoảng sân vườn, sân phơi đồ cho gia đình
5. Mẫu nhà cấp 4 đẹp ở nông thôn mái tôn diện tích 150m2

Đối với mẫu nhà này thì diện tích đất xây nhà là 13x14m và diện tích nhà cấp 4: 150m2. Dự toán giá xây dựng nhà cấp 4: 600 – 700 triệu. Tổng thể kiến trúc căn nhà khá đơn giản nhưng vẫn rất bắt mắt bởi phần mái nhà đưa ra và sử dụng luôn làm mái hiên.

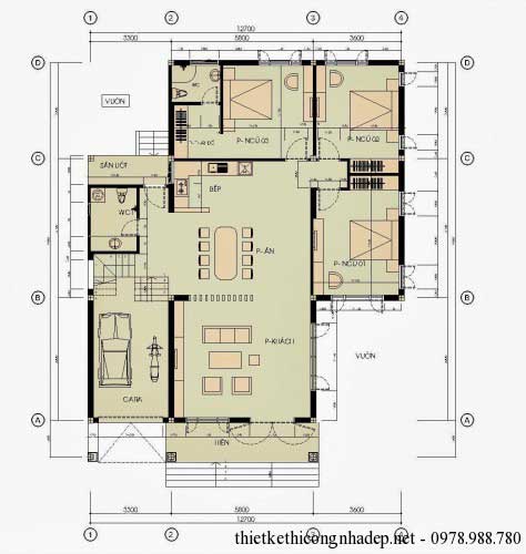
Thiết kế này sẽ có thêm phần gác lửng với diện tích 12.7 x 14 m. Đối với mặt bằng tầng 1 sẽ bao gồm 1 phòng khách, phòng ăn kết hợp không gian bếp, 3 phòng ngủ, 2 phòng vệ sinh 1 chung 1 riêng. Một gara lớn cũng được bố trí trong nhà ngay cạnh phòng khách. Phần gác xép sẽ là không gian được vận dụng tối ưu để làm phòng thờ và phòng ngủ nhỏ.

6. Mẫu nhà cấp 4 đẹp ở nông thôn mái tôn diện tích 120m2

Diện tích đất nhà cấp 4: 9x15m; Diện tích nhà cấp 4: 120m2. Dự trù kinh phí xây dựng là 500-550 triệu. Với thiết kế mái thái sử dụng mái ngói màu đỏ, kết hợp với tường sơn màu hồng đan xen đá ốp lát trang trí và cửa sổ nhôm kính màu trắng sứ, tạo nên một tổng thể hài hòa, ấn tượng. Đây cũng là một trong những gợi ý đáng để quý khách hàng quan tâm vì tính thẩm mỹ cao.

Với 1 phòng khách, 1 gara xe; 4 phòng ngủ (1 phòng ngủ trên gác lửng); 1 vệ sinh chung; Phòng bếp + ăn; 1 phòng thờ trên gác lửng đây sẽ là ngôi nhà với đầy đủ công năng. Phù hợp với những gia chủ yêu thích sự tiện nghi, thoải mái.
7. Mẫu nhà cấp 4 đẹp ở nông thôn mái tôn 3 phòng ngủ
Đối với mẫu nhà này cũng có 2 phương án được đưa ra để đem lại sự lựa chọn phong phú cho quý khách hàng. Tại đây sẽ bao gồm 1 phòng khách và 3 phòng ngủ diện tích 12m2, 1 phòng bếp + ăn, 1 phần không gian thoáng đãng phía trước để xe.
Diện tích đất là 7×16 mét, diện tích xây dựng nhà là 100m2. Điểm nhấn của thiết kế này chính là phần mái được thiết kế máng hứng nước từ 2 bên đổ xuống rất tiện lợi để lấy nước ăn cho gia đình. Kinh phí dự kiến xây dựng là 400-450 triệu.

Phấn mái ngói hoặc mái tôn màu đỏ cam hài hòa trong tổng thể ghi trắng của căn nhà. Kết hợp với hệ thống cửa sổ bằng nhôm và mi lợp ngói. Tạo nên một công trình bắt mắt và ấn tượng, thu hút điểm nhìn, tạo sự thoải mái cho người sử dụng.
Nguồn: thietkethicongnhadep.net
Cập nhật thêm tin về mẫu nhà đẹp tại đây => https://xaydungso.vn/mau-nha-dep
































