Với diện tích 11.7×17.3m, bài viết sau đây chúng tôi sẽ giới thiệu đến các bạn mẫu biệt thự nhà vườn cấp 4 hiện đại ấn tượng và đẹp mắt. Vì là mẫu nhà chú trọng đặc biệt đến phần mái Thái do vậy mẫu thiết kế này được đánh giá là khá tốn kém. Tuy nhiên để đáp ứng được đúng nhu cầu của khách hàng, bản mẫu vẫn được hình thành và hy vọng sẽ mang đến không gian tuyệt vời cho gia đình tận hưởng cuộc sống.

Điểm nhấn là phần mái Thái, do vậy chính yếu tố này làm nên sự thu hút của mẫu thiết kế biệt thự nhà vườn cấp 4. Phần mái được chăm chút và xây dựng một cách tỉ mỉ. Vật liệu được sử dụng cũng được chọn lựa một cách kỹ càng, nhằm đạt được chất lượng tốt nhất. Nhìn tổng thể ngôi nhà dễ cảm nhận được sự hiện đại và sang trọng của nó. Các đường nét không quá cầu kỳ và phức tạp nhưng lại toát lên được sự trang nhã, tinh tế.

Nhìn ở bất cứ phương diện nào cũng có thể chiêm ngưỡng được trọn vẹn vẻ đẹp của phần mái thái. Cấu trúc ngôi nhà không có quá nhiều khác biệt nhưng vì sự kết hợp hài hòa giữa các mảng màu và không gian đã tạo dựng được nét đặc sắc trong khâu thiết kế.

Không gian và cảnh quan xanh mát xung quanh cũng góp phần điểm tô cho công trình, không những mang lại cuộc sống trong lành mát mẻ, mà còn góp phần khắc họa thêm nét xanh tươi trong tổng thể bức tranh căn biệt thự đẹp. Dù là ngày hay đêm, ngôi nhà vẫn trở nên thật nổi bật và bừng sáng.
Chi tiết bản vẽ mẫu biệt thự nhà vườn cấp 4 mái thái đẹp 11.7×17.3m
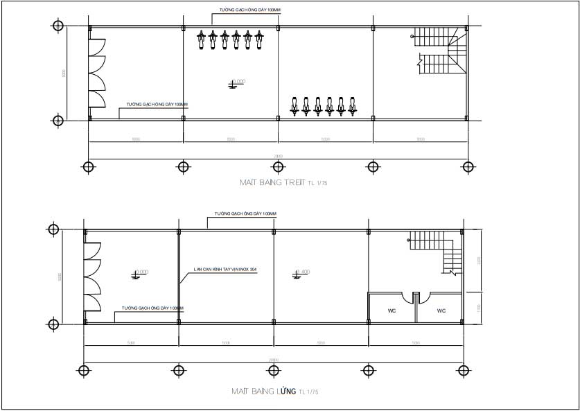
Trên diện tích 11.7 x 17.3 = 202.41 m2, không gian của toàn bộ ngôi nhà sẽ được bố trí và phân chia hợp lý thành 3 phần. Theo đó sẽ bao gồm 3 phòng ngủ, 2 phòng vệ sinh, 1 phòng vệ sinh trong nhà và 1 phòng vệ sinh phía sau sân vườn.
Phần thứ nhất sẽ dành làm nơi thờ cúng tổ tiện và 1 phòng ngủ riêng tư. Khoảng không gian ở giữa sẽ là phòng khách và phòng ăn liên thông với nhau tạo sự tiện nghi và thuận tiện trong khâu sinh hoạt chung. Tiếp đến phần sảnh phụ sẽ được thiết kế làm bếp và nhà kho, có cả nhà vệ sinh và một khu vực để xe tại đây.

Mặt bằng định vị

Mặt bằng bố trí phòng

Mặt bằng bố trí vật dụng
Nhằm tạo không gian thông thoáng, thuận tiện cho việc đi lại cũng như phục vụ tối đa nhu cầu của gia chủ mà phòng đọc sách sẽ được bố trí thành phòng ăn.
Hầu hết các sản phẩm mà chúng tôi giới thiệu đến quý khách hàng ngoài việc lấy ý tưởng từ khả năng sáng tạo thì còn là do yêu cầu của gia chủ. Do vậy, không quá ngạc nhiên khi mọi phòng ốc trong căn nhà đều có thể linh hoạt thay đổi phù hợp với mong muốn và sở thích của mỗi người. Tuy nhiên, sắp xếp và bố trí cũng phải phù hợp với công năng sử dụng cũng như giữ được tinh thần của bản thiết kế. Đồng thời phải luôn chú trọng đến yếu tố thẩm mỹ, không vượt quá xa so với bản mẫu đưa ra.
Diện tích không gian là không thay đổi, do vậy đối với quý khách hàng quan tâm đến mẫu thiết kế này có thể tham khảo bản mẫu tại đây hoặc tự mình đưa ra những ý tưởng bố trí sao cho hợp lý và thuận tiện nhất.
Nguồn: thietkethicongnhadep.net
































