Kết cấu từ mái thái luôn mang đến cho người sử dụng với rất nhiều công năng khác nhau từ việc đáp ứng phục vụ cho việc chống nóng, cách nhiệt, chống cháy và không thể thiếu đi sự thẩm mỹ tinh tế đến từ chúng. Nhà ống khi được kết hợp kết cấu mái này sẽ mang đến sự sang trọng, tinh tế hơn bao giờ hết mà với những ai yêu mến mặt bằng từ mái nhà này, hoàn toàn có thể sử dụng chúng như một phương án hiệu quả.

Bạn đang có cho mình với các điều kiện phù hợp để xây dựng lên một kết cấu cao tầng từ kiến trúc nhà ống thì ngại gì không thử cho mình với một kết cấu từ phần mái thái. Chúng sẽ đáp ứng cho gia đình bạn một công năng tuyệt vời mà không phải kiến trúc nào cũng có thể có được. Hãy cùng chúng tôi xem qua các thiết kế ngay phía dưới để có cho mình một góc nhìn chân thực nhất từ chúng nhé !
Thiết kế mẫu nhà ống 4 tầng mái thái được sử dụng nhiều trong năm 2021 :
Nhà ống khi lựa chọn hệ thống mái thái vẫn luôn được sử dụng như một phần không thể thiếu và vẫn tồn tại cho đến nay. Nhằm mang đến cho những ai yêu mến kết cấu này, quý khách và quý độc giả hãy chọn cho mình với một thiết kế mà bạn cho rằng chúng phù hợp với mình nhất. Đừng quên để lại cho chúng tôi với các đánh giá cũng như nhận định về chúng thông qua phần bình luận bên dưới nhé :
Thiết kế nhà ống 4 tầng mái thái số 1 :
Thông tin về mẫu nhà ống 4 tầng
- Dự án thiết kế : mẫu nhà ống 4 tầng diện tích 90m2
- Chủ đầu tư: Luyện Văn Song sinh năm 1967
- Phong cách xây dựng : “Từ điểm nhân chính là hệ thống mái thái sang trọng và tất nhiên rất mong kiến trúc sư có thể tạo nên một sự thẩm mỹ cho mặt tiền ngôi nhà hòa quyện với phong cách xây dựng độc đáo từ kiến trúc nhà ống” yêu cầu từ chủ đầu tư.
- Địa chỉ : Quận 12 – thành phố Hồ Chí Minh
- Thời gian thi công: ~ 4 tháng.
A. Phối cảnh nhà ống 4 tầng với diện tích 90m :
Thông qua các tư liệu từ hình ảnh của ngôi nhà mà bạn có thể quan sát các chi tiết được tạo nên như thế nào. Khi sự góp mặt của phần mái thái không thể thiếu vì đó là nhu cầu chính mà chủ đầu tư mong muốn, tất cả như khẳng định được một sức hút của công trình. Từ đó mà kiến trúc nhà ống hiện nay lại trở nên phổ biến hơn bao giờ hết thông qua bàn tay tài hoa mà kiến trúc sư mang đến.

Nhờ chiều dài lớn mà phần sân phía trước được sử dụng làm nơi để xe hợp lý, với hệ thống từ phần cổng như ôm trọn diện tích của ngôi nhà mà vừa đảm bảo sự an toàn một cách hiệu quả. Tiến vào sâu hơn là từng mặt bằng thiết kế từng tầng như được biến chuyển dựa theo phong cách tân cổ điển từ phần ban công, mái giật cấp, màu sắc, đèn chiếu sáng như càng làm cho công trình thêm hoàn mỹ.

Đó là một sự kết hợp hoàn hảo của của màu sắc sinh động giúp cho ngôi nhà 4 tầng càng trở nên uy nghi hơn, sừng sững giữa một khoảng trời xanh kèm theo là thảm thực vật xanh bao quanh. Đó là nét đẹp không thể bàn cãi, một nét đẹp đến từ giá trị mà chủ đầu tư bỏ ra, nét đẹp từ thiết kế và cả nét đẹp từ đôi bàn tay tài hòa, lành nghề của các thợ xây dựng.
B. Bản vẽ thiết kế nhà ống 4 tầng
Bản vẽ như mộ phần từ thước đo để đánh giá với một công trình tiện nghi, độc đáo và lối sắp xếp dựa theo sự sáng tạo từ kiến trúc sư mang đến cho chủ đầu tư. Và chúng cũng là một phần quan trọng để đánh giá được khả năng của đơn vị nhà thầu có thể hoàn thành được công trình dựa theo tư liệu sẵn có này.

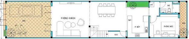
Mặt bằng tầng 1: Là không gian mà gia chủ kết hợp phòng khám tư nên mặt bằng tầng 1 có thể xem như sử dụng để hướng đến từ nhu cầu thiết thực đó. Với các gian phòng được sắp xếp một cách hợp lý với các chức năng : phòng xét nghiệm, phòng siêu âm, phòng truyền dịch, phòng khám, kho thuốc, phòng chờ và quầy thuốc.

Mặt bằng tầng 2: Không gian từ kết cấu này được trở lại với các chức năng của một ngôi nhà hoàn chỉnh với 1 phòng ngủ, 1 bếp ăn, 1 khu sinh hoạt tập thể kèm phòng khách.

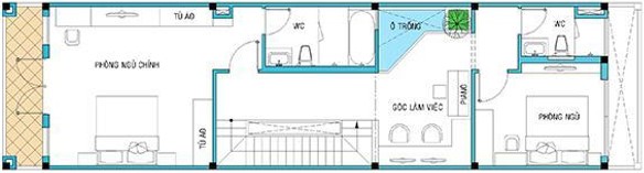
Mặt bằng tầng 3: dẫn lên mặt bằng tầng 3 là hệ thống từ cầu thang khi các chức năng được phân bổ với 3 phòng ngủ nằm liền kề nhau với các tiện ích được bổ sung đầy đủ như nhà vệ sinh, hành lang di chuyển , thông gió...vv

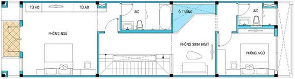
Mặt bằng tầng 4: Từ bản vẽ thiết kế có thể thấy mặt bằng tầng 4 là khu sinh hoạt tập thể với 1 phòng tập thể dục, 1 phòng giặt kèm sân phơi, 1 san thượng phía sau ngôi nhà đã được thể hiện rõ nét thông qua bản vẽ thiết kế 2d mà kiến trúc sư cung cấp.

Mặt bằng mái: Được khai thác theo đúng với mục đích được yêu cầu từ chủ đầu tư từ hệ thống mái thái sang trọng. Khi vật liệu sử dụng được chọn lựa một cách kĩ lưỡng với mái lấy sáng, mái cách nhiệt và hệ thống năng lượng mặt trời được kết hợp.
Theo những đánh giá chung, thì kiến trúc đã thể hiện được những ưu điểm nổi bật của mình từ phần bố cục khi được kết hợp với mặt bằng kinh doanh từ tầng trệt kèm theo là phân bổ các chức năng từ tiện ích một cách phù hợp để công trình thích ứng với lối sinh hoạt của các thành viên một cách tốt nhất.
Thiết kế nhà ống 4 tầng mái thái số 2 :
Thông tin về mẫu nhà ống 4 tầng diện tích 5x18m
- Dự án thiết kế : mẫu nhà ống 4 tầng mái thái sang trọng
- Chủ đầu tư: Gia Minh AN sinh năm 1984
- Phong cách xây dựng : “Chúng tôi thực sự yêu mến phong cách hiện đại từ những thiết kế mà xây dựng số chia sẻ thông qua các bài viết tham khảo. Rất mong kiến trúc sư có thể thiết kế cho gia đình một ngôi nhà hoàn hảo từ kết cấu 4 tầng sử dụng mái thái làm điểm nhấn cho công trình. Đó còn là sự tiện nghi bên trong nội thất của ngôi nhà” yêu cầu từ chủ đầu tư.
- Địa chỉ : Quận Thủ Đức – thành phố Hồ Chí Minh
- Thời gian thi công: ~ 4 tháng.
A. Phối cảnh nhà ống 4 tầng mái thái với diện tích 5x18m :
Nhà ống được thiết kế bám sát theo sự tiện nghi và xu hướng xây dựng của năm 2021. Chúng như một phần quan trọng để mang đến cho chủ đầu tư hiểu rõ hơn về những chi tiết theo từng mặt bằng xây dựng, để có thể sửa chữa thích ứng hay đổi mới từ phong cách mà kiến trúc sư mang đến bằng các bản vẽ hay phối cảnh 3d. Mời bạn xem qua thiết kế phía bên dưới !

Với một mặt tiền sáng, là nơi để chủ đầu tư có thể thông qua kiến trúc của ngôi nhà mà khẳng định được giá trị của mình. Đó là một màu sắc sang trọng, sự kết hợp hoàn hảo của các vật dụng, vật liệu được kết hợp để không gian trở nên hoàn hảo hơn bao giờ hết. Mà kết cấu từ phần mái thái chính là điểm nhấn chính để tạo nên một kiến trúc tiện nghi nhất, hiện đại nhất mà mọi người vẫn luôn yêu mến trong suốt thời gian qua.

Với một gam màu trắng sáng được cho là gam màu tổng thể của công trình khi chúng không hề trở nên khô khan mà ngược lại với các tông màu đối lập từ hàng rào, rào chắn ở ban công càng làm cho công trình trở nên nổi bật hơn bao giờ hết. Tuy vậy, gia chủ nên phân bổ thêm nhiều hơn cây xanh theo từng mặt bằng tầng để không gian hoàn thiện hơn từ sắc làm mang đến cho công trình.
B. Bản vẽ thiết kế nội thất nhà ống 4 tầng mái thái diện tích 5x18m
Đây hoàn toàn là một lựa chọn phù hợp dành cho những ai đang ấp ủ cho mình với một công trình từ kết cấu và diện tích phía trên. Mặt khác, bạn có thể căn cứ vào bản vẽ để tạo nên cho mình với bố cục nội thất hoàn thiện hơn khi thay đổi vị trí, điều chỉnh diện tích hoặc kết hợp các chức năng đều rất phù hợp.

Mặt bằng tầng 1: thiết kế từ bản vẽ có cho mình với các chức năng chính như : sân trước, phòng khách, nhà bếp, kèm 1 nhà vệ sinh và phòng ngủ số 1.

Mặt bằng tầng 2: Là không gian phân bổ với 2 gian nhà chính với 1 phòng ngủ chính (số 2), phòng ngủ (số 3) nằm đối diện khi chúng còn được kết hợp với 1 góc làm việc.

Mặt bằng tầng 3: Từ bản vẽ thiết kế mặt bằng tầng 3 được thể hiện với một bố cục khá giống với các tiện ích nằm phía bên trên. Với 1 phòng ngủ (số 4) và phòng ngủ số 5 khi chức năng với phòng làm việc được thay đổi là phòng sinh hoạt chung.

Mặt bằng tầng 4: Gia chủ được gợi ý với 1 gian thờ phía trước ngôi nhà, liền kề là không gian sinh hoạt chung, 1 nhà kho, 1 sân phơi và 1 nhà vệ sinh phía cuối. Chúng đã hoàn thành tốt các tiêu chí đưa ra cũng như kết hợp từ việc sáng tạo mà kiến trúc sư đã dành tặng cho chủ đầu tư.
Với các chia sẻ từ 2 thiết kế phía trên, mong rằng bạn sẽ hiểu hơn về công trình nhà ống 4 tầng với các mặt bằng mà chúng tôi giới thiệu. Mà chúng cũng là tư liệu miễn phí nếu như bạn mong muốn tiết kiệm 1 khoản đầu tư cho việc tìm thiết kế thông qua các dịch vụ. Xin hẹn gặp lại mọi người trong các bài viết tiếp theo !
Xem thêm:




























