Bài viết dưới đây, chúng tôi tiếp tục giới thiệu đến quý khách hàng mẫu thiết kế nhà cấp 4 hiện đại mái thái. Đây là bản mẫu được sử dụng và xây dựng tại Thái Nguyên. Hy vọng sẽ là gợi ý đáng để quý khách hàng tham khảo và lựa chọn.
Giống như những giới thiệu ban đầu, mẫu nhà cấp 4 mái thái này được phân chia thành 3 không gian. Cụ thể phần máu bên sẽ bao gồm khu vực gara và phòng ăn. Mái bên còn lại là khu vực phòng thờ và ở giữa sẽ là không gian sinh hoạt chung, phòng khách thuận lợi tiếp đón bạn bè.
Mẫu thiết kế được xây dựng trên lô đất khá lớn diện tích 15.6×15.6m. Dự trù chi phí thi công công trình là khá cao. Do vậy gia chủ đã không lựa chọn phương án này mà chỉ lấy đó làm mẫu tham khảo. Khách hàng trước khi quyết định hình thành dự án riêng cho mình thì cần cân nhắc nhiều yếu tố xem có phù hợp với khả năng của bản thân cũng như mẫu thiết kế có thật sự đáp ứng được nhu cầu của mình hay không.

Phối cảnh nhà cấp 4 mái thái đẹp15x15m góc 1

Phối cảnh nhà cấp 4 mái thái đẹp15x15m góc 2
Nhà cấp 3 có cấu trúc khá tương đồng với mẫu nhà ba gian ngày xưa. Theo đó diện tích không gian trải dài, tạo sự thuận tiện trong lưu thông và liên kết các khu vực trong căn nhà. Tổng thể khá đơn giản khi điểm nhấn duy nhất nằm ở phần mái Thái đỏ rực và thiết kế vòm kính phần mặt tiền. Có hai hệ thống cửa lớn được bố trí, theo đó cửa chính nằm ở giữa và cửa phụ ngay cạnh bên. Sơn tường nhẹ nhàng tạo sự khang trang và sạch đẹp.

Mặt bằng mái
Phần mái thái được thiết kế phía trước có sự tương đồng về cấu trúc song kích thước to nhỏ tùy thuộc vào diện tích không gian. Mặt bằng mái thái khá đơn giản song vẫn tạo được độ thẩm mỹ và thực hiện tốt công năng của mình.

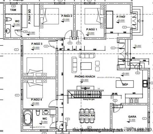
Mặt bằng
Diện tích xây dựng nhà cấp 4 đẹp cũng khá thoải mái. Do vậy đáp ứng nhu cầu của gia chủ, 5 phòng ngủ sẽ được hình thành. Vì là không gian riêng tư nên hầu như các phòng đều được bố trí và sắp đặt hợp lý. Theo đó 1 phòng ngủ lớn dành riêng cho bố mẹ sẽ được tích hợp phòng vệ sinh riêng. Tại đây còn bao gồm 1 phòng khách thông thoáng khu vực sinh hoạt chung của cả gia đình, 1 phòng thờ trang nghiêm và 1 phòng vệ sinh dùng chung cho tất cả mọi người.

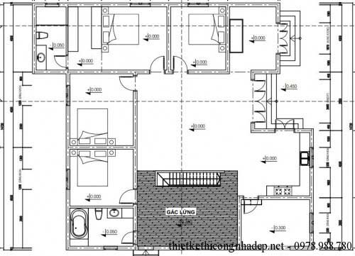
Mặt bằng tầng lửng
Nhằm kiến tạo không gian thuận tiện và phục vụ tối đa nhu cầu của người dân, các kiến trúc sư đã tiến hành sắp xếp các không gian theo thứ tự phòng khách đặt ngay trước nhà, tiếp đến là 2 phòng ngủ và 2 phòng ngủ nữa được đặt vị trí cuối. Phòng ngủ còn lại sẽ nằm tách biệt phía trên gác lửng. Theo đó cầu thang lên khu vực này được đặt chính giữa nhà cạnh phòng khách rất thuận tiện. Nhằm tăng diện tích cũng như tạo sự thoải mái nhất định, phần gác lửng xây thêm được bố trí hợp lý phía trên phòng ăn và sử dụng vật liệu bê tông cốt thép. Gia đình có ô tô nên sẽ xây dựng gara để xe cạnh phòng bếp, có cử kết nối lên khu vực này.

Mặt đứng
Hy vọng mẫu thiết kế nhà đẹp cấp 4 mái thái hiện đại trên đây sẽ là gợi ý thú vị cho quý khách hàng. Thông tin cụ thể về dự án: Nhà cấp 4 được xây dựng ở Thái Nguyên, chủ đầu tư là gia đình của chị Nguyễn Thị Trang. Không gian này bao gồm 1 phòng khách quy mô lớn, 1 phòng thờ, 5 phòng ngủ dành cho các thành viên trong gia đình ( 1 phòng bố trí tại tầng lửng) và 2 nhà vệ sinh, trong đó 1 chung 1 riêng rất thuận tiện.
Nguồn: thietkethicongnhadep.net

































