- Bạn đang tìm kiếm một ngôi nhà cấp 4 giá rẻ, tiện nghi, hiện đại?
- Nhà nắm bắt kiến trúc thịnh hành mới nhất, không bao giờ lỗi thời?
- Đáp ứng đầy đủ những mong muốn, nhu cầu cho các thành viên yêu quý?
Thì phương án mẫu nhà cấp 4 có gác lửng 100m2 tiện nghi đang được nhiều chủ đầu tư yêu thích ngay tại bài viết này không nên bỏ qua. Các kiến trúc nhà cấp 4 có gác lửng đẹp này đã xuất hiện cách đây nhiều năm về trước, nhưng những lợi thế mà nó mang lại khiến chủ đề này không bao giờ bị lãng quên theo thời gian. Dễ dàng sắp xếp các căn phòng, tăng diện tích sử dụng tối đa, nới rộng không gian sinh hoạt, tăng tính thẩm mỹ kiến trúc cao là những ưu điểm mà bất cứ gia chủ nào cũng thích thú về nhà cấp 4 có gác lửng. Điều mà hầu hết ai cũng thích thú đó là chi phí xây dựng giá rẻ, phù hợp tài chính nhiều chủ đầu tư hiện nay. Không làm bạn phải chờ lâu, cùng chúng tôi điểm ngay qua ý tưởng thiết kế nhà cấp 4 gác lửng phong cách hiện đại thịnh hành hiện nay.
Mẫu nhà cấp 4 có gác lửng 100m2 chi phí xây dựng thấp

Phối cảnh mẫu nhà cấp 4 có gác lửng 5x20m
Mặt tiền: Nhà cấp 4 có gác lửng đẹp này lựa chọn màu sơn nhẹ nhàng, cùng các chi tiết trang trí nhẹ nhàng nhưng không kém phần tinh tế và ấn tượng. Bao xung quanh ngôi nhà 1 tầng là hàng rào chắc chắn, liền kề đó là khu vực để xe cho các thành viên. Đối với vị chủ đầu tư nào yêu thích cây xanh, hoặc muốn trang trí mặt tiền phía trước ngôi nhà thêm sinh động có thể tìm mua những loại cây xanh tiểu cảnh yêu thích.
Công năng thiết kế bên trong cực kỳ tối ưu, có đến 3 phòng ngủ đáp ứng thoải mái cho những hộ gia đình đông thành viên sinh sống. Toàn bộ các khu vực trong ngôi nhà đều do kiến trúc sư nổi tiếng bố trí, tận dụng tối đa không gian sinh sống một cách tốt nhất. Các căn phòng sắp xếp theo lối sống không gian mở, nhằm mang lại sự thoải mái và thuận tiện nhất cho gia đình sinh sống lâu dài.

Mặt bằng tầng trệt
Công năng tầng 1 thiết kế gồm: Sân trước được bố trí tiểu cảnh nhỏ đẹp mắt, có thể chứa được 3 chiếc xe gắng máy. Không gian phòng khách bố trí các đồ dùng nội thất gọn gàng, có thể chứa thêm oto cho gia chủ. Khu vực sản xuất các món ăn ngon cho gia đình nằm liên kề bàn ăn thuận tiện. Phòng ngủ cho bố mẹ thi công tường cách âm tốt, nhằm mang đến giấc nghỉ ngơi tốt nhất. Phòng vệ sinh có đầy đủ trang thiết bị cần thiết.

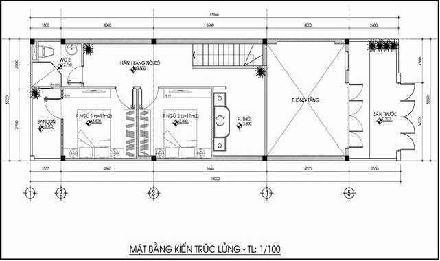
Mặt bằng tầng lửng
Công năng gác lửng gồm: 2 phòng ngủ cho con nằm liền kề nhau, giúp việc tận dụng tối đa diện tích khu vực gác lửng. 1 Phòng vệ sinh ốp gạch cao sạch sẽ nằm phía cuối. Phòng thờ cúng ông bà tổ tiên nằm khu vực riêng, để tạo sự yên tĩnh.

Thiết kế nội thất phòng khách

Thiết kế nội thất phòng bếp

Thiết kế nội thất phòng ngủ master

Thiết kế nội thất phòng ngủ phụ 1 cho con trai

Thiết kế nội thất phòng ngủ phụ 2 cho con gái

Thiết kế nhà tắm
Nhà cấp 4 đẹp tại đây lựa chọn phong cách hiện đại làm điểm nhấn ấn tượng, xây dựng trên lô đất có diện tích 100m2. 100m2 Là con số khá thích hợp và thoải mái trong việc bố trí các công năng trong ngôi nhà, đem lại sự thoải mái tốt nhất cho gia đình khi sinh hoạt. Nhà có gác lửng này thiết kế kiến trúc theo kiểu dáng đơn giản, giảm thiểu các chi tiết trang trí phức tạp nhất có thể nhằm tiết kiệm số kinh phí nhất định cho gia chủ. Tuy đơn giản, nhưng nhà cấp 4 đẹp vẫn dễ dàng gây ấn tượng đến những ai lần đầu tiên bước chân vào ngôi nhà.
Nguồn tin: https://wedo.vn/
Xem thêm tin:

































