Với mong muốn mang đến những công trình hiện đại, đáp ứng nhu cầu của con người và tính thẩm mỹ nhất định. Chúng tôi đã giới thiệu đến khách hàng của mình rất nhiều thiết kế ấn tượng và đẹp mắt. Hầu hết các bản vẽ sau khi hình thành đều hài lòng với chủ sở hữu. Thiết kế một ngôi nhà cấp 4 hiện đại mái thái dưới đây là một ví dụ điển hình. Dự án này được thực hiện tại Vĩnh Phúc với quy mô 9x16m.
Đây là mẫu nhà cấp 4 được xây dựng theo cấu trúc mái thái hiện đại, hợp với xu hướng thiết kế hiện nay. Công trình được xây dựng và hoàn thiện thi công tại khu vực Vĩnh Tường – Vĩnh Yên – Vĩnh Phúc, do đơn vị chủ đầu tư Chu Mạnh Cường thực hiện. Nhà cấp 4 bao gồm 1 phòng khách, 1 phòng thờ, 4 phòng ngủ và 2 phòng vệ sinh.
Phối cảnh tổng thể căn nhà cấp 4 mái thái đẹp tại Vĩnh Phúc

Phối cảnh mẫu nhà cấp 4 mái thái 9x16m
Nắm bắt xu hướng hiện nay, phần mái thái được ưu tiên sử dụng thiết kế nhà cấp 4. Không quá cầu kỳ hay phức tạp, mẫu thiết kế này hướng đến sự tối giản, không gian thuần việt. Theo đó, phần tiền sảnh được xây dựng rộng rãi có mái che. Hai bên là cột trụ vững chãi được ốp gạch thẻ với gạch thẻ chân tường. Nhằm tạo không gian thoáng đãng, điểm tô thêm sắc thắm cho căn nhà, khu vực cạnh tiền sảnh sẽ được trồng hoa làm từng bồn cây cảnh đẹp mắt và căng tràn sức sống.
1 số hình ảnh thực tế nhà cấp 4 mái thái 9x16m

Ảnh sau khi thi công góc 1

Ảnh sau khi thi công góc 2

Cổng nhà cấp 4
Từ bản mẫu thiết kế nhà cấp 4 mái thái hiện đại, công trình đã được xây dựng và thành hình. Diện mạo hoàn thiện có đôi nét khác lạ so với bản phối cảnh. Tuy nhiên vẫn toát lên được sự hiện đại, sang trọng và ấn tượng. Phần cổng nhà được xây dựng khang trang, mái che thiết kế theo cấu trúc mái thái. Đây cũng là điểm nhìn đầu tiên thu hút mọi người.

Mặt bằng tổng thể
Sở hữu diện tích đất rộng rãi, mẫu nhà cấp 4 mái thái này nằm trên lô đất vườn ngay ngã tư đường, vị trí đắc địa khi một bên là đường làng và bên kia tiếp giáp với đường đi. Tận dụng ưu điểm về địa thế này, ngay khu vực đường đi và đường ao làng là ao thả cá còn phía sau sẽ bố trí phần sân vườn với diện tích xây dựng nhà cấp 4 9x16m.
Mẫu nhà này sẽ bao gồm 4 phòng ngủ cho các thành viên trong gia đình, 1 phòng khách làm nơi tiếp đón bạn bè, 1 phòng thờ và khu vực bếp, 2 phòng vệ sinh được xây dựng trong đó 1 chung và 1 riêng. Từ khu vực phòng bếp và phòng ăn mở thêm cửa hậu đi ra ngoài sân vườn và ao thả cá.

Mặt bằng mái
Phần mái nhà được chia làm 2 phần. Các nhà thiết kế đã bố trí phần mái ngói và mái bằng hợp lý, đẹp mắt.

Mặt bằng
Phòng khách sẽ được bố trí thuận tiện và đầy hợp lý ngay trung tâm của căn nhà. Tổng thể công trình có 4 phòng ngủ, trong đó 2 phòng ngủ được đặt 2 bên, 2 phòng còn lại nằm ở phía cuối căn nhà. Đây sẽ là không gian riêng tư và yên tĩnh dành riêng cho các thành viên. Một vách ngăn được đặt ngay giữa làm rào chia tách khu vực phòng khách và phòng ăn. Vật liệu sử dụng có thể là vách ngăn CNC hoặc một chiếc bàn ngăn. Nhằm đảm bảo quá trình sinh hoạt được thuận tiện, 2 phòng vệ sinh, 1 chung 1 riêng được đặt tại giữa hai phòng ngủ ở phía cuối nhà.

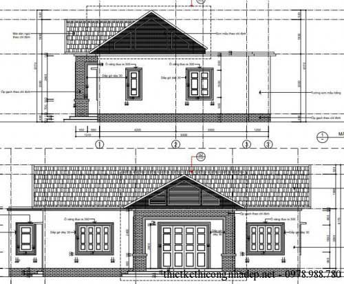
Mặt bên

Mặt đứng trước
Để sở hữu căn nhà hoàn thiện và thành hình như hình ảnh thực tế trên. Gia chủ đã phải bỏ ra số tiền 550 triệu đồng để đầu tư xây dựng. Dự kiến ban đầu thi công công trình chi phí tầm khoảng 450 triệu, song do đất xây dựng dự án là đất ruộng nên phát sinh chi phí ép cọc và làm móng. Đây sẽ là một trong những gợi ý dành cho quý khách hàng có nhu cầu. Tùy vào sở thích và mong muốn của gia chủ mà thiết kế nên những không gian hợp lý và ấn tượng.
Nguồn: thietkethicongnhadep.net
Xem thêm tin mới:

































