Cấu trúc mái ngói với thiết kế hiện đại được nhiều chủ nhà ưa chuộng vì tính thẩm mỹ và chức năng hoàn thiện. Đối với thiết kế này, chúng tôi cung cấp cho khách hàng của chúng tôi một gợi ý để mẫu biệt thự nhà phố 3 tầng đẹp trên diện tích 9x12m với một không gian hiện đại, thông thoáng và rất thoải mái. Sở hữu diện tích đất 9x12m, các phòng đều rộng rãi. Tuy nhiên, sảnh của nhà phố 3 tầng sẽ được thu nhỏ để phù hợp với lô đất để tạo vẻ đẹp và kết nối với phòng khách một cách dễ dàng.
Được xây dựng theo phong cách kiến trúc của một ngôi nhà phố 3 tầng với mái ngói. Không gian trong nhà gồm 1 phòng khách, 1 phòng sinh hoạt chung dành cho cả gia đình, 6 phòng ngủ và 1 phòng thờ trang nghiêm và tôn kính.

Điểm nổi bật của thiết kế này là sự sắp xếp của hai mái nhà vuông góc với nhau để tạo thành một hình chữ L duyên dáng và đẹp từ góc nhìn tổng thể hoặc trên cùng. Các kiến trúc sư đã nghiên cứu toàn bộ ngôi nhà và đưa ra một mẫu vừa thuận tiện cho chủ sở hữu vừa mang đến không gian mới hiện đại, độc đáo, hữu ích cho cả gia đình. Theo đó, tầng ba của biệt thự sẽ là sân chơi ngoài trời của ban công phía trước và được mở từ phòng tập thể dục. Ngay phía sau nhà sẽ là khu vực sân thượng để giặt và phơi quần áo.

Yếu tố về phong thủy nhà ở, tuôi cũng được đặt lên hàng đầu, vì vậy, không chỉ xây dựng một ngôi nhà đẹp cho gia đình mà ngôi nhà còn là điều kiện tiên quyết cho mọi sự phát triển. Mô hình biệt thự này được dành riêng cho chủ nhà có mệnh thuộc Đông tứ mệnh, vì vậy ngôi nhà sẽ hướng về phía đông, được thiết kế ở phía nam và khu vực sân chơi ở phía bắc, thiết kế được bố trí và xây dựng trên hai mặt tiền.

Bản vẽ mặt bằng tầng 1
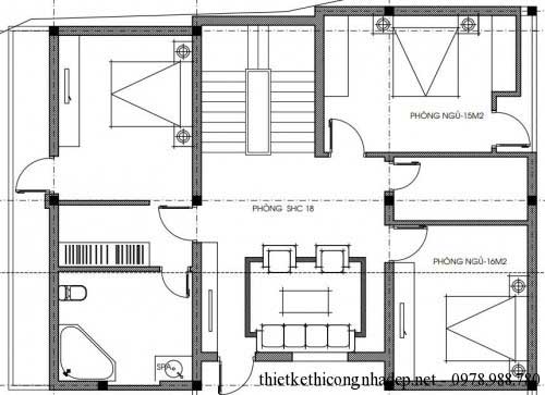
Mỗi không gian sẽ thực hiện một chức năng riêng biệt, theo đó để đáp ứng mong muốn của chủ nhân, tầng trệt sẽ có 1 phòng khách, phòng ăn và bếp, nhà vệ sinh và 2 phòng ngủ.
Phòng khách cũng sẽ là không gian sống cho cả gia đình được đặt ở một bên, bên kia là 2 phòng ngủ. Sẽ có 1 phòng ngủ chính cho gia chủ, phòng ngủ còn lại cho ông bà sử dụng. Nhà vệ sinh chung cho toàn bộ tầng nằm dưới chân cầu thang để lên tầng 2, vị trí này khá kín đáo nhưng cũng rất thuận tiện khi sử dụng.

Bản vẽ mặt bằng tầng 2
Trên tầng 2, một phòng chung sẽ được đặt ở trung tâm, bao quanh là 3 phòng ngủ và 1 phòng tắm chung với diện tích lớn tương tự như không gian phòng ngủ, 2 phòng ngủ sẽ có thêm cửa ra vào ban công,

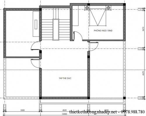
Bản vẽ mặt bằng tầng 3
Phòng ngủ cuối cùng sẽ được đặt trên tầng 3. Đây là không gian dự phòng trong trường hợp gia đình có khách. Tiếp theo sẽ bao gồm một phòng tập thể dục và một bàn thờ. Để thuận tiện cho việc di chuyển và không gian thoáng mát, từ các thành viên phòng tập thể dục có thể kết nối khu vực sân thượng phía trước hoặc phía sau. Tầng 3 cũng sẽ cung cấp một khu vực tương đối cho phòng giặt và phòng phơi đồ.
Nguồn: thietkethicongnhadep.net
Xem thêm những thiết kế nhà phố đẹp tại: https://xaydungso.vn/mau-nha-dep/nha-pho-dep


































