Bài viết sau đây chúng tôi tiếp tục giới thiệu đến bạn những thiết kế của một mẫu biệt thự 3 tầng 8x14m. Đây là một không gian sang trọng phù hợp với các gia đình tầng lớp thượng lưu, ngoài chức năng che chắn ánh nắng mặt trời và mưa, biệt thự cũng là một nguồn cảm hứng và một nơi yên bình cho tất cả mọi người để tìm.
Chân tường của tầng 1 sẽ được sơn bên cạnh tông màu gỗ giả, thiết kế tập trung vào các đường nét và tạo ra một tổng thể hài hòa và hiện đại. Biệt thự mái thái 3 tầng sẽ bao gồm 1 phòng khách, 1 phòng chung, 1 phòng thờ và 1 phòng thể thao, với 4 phòng ngủ được xây dựng cho các thành viên trong gia đình.
Phối cảnh mẫu thiết kế biệt thự 3 tầng 8x14m đẹp

Phối cảnh biệt thự sân vườn 3 tầng - Góc 1

Phối cảnh biệt thự sân vườn 3 tầng - Góc 2

Phối cảnh biệt thự sân vườn 3 tầng - Góc 3
Nhìn chung, ngôi nhà có vẻ đồ sộ và tráng lệ, căn biệt thự được thiết kế sát một bên tường, dễ dàng nhận thấy nó nằm sát mặt sau của khu đất. Để tạo ấn tượng và góp phần bảo vệ ngôi nhà, hàng rào được xây dựng kiên cố, sử dụng vật liệu sắt chắc chắn kết hợp với dây leo để làm đẹp không gian, tăng thêm sự tươi mới, sức sống và ngập lụt. màu xanh lá.
Chi tiết bản vẽ tổng quan về kiến trúc biệt thự sân vườn 3 tầng mái thái hiện đại

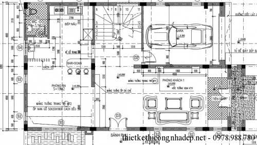
Mặt bằng tầng 1
Tại đây sẽ xây dựng một gara để phục vụ nhu cầu của chủ nhà. Để thiết kế một không gian hợp lý, khu vực sảnh sẽ được bố trí thụt vào so với nhà để xe để dành không gian phía sau cho phòng ăn và nhà bếp, khu vực này được ưa chuộng với diện tích rộng rãi để tạo ra một nơi thoáng mát và thoải mái. . Phòng khách nằm ở trung tâm và có cửa kết nối với khu vực vườn.

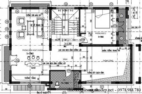
Mặt bằng tầng lửng
Biệt thự 3 tầng trên tầng lửng sẽ bao gồm 1 phòng ngủ, phòng sinh hoạt chung có quầy bar và phòng khách được thiết kế có ban công với lan can. Vật liệu được sử dụng để làm lan can là thép không gỉ và kính cường lực để tạo sự trẻ trung và tinh tế. Cả tầng lửng sẽ dùng chung một phòng tắm, sẽ có nhiều không gian giải trí và sinh hoạt cho gia đình, dịch vụ tối đa cho nhu cầu của khách hàng.

Mặt bằng tầng 2
Mặt bằng tầng hai của biệt thự sẽ bao gồm 3 phòng ngủ bao gồm một phòng ngủ chính rộng rãi có thêm phòng khách, phòng đọc sách và nhà vệ sinh lớn. 2 phòng ngủ còn lại sẽ dùng chung 1 phòng tắm và dành làm không gian riêng cho trẻ em. Hầu hết các phòng ngủ trong biệt thự đều rộng rãi và thoải mái.

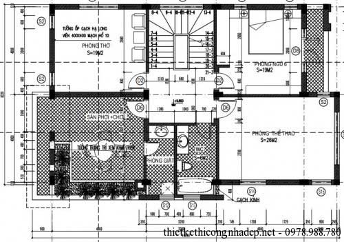
Mặt bằng tầng 3
Phòng ngủ còn lại sẽ nằm trên tầng 3 với nhà thờ và phòng thể thao vì sức khỏe của cả gia đình. Một phòng ngủ bổ sung được sử dụng trong trường hợp nhà có khách. Bên cạnh bàn thờ là khu vực dùng để phơi sân và phòng giặt, phòng tắm nằm ở vị trí thuận tiện đối diện cầu thang cho các hoạt động chung cho toàn bộ tầng 3.

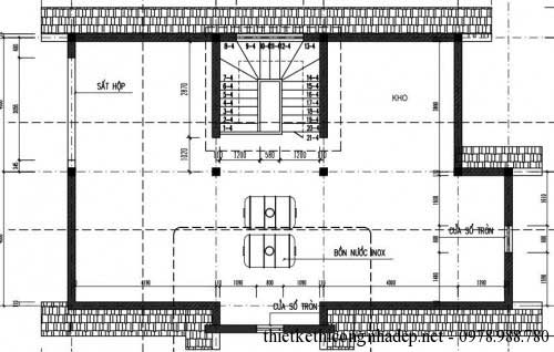
Mặt bằng tầng mái

Mặt bằng tầng tum
Tổng quan về mẫu biệt thự 3 tầng rất đẹp và ấn tượng. Nhưng điểm khác biệt là bàn thờ nằm đối diện với hướng chính của ngôi nhà, mô hình của một biệt thự 3 tầng hiện đại được xây dựng trên một khu đất rộng 10x24m. Do đó, ngoài dự án biệt thự, không gian sân vườn sẽ được kết hợp để tạo ra một cuộc sống hoàn hảo cho những gia đình yêu thích thiên nhiên. Phong cách kiến trúc được sử dụng là thiết kế mái nhà hợp thời trang và hiện đại. Ngay sau mái nhà sẽ đặt một đặt bồn nước nhằm sử dụng cho toàn bộ ngôi nhà. Tùy chọn để thiết kế biệt thự là xây dựng 2 mặt tiền với 2 lớp mái vuông góc thả từ tầng 3 xuống tầng 2, phần giữa của mái dốc được để trống để làm vườn của biệt thự.
Nguồn tin: https://thietkethicongnhadep.net/
Xem thêm tin mới => Mẫu biệt thự nhà vườn mái thái 3 tầng đẹp 8x12m


































