Hiện nay mẫu nhà cấp 4 với chiều ngang 6m rất phổ biến, với chiều dài linh hoạt. Không chỉ đa dạng về mẫu mã mà tính khoa học trong tổng thể của ngôi nhà cũng được đảm bảo. Dưới đây, xây dựng số mang đến cho bạn mẫu nhà cấp 4 hiện đại, đơn giản nhất và được ưa chuộng nhất. Cùng khám phá những mẫu nhà thông qua bài viết này nhé!
Nhà cấp 4 ngang 6m dài 17m theo phong các Châu Âu
Mẫu thiết kế nhà cấp 4 diện tích 6x17m này rất hiện đại, đặc biệt qua cách bố trí mái thái lợp ngói đen và sơn tường trắng sang trọng. Ngôi nhà nhiều cửa sổ này rất tuyệt để có tầm nhìn rộng lớn. Nếu gia chủ có khả năng chi trả thì nên xây ở ngoại ô hoặc nông thôn để tận dụng tối đa sự thông thoáng.

Mẫu nhà cấp 4 ngang 6m dài 17m được thiết kế vô cùng hiện đại. Ngôi nhà này được thiết kế ưu tiên sự thông thoáng để mang lại cảm giác thư thái nhất cho người sử dụng. Cửa sổ được bố trí ở mọi không gian nhằm mang không khí thiên nhiên trong lành vào nhà, hơn nữa còn góp phần tạo nên sự rộng rãi cho ngôi nhà so với diện tích thực tế. Mẫu nhà cấp 4 ngang 6m dài 17m này được ưu tiên sử dụng tone màu chủ đạo, cùng với khung cảnh bao la xung quanh, ngôi nhà như một vùng sáng giữa vùng đất rộng lớn. Thiết kế sang trọng và bố trí hệ thống cây xanh lớn ở phía trước, sau và hai bên nhà khiến không gian này giống như một khu nghỉ dưỡng thực thụ. Một khu nghỉ dưỡng ngay trong chính không gian nhà bạn mà không cần phải đi đâu xa. Đây thực sự là một ngôi nhà lý tưởng được nhiều người mơ ước xây dựng.

Mặt bằng nhà cấp 4 ngang 6m dài 17m
Nhà cấp 4 ngang 6m dài 16m theo phong cách cổ điển
Đây là mẫu nhà ngang 6m dài 16m được thiết kế tối giản nhưng vô cùng ấn tượng. Ngôi nhà được thiết kế mái lệch tầng hiện đại với gam màu xám tro trầm tạo cảm giác huyền bí, kích thích trí tò mò, muốn khám phá không gian bên trong của ngôi nhà ấn tượng này. Tổng quan không gian bên ngoài của ngôi nhà tuy đơn giản nhưng lại mang đến giá trị thẩm mỹ vượt trội.

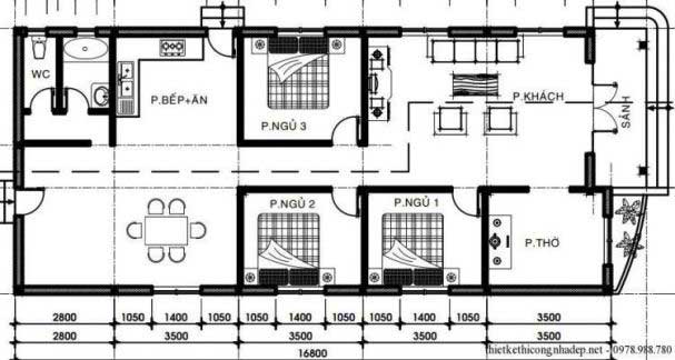
Diện tích xây dựng khá lớn nhưng công năng sử dụng của mẫu nhà này khá lớn. Để đảm bảo không gian sinh hoạt của các thành viên rộng rãi và phù hợp với nhu cầu, ngôi nhà được bố trí 3 phòng ngủ. Phòng khách và bàn thờ được đặt phía trước, sau đó là dãy 3 phòng ngủ. Song song với phòng ngủ là phòng bếp và bàn ăn. Vào sâu trong nhà có phòng vệ sinh chung đảm bảo tiện nghi.

Mặt bằng nhà cấp 4 ngang 6m dài 16m
Nhà cấp 4 ngang 6 dài 16,5m đẹp hút hồn
Mô hình này được chủ nhân dành không gian rộng lớn bên ngoài để làm sân vườn bao quanh. Nhìn từ bên ngoài, ngôi nhà vô cùng nổi bật với gam màu đỏ trên mái ngói, tone màu trắng chủ đạo của sơn tường và màu xanh đặc trưng, tất cả mang đến một tổng thể không gian vô cùng bắt mắt. không thể cưỡng lại hút ngay từ cái nhìn đầu tiên. Sự kết hợp của những gam màu đẹp này cũng phần nào nói lên được cách sống của gia chủ hướng đến sự năng động, một không gian sống tràn đầy sức sống, để những phút giây thư giãn thật ý nghĩa.

Với diện tích đất hơn 6 × 16,5m, gia chủ có thể làm sân vườn xung quanh như hình bên dưới. Gam màu chủ đạo là trắng với phần mái đỏ và những khung cửa gỗ giúp ngôi nhà trở nên nổi bật. Đồng thời cũng làm cho ngôi nhà gần với cảnh quan hơn.

Mặt bằng công năng nhà cấp 4 ngang 6m
Nhà đầy đủ tiện nghi, chia làm 3 phần. Phòng khách rộng đủ để 1 bộ salon và 1 bộ bàn ăn. Song song với phòng khách là 2 phòng ngủ có diện tích như nhau. Bên trong bếp có cửa phụ đi thẳng vào bếp. Mẫu nhà này có 2 phòng tắm, một phòng có cửa đi vào phòng ngủ, phòng còn lại thông với bếp.
Nhà cấp 4 ngang 6m dài 15m đẹp
Nếu diện tích đất của bạn là 6x15m thì lựa chọn mẫu nhà cấp 4 mặt tiền 6m dưới đây sẽ là một ý tưởng tuyệt vời cho mái ấm gia đình bạn. Mẫu nhà này có chiều dài 15m nhưng trước nhà phải mất tới 3m để làm sân và cổng nên diện tích xây dựng chỉ 6x15m. Tuy không gian bạn nhìn từ bên ngoài có vẻ hạn chế nhưng đây là thiết kế hợp lý nhất để bạn sở hữu một không gian tiện nghi, đáp ứng mọi nhu cầu sử dụng của các thành viên trong gia đình.

Mặt bằng nhà cấp 4 ngang 6m dài 15m
Do nhu cầu và mục đích sử dụng của gia chủ nên mẫu thiết kế nhà ngang 6m dài 15m được chia làm 2 phần: 1 bên thiết kế các phòng ngủ; Mặt còn lại là không gian sinh hoạt chung của cả gia đình.

Cửa phòng ngủ và phòng thờ hướng ra phòng khách. Phòng thờ có thể dỡ bỏ bức tường để che với phòng khách nhỏ nhìn sẽ thoáng hơn. Cửa phòng ngủ cho con có thể bố trí phía trong sát với cửa phòng ngủ bố mẹ.Cả 2 phòng ngủ của thiết kế này đều rất rộng rãi. Diện tích một phòng là 15m2. Và phòng ngủ bố mẹ diện tích 18m2.
Giữa nhà là hành lang nội bộ rộng 1m đi qua sân phơi và giếng trời. Để đảm bảo tính thẩm mỹ, ngay cạnh khu vệ sinh được bố trí khu phơi đồ cùng với giếng trời. Mái tôn trong suốt tiết kiệm điện cho gia đình. Nếu có thể, bạn nên lắp trần thạch cao để chống nóng cho ngôi nhà của mình hoặc xây cao hơn để giữ mát.
Nhà ống cấp 4 ngang 6 dài 16m
Mẫu nhà ngang 6m cuối cùng mà chúng tôi giới thiệu được thiết kế theo dạng nhà ống nghiệm. Màu trắng phổ biến kết hợp mái ngói màu cam hiện đại với cửa kính khung sắt. Kiểu nhà này rất tuyệt nếu bạn ở thành phố và muốn xác định rõ chi phí xây dựng.

Mặt bằng nhà cấp 4 ngang 6m dài 16m
Với chiều sâu 16m chỉ 1 tầng, mẫu nhà đã thể hiện được hết công năng của mình. Kiến trúc gồm: 1 phòng khách, bếp và bàn ăn, 2 phòng ngủ và 2 vệ sinh.

Cũng như nhiều mẫu nhà cấp 4 hiện đại mặt tiền 6m, phòng khách được bố trí đầu tiên. Sau đó đến dãy phòng có 2 phòng ngủ và bếp đối diện. Cuối nhà là 2 toilet và 1 cửa phụ dẫn vào phơi phân. Thiết kế này giúp tối ưu lượng ánh sáng vào nhà.
Trên đây là một số mẫu nhà cấp 4 có gác lửng được ưa chuộng nhất hiện nay mà Xây Dựng Số gửi đến các bạn. Hi vọng bạn sẽ tìm được ý tưởng cho ngôi nhà sắp tới của mình!
































