Các mẫu nhà ống thường rất được quan trọng về giải pháp xây dựng khi chúng luôn được biết đến như một kiến trúc với khá nhiều bất lợi về mặt diện tích. Cụ thể là chiều với chiều dài sâu và chiều ngang có phần hạn hẹp hơn rất nhiều từ đó mà cũng kéo theo các nhược điểm cho lối xây dựng của ngôi nhà. Hiểu được những bất lợi đó, các kiến trúc sư các cá nhân trong lĩnh vực xây dựng đã không ngừng sáng tạo không ngừng đổi mới để kiến trúc nhà ống trở nên hoàn thiện hơn.

Nhưng đối với diện tích 7x15m có thể xem như một ưu điểm để bạn có thể triển khai công trình một cách phù hợp khi nhu cầu xây dựng về kiến trúc được nâng cao lên 4 tầng. Điều cần làm của các chủ đầu tư là lên cho mình một ý tưởng xây dựng với chức năng của từng kết cấu từng tầng, tìm cho mình một phong cách trang trí mặt tiền và thiết thực hơn là việc tìm đến một đơn vị thiết kế thi công, mà họ có thể triển khai điều đó một cách cụ thể hơn rất nhiều.
Các đơn vị thiết kế thi công đánh giá như thế nào về mẫu nhà ống 4 tầng 7x15m:
“Thường thì các công trình 4 tầng được sử dụng với khá nhiều ý tưởng trong lối triển khai cho bên trong không gian nội thất trở nên hài hòa hơn. Chúng tôi thường xuyên thiết kế các mẫu nhà dựa theo ý tưởng xây dựng từ khách hàng hoặc có thể đưa ra các biện pháp được cập nhật từ xu hướng xây dựng theo các năm. Nhưng đối với diện tích 7x14m quả thật là một điều kiện quá thích hợp để triển khai công trình bám sát theo những lợi thế từ chúng.

Bạn hoàn toàn có thể thoải mái lựa chọn cho mình theo phong cách mà gia đình đang hướng đến từ hiện đại cho đến lối cổ điển. Nhưng cũng đừng quá tự tin về công trình bởi nếu bạn không định hướng rõ ràng theo phong cách của ngôi nhà mình đang theo đuổi không gian sẽ trở nên nhàm chán hơn bao giờ hết vì những thiếu sót ở từng chức năng.
Nên chọn cho mình phối cảnh mặt tiền như thế nào từ diện tích 7x15m và kết cấu từ 4 tầng :
Việc tìm kiếm cho mình một phối cảnh đẹp, độc đáo khác biệt luôn cần đến khá nhiều tư duy trong việc thiết kế. Bạn cần tham khảo qua các công trình đã được chia sẻ hay đã xây dựng về các mặt tiền trang trí để đưa đến cho mình một tư liệu phù hợp cho ngôi nhà của mình trong tương lai.
Mặt khác, bạn hoàn toàn có thể sử dụng theo các công trình đó để bám sát hoặc tận dụng từ tư liệu đó để triển khai cho công trình nhà ống 4 tầng dựa theo sở thích của mình mà không phải mất quá nhiều thời gian cho việc thiết kế từ phối cảnh mặt tiền.

Lựa chọn các ‘điểm sáng” từ các chia sẻ thông qua các trang mạng về chia sẻ tư liệu về kiến trúc để chọn lọc một hay nhiều ý tưởng phù hợp mà bạn nghĩ chúng sẽ thích hợp với ngôi nhà trong tương lai của mình.
Thuê kiến trúc sư thiết kế, phần lớn các gia đình có điều kiện tốt thường chọn cho mình phương án này để mang đến cho ngôi nhà của mình. Thông qua kinh nghiệm trong lĩnh vực của họ để ngôi nhà có thể trọn vẹn hơn hoàn hảo hơn.

Tìm kiếm cho ngôi nhà một phong cách nội thất phù hợp từ diện tích 7x15m với kết cấu 4 tầng:
Theo các đánh giá khác nhau từ các đơn vị xây dựng lẫn chủ đầu tư thì việc sở hữu một diện tích phía trên quả thật sẽ có rất nhiều lợi thế cho việc xây dựng hay lối tiện nghi về sau khi sử dụng nhưng chúng cũng có những hạn chế nếu như bạn không biết tận dụng điều đó vào trong kiến trúc.

Điểm cần lưu ý ở đây chính là việc tìm kiếm cho ngôi nhà sự đồng bộ về thiết kế nội thất nhà ống. Hãy thử tưởng tượng mỗi góc, mội diện tích là một gam màu khác nhau thì chúng sẽ dễ dàng làm mất điểm từ nét tổng quan của công trình. Bạn cần xác định rõ phong cách mà mình đang hướng đến.
Cần tích hợp những lưu ý thiết yếu cho việc xây dựng của kiến trúc nhà ống 4 tầng thông qua việc chọn lọc thông tin xây dựng hoặc tìm cho mình một nhà thiết kế nội thất để giúp bạn hoàn thành chúng một cách hiệu quả nhất. Mà không phải lo nghĩ quá nhiều về việc ngôi nhà có đẹp không ? có hiện đại không có thực sự mang đến sự tiện nghi cho việc sử dụng không ?

Thay đổi vị trí từ các chức năng sinh hoạt bằng bản vẽ thiết kế nhà ống 4 tầng diện tích 7x15m:
Việc có cho mình với một hay nhiều bản vẽ xây dựng luôn là một phần quan trong cho một công trình giá trị từ diện tích 7x15m và kết cấu 4 tầng. Mà từ đó bạn có thể triển khai chúng theo một kế hoạch phù hợp nhằm tạo nên một sự phù hợp cho công trình hay từ phong cách mà gia đình bạn đang hướng đến. Với bản vẽ thiết kế nhà 4 tầng phía dưới bạn sẽ có một góc nhìn chân thực nhất về từng mặt bằng xây dựng để thích ứng thay đổi hoặc tích hợp các chức năng vào bên trong ngôi nhà.

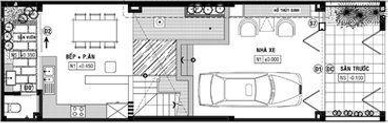
Mặt bằng tầng 1 : Là không gian sinh hoạt chung của gia đình và cũng là nơi để tiếp những vị khách của gia đình nên cũng cần lưu ý khá nhiều đến không gian này. Từ bản vẽ, ta có thế thấy phần sân trước là nơi để tích hợp hệ thống cây xanh dần vào bên trong là nhà xe, hệ thống cầu thang dẫn lên các mặt bằng tầng trên và 1 nhà bếp, 1 nhà vệ sinh kèm 1 khoảng sân nhỏ phía sau nhờ diện tích khá rộng.

Mặt bằng tầng 2 : Thường được sử dụng là không gian sinh hoạt của các thành viên trong gia đình tích hợp bên trong là một phòng khách mà gia đình sử dụng là nơi để nghỉ ngơi nơi mà gia đình quay quần bên nhau. 1 khoảng sân vườn, 1 nhà vệ sinh rộng,1 phòng ngủ với đủ chức năng bên trong và không thể thiếu một ban công phía trước.

Mặt bằng tầng 3 : Được thông lên mặt bằng tầng trên là hệ thống từ cầu thang khi các chức năng của mặt bằng này thường sử dụng là 2 phòng ngủ rộng rãi và đối diện với cầu thang không gì khác chính là một nhà vệ sinh lớn nơi mà các thành viên có thể tận hưởng các tiện ích như bồn tắm, ..vv

Mặt bằng tầng 4 : Mặt bằng tầng thượng, sử dụng là không gian theo chức năng mở mà các thành viên có thể cân đối và tích hợp chúng với các mục đích khác nhau mà họ cho rằng chúng phù hợp với lối sinh hoạt của gia đình mình. Mà bên trong thiết kế, nhà ống đã sử dụng với 1 khoảng sân thượng rộng rãi, 1 sân phơi và 1 không gian chứa đồ vô cùng rộng rãi.
Lựa chọn phối cảnh mặt tiền từ ngôi nhà 4 tầng diện tích 7x15m :
Thông tin về mẫu nhà ống 4 tầng diện tích 7x15m hiện đại
- Dự án thiết kế : mẫu nhà ống 4 tầng diện tích 7x15m
- Chủ đầu tư: Mai Xuân Phương sinh 1968
- Phong cách xây dựng : “Phong cách mang đậm chất nghệ thuật, phóng khoáng và đậm chất tự do. Song song với đó là những mảng thực vật xanh khéo léo để bổ sung làm ngôi nhà thêm uyển chuyển cho ngôi nhà thêm tươi mới” yêu cầu từ chủ đầu tư.
- Địa chỉ : Quận 7 – thành phố Hồ Chí Minh
- Thời gian thi công: ~ 3 tháng.

Dựa trên các tiêu chí ban đầu từ chủ đầu tư cung cấp cho kiến trúc sư, ngôi nhà đã hoàn thành khá tốt nhiệm vụ được giao để mang đến cho không gian sự tươi mới đầy phóng khoáng đúng theo đặc thù nghệ thuật mà gia chủ mong muốn được kết hợp vào công trình xây dựng nhà ở. Đó còn là mảnh ghép hoàn hảo cho ngôi nhà từ những giá trị hiện đại bổ xung vào bộ sưu tập nhà ống đẹp với kết cấu 4 tầng mà xaydungso.vn mong muốn mang đến cho mọi người cùng tham khảo.

Các miếng mảng được kết hợp với nhau một cách hoàn thiện dựa trên các hình khối được cố định với nhau. Đó còn là một sự tươi mới từ hệ thống cây xanh được kết hợp ở mọi mặt bằng xây dựng như chấm phá vào trong công trình nhà ống bằng cái hồn riêng biệt. Các phòng đều được thiết kế thoáng với những mảng tường lớn, mang đến cảm giác thoải mái, bay bổng mà khi nhìn vào tổng quan của ngôi nhà từ hướng mặt tiền có thể thấy được sự khéo léo của kiến trúc sư mang đến cho công trình nhà ống 4 tầng. Là các tông màu sáng tối quan trọng hơn hết để đánh bật không gian.
Từ những thay đổi của thiết kế nhà ống 4 tầng mà chúng đã dần có thêm cho mình với góc nhìn hoàn toàn mới từ kiến trúc nhà đẹp của năm 2021. Chúc cho công trình của bạn sẽ trở nên hoàn hảo hơn, đẹp mắt hơn để dành tặng cho các thành viên trong gia đình bạn. Đừng quên tham khảo các bài viết tiếp theo của chúng tôi để cập nhật thêm những xu hướng xây dựng từ kiến trúc này nhé !
Xem thêm:
































