Việc xây dựng nhà ống 4 tầng với diện tích 90m2 quả thật sẽ mang đến cho chủ đầu tư với một chi phí xây dựng khá lớn nhưng đổi lại không gian này sẽ được biến chuyển thành một chức năng sinh hoạt hay một tác phẩm nghệ thuật mà bạn mong muốn. Với những tư vấn về các mẫu nhà trong bài viết này, những ai đang có nhu cầu xây dựng về kiến trúc này có thể tham khảo ngay nhé !

Dựa trên diện tích xây dựng lên đến 90m2 bạn có thể thấy được lợi thế ban đầu chính là phần diện tích. Kèm theo là kết cấu lên đến 4 tầng mà có thể thỏa sức sáng tạo cho từng căn phòng với từng chức năng một cách tiện nghi nhất như một món quà mà bạn dành cho các thành viên trong gia đình của mình.
Thiết kế nhà ống 4 tầng diện tích 90m2 kết hợp kinh doanh số 1 :
Thông tin về mẫu nhà ống 4 tầng diện tích 90m2 hiện đại tích hợp kinh doanh nhà trọ và văn phòng làm việc :
- Dự án thiết kế : mẫu nhà ống 4 tầng diện tích 90m2
- Chủ đầu tư: Tôn Vũ Minh Phú sinh năm 1960
- Phong cách xây dựng : “Từ những lợi thế bởi diện tích xây dựng lên đến 90m kèm kết cấu từ 4 tầng. Mong rằng với những kinh nghiệm trong chuyên môn của mình thì công trình của gia đình tôi sẽ nhận được nhiều hơn những ưu điểm về một kiến trúc nhà ống để triển khai tốt cho việc cho thuê mặt bằng kinh doanh kèm nhà trọ mà gia đình tôi đã định hướng ngay ban đầu.” yêu cầu từ chủ đầu tư.
- Địa chỉ : Quận 12 – thành phố Hồ Chí Minh
- Thời gian thi công: ~ 4 tháng.
A. Phối cảnh nhà ống 4 tầng với diện tích 90m :
Không phải sự trùng hợp mà với nhu cầu được phản ánh từ rất nhiều gia đình về chủ đầu tư mong muốn giới thiệu về các diện tích 90m trở lên. Và để giải quyết các nhu cầu đó thì chúng tôi đã xem xét và chọn lọc các thông tin dựa trên hồ sơ thiết kế của đơn vị để có thể giới thiệu trong bài viết hôm nay. Và mong rằng kiến trúc nhà ống 4 tầng diện tích 90m với kết cấu từ mái bằng này sẽ giúp thêm nhiều người có thể hình dung về chúng một cách chân thực nhất.

Với một vẻ ngoài sang trọng, ngôi nhà đã mang đến cho người xem với một kiến trúc hoàn toàn khác so với các thiết kế được chúng tôi chia sẻ. Đó là các hình khối được xếp ngăn nắp thể hiện lên với một bố cục đặc sắc khi chúng cũng là điểm nhấn chính để tạo nên một vẻ ngoài hoàn thiện dành cho công trình. Mang cho mình với một gam trắng làm chủ đạo với các ô cửa từ kính cường lực được chấm phá bằng các khung thép như càng giúp cho chúng tạo nên sự chắc chắn và an toàn của ngôi nhà.

Với góc nhìn từ phía chính diện mặt tiền ngôi nhà ta có thể dễ dàng cảm thấy sức hút có không được tập chung mà chia nhỏ ở từng tầng từ vật liệu, vật dụng, đèn chiếu sáng, cây cảnh, ban công như củng cố cho một bố cục tổng quan mang đầy sức hút. Dễ dàng gây thiện cảm từ cái nhìn đầu tiên mà kiến trúc sư đã hoàn thành xuất sắc công trình để mang đến cho chủ đầu tư sự hài lòng.
Bao quanh kiến trúc là một thảm xanh từ thực vật tạo nên sự thông thoáng cho ngôi nhà. Mà với nhiều người cái đẹp có thể nằm ở con mắt của họ nhưng ngược lại với tôi nét đẹp ở đây chính là sự tinh tế, giản dị nhưng không hề thiếu đi sự tráng lệ giữa một khoảng không bình yên. Chính là nơi để trở về để tận hưởng để quay quần bên người thân sau những lần đi xa.
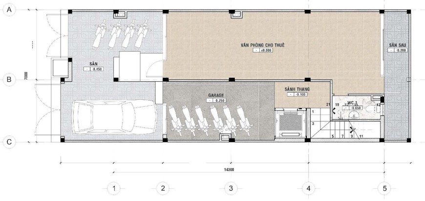
B. Bản vẽ thiết kế nhà ống diện tích 90m từ kết cấu 4 tầng.
Tầm quan trọng của bản vẽ thiết kế từng tầng đã được chúng tôi nhắc lại trong rất nhiều bài viết từ các thiết kế trước. Nhưng vẫn chưa lột tả được tầm quan trọng của chúng trong việc xây dựng một ngôi nhà. Mà chúng là bằng chứng để đối chiếu các chức năng để kịp đưa ra với những phương án cho việc thiếu sót từ đơn vị xây dựng. Và mọi người cùng tham khảo qua thiết kế với từng mặt bằng ngay phía dưới.

Mặt bằng tầng 1 : Là không gian chính để gia chủ sử dụng để phục vụ cho các chức năng từ việc kinh doanh của gia đình. Khi chúng được tích hợp với 1 gara, sân trước,1 văn phòng mà chủ đầu tư muốn cho thuê. Nhờ diện tích rộng mà còn được tích hợp thêm 1 sân sau và 1 nhà vệ sinh lớn cho văn phòng.

Mặt bằng tầng 2 : Là không gian được ngăn cách với 3 gian nhà dành cho mục đích cho thuê. Khi bên trong chúng hoàn toàn phù hợp dành cho các cặp vợ chồng và con cái sinh sống bên trong với các chức năng thiết yếu. Mặt bằng này có cho mình với 4 nhà vệ sinh bên trong để khách hàng từ chủ nhà có thể sinh hoạt một cách thoải mái

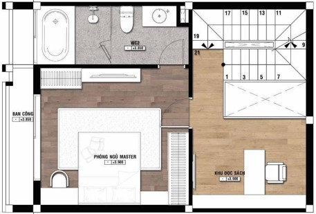
Mặt bằng tầng 3 : Được trở lại với một kết cấu phục vụ dành cho gia đình tư các chức năng như phòng ngủ nhà bếp, nhà vệ sinh, phòng khách được đặt đầy đủ theo các vị trí từ những tính toán cụ thể bởi kiến trúc sư. Và dựa vào cầu thang để di chuyển lên khắp mặt bằng theo chiều thẳng đứng ở góc cuối của ngôi nhà.

Với mặt bằng tầng 4 : Từ bản vẽ thiết kế ngôi nhà có 1 sân thượng, 1 sân phơi là không gian sinh hoạt chung dành cho tổ hợp sinh sống của gia đình và khách hàng thuê nhà. Tại đây có thể làm sân phơi, nơi giải lao, thư giãn tập thể mà chủ đầu tư muốn sử dụng.
Thiết kế nhà ống 4 tầng diện tích 90m2 số 2 :
Thông tin về mẫu nhà ống 4 tầng diện tích 5x18m
- Dự án thiết kế : mẫu nhà ống 4 tầng diện tích 90m2
- Chủ đầu tư: Lương Hoàng Trung sinh năm 1989
- Phong cách xây dựng : “Chúng tôi rất mong muốn có một ngôi nhà đẹp và hoàn thiện theo các chức năng sinh hoạt cụ thể. Đó là các yêu cầu không quá cao nhưng mong rằng kiến trúc sư sẽ thể hiện chúng một cách đặc biệt nhất thông điều kiện sẵn có mà gia đình tôi cung cấp.” yêu cầu từ chủ đầu tư.
- Địa chỉ : Quận 12 – thành phố Hồ Chí Minh
- Thời gian thi công: ~ 4 tháng.
A. Phối cảnh nhà ống 4 tầng với diện tích 90m :
Nhà ống với diện tích 90m được xem như một thiết kế mang đến nét tiện nghi từ và phối cảnh mặt tiền được tạo nên điểm nhấn từ các tổ chức sáng tạo. Đó còn là một xu hướng hoàn toàn mới dành cho các chủ đầu tư lựa chọn dành cho ngôi nhà của mình trong tương lai. Hãy xem qua thiết kế có gì độc đáo và đưa ra cho mình một phương án hiệu quả từ chúng nhé.

Mẫu nhà ống 4 tầng dựa trên diện tích 5x18 mà triển khai theo việc ôm sát diện tích xây dựng để tận dụng tối đa diện tích cho mục đích mở rộng chức năng theo từng phòng. Ngôi nhà sử dụng khá nhiều hệ thống từ vách ngăn với chức năng che chắn cho công trình thể hiện theo vai trò riêng tư. Điểm sáng ở đây không gì khác chính là hệ thống cây xanh được tô điểm cho công trình trở nên hoàn thiện hơn. Nhờ đó mà chức năng từng tầng cũng được thông thoáng, xanh mát hơn rất nhiều.

Thiết kế từ nhà ống như khẳng định được những giá trị mà chủ đầu tư muốn hướng đến cho việc sử dụng, sinh hoạt học tập và làm việc. Khi với diện tích này, các thành viên đều có thể tận hưởng được sự tiện nghi với lối sáng tạo từ bố cục của ngôi nhà. kiến trúc sư đã góp phần làm nên cho ngôi nhà sự tinh tế mà theo góc nhìn khách quan, chúng tôi hoàn toàn bị thuyết phục bởi vẻ ngoài của chúng mang lại.
B. Bản vẽ thiết kế nhà ống 4 tầng hiện đại với tổng diện tích 90m2

Mặt bằng tầng 1 : Là không gian để chứa các phương tiện giao thông kèm theo là phòng khách, không gian nhà bếp đủ để tích hợp với 1 bàn ăn, 1 nhà vệ sinh nằm cạnh chân cầu thang.

Mặt bằng tầng 2 : Sử dựng làm nơi làm việc của gia chủ khi không gian này chiếm gần 1.2 diện tích mặt bằng với phía chính diện là 1 phòng ngủ master được tích hợp đầy đủ các tiện ích bên trong như bồn tắm, nhà vệ sinh nằm trong một căn phòng rộng rãi.

Mặt bằng tầng 3 : Theo kiến trúc thông thường thì với kết cấu này ngôi nhà sẽ được sử dụng với 2 phòng ngủ. Mà bản vẽ đã thể hiện được chúng thông qua 1 phòng ngủ master giá giống phía trên và kèm theo 1 phòng ngủ nhỏ gọn cho các bé.

Mặt bằng tầng 4 : Là không gian sân thượng chiếm phần lớn diện tích với gian phòng tiếp theo là nơi để gia đình luyện tập thể dục thể thao ở một vị trí thông thoáng nằm phía trên cao thực sự phù hợp. Dó đó mà chức năng cũng được mở rộng hơn rất nhiều khi hướng đến với lối tổ chức từ bố cục này.
Từ 2 thiết kế mà chúng tôi mang đến, mong rằng bạn sẽ có cho mình một nguồn tư liệu bổ ích để có thể tự tin cho công trình mà bạn và gia đình đã định hướng trong tương lai. Xin chúc ngôi nhà của bạn sẽ trở nên hoàn hảo hơn bao giờ hết và xin hẹn gặp lại trong các bài viết tiếp theo !
Xem thêm :































