Mẫu nhà ông 4 tầng 4x15m sẽ cho bạn một ngôi nhà tiện nghi với một nhu cầu thiết thực của gia đình với số lượng 4 tầng mà có thể phân chia thoải mái các chức năng bên trong với 3 đến 4 phòng ngủ. Và hoàn toàn có thể kết hợp sinh sống với các thế hệ khác nhau để tiện hơn trong việc chăm sóc an hưởng tuổi gia cho cha mẹ.

Top nhà đẹp 2024 từ mẫu nhà ống 4 tầng diện tích 4x15m dành cho mọi gia đình tham khảo :
Việc tìm kiếm cho mình với một kiến trúc phù hợp được xem như một bước quan trọng cho mọi gia đình mà bạn có thể thoải mái sinh sống, làm việc và học tập bên trong. Đó không gì khác là các tư liệu thiết thực mà mọi người vẫn luôn tìm kiếm trên các diễn đàn xây dựng hay các kênh chia sẻ kinh nghiệm xây dựng. Từ những nhu cầu mang tính thiết thực đó mà chúng tôi, xaydungso.vn đã tổng hợp cho bạn thông qua về bài viết về top những ngôi nhà đẹp. Hãy tìm cho mình một công trình phù hợp nhé và đừng quên để lại cho chúng tôi những đánh giá về ưu nhược điểm của chúng thông qua góc nhìn của bạn !
Top 1 : Thiết kế nhà ống 4 tầng diện tích 4x15m
1.Thông tin về mẫu nhà ống 4 tầng diện tích 4x15m hiện đại
- Dự án thiết kế : mẫu nhà ống 4 tầng diện tích 4x12m
- Chủ đầu tư: Cao Minh Phú sinh 1977
- Phong cách xây dựng : “Cần đến sự tiện nghi bên trong nội thất và yêu cầu cần có cho ngôi nhà từ 4 phòng ngủ và mặt tiền ngôi nhà cần tối giản các chi tiết trang trí. Mặt khác phải tích hợp các chức năng đối lưu không khí một cách tốt nhất để bên trong trở nên thông thoáng” yêu cầu từ chủ đầu tư.
- Địa chỉ : Quận Bình Thạnh – thành phố Hồ Chí Minh
- Thời gian thi công: ~ 3 tháng.
Theo các thông tin đã được gói gọn từ các yêu cầu từ phía chủ đầu tư mà chúng tôi mang đến cho khách hàng với các tư liệu như : Phối cảnh 3d, mặt bằng thiết kế từng tầng mà thông qua chúng, chủ đầu tư có thể có thêm cho mình với những sửa chữa, thay đổi để tiến hành đưa vào thi công theo đúng tiến độ được đưa ra từ 2 bên.
A. Phối cảnh nhà ống 4 tầng 4x15m :

Từ góc nhìn tổng quan về kiến trúc này, bạn hoàn toàn có thể thấy được sự uy nghi và giá trị của công trình mang đến và đó còn là tầm quan trọng của các công trình cao tầng như một lời thể hiện của gia chủ. Không gian được hoàn thiện và có phần đồng bộ ở mặt bằng tầng 2 và 3 khi tầng trệt không có quá nhiều điểm nhấn chỉ là sự góp mặt từ hệ thống cửa ra vào và phía tầng 4 là một không gian hoàn toàn được đổi mới từ sân thượng là nơi là gia đình bạn có thể sự dụng chúng với một mục đích khác nhau cho việc sinh hoạt.
B. Bản vẽ thiết kế từng tầng :
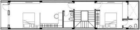
Mặt bằng tầng 1 : Từ diện tích bởi chiều dài lên đến 15m mà bạn có thể sắp xếp không gian với 1 phần sân trước là nơi để xe hoặc tích hợp thêm với 1 sân vườn, bên trong là 1 phòng khách rộng với 1 cầu thang liên thông đến các tầng và phía dưới chân cầu thang là 1 nhà vệ sinh và cuối cùng là một nhà bếp kèm theo với 1 bàn ăn.

Mặt bằng tầng 2 : Đây được sử dựng như không gian để sinh hoạt một cách riêng tư cho các thành viên, khi kiến trúc sư đã phân bổ với 2 phòng ngủ kèm 2 nhà vệ sinh mà không mất quá nhiều thời gian cho việc lên hoặc xuống khi các mặt bằng khác. Đây có thể sử dụng là 2 phòng ngủ cho bố mẹ và 1 phòng cho con nhỏ hoàn toàn hợp lý.

Mặt bằng tầng 3 : Là một sự lặp lại từ mặt bằng phía dưới với tầng số 3 này không gia bên trong này vẫn gồm có với 2 phòng ngủ và 2 nhà vệ sinh để sử dụng cho bé và nơi sinh hoạt của vợ chồng chủ đầu tư. Bên trên là một khoảng ban công nhỏ trồng thêm một số cây xanh như trong phối cảnh mà bạn được thấy phía bên trên.

Mặt bằng tầng 4 : được xem là kiến trúc mở của công trình khi bạn có thể kết hợp cho gia đình với các chức năng mà bạn cho rằng chúng phù hợp. Khi bản vẽ thiết kế gồm có 1 sân phơi và 1 sân thượng, ngoài ra bạn hoàn toàn có thể tìm đến cho mình với một khoảng sân tập thể dục hoặc 1 sân vườn trồng thêm các cây xanh, rau quả để các bé trở nên thích thú hơn với những việc làm bổ ích này.

Theo các tư liệu phía trên thì sau quá trình trao đổi và đưa ra thống nhất, chủ đầu tư đã đồng ý cho tiến hành theo công để đúng theo với tiến độ đã được kí kết từ 2 bên. Còn bạn, bạn có thực sự yêu thích công năng từ ngôi nhà này không ? Bạn thấy được ưu và nhược điểm gì từ chúng ?
Top 2 : Thiết kế nhà ống 4 tầng diện tích 4x15m
1.Thông tin về mẫu nhà ống 4 tầng diện tích 4x15m hiện đại
- Dự án thiết kế : mẫu nhà ống 4 tầng diện tích 4x15m
- Chủ đầu tư: Lương Sơn Thành sinh 1974
- Phong cách xây dựng : “Chúng tôi mong muốn công trình được ứng dụng đổi mới từ thiết kế nhà ống bởi xu hướng xây dựng ngày nay. Bởi các thành viên trong gia đình tôi còn khá trẻ và tôi mong muốn mang đến sự hiện đại này để chúng có thể thoải mái nhất khi trở về nhà” Theo chủ đầu tư chia sẻ
- Địa chỉ : Quận Thủ Đức – thành phố Hồ Chí Minh
- Thời gian thi công: ~ 3 tháng.
A. Bản vẽ thiết kế từ phối cảnh mặt tiền

Từ những yêu cầu của chủ đầu tư mà kiến trúc sư đã đưa ra với một hồ sơ cụ thể và bám sát theo các thông tin đó. Với một sự đổi mới sáng tạo trong kiến trúc là thế mạnh từ anh nên có thể yên tâm vì những gì mà xaydungso.vn sẽ mang đến cho mọi người thông qua hồ sơ thứ 2 này.

Mặt tiền của ngôi nhà đã cho người xem thấy được sự phá cách ở nét tạo hình với sự hiện diện từ các đường nét khỏe khoắn từ các bức tường, là hệ thống vách ngăn kết hợp từ mặt bằng tầng 2 mà còn là màu sắc khá nội bật như một công thức đánh bật công trình với một dáng vẻ uy nghi cao lớn từ kiến trúc nhà ống. Có thể thấy ngôi nhà đã làm tốt khả năng của mình từ những yêu cầu của mình như khẳng định về giá trị của người làm thiết kế.
B. Thiết kế nội thất ngôi nhà 4 tầng 4x15m
Mặt bằng tầng 1 : Được sử dụng với 1 không gian sân trước với nhà để xe, 1 phòng khách, 1 nhà bếp và 1 nhà vệ sinh ở cuối góc nhà. Đã thể hiện được sự tổ chức khoa học mà kiến trúc sư mang đến cho người sử dụng.

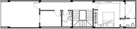
Mặt bằng tầng 2 : Không gian hiện lên với 1 không gian sinh hoạt chung là nơi mà các thành viên có thể nghỉ ngơi thư giãn và nằm bên cạnh cầu thang là phòng ngủ số 1. Khi 2 không gian này kèm theo với 2 nhà vệ sinh bên trong.

Mặt bằng tầng 3 : Được sử dụng như một mặt bằng thể hiện với 2 phòng ngủ nằm cạnh với câu thang thông lên. Tuy vậy phòng ngủ phía bên trái có diện tích rộng hơn rất nhiều và nên sử dụng cho các cặp vợ chồng và phía sau sẽ là phòng ngủ của các bé.

Mặt bằng tầng 4 : Là kết cấu cao nhất bên trong công trình khi kiến trúc sư đã thiết kế thêm với 1 phòng ngủ thêm phía sau và mặt bằng phía trước là một không gian mở khi đây sẽ được kết hợp từ những nhu cầu mà gia đình lựa chọn như : 1 phòng thờ. 1 phòng làm việc, 1 nhà kho chứa đồ hoặc có thể sẽ là căn phòng dành cho khách ngủ lại đều phù hợp.

Kiến trúc tiếp theo khá phù hợp theo quan điểm từ cá nhân tôi khi các diện tích đã được tối ưu hóa từ các diện tích phù hợp. Công trình này đang được tiến hành mang đến cho chủ đầu tư nhưng từ những ảnh hưởng từ đại dịch nên đang được bảo lưu lại công ty. Và chúng sẽ được triển khai trong năm mới thông qua trao đổi từ chúng tôi và chủ đầu tư.
Trên là 2 thiết kế được chúng tôi mang đến từ việc thiết kế ngôi nhà có diện tích 4x15m với kết cấu 4 tầng. Các bài viết tiếp theo sẽ là bộ hồ sơ khác với các diện tích khác và thiết kế khác để bạn có thể lựa chọn một cách thoải mái nhất cho những định hướng sắp tới. Như thường lệ, xin chào và hẹn gặp lại mọi người !
Xem thêm:


































