Để giúp các gia chủ có nhu cầu xây dựng nhà 2 tầng đáp ứng đầy đủ công năng. Trong bài viết này, Xây Dựng Số sẽ giới thiệu đến các bạn những mẫu nhà phố 2 tầng 7x10m được thiết kế tinh tế về kiến trúc ngoại thất cũng như bố trí công năng khoa học, giúp cuộc sống thêm tiện nghi và thoải mái.
1. Phương án thiết kế mặt bằng nhà phố 2 tầng 7x10m

Ngôi nhà có thiết kế hình khối hiện đại, vững chắc và toát lên sự khỏe khắn cũng như bề thế. Hệ thống trụ cột trồn trước mặt tiền giúp cho ngôi nhà thêm sang trọng và thanh thoát. Toàn bộ chân trụ cột đều được ốp gạch hiện đại, tăng tính thẩm mũ đồng thời hạn chế chân tường bị ngấm mưa và ẩm mốc sau này.
Mặt tiền được thiết kế ấn tượng với những đường phào cũng như gờ chỉ tinh tế, cùng với những khối bê tông giúp cho căn nhà thêm sang và sáng hơn. Thay vì sử dụng gỗ tự nhiên với những ngôi nhà đồ sộ, ở đây các kiến trúc sư đã thiết kế của nhom kính màu nâu giúp trung hòa về màu sắc cũng như hình khối cho mẫu thiết kế nhà phố 2 tầng đẹp. Với màu sắc chủ đạo là tráng và be, kết hợp với những điểm nhấn trang trí như màu nâu, vàng sáng đã tạo nên tổng thể hài hòa và ấn tượng.

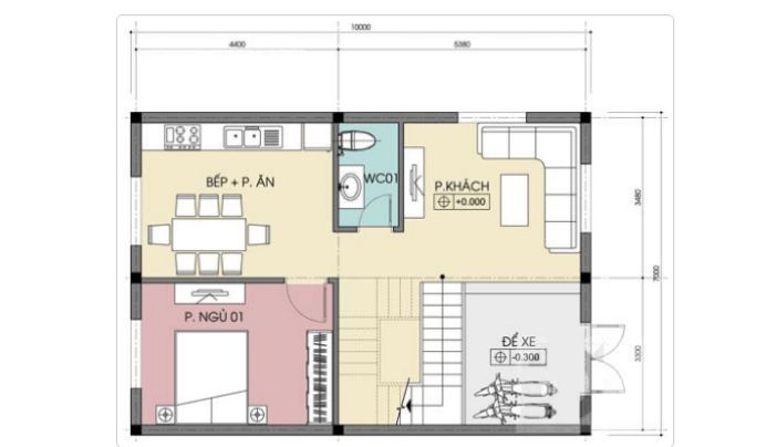
Bản vẽ mẫu nhà phố 2 tầng này được thiết kế chia đôi diện tích chiều rộng làm 2 không gian song hành cũng nhau là phòng khách và khu vực để xe. Tiếp giáp với khu vực để xe và giao với phòng khách là cầu thang thông tầng, ngăn cách không gian phòng ngủ 1 với khu để xe, nhà vệ sinh chung được thiết kế ngay cạnh phòng khách, tiếp giáp với khu vực bếp nấu và bàn ăn.

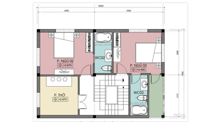
Tầng 2 thiết kế với 2 phòng ngủ cùng1 phía. Cả 2 phòng ngủ được có nhà vệ sinh khép kín vài đây là phòng ngủ chính. Phòng thờ được thiết kế riêng 1 góc, khá thông thoáng và tiếp giáp với khu vực cầu thang thông tầng.

Tầng thượng được thiết kế là khu giặt và không gian của sân phơi, sân chơi cho các thành viên trong gia đình nên rộng rãi và thoáng mát.
2. Gợi ý phối cảnh nội thất của thiết kế nhà 2 tầng 7x10m

Phòng khách được thiết kế nội thất sang trọng và xa hoa. Một bộ sofa trắng xếp chữ U ở trong phòng. Toàn bộ phòng khách và khi vực bếp, bàn ăn được lát gạch cẩm thạch trắng cao cấp đầy trang nhã. Phía xa lối cầu thang lên là tiểu cảnh nhỏ xanh mát gần gũi với thiên nhiên.

Phòng ngủ master của căn nhà gây choáng với tầm nhìn đẹp. Phòng ngủ được thiết kế ấm áp, gần gũi mà vẫn toát lên sự sang trọng. Giường ngủ kích thước lớn và tủ quần áo đều được làm bằng gỗ sồi cao cấp. Điểm nhấn ở đây là phòng có ban công rộng và cửa kính nên gia chủ có thể ngắm cảnh đêm.

Phòng ngủ của các con có diện tích tuy nhỏ nhưng rất tiện nghi. Với bé trai thì căn phòng được trang trí màu xanh dương tươi tắn ngộ nghĩnh. Còn bé gái thì nên trang trí dễ thương. Góc học tập, tủ quần áo đều được bố trí hợp lý cho bé cho sử dụng.
3. Chi phí xây dựng nhà phố 2 tầng 7x10m là bao nhiêu?

Mỗi công trình xây dựng đều có một mức giá khác nhau, tuy nhiên để đáp ứng được mọi nhu cầu theo từng gia chủ, các đơn vị thi công thiết kế, kiến trúc sư sẽ có những phương án để đưa ra được các mẫu thiết kế phù hợp nhất. Như chúng ta thường thấy, kiến trúc nhà 2 tầng hiện rất đa dạng và bao gồm nhiều kiểu kiến trúc khác nhau như hiện đại, cổ điển, tân cổ điển, đơn giản, đồng quê... Tuy nhiên, chúng ta phải biết rằng mỗi một thiết kế khác nhau thì sẽ có một dự toán chi phí khác nhau.
Hầu hết, đối với những mẫu nhà phố 2 tầng 7x10m càng phức tạp, yêu cầu càng cao, nhiều hoa văn, họa tiết thì thời gian thi công thường lâu và mức giá thành cũng cao hơn. Ngược lại, đối với những mẫu nhà đơn giản, yêu cầu bài trí và nội thất vừa phải, không quá cầu kỳ thì mức giá thành sẽ thấp, phù hợp hơn. Cùng với đó thì bạn cũng nên chú ý đến việc lựa chọn vật liệu xây dựng, bởi nếu chọn vật liệu cao cấp thì mức chi phí sẽ cao hơn và ngược lại. Vậy nên, tùy vào điều kiện kinh tế của mỗi người sẽ có những lựa chọn khác nhau, dẫn đến mức chi phí xây dựng cũng sẽ khác nhau.
3.1 Công thức tính chi phí xây phố 2 tầng 7x10m bao tiền?
Trong xây dựng việc tính chi phí thiết kế thi công nhà ở vốn không phải là điều dễ dàng. Chúng phụ thuộc vào nhiều yếu tố khác nhau như tổng thể m2, giá nhân công, tiền nguyên liệu... Tuy nhiên để trả lời cho câu hỏi “Xây nhà phố 2 tầng 7x10m2 hết bao tiền?”, sau đây Xây Dựng Số xin đưa ra công thức mô phỏng để chủ nhà có thể tham khảo và biết được mức chi phí dự trù là khoảng bao nhiêu.
Công thức tính diện tích xây dựng thường như sau:
- Trệt bao gồm sàn trệt và móng tính hệ số 150% diện tích
- Tầng 1 tính hệ số 100% diện tích
- Sân thường, mái che tính hệ số 50% diện tích
- Mái nhà: nếu là mái tôn tính 30%, mái ngói 50%, mái ngói đổ bê tông tính 70-100%
Ví dụ để bạn dễ hiểu hơn
Một căn nhà với diện tích xây dựng 1 sàn 70m2 ( 2 tầng ) mái ngói hệ vì kèo, ta tạm tính tổng diện tích xây dựng như sau:
Trệt: 70×1,5 + lầu 1: 70×1 + mái: 70×0,5 = 210m2
Đơn giá xây dựng hoàn thiện sẽ tính trên 1 mét vuông (trọn gói thô + hoàn thiện )
– Vật tư trung bình hiện có giá khoảng 5.000.000 đồng/m2
– Vật tư khá có mức giá khoảng 5.500.000 đồng/m2
– Vật tư tốt có chi phí khoảng 6.000.000 đồng/m2
Từ ví dụ trên: 210m2 x nhà 2 tầng dao động 5 – 6 tr lấy 5,5 tr = 210× 5,5 = 1.155.000 vnđ.

Lưu ý: Trên đây là đơn giá tham khảo dành cho nhà ở phố biển hiện nay và chỉ có tính chất tham khảo. Tùy vào tình hình thự tế, diện tích xây dựng, vị trí, vật liệu hoàn thiện... sẽ có mức giá khác nhau. Thực tế, sau khu có bản vẽ thiết kế chi tiết và khảo sát tổng thể thì chúng ta mới có được mức giá thành cụ thể của từng mẫu nhà. Hơn nữa, trong quá trình xây dựng thường có nhiều phát sinh vì thế bạn nên tìm đến đơn vị, nhà thầy xây dựng chuyên nghiệp để được các kiến trúc sư tư vấn đầy đủ và chi tiết cũng như có câu trả lời chính xác nhất và chi phí xây nhà phố 2 tầng 7x10m.
3.2 Kinh nghiệm xây nhà 2 tầng 65m2 hết bao nhiêu tiền
Tùy theo tình hình địa hình thức thế cũng như kiến trúc xây dựng, thi công và nguyên liệu, nhà thầu xây dựng mà chúng ta sẽ có những mức chi phí khác nhau cho ngôi nhà của mình. Để có thể xác định được mức chi phí xây nhà phố 2 tầng 7x10m, chúng ta phải hiểu biết về xây dựng, tìm kiếm thông tin qua mạng, qua kinh nghiệm từ những người đã thi công trước đó và sự tư vấn của kiến trúc sư.
Một trong những mẹo nhỏ để có thể xây dựng nhà phố 2 tầng ứng ý đó là chúng ta cần hoạch định chi phí bằng bảng thống kế mức giá các nguyên vật liệu, số tiền chi trả cho việc thi công. Đồng thời, với bảng này, chúng ta sẽ biết được khoảng thời gian thi công dự kiến và hạn chế chi phí phát sinh không đáng có.
Ngoài những điều trên, các gia chủ nên tìm cho mình một đơn vị, nhà thầy xây dựng đồng hành uy tín. Bằng không mọi cố gắng, nỗ lực của bạn cho ngôi nhà sẽ đổ xuống sông xuống bể.
4. Top 10 mẫu thiết kế nhà 2 tầng 7×10m siêu đẳng cấp
Sau đây, chúng tôi sẽ giới thiệu tới bạn một số mẫu thiết kế nhà phố 2 tầng diện tích 70m2 siêu đẳng cấp. Đây đều là những mẫu nhà phố 2 tầng đang được nhiều gia chủ đánh gia cao về tính thẩm mỹ và tiện nghi.

Mẫu nhà phố 2 tầng số 1 được nhiều gia chủ lựa chọn nhờ sự tiện nghi, trẻ trung và độc đáo. Đây là mẫu nhà tiêu biểu xây dựng các khối hình học với chức năng trang trí, điểm nhấn nổi bật là mái xéo. Ngoài ra, mẫu nhà phố 2 tầng 7x10m này còn mang lại không gian nội thất mới mẻ và nhiều tiện tích, thiết kế theo nhiều lối phá cách tạo nên sự đa dạng trong đường lối kiến trúc. Ngoài ra, nguyên vật liệu xây dựng lựa chọn cũng thân thiện với môi trường. Cửa kính được sử dụng nhiều để tạo không gian mở, thoáng mát và tạo sức sống cho ngôi nhà.

Mẫu nhà phố 2 tầng 7x10m với mái bằng. Với đường nét thiết kế thanh lịch, khỏe khoắn cùng kết cấu tiện nghi, ấm cũng các mẫu nhà 2 tầng mái bằng hứa hẹn sẽ mang đến một không gian sống hiện đại và thoáng mát cho các gia đình. Ấn tượng đầu tiên của mẫu nhà phố này là sự thanh lịch, khỏe khoắn từ màu sắc cho đến đường nét thiết kế. Các kiến trúc sư đã chọn tông màu trắng làm chủ đạo để mang đến sự nhẹ nhàng. Thiết kế mài bằng phù hợp với xu hướng hiện đại cũng như thuận lợi cho việc lên tầng sau này.

Mẫu thiết kế nhà phố 2 tầng 7x10m với mái thái. Trong thời gian gần đây, xu hướng thiết kế nhà 2 tầng mái thái đang ngày càng trở nên phổ biến. Điều này xuất phát nhờ tính ưu việt của hệ mái thái. Nhìn vào mẫu thiết kế nhà phố 2 tầng 7x10m trên, tuy không đồ sộ, quy mô nhưng nó vẫn chinh phục được trái tim nhiều gia chủ bởi dáng dấp thanh thoát, cao ráo nhờ hệ mái thái màu xanh. Nổi bật trên nền sơn trắng giúp đem lại hiệu ứng thẩm mỹ cao lại hợp thời.

Mẫu nhà phố 2 tầng với mái này sử dụng hệ thống cửa lớn với nhiều chất liệu kính. Kính là vật liệu điển hình của thiết kế nhà phong cách hiện đại. Hệ thống cửa kính lớn giúp căn nhà lấy ánh sáng tự nhiên và đón gió tạo không gian thoáng đãng. Kiến trúc mái lệch không chỉ khiến người xem trầm trồ về độ mới lạ bên ngoài mà còn khiến khách quan từ ngạc nhiên này tới ngạc nhiên khác với nội thất bên trong. Theo đó, tất cả các căn phòng đều được bố trí nội thất logic, sắp xếp gọn gàng và ngăn nắp nhằm mang đến không gian sống cân bằng, ổn định.
Trên đây là một số mẫu nhà phố 2 tầng 7x10m mà Xây Dựng Số muốn gửi đến các bạn. Hi vọng sau khi tham khảo các mẫu nhà phố đẹp, các bạn sẽ có được những ý tưởng thiết kế ngôi nhà hiện đại và tối ưu công năng, diện tích cũng như chi phí xây dựng.
Xem thêm
Mẫu nhà phố 2 tầng 4 phòng ngủ


































