Ở các khu vực thành phố hay dân cư đông đúc với sự hạn chế về diện tích nên các mẫu nhà phố thường được xây dựng với quy mô 3 tầng nhằm tăng thêm không gian sử dụng. Vậy nên, mẫu nhà phố 3 tầng diện tích 60m2 cũng được nhiều gia chủ quan tâm. Trong bài viết này, Xây Dựng Số xin giới thiệu đến các bạn mẫu nhà phố 3 tầng đẹp hiện đại với chi phí xây dựng tiết kiệm.
1. Chi phí xây dựng nhà phố 3 tầng diện tích 60m2 hiện nay và các yếu tố ảnh hưởng

Thực tế, tùy vào mẫu của căn nhà thí mới xác định được gchính xác giá thiết kế nhà phố, ví dụ như chi phí xây nhà theo phong cách hiện đại sẽ khác với cổ điển. Bởi những chi tiết trong phong cách xây nhà cổ điển đòi hỏi sự tỉ mỉ, tốn thời gian và công sức kéo theo chi phí độn lên. Nhưng đó chỉ là một trong những yếu tố cơ bản, sau đây là những yếu tố cốt lõi để xác định được chi phí xây dựng nhà phố 3 tầng 60m2: diện tích tầng lầu, diện tích móng, diện tích mái bằng, diện tích tầng trệt.
Có nhiều cách để tính diện tích xây dựng nhưng đây là quy chuẩn cơ bản để đưa đáp án, mặc dù đáp án không chính xác nhưng chỉ sai lệch với thực tế từ 5-10%. Vậy nên, việc xác định chi phí là cực kỳ quan trọng để gia chủ có thể chuẩn bị đầy đủ tài chính, không làm gián đoạn quá trình thi công. Lưu ý: tùy theo từng mẫu nhà thiết kế sẽ có phương án tính diện tích tổng thể khác nhau, cách trên được sử dụng phổ biến nhất.

Đơn giá xây dựng nhà phố 3 tầng phần thô hiện nay sẽ dao động khoảng 4.000.000 VNĐ/m2. Phần thô chính là phần khung phác họa những đường nét cơ bản để tạo nên một ngôi nhà hoàn chỉnh, ví dụ như trang trí, nội thất...
Đơn giá xây dựng trọn gói có giá khoảng 5.000.000 đến 7.000.000 VNĐ/m2. Đây là hình thức xây dựng mà khi chuyển giao cho gia chủ, đơn vị xây dựng đã hoàn tất mọi thứ tổng thể ngôi nhà về mặt xây dựng và nội thất (nếu có). Vì tất cả các công việc đều giao cho nhà thầu nắm giữ nên việc chọn nhà thầu uy tín là điều rất cần thiết cho ngôi nhà tương lai của bạn.
Đây là hình thức xây dựng mà khi chuyển giao cho chủ nhà, đơn vị xây dựng đã phải hoàn tất mọi thứ tổng thể của ngôi nhà về mặt xây dựng và nội thất (nếu có). Vì tất cả công việc đều giao cho nhà thầu, đơn vị xây dựng nắm giữ nên chọn một nhà thầu uy tín là rất cần thiết.
2. Mặt bằng công năng mẫu thiết kế nhà phố 3 tầng 60m2 hiện đại

Nhìn vào mặt bằng của căn nhà, chúng ta có thể thấy các kiến trúc sư đã tận dụng 1m để thiết kế sân trước, không gian gara được thiết kế khá thông thoáng, làm không gian đệm trước khi bước vào phòng khách. Cầu thang thiết kế thông tầng ở giữa nhà, chân cầu thang được tận dụng làm nhà vệ sinh chung. Phía trong cùng là phòng bếp và bàn ăn được thiết kế rộng rãi, bố trí khoa học theo quy tắc tam giác. Điểm nổi bật là giếng trời được thiết kế phía sau, vừa thoáng vừa đón nhận được ánh sáng tự nhiên cho căn nhà.

Tầng 2 với 2 phòng ngủ, mỗi phòng đều có nhà vệ sinh riêng. Phòng ngủ 1 có hướng ban công trước, đón ánh sáng tự nhiên. Phòng ngủ 2 gần giếng trời, tạo thành dòng đối lưu giúp lưu thông không khí cho không gian bên trong.

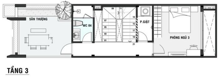
Tầng 3 có 1 phòng ngủ được thiết kế gần với giếng trời sau, phòn giặt được bố trí ngay cạnh sảnh thang. Phía bên kia cầu thang là nhà vệ sinh chung, được bố trí gần sân thượng phía trước là không gian chung cho sân phơi và sân chơi.
3. Phương án phối cảnh kiến trúc thiết kế nhà 3 tầng 60m2

Phối cảnh thiết kế mặt tiền mẫu thiết kế 3 tầng diện tích 60m2
Để tiết kiệm chi phí cho gia chủ, các kiến trúc sư đã lựa chọn phong cách thiết kế hiện đại và đơn giản. Thiết kế mái bằng với lối kiến trúc khỏe khoắn làm cho căn nhà tràn đầy sức sống. Phần mặt tiền với sơn màu trắng chủ đạo, bên cạnh là những khoảng màu cam đến từ vật liệu đá ốp tường giúp căn nhà trở nên nổi bật hơn. Tầng trệt được thiết kế khoảng lùi để tạo sự thông thoáng, lấy ánh sáng tự nhiên cho căn nhà. Thiết kế cổng gỗ hiện đại có kiểu dáng đơn giản phù hợp với tổng thể.

Các phòng ngủ được thiết kế có bố cục hình khối vuông vắn, đường nét hướng đến sự đơn giản, nhẹ nhàng. Với mặt tiền 6m, toàn bộ căn nhà 3 tầng diện tích 60m2 phụ thuộc vào lấy ánh sáng từ mặt tiền này. Do đó, các kiến trúc sư đã nghiên cứu tối giản các diện tường, mở rộng ban công, cửa sổ để đón ánh sáng tối ưu nhất. Những không gian xanh là chi tiết không thể thiết trong thiết kế mẫu nhà 3 tầng ngày nay. Do đó, việc bố trí khoảng không gian cho phép gia đình trồng nhiều cây xanh giúp căn nhà thoáng mát cũng như thân thiện với thiên nhiên hơn.

Mẫu nhà phố 3 tầng này đáp ứng nhu cầu sử dụng cho gia đình 4 thành viên nên được thiết kế có 3 phòng ngủ. Trong đó, phòng ngủ dành cho vợ chồng và phòng ngủ dành cho con trai, con gái. Các công năng đều được bố trí hợp lý, đầy đủ tiện nghi. Toàn bộ không gian tầng 1 được thiết kế làm gara để xe cho già đình và 1 nhà vệ sinh chung đượcbố trí gọn gàng dưới chân cầu thang giúp tiết kiệm không gian.
4. Một số mẫu nhà phố 3 tầng 60m2 hiện đại các gia chủ có thể tham khảo

Nếu bạn đang băn khoăn chưa biết nên thiết kế nhà phố 3 tầng diện tích 60m2 đẹp như thế nào thì đây sẽ là một trong những gợi ý tuyệt vời cho gia đình bạn. Mẫu nhà phố 3 tầng có phong cách tân cổ điển với những màu sắc, không gian mở tạo nên không gian sống hoàn hảo nhất. Với đặc điểm diện tích không quá rộng của lô đất, mẫu nhà phố này với kiến trúc tân cổ điển, vừa hiện đại vừa cổ điển đã tạo nên một tổng thể hoàn hỏa nhất. Thiết kế nhà phố 3 tầng này hướng đến việc tạo không gian mở cho các gia đình.
Tầng 1 sử dụng cửa cuốn để tiết kiệm diện tích và tạo không gian sử dụng nhiều hơn nhưng vẫn đảm bảo sự an toàn cho căn nhà. Tầng 2 và tầng 3 được thiết kế đơn giản nhưng việc tận dụng các khối kính đã tạo nên không giản với nhiều ánh sáng tự nhiên và nhìn thông thoán hơn. Đặc biệt, ban công tầng 3 sử dụng chất liệu sắt với họa tiết cổ điển màu đen tạo ra sự khác biệt cho căn nhà, cũng như trung hòa màu trắng chủ đạo hoàn hảo nhất.

Trên nền diện tích 5x16m, mẫu nhà phố 3 tầng trên yêu cầu mặt tiền thiết kế theo phong cách hiện đại, có giếng trời để thông gió và lấy ánh sáng tự nhiên vào nhà. Đây là điều dễ hiểu ở các ngôi nhà phố hiện nay vì có diện tích khá hẹp, nên nếu không thiết kế giếng trời hoặc ban công thì sẽ rất ngột ngạt, bí bách và ảnh hưởng đến không gian sinh hoạt của cả gia đình.
Mặt tiền được thiết kế mang đậm chất hiện đại với các hình khối mạnh mẽ, chắc khỏe và cuốn hút bởi các mảng tường ốp đá tối màu cao cấp tại tầng 1. Các tầng còn lại có ban công thiết kế với màu sắc hài hòa. Điểm nổi bật nhất của mẫu nhà phố 3 tầng này là sự kết hợp ăn ý các màu sắc ở mặt tiền. Màu trắng được dùng làm chủ đại, công thêm màu nâu nhạt của toàn bộ tầng 2 để tạo điểm thu hút mắt. Không những thế, các kiến trúc sư còn chú trọng đến ban công các tầng khi sử dụng ốp trần gỗ mộc mạc cùng hệ thống đèn chiếu sáng khắp mặt tiền.

Với thiết kế mái bằng, ngôi nhà phố 3 tầng dường như trông hiện đại và thanh thoát hơn. Sân thượng thiết kế có khoảng hở với giàn che bằng sắt giúp đón ánh sáng cũng như phục vụ sở thích trồng cây và thư giản cho gia chủ. Tổng thể mẫu nhà phố 3 tầng diện tích 60m2 này cho thấy sự kết hợp hoàn hảo giữa các khối hình với không gian xung quanh. Các gam màu sắc nhẹ nhàng trung tính cũng giúp không gian ngoại thất thêm phần bắt mắt hơn.
Trên đây là một trong những mẫu nhà phố 3 tầng diện tích 60m2 đẹp và đảm bảo được công năng sử dụng tối đa mà Xây Dựng Số muốn gửi tới các bạn. Hi vọng với những thông tin trên, chúng tôi có thể giúp các gia chủ có thêm những ý tưởng thiết kế cho căn nhà của riêng mình. Hãy lựa chọn cho gia đình một phong cách phù hợp nhất cho ngôi nhà mơ ước nhé.
Xem thêm
Mẫu nhà phố 3 tầng mặt tiền 4m
Mẫu nhà phố 3 tầng 1 tum mái thái


































