Mẫu biệt thự sân vườn cấp 4 đẹp diện tích 15x16m mọc lên như nấm, tạo nên một khí chất rất riêng cho quá trình công nghiệp hóa, hiện đại hóa ở nước ta.
Ngày nay, khi đến những vùng nông thôn mới, chúng ta sẽ ngỡ ngàng bởi sự phát triển vượt bậc của nông thôn Việt Nam. Những biệt thự vườn cấp 4 nông thôn mọc lên như nấm, tạo nên một khí chất rất riêng cho quá trình công nghiệp hóa, hiện đại hóa ở nước ta.
Độc đáo biệt thự vườn cấp 4 nông thôn
Như chúng ta đã biết thì biệt thự vườn cấp 4 nông thôn là một trào lưu kiến trúc nhà ở đang được nhiều sự lựa chọn nhất trong những năm gần đây. Phong cách hiện đại đáp ứng đúng nhu cầu sử dụng của các hộ gia đình và chi phí đầu tư vừa phải tiết kiệm. Khi thiết kế biệt thự nhà vườn đẹp ở nông thôn người Việt rất coi trọng việc chọn địa điểm làm nhà, dựa trên kinh nghiệm và sự hiểu biết về vùng đất cư ngụ sinh sống, sao cho thuận lợi để tận dụng giá trị của đất.
Khi nhắc đến biệt thự vườn cấp 4 nông thôn người ta nghĩ đến một ngôi nhà vô cùng khang trang, to đẹp và hoành tráng. Tùy thuộc vào kinh phí để xây dựng mà mỗi ngôi nhà sẽ có những diện tích khác nhau, độ khó, chi tiết và cầu kỳ khác nhau. Ngoài ra, còn tùy vào gu thẩm mỹ riêng của mỗi người sẽ lựa chọn bản thiết kế biệt thự vườn sân vườn cấp 4 nông thôn

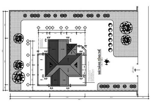
Mặt bằng phối cảnh

Thiết kế phối cảnh tổng thể

Mặt đứng bên trục A-G

Mặt đứng sau trục 5-1

Mặt cắt 1-1

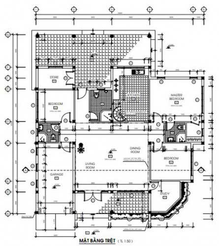
Mặt bằng bố trí phòng

Chi tiết các cửa sổ

Chi tiết cửa đi chính của ngôi nhà
Thông thường những mẫu nhà cấp 4 nông thôn theo kiểu biệt thự vườn khép kín, mẫu thiết kế nhà này được xây dựng trên lô đất có diện tích 28 x 29 mét. Diện tích đất xây dựng là 15 x 16 mét, mặt bằng tầng 1 được bố trí 3 phòng ngủ, 3 phòng vệ sinh, 1 phòng bếp , phòng làm việc riêng, phòng ăn và phòng khách được bố trí tại trung tâm của ngôi nhà.
Với những mẫu thiết kế này thì chỉ phù hợp với các lô đất có diện tích lớn, thoải mái để thiết kế, ở các thành phố lớn mà kiếm được một mảnh đất diện tích lớn mà không xây dựng thiết kế theo mẫu nhà này thì quả là lãng phí. Hầu hết các mẫu thiết kế biệt thự vườn cấp 4 có diện tích thi công rất rộng nên chi phí thi công cho mẫu biệt thự vườn cấp 4 này là rất cao nên các bạn cần lưu ý chi phí khi xây dựng.
Điểm nhấn của nhà biệt thự vườn cấp 4 nông thôn
Điểm thu hút đầu tiên đó là mặt kiến trúc nhà vườn cấp 4. Nhà biệt thự vườn truyền thống của Việt Nam là diện tích sân vườn lớn, được xây dựng nhiều ở nông thôn, vì các hộ dân có diện tích đất khá rộng và kiểu nhà này phù hợp với mức thu nhập của họ.

Hình ảnh minh họa chỉ mang tính chất tham khảo
Những ngôi nhà biệt thự vườn cấp 4 nông thôn thường có một bộ phận không thể thiếu được đó là mảnh vườn. Nó là linh hồn, là điểm thu hút đặc biệt cho ngôi nhà, bài trí không gian xanh ở từng vùng miền có được thiết kế với những điểm độc đáo và đặc trưng riêng. Nó phản ánh không gian thiên nhiên vô hạn, sự hài hòa giữa con người với môi trường xung quanh.
Vì vậy, khi nhìn vào tổng thể ngôi nhà, diện tích khuôn viên thường chiếm tỉ lệ lớn hơn so với ngôi nhà, phần lớn được làm sân vườn trồng cây cảnh và cây ăn quả, tạo bóng mát có tác động điều hòa môi trường, che nắng, gió và chắn tầm nhìn vào nhà.
Nếu các bạn có nhu cầu tư vấn thiết kế xin vui lòng liên hệ, đội ngũ kiến trúc sư chúng tôi sẽ hết lòng để phục vụ các bạn. Phương châm làm việc “khách hàng là ông chủ duy nhất”, chắc chắn sẽ có những bản thiết kế biệt thự vườn cấp 4 nông thôn hiện đại, độc đáo khiến các bạn hài lòng.
Nguồn tin: thietkethicongnhadep.net
Xem thêm tin về kiến trúc nhà đẹp 2021 tại: https://xaydungso.vn/mau-nha-dep


































