Bạn sở hữu một lô đất tương đối hẹp, bạn muốn xây dựng một căn biệt thự, đó là những căn biệt thự mini bắt mắt, lộng lẫy. Để các chủ đầu tư có thêm ý tưởng cho mẫu biệt thự này trong phạm vi bài viết này của chúng tôi xin được giới thiệu đến các chủ đầu tư những mẫu nhà biệt thự 900 triệu đồng tiết kiệm chi phí xây dựng nhất hiện nay.
Hình ảnh 3D mẫu nhà biệt thự 900 triệu tiết kiệm chi phí nhất hiện nay

Mở đầu cho bộ sưu tập chúng ta cùng đến với căn biệt thự mái bằng tiết kiệm chi phí một cách tối ưu nhất. Căn biệt thự này với mức chi phí phù hợp với nhiều chủ đầu tư trên cả nước. Sự thanh thoát, nhẹ nhàng đã làm nên nét đẹp cho mẫu biệt thự này. Màu sắc trắng sáng đã làm bật tone màu của các sản phẩm nội thất, cũng như những điểm nhấn làm nên vẻ đẹp của căn biệt thự mái bằng này.

Vẫn là một phong cách thiết kế hiện đại nhưng mỗi kiểu nhà lại mang những nét đẹp riêng. Nhà biệt thự với mặt tiền 8m này được xây dựng với 4 tầng kết hợp 1 tum và sân thượng. Bạn có thể lựa chọn mẫu biệt thự này kết hợp với hình thức kinh doanh như kinh doanh nhà nghỉ. Sự sang trọng hiện đại này chắc chắn mỗi lần khách hàng đến nghỉ chân tại đây sẽ để dấu ấn đẹp về một căn biệt thự sang trọng hiện đại. Bạn không có nhu cầu kinh doanh, bạn xây với mục đích để gia đình sinh sống thì chắc chắn căn biệt thự này sẽ mang đến cho bạn và gia đình một cuộc sống tận hưởng thực thụ với sự tiện nghi, một không gian trong lành lí tưởng. Đặc biệt là ở khu vực sân thượng với phần mái che có lẽ đây sẽ là không gian thư giãn để bạn thả hồn mình cùng thiên nhiên giũ bỏ hết mọi muộn phiền của cuộc sống.

Từng đường nét, màu sắc được kết hợp với nhau một cách ăn ý, hài hòa. Ngôi nhà rất thoáng đãng khi tông màu chủ đạo là màu trắng làm nổi bật những điểm nhấn là màu nâu của gỗ, hệ thống cửa kính, lan can sắt tĩnh điện càng góp phần mở ra một không gian rộng rãi, thoáng đãng. Không gian xanh được chú trọng mang đến một bầu không khí dịu nhẹ, trong lành...

Ghi lại dấu ấn cho các chủ đầu tư bằng lối thiết kế phá cách, mang đậm chất mới lạ, độc đáo, đó là những gì mà mẫu biệt thự có chi phí 900 triệu mái lệch mang đến cho chúng ta. Điều đặc biệt ở chỗ khác hẳn với những phong cách mái bằng, mái thái, hệ mái lệch đúng như tên gọi trọng lực dồn về một bên tạo thành sự khác biệt. Ngoài ra ở mẫu biệt thự này còn toát lên một vẻ đẹp của sự lịch thiệp, trang trọng mà vô cùng hiện đại. Bước chân vào khuôn viên bên trong của ngôi nhà bạn còn cảm thấy ngỡ ngàng trước sự sáng tạo trong thiết kế các phòng chức năng mà nổi bật, chỉnh chu nhất có lẽ là không gian phòng khách nơi mà bạn và gia đình sinh hoạt nhiều nhất, nơi mà bạn thường xuyên tiếp những vị khách khi đến nhà... Tất cả tạo nên một tổng thể tuyệt vời mà chúng ta không cần chỉnh sửa hay cảm thấy khiếm khuyết điều gì từ căn biệt thự này.

Tiếp theo chúng ta cùng nhau chiêm ngưỡng một căn biệt thự cũng có chi phí 900 triệu đồng. Bạn cứ nghĩ rằng với 900 triệu bạn không thể trọn lựa một căn biệt thự theo phong cách tân cổ điển, điều này hoàn toàn không đúng, biết lựa chọn mẫu thiết kế phù hợp, lựa chọn 1 nhà thầu uy tín, lựa chọn đúng thời điểm thi công thì việc sở hữu một căn biệt thự Tân cổ điển trên đây là hoàn toàn có thể.
Một lưu ý chúng tôi muốn các bạn hiểu rõ hơn đó là với những ngôi nhà 900 triệu chúng tôi giới thiệu đến các bạn đó là những mẫu nhà đẹp nhất và chỉ là phần thô chưa bao gồm nội thất. Với giá cả thị trường tang vọt như hiện nay sẽ ảnh hưởng rất lớn đến chi phí chung cho toàn bộ ngôi nhà. Nếu tiến hành xây những căn biệt thự khoảng 900 triệu các bạn hãy lưu ý cho cả phần nội thất nữa nhé.
Phối cảnh bản vẽ căn biệt thự 900 triệu ấn tượng nhất hiện nay
Phối cảnh bản vẽ biệt thự nghe thì có vẻ như khá quen thuộc ai cũng từng nghe đến bản vẽ thiết kế. Tuy nhiên không phải ai trong chúng ta cũng nắm rõ, hiểu biết về bản vẽ xây dựng, đặc biệt là những người không chuyên về lĩnh vực xây dựng thì lại càng khó có thể biết được phối cảnh bản vẽ xây dựng là như thế nào?

Bản vẽ thiết kế cho căn biệt thự có giá trị 900 triệu đó chính là một bộ hồ sơ hoàn chỉnh về toàn bộ cấu trúc của căn biệt thự. Qua bản vẽ thiết kế này chúng ta có đầy đủ một tập hồ sơ diễn giải về hình dáng, kích thước của căn biệt thự, cũng như cụ thể hóa kết cấu hoàn chỉnh của ngôi nhà. Thông qua đây các kỹ sư, các đơn vị nhà thầu xây dựng có thể biết được quy cách xây nên một căn biệt thự với diện tích, kích thước cụ thể cho từng phòng chức năng.

Sự chi tiết, tỉ mỉ rõ ràng trong bản thiết kế trên đây của chúng tôi các chủ đầu tư có thể dễ dàng nắm bắt được từng m2 xây dựng cho các phòng chức năng. Mỗi phòng có diện tích là bao nhiêu? Được đặt ở vị trí nào. Từ đó bạn chỉ cần nhìn vào bản thiết kế là đã có thể biết được cấu trúc cơ bản của ngôi nhà, đồng thời trong quá trình thi công bạn có thể theo dõi từ bản thiết kế này xem phía nhà thầu có thi công đúng hay không? Nếu sai thì có cách khắc phục kịp thời. Vì vậy mỗi căn nhà hay căn biệt thự đều không thể thiếu đi một bản vẽ thiết kế hoàn chỉnh.

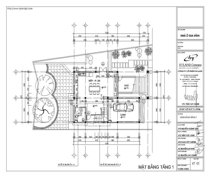
Mặt bằng tổng thể nội thất mẫu nhà biệt thự 900 triệu tiết kiệm chi phí
Mặt bằng tổng thể nội thất là gì? Với những người trong nghành có lẽ đã khá quen thuộc. Tuy nhiên với những người làm ở lĩnh vực khác thì có lẽ không phải ai cũng biết được thuật ngữ này. Mặt bằng tổng thể nội thất dưới đây của chúng tôi phần nào giúp các chủ đầu tư hình dung được thế nào là mặt bằng tổng thể nội thất.

Như hình ảnh về mặt bằng tổng thể trên đây ta hiểu mặt bằng chính là hình chiếu phần còn lại của ngôi nhà lên mặt phẳng hình chiếu bằng sau khi đã cắt bỏ đi phần trên là phần mái. Trong trường hợp trong một tầng nhà có nhiều cửa ở những độ cao khác nhau để diễn tả được hết thì ta dùng phương pháp mặt cắt ngoặt để diễn tả hết được mặt bằng tổng thể của ngôi biệt thự 900 triệu.

Như vậy ta có thể hiểu rằng bản chất của mặt bằng tổng thể nội thất cũng là mặt cắt mà mặt phẳng cắt tưởng tượng song song với mặt phẳng hình chiếu bằng. Để có thể dễ dàng phân biệt với các vết cắt đứng thì lúc này người ta gọi tắt là mặt bằng. Mặt bằng là hình quan trọng nhất được thể hiện trong các bản vẽ xây dựng. Ý nghĩa của mặt bằng nội thất là giúp ta có thể biết được kích thước từ đó có thể bố trí các phòng chức năng, giao thông nội bộ trong căn biệt thự, vị trí của từng phòng, kích thước, độ rộng dày tường...
Xây dựng số nơi trao gửi niềm tin, mơ ước

Bạn đã có cho mình được một ý tưởng thiết kế cho mẫu biệt thự 8x10m. Tuy nhiên để biến ý tưởng ấy thành hiện thực thì buộc bạn phải tìm kiếm được một nhà thầu có thương hiệu, uy tín vì xây dựng biệt thự là một công trình lớn, đòi hỏi độ kĩ thuật cao. Trong sự băn khoăn lo lắng của các chủ đầu tư này chúng tôi xin được gợi ý đến các chủ đầu tư cách tìm kiếm đơn vị thiết kế thi công xây dựng biệt thự uy tín ở khắp các tỉnh thành trên cả nước thông qua sàn giao dịch thương mại điện tử chuyên về lĩnh vực xây dựng có tên sàn Xây Dựng Số.

Sàn xây dựng số trong nhiều năm qua gây dựng được tiếng tăm, nhiều chủ đầu tư biết đến là nhờ có một hệ thống nhà thầu chất lượng có mặt ở mọi tỉnh thành trên cả nước. Tất cả những nhà thầu mà Xây Dựng Số tư vấn đến các chủ đầu tư khi tìm hiểu về sàn đó là những nhà thầu đã qua khảo sát chất lượng, bằng bộ hồ sơ năng lực đẹp với những công trình xây dựng nói chung và biệt thự nói riêng xếp vào những công trình xuất sắc, được nhiều chủ đầu tư yêu thích, hơn nữa những đơn vị nhà thầu của chúng tôi luôn đặt chữ tâm, chữ tín lên hàng đầu, thực hiện đúng bản hợp đồng, không phát sinh chi phí, tiết kiệm một cách tối đa nhất... Với những lí do ấy đã khẳng định được tên tuổi của sàn trong nhiều năm qua trên lĩnh vực xây dựng kết nối qua Internet.


































