Một xu thế mới hiện nay của đông đảo người dân khi thiết kế cho ngôi nhà của mình đó là nhà cấp 4 mái thái hiện đại trên diện tích 7x19m. Vừa là sự kết hợp của truyền thống và bắt kịp xu thế hiện đại khi thiết kế mái thái cho ngôi nhà thân yêu của mình.
Thiết kế nhà cấp 4 mái thái 7x19m độc đáo và ấn tượng
Mẫu nhà cấp 4 mái thái hiện đại được thiết kế theo kiểu dáng biệt thự vườn, đây là một mẫu thiết kế nhà cấp 4 thường gặp theo phong cách của Châu Âu, các bạn có thể bắt gặp các mẫu thiết kế nhà cấp 4 này của các công ty nước ngoài có trụ sở tại Việt Nam ở các tỉnh thành có diện tích đất rộng rãi. Hoặc theo dõi những bộ phim nước ngoài, hình ảnh những ngôi nhà mái thái sang trọng cũng là điểm nhấn cực kì thú vị.

Hình ảnh chỉ mang tính chất tham khảo.
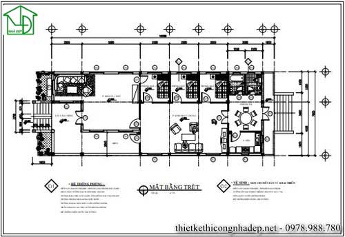
Còn lý do vì sao người Châu Âu thường xây dựng nhà theo kiểu này thì các bạn có thể tự tìm hiểu nhé, sẽ có khá nhiều điều thú vị trong câu chuyện này đấy. Những thiết kế nhà cấp 4 mái thái hiện đại mặt bằng nhà được bố trí với 3 phòng ngủ, phòng ăn phòng bếp chung, phòng khách chung với phòng thờ và cả ngôi nhà có riêng một phòng sinh hoạt chung được đặt tại giữa vị trí của ngôi nhà.
Bản vẽ mặt bằng và công năng nhà cấp 4 mái thái đẹp xây dựng trên diện tích 7x19m
Xét về mặt kiến trúc thì mẫu nhà cấp 4 mái thái này cũng khá đẹp được kết hợp giữa phần mái ngói và mái bằng một điểm nhấn cực kỳ thu hút. Phần sảnh hiên được thiết kế với mái che là mái bằng còn toàn bộ nhà đều được sử dụng mái ngói ngoài tính thẩm mỹ còn giúp cho không gian trong nhà thêm mát mẻ về mùa hè.
Ngôi nhà phân chia không gian độc đáo tạo nên những khối chính, phụ mang đến sự chắc chắn và tinh tế hơn, mặc dù không cần phải sử dụng quá nhiều các chi tiết trang trí kiến trúc cầu kỳ, diêm dúa. Chính nhờ điều này đã mang lại sự hài hòa về cách sắp xếp bố cục, công năng sử dụng cũng như thẩm mỹ dành cho toàn bộ ngoại thất công trình.
Toàn bộ không gian sảnh trước, sảnh phụ xung quanh nhà được thiết kế bồn trồng hoa và tiểu cảnh. Sự kết hợp chặt chẽ giữa không gian mát mẻ của thiên nhiên và cảnh quan sân vườn luôn được hiện diện trong mỗi không gian của công trình.

Mặt bên

Cửa đi chính

Mặt bằng trệt

Mặt bằng mái thái

Mặt bằng mặt cắt hầm tự hoại

Thông kê các cửa

Mặt bằng bố trí hệ thống điện

Mặt bằng cấp thoát nước

Mặt bằng, mặt cắt triển khai toilet

Mặt bằng,mặt cắt dầm móng

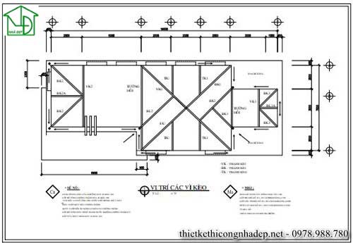
Vị trí bố trí vì kèo
Kiến trúc mái thái phát huy mạnh mẽ những ưu thế của mình trong công trình. Với khối dốc, đua rộng, mái ngói xanh ghi cùng với hệ trụ cột và mặt tiền thông thoáng tạo nên những hiệu ứng cảm quan tích cực cho người nhìn khi đứng trước mặt tiền công trình. Những thiết kế nhà cấp 4 mái thái hiện đại sẽ ấn tượng đặc biệt theo kiểu mang lại không gian sống, sinh hoạt hòa quyện cùng thiên nhiên sẽ giúp tạo ra và mang đến cho chủ nhân sinh sống trong ngôi nhà cảm giác bình an, thoải mái nhất.
Toàn bộ không gian nhà, sân, vườn hòa quyện nhuần nhuyễn với nhau tạo nên một bức tranh vô cùng đẹp mắt. Thiết kế mẫu nhà cấp 4 mái thái này sẽ nổi bật hơn khi xây hàng rào tường cao, cửa cổng sắt tạo sự vững chãi, an toàn và cách biệt.
Nếu các bạn ưng ý một mẫu thiết kế nhà nào đó xin vui lòng gửi email cho chúng tôi, chúng tôi sẽ gửi tới các bạn file để các bạn có thể tham khảo tốt nhất. Nếu các bạn có nhu cầu tư vấn thiết kế xin vui lòng liên hệ, đội ngũ kiến trúc sư chúng tôi sẽ hết lòng để phục vụ các bạn. Phương châm làm việc “khách hàng là ông chủ duy nhất”, chắc chắn sẽ có những bản thiết kế nhà cấp 4 mái thái hiện đại đẹp, độc đáo khiến các bạn hài lòng.
Nguồn tin:
Xem thêm tin mới:


































