“Tôi đang mong muốn tìm kiếm cho mình một công trình từ kiến trúc nhà ống với diện tích 8x16m. Thông qua các trang xây dựng từ các thông tin chia sẻ của các kiến trúc sư mà vẫn chưa tìm ra một thiết kế phù hợp cho gia đình mình. Mà với dự tính trong năm 2021 này, gia đình tôi sẽ đổi mới để thay đổi đi không gian đã sống hơn 22 năm”

Sau khi được bạn bè và đồng nghiệp giới thiệu về đơn vị thiết kế thi công từ xaydungso.vn tôi đã liên hệ để hợp tác với đơn vị. Thông qua các tư vấn trực tiếp kèm các hợp đồng xây dựng là pháp lý để ràng buộc hai bên, công trình của gia đình tôi đang trong từng bước hoàn thiện những thao tác cuối cùng để có thể sinh hoạt ngay. Hôm nay, tôi sẽ giới thiệu đến mọi người về ngôi nhà của mình với kiến trúc nhà ống 2 tầng với diện tích 8x16m. Hy vọng mọi người sẽ thích những gì mà tôi chia sẻ.
Kiến trúc nhà đẹp từ thiết kế dạng ống với diện tích 8x16m tại tp Hồ Chí Minh :

Hồ sơ thiết kế từ ngôi nhà :
- Dự án thiết kế : mẫu nhà ống 2 tầng 1 tum diện tích 8x16m
- Chủ đầu tư: Vũ Minh Phi sinh năm 1984
- Phong cách xây dựng : mặt tiền hiện đại công năng trang trí nhằm tạo nên sự khác biệt từ nội thất với sự tiện nghi. 3 phòng ngủ - 3 nhà vệ sinh – 1 phòng khách – 1 nhà bếp - 1 tum
- Địa chỉ : Quận 12 – thành phố Hồ Chí Minh
- Thời gian thi công: ~ 3 tháng.
Xaydungso.vn đã mang đến cho chúng tôi một góc nhìn hoàn toàn khác về một kiến trúc ngày nay khi kết hợp được xu hướng xây dựng của thời kỳ hiện đại. Như một bước đổi mới hoàn toàn cho lối sinh hoạt, vận hành cũng như việc sinh hoạt học tập hay làm việc của các thành viên. Mà đó cũng là những tư liệu về các góc chụp từ chính tôi kèm theo là bản vẽ xây dựng để giúp mọi người có thể hiểu rõ hơn về chúng, nào hãy bắt đầu ngay từ phần thiết kế nhé.
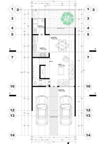
1. Bản vẽ thiết kế của ngôi nhà dạng ống có diện tích 8x16m :
Đây là thông tin ban đầu được kiến trúc sư gửi đến cho chúng tôi thông qua ý tưởng ban đầu mà tôi và đơn vị đã có những trao đổi thực tế. Tìm ra một phương án phù hợp nhất dành cho ngôi nhà. Khi bám sát vào tính tiện dụng, hiện đại, sáng tạo từ các thành viên trong đơn vị như đã góp một phần quan trọng để ngôi nhà trở nên hoàn thiện hơn rất nhiều. Chắc chắn rằng, với những ai chưa có nhiều kinh nghiệm xây dựng nhà như tôi cần đến khá nhiều sự giúp sức của đơn vị thiết kế thi công và cần chậm rãi để tiến hành từng bước một cách đúng đắn.

Với mặt bằng tầng trệt từ ngôi nhà, tôi đã định hướng sẵn với một khoảng sân rộng phía trước với diện tích đủ cho 2 chiếc xe ô tô nhà mình. Dần đi vào không gian nội thất bên trong là 1 phòng khách phải nằm ở đầu tiên với một kích thước phù hợp rộng rãi, thoáng mát tiện nghi bởi tôi hay tiếp khách tại nhà. Sâu vào bên trong là một bàn ăn rộng và nằm về phía bên góc trái là vị trí của nhà bếp và 1 nhà vệ sinh nằm ở cuối. Vì nhà nằm cạnh ngay mặt tiền nên tôi chọn cho mình với phương án sử dụng sân vườn phía sau để tiện cho các mục đích cá nhân.

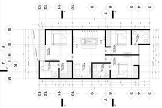
Dẫn lên hệ thống từ mặt bằng tầng 2 gia đình tôi chọn cho mình với 3 phòng ngủ với 2 phòng nằm ở cuối ngôi nhà là các không gian của 2 bé nhà tôi khi bên trong có đủ các tiện nghi cho việc sinh hoạt như nhà tắm, nhà vệ sinh đầy đủ. Ở phần chính giữa là nơi sinh hoạt chung của gia đình có đủ các thiết bị như máy vi tính, tivi, kệ sách, bàn làm việc để các thành viên có thể học tập làm việc và giải trí ở ngay không gian này. Và nằm ở vị trí phía mặt tiền là phòng ngủ của vợ chồng tôi khi không gian này có thể tích hợp với 1 nhà vệ sinh 1 nhà tắm một không gian làm việc và nơi để ngủ bằng 1 chiếc giường rộng. Bằng các yêu cầu ban đầu và kết hợp từ sự tư vấn khá nhiều của kiến trúc sư mà không gian tầng 2 trở nên tiện nghi hơn bao giờ hết.

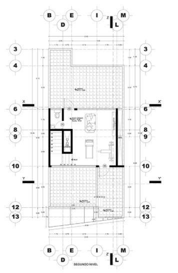
Kế tiếp là phần tum bên trên là không gian để gia đình có thể sinh hoạt bằng các hoạt động khác nhau như sân phơi, nơi tập thể dục, nơi giải trí khi kết hợp thêm là sân vườn nhỏ để các bé trồng cây xanh và không thể thiếu 1 nhà vệ sinh bên trên. Đây cũng là một ý tưởng khá hay từ kiến trúc sư mang đến khi diện tích sinh hoạt được nâng cao hơn mà chi phí để bỏ ra cho kết cấu này cũng không quá nhiều. Mà những ai đã đọc tới đây thì hãy lưu ý cho mình với thông tin này nhé, chúng sẽ là một điểm sáng cho chính công trình nhà ống của bạn đấy.

Và đây chính là bố cục với hình thể từ mặt tiền ngôi nhà mà đã được tôi vẽ phác thảo nên để kiến trúc sư có thể gọt dũa, sáng tạo nên một hình khối đơn thuần thành một nét độc đáo và lạ mắt hơn so với các mẫu nhà đã được thấy quá nhiều. Với việc phân bổ các hệ thống từ cửa ra vào, cửa sổ hay cả hệ thống tum phía trên đều được lắp đặt đầy đủ hệ thống thông gió để ngôi nhà trở nên thông thoáng hơn, mát mẻ hơn những ngôi nhà khác mà tôi đã trực tiếp đi vào để khảo sát. Đây cũng là phần đáng để mọi người lưu ý để sử dụng vào trong ngôi nhà của mình theo một cách hiệu quả nhất. theo một cách hiệu quả nhất.
2. Phối cảnh nhà ống đang trong quá trình hoàn thiện bởi phần thô :
Đây là một tư liệu hiếm hoi mà tôi chụp lại được từ ngôi nhà trước khi chúng được hoàn thiện thông qua các nét tạo hình từ điểm nhấn mà bản vẽ đã cho bạn thấy thông qua tư liệu phía trên. Ngôi nhà có điểm nhân chính là nét tạo hình có phần đặc biệt từ mặt tiền mà bạn có thể thấy rõ thông qua hình ảnh này.

Đây là công trình thứ 2 của gia đình tôi và từ theo các nguồn tư liệu kèm theo các tư vấn từ người thân thì gia đình tôi chọn cho mình với phương án từ hạng mục xây dựng trọn gói để tránh đi những thất thoát mà còn kiểm soát được công trình hằng ngày mà không phải tính toán hay lập ra một kế hoạch xây dựng với nguồn thu chi làm mất thời gian bởi vợ chồng tôi vẫn phải tiếp tục công việc hàng ngày tại cơ quan. Dựa trên những thông tinh mang tính thuyết phục cao mà tôi đã chọn cho mình với phương án xây dựng này.
3. Phối cảnh nhà ống đẹp 2 tầng từ diện tích nhà ống 8x16m đang trong giai đoạn hoàng công.

Đây là góc chụp mặt tiền số 1 ngôi nhà của chúng tôi mà bạn có thể nhận thấy rõ nét nhất phương án từ công trình mà chúng tôi muốn hướng đến cho ngôi nhà. Không gì khác chính là điểm nhấn từ nét tạo hình bên ngoài đã làm tốt nhiệm vụ của mình bằng một sự thành công nhất định và chiếm được thiện cảm từ người đi đường. Tuy với vẻ ngoài không quá bắt mắt nhưng ngôi nhà có cho mình với sự chấm phá tự nhiên từ các hệ thống gạch ốp tường. Là phương án khá tiết kiệm chi phí mà lại đạt hiệu quả cao theo thời gian vì chúng chịu ảnh hưởng trực tiếp từ các điều kiện thời tiết.

Ngôi nhà nằm ở ngay mặt tiền đường nên chúng tôi sử dụng mọi vật liệu cao cấp với khả năng chống ẩm, chống nóng, cách âm một cách hiệu quả. Nhưng không phải thiết kế nào cũng có thể khai thác được tối đa mục đích mà chủ đầu tư hướng đến, thay vì từ tìm kiếm thì việc liên hệ cho các đơn vị thiết kế thi công sẽ mang đến hiệu quả cao hơn mà ngôi nhà của gia đình tôi có thể sẽ là một dẫn chứng cụ thể dành cho mọi người cùng tham khảo. Thông qua góc chụp chính diện từ mặt tiền ngôi nhà, bố cục của chúng hiện lên mang đến sự hiện đại từ các bức tường trắng khi sự đối lập về màu sắc từ các đường viền, gạch ốp mà còn đến từ hệ thống mái, cửa kính tạo nên sự chắc chắn, khỏe khắn điều làm chúng tôi luôn tự tin để mang đến cho mọi người cùng tham khảo.
4. Đánh giá từ chúng tôi về công trình nhà ống diện tích 8x16m sau khi hoàn công :
Đây hoàn toàn là một không gian sống tiện nghi với các yêu cầu ban đầu mà kiến trúc sư đã khai thác tối đa chúng thông qua một quy luật cụ thể để làm nên cho chúng tôi một công trình tiện nghi này. Bạn hoàn toàn có thể tìm đến với Xaydungso.vn để có thể nhờ đến sự tư vấn từ đội ngũ thông qua địa chỉ từ website cung cấp.

Đây cũng là lời chào tạm biệt đến mọi người, cảm ơn đơn vị đã tạo điều kiện cho chúng tôi được chia sẻ ngôi nhà của mình đến với nhiều người để cùng tham khảo để phát triển và cải tạo chúng sao cho hợp lý với công năng sử dụng của từng gia đình.
Trên là những chia sẻ từ anh Vũ Minh Phi là đối tác của chúng tôi. Cảm ơn với những chia sẻ tích cực từ anh và rất mong nhận được thêm các đánh giá tích cực từ mọi người trong các bài viết tiếp theo !
Xem thêm :


































