Nhà phố mang đến một sức ảnh hưởng lớn đến các vùng đô thị, thành phố lớn khi chúng trở thành một công trình điển hình và giải quyết được vấn đề về diện tích vốn làm gây ra rất nhiều khó khăn cho chủ đầu tư lẫn các gia đình đang có nhu cầu xây dựng nhà ở. Khi chúng cũng là một phương án hiệu quả nhất để mang đến một không gian sinh sống cho các gia đình với thu nhập không quá cao, kết hợp sinh sống từ 2 đến 3 thế hệ vẫn hoàn toàn phù hợp.
Bài viết hôm nay, sẽ mang đến một kiến trúc nhà ống với kích thước 5x12m mà mọi người có thể cân đối không gian một cách hiệu quả khi sử dụng các thiết kế, phối cảnh trang trí từ xaydungso.vn cung cấp. Đây cũng có thể là một tư liệu dành cho mọi người tham khảo nhằm bổ sung vào kinh nghiệm xây dựng cho bản thân khi bạn đã có đủ điều kiện để xây dựng một ngôi nhà. Hãy cùng xem qua bài viết để hiểu rõ nhất về công trình được chúng tôi giới thiệu.
Tìm cho mình một thiết kế nhà ống phù hợp với diện tích 5x12m :
Để tìm cho mình một kết cấu phù hợp từ ngôi nhà ống thông dụng thì trước tiên bạn cần có cho mình một thiết kế từ bản vẽ nhằm định hình được bố cục bên trong ngôi nhà và cả phối cảnh bên ngoài mặt tiền mà minh đang hướng đến nhằm khắc phục những thiếu sót trước khi tiến hành thi công cho ngôi nhà. Mặt khác đây cũng một bước quan trọng để ngôi nhà trở nên hoàn thiện hơn mà tránh đi tình huống xấu nhất có thể gặp phải trong quá trình xây dựng. Thông qua các chia sẻ phía dưới hãy tìm cho mình một thiết kế phù hợp nhất !
1. Mẫu thiết kế số 1 từ kiến trúc nhà ống có diện tích 5x12m :
Đan xen với nhưng thiết kế mái thái, mái nhật hay mái giật cấp thì hệ thống từ mái bằng vẫn giữ nguyên cho mình với một vị trí quan trọng trong lòng của rất nhiều gia đình yêu mến sự hiện đại. Với kết cấu này, bạn hoàn toàn có thể lựa chọn cho mình theo một bố cục nhất quán từ các hình khối tạo hình làm không gian trở nên tiện nghi hơn, đẹp mắt hơn.

Ngôi nhà được chủ đầu tư lựa chọn cho mình với màu sắc sáng khi kết hợp một cách phù hợp với nét tổng quan mà công trình hướng đến. Phân bổ các điểm nhấn từ các đường chỉ tạo hình, hệ thống chiếu sáng kết hợp chức năng trang trí mà các hình khối cũng được cộng hưởng một phần dựa trên sự sáng tạo từ kiến trúc sư mang đến. Tất cả như đã tô điểm cho không gian thêm hài hòa với cảnh quan xung quanh khi sân vườn rộng phía trước ngôi nhà đã điều tiết cho không gian ngôi nhà thêm tươi mới.

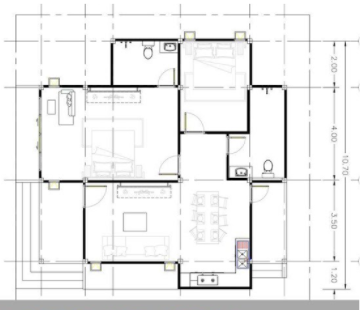
Với số lượng thành viên chỉ là 3, nên gia chủ chỉ yêu cầu bố cục với 2 phòng ngủ. Tích hợp hợp 1 phòng master khi có đủ các chức năng với phòng khách, nhà bếp và 1 bàn ăn để diện tích được nới rộng ra hơn. Nhà đi theo một lối bài trí từ không gian mở hỗ trợ tốt cho việc khắc phục diện tích là một phần được xem là hạn chế từ diện tích thửa đất. Nên với những gia đình đang có diện tích xây dựng trùng với thiết kế này có thể sử dụng bản vẽ và phối cảnh mặt tiền cho ngôi nhà của mình.
2. Mẫu thiết kế số 2 từ kiến trúc nhà ống có diện tích 5x12m :
Với thiết kế thứ 2 mà chúng tôi mang đến là một phối cảnh hoàn toàn mới là tự các điểm sáng từ nét tạo hình từ các đường chỉ theo phương thẳng đứng và ngang một cách nhịp nhàng mà đồng điệu với màu sơn từ phần mái và bức tường. Chủ nhà đã sử dụng gam màu vàng nhẹ nhàng làm hệ thống chiếu sáng khi chúng sẽ giúp không gian bên trong ấm cúng hơn rất nhiều.

Theo góc nhìn từ mặt tiền, ngôi nhà đã làm tốt nhiệm vụ của mình với một nét thẩm mỹ cao. Khác hoàn toàn với các kiến trúc nhà ống thông thường để đánh bật lên cảnh quan từ một sân vườn rộng thông thoáng từ sự sắp xếp của gia chủ. Tất cả như lời khẳng định về giá trị sống hiện đại, tiên nghi mà kiến trúc sư đã thay đổi để dần thích ứng với nhịp sống hiện đại ngày nay.

Khá giống với nét thiết kế ban đầu từ bản vẽ số 1, ngôi nhà có cho mình với 2 không gian chính được kết hợp từ hình khối đan xen hợp lý, kín đáo ở không gian riêng và mở ở các gian chức năng sinh hoạt chung. Với phòng khách, nhà vệ sinh, nhà bếp được tách biệt và 2 phòng ngủ còn lại nằm ở gian nhà kế tiếp được ngăn cách bằng 1 nhà vệ sinh sử dụng chung. Hướng đến một sự tiện nghi với lối di chuyển từ các vị trí khác nhau.
3. Mẫu thiết kế số 3 từ kiến trúc nhà ống có diện tích 5x12m :
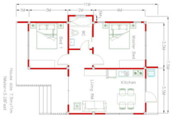
Dựa trên những thông tin ban đầu từ diện tích mà căn cứ vào đó ngôi nhà có thể được hình thành dựa trên các tiêu chí được ra theo hướng giải quyết tốt nhất. Tất cả các không gian sinh hoạt của gia đình đều được gói gọn trong một mặt bằng duy nhất, trải dài dựa trên lô đất sẵn có. Từ bản vẽ, ngôi đã đã bao quát các không gian sinh hoạt gồm 2 phòng ngủ, 2 nhà vệ sinh, 1 phòng khách và 1 nhà bếp nằm ở chính hướng cửa ra vào. Một trong những thay đổi thường thấy ở các công trình hiện đại ngày nay.

Dựa trên các yêu cầu khác nhau gia đình có ít hay nhiều thành viên hoặc có diện tích xây dựng không quá lớn hay ảnh hưởng trực tiếp đến chi phí đầu tư, nhiều gia đình vẫn lựa chọn mẫu nhà ống 1 tầng đê thi công. Mặt khác, ngôi nhà vẫn có thể thể hiện được một cách đầy đủ những yêu cầu tư chủ đầu tư mong muốn hướng đến cho công trình.

Phối cảnh mặt tiền ngôi nhà mang đến cho người xem một sự mãn nhãn khi lối tạo hình có phần ảnh hưởng khá nhiều đến kiến trúc từ phong cách cổ điển của người Việt. Nhưng đã hoàn thành tốt sự tiện nghi bằng một nét rất riêng đánh đúng vào thực tiễn mà chủ đầu tư đã định hướng. Sự phối hợp một cách nhịp nhàng từ màu sơn, cột nhà, mái nhà, các cánh cửa sổ, cửa ra vào mà còn là hệ thống thông gió ở các vị trí thích hợp. Đây được đánh giá như một công trình mang đến góc cảm quan từ phong cách tân cổ điển mà rất nhiều người yêu thích.
4. Mẫu thiết kế số 4 từ kiến trúc nhà ống có diện tích 5x12m :
Sở hữu một diện tích từ thửa đất phù hợp, chủ đầu tư đã nghĩ đến phương án thi công mẫu nhà ống 1 tầng để tiết kiệm chi phí đầu tư ban đầu. Dựa trên phối cảnh mà kiến trúc sư có thể thiết kế một ngôi nhà đơn giản không quá cầu kỳ, nhưng cần đến các điểm nhấn trang trí phù hợp. Mặt bằng công năng dự kiến sẽ bố trí 2 phòng ngủ và các chức năng được đặt ở các vị trí thích hợp.

Thông qua bản vẽ này, mọi người có thể sử dụng cho mình với mục đích xây dựng riêng nhằm hướng đến một không gian tiện nghi bên trong nội thất. Với hình thù dạng chữ L ở phòng master với nhà bếp, phòng khách,nhà vệ sinh, ôm trọn 2 chức năng còn lại với 2 phòng ngủ đã thể hiện được giá trị một cách độc đáo. Đánh đúng vào công năng sử dụng hợp lý mà còn là sự độc đáo thay thế đi kết cấu đã cũ theo thời gian từ ngôi nhà ống.

Qua phối cảnh nhà đẹp phía trên, quý khách có thể thay đổi các màu sơn hoặc vật liệu xây dựng nhằm cân đối chi phí cho việc xây dựng để đưa ra một ngôi nhà phù hợp với mục đích sử dụng từ ngôi nhà. Một phần không thể thiếu trong một ngôi nhà chính là hệ thống cây xanh đã được áp dụng xung quanh kiến trúc với một vẻ xanh tươi còn là các màu sắc chấm phá từ hoa cỏ một cách độc đáo.
5.Mẫu thiết kế số 5 từ kiến trúc nhà ống có diện tích 5x12m :
Đây có thể là thiết kế cuối cùng trong danh sách nhà đẹp từ xaydungso trong bài viết ngày hôm nay, hãy xem qua chúng có gì mới lạ có gì thay đổi so với các công trình phía trên không nhé !

Bản vẽ nhà ống từ thiết kế thứ 5 là một công trình được hướng đến với mặt bằng chức năng gồm 2 phòng ngủ, 1 nhà vệ sinh kèm 1 phòng khách, nhà bếp. Phân bổ các chức năng ở các vị trí phù hợp bởi không gian mở, nhấn mạnh vào sự tiện nghi mà đã được chủ đầu tư yêu cầu ngay từ những thông tin cung cấp ban đầu. Theo chúng tôi thấy, phần sân trước còn khá rộng và đủ diện tích cho một căn phòng nhưng đã được thay thế nhằm giảm thiểu chi phí xây dựng.

Một nét trang trí hoàn toàn mới lạ, một nét riêng biệt từ hệ thống mái khi kết hợp với điểm nhấn từ khối hộp tạo hình và các đường chỉ chia đôi phần mặt tiền ra làm 2 phần. Quả thật đã mang đến sự thành công cho công trình. Kết hợp với khoản sân rộng phía trước là nơi có thể để xe, không gian vui chơi cho các bé hoặc đơn giản chỉ là một diện tích để trồng thêm cây xanh nhằm điều tiết nhiệt độ cho ngôi nhà.
Bạn ấn tượng với công trình nào nhất, hãy để lại cho chúng tôi một lời bình luận phía dưới nhé, đừng quên liên hệ với Xaydungso.vn để nhận báo giá các công trình vừa được giới thiệu. Xin chào và hẹn gặp lại trong các bài viết tiếp theo !
Xem thêm :
![[Free thiết kế bản vẽ] mẫu nhà ống 500 triệu cực đẹp năm 2024](/img.php?url=https%3A%2F%2Fxaydungso.vn%2F%2Fimg%2Fposts%2Fa487a0-200x160-2.jpg)








![Mẫu nhà ống 7x12m hiện đại, tiện nghi [Kèm bản vẽ thiết kế]](/img.php?url=https%3A%2F%2Fxaydungso.vn%2F%2Fimg%2Fposts%2Fa584a0-200x160-2.jpg)

![[Top thiết kế nhà đẹp 2024] Nhà ống với mức giá 800 triệu](/img.php?url=https%3A%2F%2Fxaydungso.vn%2F%2Fimg%2Fposts%2Fa604a0-200x160-2.jpg)






















