Với các thiết kế mang nhiều màu sắc độc đáo, nét tiện nghi với bố cục được thay đổi rất nhiều so với các công trình từ những năm về trước, nhà ống đã và đang mang đến cho các gia đình với nhu cầu xây dựng ngày càng đa dạng theo công năng, phong cách, kiểu dáng và cả giá trị thẩm mỹ.

Dần chuyển mình từ các kiến trúc có phần bất lợi từ diện tích thì nhà ống đã và đang chứng minh được một tầm quan trọng của mình trong kiến trúc Việt. Để xây dựng một ngôi nhà đáp ứng đầy đủ những thông tin phía trên chắc hẳn bạn phải tìm cho mình được một thiết kế phù hợp kèm theo là các đơn vị thi công với kinh nghiệm lâu năm trong lĩnh vực. Nhưng không phải ai cũng có một điều kiện kinh tế thoải mái để bỏ ra một khoản chi phí cho việc thiết kế kèm theo là chi phí cho cả một công trình. Hiểu rõ những thắc mắc nan giải đó, chúng tôi xaydungso.vn sẽ mang đến cho mọi người một nguồn thông tin bổ ích với các phối cảng, góc chụp chân thực nhất kèm theo là bản thiết kế nhà ống để công trình của bạn sẽ trở nên hoàn thiện hơn rất nhiều.
Kiến tạo không gian nhà đẹp với mẫu nhà ống 70m thông qua xaydungso.vn

Với tư liệu từ thống số đưa ra là thửa đất với diện tích 70m, bạn có thể lựa chọn cho mình các thiết kế có sẵn ngay phía bên dưới. Ngoài ra, với điều kiện trên bạn hoàn toàn có thể xây dựng với một ngôi nhà đầy đủ các tính năng ưu việt cho mọi thành viên mà còn thể hiện được giá trị riêng từ góc thẩm mỹ mà bạn hướng tới. Phía dưới là các thiết kế hoàn toàn miễn phí và bạn có thể nhận báo giá từ đơn vị một cách chi tiết, nào hãy cùng xem qua nhé !
1. Thiết kế nhà ống diện tích 70m với 3 phòng ngủ từ phong cách hiện đại :
Việc mà gia đình bạn lựa chọn một phong cách thiết kế chủ đạo và còn là sự tập trung chủ yếu vào công năng sử dụng. Nhằm tránh đi các chi tiết thiết kế rườm rà, cũng như việc trang trí quá cầu kỳ trong các phong cách khác cũng là một lưu ý đáng nhớ. Bởi quá lạm dụng từ việc trang trí sẽ gây ra cho bạn 2 điều cần cân nhắc, một là chi phí xây dựng cũng từ đó gia tăng một cách đáng kể và còn làm phức tạp cho công trình khi không đưa ra được một thể thống nhất.

Khi phối cảnh từ ngôi nhà có thể khái quát được những thông tin mà chúng tôi vừa nhắc đến thông qua các chi tiết tạo hình từ các hình khối được phân chia một cách cụ thể nhất. Thông qua phối cảnh bạn hoàn toàn có thể cảm nhận được nét hiện đại được thể hiện một cách chân thực nhất từ hệ thống sân vườn, hệ thống cửa ra vào, cửa sổ, ốp tường mà còn là màu sắc độc đáo được đan xen tạo nên một màu sắc tổng quan một cách chân thực nhất.

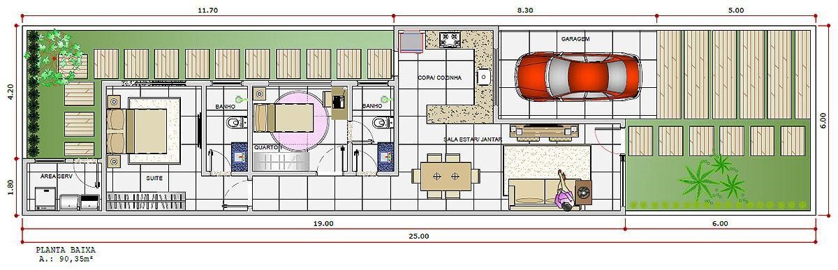
Về phần bản vẽ, ngôi nhà đã làm tốt từ khả năng từ yêu cầu bởi chủ đầu tư khi phân bổ ở mọi vị trí thích hợp mà còn là một tổ chức khoa học với đầy đủ các tiện nghi cho các gian phòng. Phía ngoài là một nhà để xe và dẫn vào bên trong nội thất là một gian phòng master với (phòng khách, nhà bếp và kèm theo một bàn ăn nằm ở vị trí chính giữa) Với gian nhà tiếp theo là 3 phòng ngủ kèm 2 nhà vệ sinh mà mọi vị trí có thể thuận tiện di chuyển đến.
2. Xây nhà ống hiện đại 1 tầng đẹp với 70m kết cấu 2 phòng ngủ :
Để có thể khái quát được tầm quan trọng của kiến trúc nhà ống bạn có thể nhận thấy được sự tiện nghi mới lạ từ hình thể, bố cục được phân chia, hay cả việc áp dụng các tính năng thuận lợi theo lối sống của người Việt. Mà không thể không nhắc đến các đơn vị thiết kế thi công đã mang đến các công trình cho mọi ngôi nhà mọi chủ đầu tư.
Phối cảnh từ thiết kế ở ngôi nhà thứ 2 có phần khá giống với ngôi nhà phía trên từ nét tạo hình mà còn là sự kết hợp từ các khối hình đường chỉ khỏe khoắn. Nhưng nếu quan sát tốt, bạn có thể thấy chung vẫn có một nét riêng biệt từ phần hành lan được lượt bớt mà thay vào đó là một bức tường nhằm ngăn cách với công trình bên cạnh. Ở góc nhìn này, làm cho người xem một cảm giác ngôi nhà đang tọa lạc trên một con đường nào đó tại Đà Lạt với hàng thông mà thảm thực vật cũng đã tô điểm cho điều đó một cách tươi mới và mát mẻ.

Tọa lạc trên một diện tích khá rộng rãi nhưng gia chủ chỉ dùng với 70m là diện tích xây dựng với phần đất còn lại dùng cho 2 phần sân vườn trước và sau.Với một sân nhỏ đủ là nơi chứa một chiếc ô tô. Đi vào bên trong với mộ không gian được chi đôi với 2 bố cục nhằm ngăn cách không gian hiệu quả. Với phần thứ nhất là khu vực sinh hoạt riêng với 2 phòng ngủ và 2 nhà vệ sinh và phần còn lại là gian nhà với 1 phòng khách, 1 nhà bếp với diện tích rộng khi chứa thêm một bàn ăn là không gian của khu vực sinh hoạt chung.

Thông qua thiết kế này mọi người hoàn toàn có thể tự đảm nhiệm việc quản lý cho công trình ngôi nhà mình. Khi đưa ra mặt bằng thiết kế kèm hình ảnh từ mặt tiền ngôi nhà. Mà các đơn vị xây dựng có thể hình dung ra trong đầu thông qua 2 tư liệu phía trên từ kinh nghiêm trong lĩnh vực của mình. Và đừng quên để lại cho chúng tôi về cảm nhận của bạn thông qua 2 thiết kế phía trên nhé.
3. Xây nhà đẹp 1 tầng mái bằng từ diện tích 70m từ phong cách sang trọng :
Với nhiều người yêu mến phong cách xây dựng sang trọng nhà thể hiện giá trị của ngôi nhà và đặc biệt là các gia đình trẻ sẽ là thật sự cảm thấy hài lòng vì thiết kế ngay phía dưới đây. Tất cả đã làm nên một phối cảnh đẹp từ mặt tiền như một tầm quan trọng mà chúng còn thể hiện bộ mặt của chủ đầu tư lẫn phong cách của họ mà dễ dàng thông qua là ngôi nhà.
Diện tích 7m ngang có thể là một con số không quá lớn nhưng thể hiện được giá trị nhằm nhấn mạnh trước là từ thửa đất và sau là không gian ngôi nhà. Từ góc nhìn từ thiết kế thứ 3 mà người xem có thể thấy được phong cách mà gia chủ định hình cho công trình nhà ở của mình. Là một hệ thống mái bằng kết hợp với phần tường được phá cách bằng các viên gạch trang trí được dán lên mà còn là màu sắc từ gỗ được kết hợp.

Thành công của ngôi nhà chính là sự sáng tạo từ tạo hình và cả giá trị từ mặt tiền khi không gian phía ngoài có 2 chiếc xe mang giá trị cao. Từ hệ thống chiếu sáng kết hợp trang trí hiệu quả mà phản chiếu một cách chân thực nhất về những điểm nhấn mà chúng mang đến.Là khoảng sân vườn được phối hợp từ cây xanh, chậu kiểng, lối vào, thảm cỏ được hiện lên với sự sinh động cho công trình nhà ống 1 tầng 70m.

Bản vẽ làm người xem khá rối mắt bởi các chi tiết được diễn đạt quá chân thực với không gian phòng khách, nhà bếp, với gian phòng cạnh cửa ra vào là nơi kinh doanh của chủ nhà. Các diện tích khá từ các gian phòng chức năng khá nhỏ vì hạn chế từ hiện tích nhưng chúng đã thể hiện được sự tiện nghi khi phục vụ được cho gia đình có 3 thế hệ sinh sống với tổng cộng 6 thành viên. Nhà có 4 phòng ngủ, 3 nhà vệ sinh để các thành viên có thể sinh hoạt một cách thoải mái nhất.
4. Thiết kế thi công nhà ống 1 tầng đẹp với công năng cho 2 phòng ngủ :
Dễ dàng nhận thấy được một sự tinh tế mà ngôi nhà mang đến từ mặt tiền bên ngoài như những giá trị được hiện diện lên từ sắc màu chân thực nhất. Tuy chỉ là một phối cảnh 3d thông thường nhưng thông qua góc chụp này mọi người có thể hình dung được mọi chi tiết trang trí, tạo hình và còn đan xen giữa các điểm nhấn từ hoa văn với sắc thái riêng biệt mà gia chủ đã tạo nên cho công trình.

Bên ngoài là một khoảng sân vườn rộng đủ có thể làm nên một mô hình kinh doanh phía bên ngoài với hàng cây, bàn ghế, thảm có, hệ thống đèn trang trí, đã làm tốt nhất có thể chức năng của mình để mang đến cho ngôi nhà từ nét sang trọng. Với hệ thống từ mái bằng, màu sơn trắng, màu vàng từ gỗ tự nhiên kết hợp với nhau để làm nên một công trình mà chủ đầu tư vẫn hằng mong ước theo thời gian.

Một phần quan trọng tiếp theo không thể không kể đến bản vẽ thiết kế từ góc nhìn trên cao, mọi người có thể thấy công trình đã ôm sát diện tích xây dựng khi bước vào là một phòng khách kèm 1 bàn ăn khi nhà bếp nằm đối diện. Hành lang rộng dẫn vào gian phòng ngủ với số lượng là 2 và nhà vệ sinh kèm theo. Bên hông nhà là một sân vườn và sân sau thực hiện tốt vai trò mà thiên nhiên mang đến cho công trình vốn được chủ nhà thêm vào từ ý tưởng thiết kế.
Như các bạn đã thấy, để hình thành nên một công trình tiện nghi phải trải qua các bước đi theo một quy trình nhất định. Lựa chọn một đơn vị thi công phù hợp nhất với kinh nghiệm luôn là tiêu chí hàng đầu để công trình hoàn hảo hơn. Bạn có thể xem tiếp các thiết kế trong phần nhà ống đẹp 2024 trong các bài viết tiếp theo của chúng tôi, xin chào và hẹn gặp lại !
Xem thêm :


![Mẫu nhà ống 7x12m hiện đại, tiện nghi [Kèm bản vẽ thiết kế]](/img.php?url=https%3A%2F%2Fxaydungso.vn%2F%2Fimg%2Fposts%2Fa584a0-200x160-2.jpg)

![[Top thiết kế nhà đẹp 2024] Nhà ống với mức giá 800 triệu](/img.php?url=https%3A%2F%2Fxaydungso.vn%2F%2Fimg%2Fposts%2Fa604a0-200x160-2.jpg)





























