Diện tích 80m2 được xem như một con số khá ưu ái dành cho thiết kế nhà ống khi chúng có thể khai thác được tối ưu công năng với các gian phòng chức năng một cách hiệu quả nhất. Đó cũng là một điều kiện lý tưởng để các nhà thiết kế có thể thỏa sức sáng tạo cho ngôi nhà đã được tín nhiệm từ chủ đầu tư. Nếu bạn đang có nhu cầu thiết kế ngôi nhà với diện tích phía trên thì vội bỏ qua nguồn tư liệu này nhé !

Danh sách từ các thiết kế nhà ống diện tích 80m2 (hồ sơ nhà đẹp 2021)
Danh sách này sẽ tổng hợp các thiết kế mới nhất từ xaydungso.vn được phát hành. Như một lời tri ân dành cho mọi khách hàng và độc giả đã luôn theo dõi và ủng hộ chúng tôi trong suốt hành trình hình thành và phát triển. Đó cũng là các thiết kế miễn phí mà các kiến trúc sư dành tặng đến những gia đình không có nhiều điều kiện tốt, hãy cho chúng tôi biết rằng bạn yêu thích kiến trúc nào và chọn cho mình một ngôi nhà phù hợp cho gia đình bạn.
1.Thiết kế nhà ống diện tích 80m2 với 2 phòng ngủ :
Có thể thấy, việc sở hữu các chức năng với 2 phòng ngủ được cho là một con số thiết yếu dành cho các gia đình. Vậy bạn đã có cho mình với một phong cách từ bố cục ngôi nhà thông qua một ý tưởng nào chưa ? hãy cho chúng tôi biết bạn sẽ chọn một công trình với lối tạo hình với nhiều chức năng hay lược bỏ để mang đến những con số thích hợp cho ngôi nhà của mình thông qua thiết kế này :

Từ bản vẽ ngôi nhà từ thiết kế thứ nhất, kiến trúc đã thể hiện một sắc thái hoàn toàn hiện đại và tiện nghi từ các chức năng đã hoàn thiện một cách đầy đủ. Là sự phối hợp nhịp nhàng từ diện tích để mang đến các vị trí thích hợp cho công năng sinh hoạt bên trong. Từ cửa ra vào là hệ thống gara và nằm cạnh bên là phòng ngủ số 1. Kế tiếp là phòng khách nhà bếp, phòng làm việc và phòng ngủ số 2. Nhà có đến 3 nhà vệ sinh phân bổ ở các chức năng và đang phục vụ cho các gia đình với 4 thành viên.

Nhà ống đi theo thiết kế dựa trên những yêu cầu từ phía gia chủ từ màu sắc, bố cục mái nhà, diện tích và vị trí. Khi kiến trúc sư chỉ cần gộp các thông tin đó và thể hiện công việc dựa trên khả năng tổ chức của mình. Mang đến với một công trình tiện nghi sắc màu phù hợp để đánh bật lên công trình một cách hiệu quả. Từ đó, bạn có thể dựa vào nguồn tư liệu từ thiết kế này mà hình thành nên một ngôi nhà đẹp.
2.Mẫu thiết kế nhà ống 2 phòng ngủ mái thái sang trọng :
Với thiết kế thứ nhất, là một ngôi nhà với rất nhiều các chức năng phụ đan xen. Như thể hiện bao quát công trình khi tích hợp rất nhiều các căn phòng. Mà bản vẽ thứ 2 này là một sự đối lập mà sẽ khiến cho việc sinh hoạt của gia đình bạn trở nên đơn giản hơn rất nhiều, cùng chúng tôi xem qua nhé :

Với ngôi nhà thứ 2, thông qua bản vẽ có thể khai thác được sự tối giản bên trong nội thất một cách hiệu quả nhất. Lược bỏ đi các chức năng sinh hoạt không cần thiết để nới rộng cho không gian mà thiết kế đã thể hiện bao quát giá trị mà chúng tôi vừa nhắc đến. Với tổ chức từ 1 tầng ngôi nhà có cho mình 2 phòng ngủ,1 phòng khách, nhà bếp và 2 nhà vệ sinh.

Từ phối cảnh bên ngoài hiện lên là ngôi nhà nhấn mạnh đến chức năng từ sân vườn khi bao quanh công trình với một màu sắc xanh chiếm trọn góc chụp. Có thể dễ dàng nhận thấy gia chủ là người yêu mến thực vật và muốn phân bổ chúng với mọi vị trí. Nhà có hệ thống mái thái khá bắt mắt kèm theo là các điểm nhấn từ gạch ốp tường, hệ thống từ cửa sổ đã làm tốt nhất nhiệm vụ của mình để thể hiện cho sự toàn diện của ngôi nhà.
3. Hồ sơ thiết kế nhà ống 1 tầng 8x10m hiện đại :
Thông qua phối cảnh mang đến là sự kết hợp nhịp nhàng với cảnh quan thiên nhiên tạo nên một tầm quan trọng mà mọi người vẫn yêu thích và mong muốn chúng được hiện diện bên trong ngôi nhà. Ngoài ra, thành công của công trình còn đến từ mọi chi tiết được kết hợp một cách hiệu quả từ : Hệ thống mái, cửa ra vào, sắc màu từ ngôi nhà, khoảng sân sinh hoạt mà còn đem đến cho người xem với một cảm giác thư thái.

Tiếp theo bên trong thiết kế số 3 chính là phần bản vẽ mà dựa theo hồ sơ này có thể giúp cho gia đình bạn phân bổ không gian nhà dễ dàng hơn nhưng quan trọng là vẫn trong một thể thống nhất dựa trên diện tích thửa đất mà có thể bám sát theo. Nhà có cho mình với 2 phòng ngủ nằm ở phía cuối ngôi nhà và trở lại với phần mặt tiền là 1 nhà vệ sinh khi phía trước là 1 gian phòng master gồm nhà bếp, bàn ăn và phòng khách mà bạn thường thấy.

Không phải là các thiết kế mang đến với quá nhiều các gian phòng mà là sự tối giản nhằm tạo nên một bố cục với sự thông thoáng giảm đi những hạn chế thường thấy từ mẫu nhà ống có phần bị bí bách từ các ngăn cách bởi các bức tường. Và theo các đánh giá khác nhau từ những đơn vị có kinh nghiệm thì bạn nên sử dụng cho mình với kiến trúc nhà ống này.
4. Thiết kế nhà tiện nghi với kiến trúc dạng ống diện tích 80m2 :
Từ những thay đổi trong xu hướng xây dựng ngôi nhà đẹp thì thiết kế tiếp theo có thể sẽ mang đến với một màu sắc khác từ kiến trúc từ một bố cục độc đáo với dáng vẻ sang trọng. Đáp ứng tối đa phần tổng quan từ công trình từ những yêu cầu được thông qua từ các chủ đầu tư đã nhấn mạnh.

Ngôi nhà hiện lên từ phối cảnh nhà ống có diện tích 120m nhưng gia chủ chỉ sử dụng với 80m từ công trình xây dựng và phần đất còn lại hướng đến một công trình sân vườn đang từng bước hoàn thiện. Ngôi nhà này được ốp tưởng từ các vật liệu bởi gỗ và làm nên một vẻ ngoài có phần độc đáo hơn so với các bức tường thông thường và đây cũng chính là một điểm nổi bật từ công trình mang đến. Sử dụng với màu sắc từ gam vàng khiến công trình trở nên ấm cúng hơn rất nhiều. Từ vật liệu mái sử dụng vật liệu lợp từ ngói càng làm cho công trình thêm độc đáo hơn với một giá trị thẩm mỹ cực kì cao.

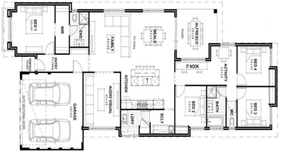
Trở lại với thiết kế từ bố cục ngôi nhà, khi gia chủ đã nhấn mạnh công năng một cách hiệu quả. Là sự kết hợp từ các chức năng như : Gara ô tô, phòng master với nhà bếp, phòng khách, kèm 1 bàn ăn nằm ở phía chính giữa. Với gian nhà tiếp theo là 3 phong ngủ nằm liên tiếp với nhau kèm theo là 2 nhà vệ sinh ở 2 đầu khi có thể sử dụng cho gia đình với 4-5 thành viên đều vô cùng thuận tiện.
5. Thiết kế nhà ống 80m2 mái nhật tiện nghi giá trị thẩm mỹ cao :
Từ các kiến trúc có phần được cộng hưởng từ các hệ thống mái nhật. Ngôi nhà của bạn có thể sẽ ấn tượng hơn rất nhiều từ khả năng tạo hình từ một bố cục tổng quan. Hiện lên một cách đặc sắc nhất thông qua sự đan xen, độ dốc, giật cấp và cả phần vật liệu lợp từ các nguồn vật liệu giá trị.

Khung cảnh hiện lên là sự thể hiện độc đáo từ hệ thống mái nhật với một bố cục hoàn toàn làm nên thành công cho công trình. Đó là các điểm nhấn cụ thể với độ dốc lớn với các tạo hình ở các vị trí thích hợp như bổ trợ thêm vào sự thành công bằng vật liệu lợp từ ngói.Trở lại với phần kiến trúc, là các bức tường với gam màu trắng như thể hiện nét riêng biệt ở các gian nhà mà còn kết hợp với các hệ thống từ cửa kính càng làm cho chúng trở nên hoàn thiện hơn rất nhiều.

Ngôi nhà với đầy đủ các chức năng khác nhau và tạo nên một sự toàn diện cho công trình khi đó là các công năng như : gara để xe,3 phòng ngủ,1 nhà bếp, phòng khách và nhà vệ sinh. Và có thêm cho mình với một phần gác lửng phía bên trên mà gia chủ có thể nâng cấp hoặc thêm vào các chi tiết để ngôi nhà trở nên hoàn thiện hơn từ vai trò của mình.
Qua các chia sẻ phía trên bạn đã tìm cho mình được một thiết kế phù hợp cho gia đình của mình chưa ? Kiến trúc nào làm bạn ấn tượng nhất và bạn sẽ chọn cho mình một ngôi nhà với thiết kế nào khi các điều kiện đã có sẵn ? hãy cho chúng tôi biết từ những bình luận của mọi người nhé. Còn bây giờ, xin chào và hẹn gặp lại trong các bài viết tiếp theo !
Xem thêm :


































