Nhà ống là một trong những thiết kế được sử dụng rất nhiều tại nước ta và dẫn chứng là chúng được phân bổ rộng khắp các khu đô thị, thành phố lớn, ngoại ô cho đến vùng nông thôn khi mật độ đang từng bước gia tăng theo thời gian. Khi nhu cầu ngày càng được nâng cao thì cũng đồng nghĩa với việc kiến trúc này cũng được phát triển ngày càng vượt trội khi có rất nhiều phong cách, tạo hình, kiểu mẫu đa dạng nhằm mang đến sự lựa chọn cho mọi gia đình và các chủ đầu tư.

Trong bài viết này, chúng ta sẽ tiếp tục với series nhà ống đẹp của năm 2021. Nhằm mang đến một tư liệu dành cho mọi độc giả và khách hàng cùng tham khảo. Và xin nhấn mạnh rằng, chúng chỉ dành cho những ai chưa có bất kì kinh nghiệm gì trong việc thiết kế và xây dựng. Và ngược lại, những độc giả đã quá hiểu về kiến trúc này thì xin tạm dừng bài viết tại đây.
Thiết kế nhà ống diện tích 8x20m với hồ sơ xây dựng từ kết cấu 1 – 2 và 3 tầng :
Với mật độ dân cư gia tăng một cách chóng mặt theo những năm trở lại đây. Cùng với việc phát triển từ nền công nghiệp hóa tuy mang đến sự tích cực cho kinh tế Việt Nam nhưng cũng đồng nghĩa với việc các diện tích đất cũng ngày bị thu hẹp cho việc xây dựng của các nhà máy, công ty. Khi đó phần diện tích đất được cắt ra thành từng lô để tiện hơn cho việc kinh doanh thì đó nhà ống cũng dần được hình thành để bám sát theo phần diện tích có chiều dài lớn hơn chiều ngang. Sự đa dạng về kiến trúc nhà ống cũng từng bước mang đến nhiều hơn những bước ngoặt mang đến tính tiện nghi hơn, thoải mái hơn.
1. Tìm hiểu về hồ sơ của thiết kế nhà ống 1 tầng với diện tích 8x20m :
Các công trình với kết cấu 1 tầng quả thật mang đến nhiều hơn cho các gia đình sự lựa chọn bởi chúng có phần tiết kiệm chi phí xây dựng mà công năng cũng thực sự đáp ứng được vai trò khi công năng từ các gian phòng vẫn đáp ứng được cho các gia đình với số lượng lớn thành viên. Mà theo hồ sơ từ thiết kế số 1 này có thể làm cho bạn hài lòng vì những giá trị mà chúng mang đến.
A.Thiết kế bản vẽ ngôi nhà có diện tích 8x20m :
Bản vẽ nhà ống với diện tích phía trên có thể khai thác được phần ưu điểm lớn về diện tích. Mà mặt khác, cũng hoàn toàn có thể phân bổ được những giá trị khác nhau từ các yêu cầu từ chủ đầu tư. Như một phần thiết yếu cho cuộc sống từ những tiện ích hiện đại mà dần được thích ứng theo sự phát triển từ thế kỉ ngày nay.

Thông qua bản vẽ thiết kế này, ngôi nhà hoàn toàn được thông qua từ phía gia chủ khi thể hiện được một sự nhất quán từ phong cách được hướng đến ban đầu. Khi chúng có đầy đủ các yêu cầu từ các chức năng như 3 phòng ngủ, 2 nhà vệ sinh, 1 phòng khách, nhà bếp và 1 nhà kho để gia chủ có thể chứa các vật dụng thiết yếu cho cuộc sống. Ngoài ra, gia chủ không quên kèm theo cho mình với một không gian phía bên ngoài trước là nâng cao diện tích sinh hoạt mà sau còn là một không gian thư giãn thoải mái cho việc học tập, làm việc hay nghỉ ngơi một cách hiệu quả nhất.
B. Phối cảnh nhà ống diện tích 8x20m từ kết cấu 1 tầng :
Ngôi nhà ống với diện tích trên đúng là một phần quan trọng để mang đến sự đa dạng với cấu trúc nhà ống. Hiện lên với một dáng vẻ có phần phóng khoáng, với các điểm nhấn sáng tạo từ các chi tiết trang trí, tạo hình một cách sáng tạo và không quên kèm theo cho mình với một khoảng sân vườn nhằm nâng cao nét tổng quan cho công trình một cách độc đáo nhất.

Nhà ống có cho mình với một hệ thống mái thái khá bắt mắt từ màu sắc và cả lối tạo hình khi kết hợp cho mình với nguồn vật liệu lợp từ ngói như nâng cao cho giá trị. Màu sơn vàng nhạt tạo nên cảm giác ấm cúng cho ngôi nhà mà còn là các đường chỉ tạo hình sắc nét từ các miếng mảng từ gỗ tự nhiên khi đồng bộ với các khung cửa sổ. Việc phân bố các vị trí từ các ô cửa sổ như một tầm quan trọng trong việc đối lưu nguồn không khí cho bên trong trở nên thông thoáng hơn.

Ở góc chụp tiếp theo không gì khác là hệ thống từ mặt tiền làm cho mọi người hoàn toàn bị thuyết phục từ kiểu dáng mà nhà ống mang đến. Điểm trừ lớn nhất có thể là khu sân vườn phía trước đang bị bỏ ngỏ mà nên cải tạo lại với một số tiểu cảnh và cây xanh, hoa lá sẽ giúp chúng trở nên hoàn thiện hơn rất nhiều so với góc nhìn nhận từ những người yêu thích thiên nhiên, thực vật.
2. Kiến trúc nhà ống 2 tầng diện tích 8x20m hiện đại của năm 2021 :
Nếu như chi phí xây dựng của bạn không phải là vấn đề làm bạn phải suy nghĩ nhiều mà muốn thể hiện phần giá trị từ kết cấu xây dựng thì bạn có thể chọn cho mình với một phương án từ kiến trúc nhà ống 2 tầng. Khi có thể tách biệt không gian thành từng tầng một cách hiệu quả cho cuộc sống tiện nghi hơn, hiện đại hơn, mà trong thiết kế này sẽ là một gợi ý không tồi dành cho bạn.
A. Phối cảnh ngôi nhà ống diện tích 8x20m
Kiến trúc này thực sự làm cho nhiều người phải trầm trồ khen ngợi từ phần bố cục tổng quan từ các điểm nhấn từ hình thức tạo hình. Đó là một sự kết nối nhịp nhàng giữa các khối hình một cách độc đáo mà chúng có thể sẽ làm nên thành công cho một công trình từ tính hiện đại đánh vào đúng trọng tâm của các chủ đầu tư đang mong muốn chúng góp mặt trong công trình của ngôi nhà.

Ngôi nhà có kết hợp gara bên trong kết cấu, sự hình thành từ dáng vẻ khá bắt mắt với dạng mái hình chữ A, các ô cửa, bức tường, vật liệu trang trí cũng góp sức không hề nhỏ cho công trình như khẳng định một phần quan trọng cho kiến trúc hiện đại ngày nay. Mà bạn hoàn toàn có thể kết hợp những điểm sáng này để mang đến cho chính ngôi nhà của mình.
B. Bản vẽ thiết kế ngôi nhà ống 2 tầng diện tích 8x20m :

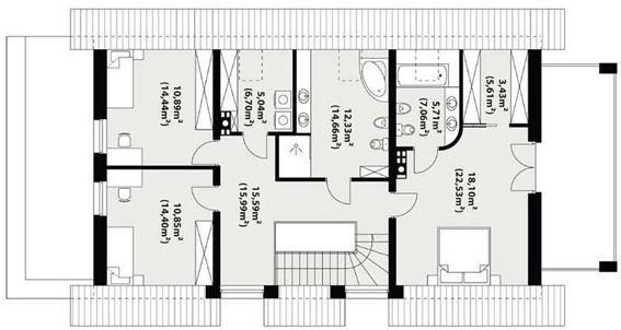
Khi lựa chọn cho mình với công trình từ kết cấu 2 tầng đồng nghĩa với việc chi phí xây dựng của ngôi nhà cũng nâng cao một cách đáng kể. Nhưng không thể phủ nhận tầm ảnh hưởng của chúng cho một cuộc sống tiện nghi. Khi mặt bằng thứ nhất ngôi nhà có cho mình với 1 hệ thống gara,1 nhà kho, nhà bếp phòng khách rộng rãi và 1 nhà vệ sinh kèm 1 cầu thang nằm sát bên góc phải ngôi nhà để dẫn lên hệ thống tầng 2.

Công trình này đã bao quát được các tính năng sử dụng của gia chủ hướng đến kho phía bên trên mặt bằng tầng 2 là 3 phòng ngủ rộng rãi. Trong đó là 1 phòng ngủ có kèm đầy đủ các tiện ích bên trong và 2 phòng ngủ bên ngoài hướng mặt tiền có thể sử dụng các tiện ích ở phía bên ngoài. Tầng 2 được chia ra như một không gian sinh hoạt riêng biệt để hướng đến các thành viên theo có thể tận hưởng các tiện nghi một cách hiệu quả nhất và đó cũng là một phần quà thiết thực mà chủ đầu tư hướng đến cho ngôi nhà.
3. Thiết kế nhà ống 3 tầng tiện nghi với được thiết kế bởi xaydungso.vn :
Thông tin về mẫu nhà ống 1 tầng diện tích 8x20m hiện đại
- Dự án thiết kế : mẫu nhà ống 3 tầng diện tích 8x20m
- Chủ đầu tư: Nguyễn Cao Minh sinh năm 1977
- Phong cách xây dựng : mặt tiền đẹp, hiện đại, kèm những gian phòng thiết yếu bên trong nội thất.
- Địa chỉ : Quận Bình Thạnh – thành phố Hồ Chí Minh
- Thời gian thi công: ~ 3 tháng.
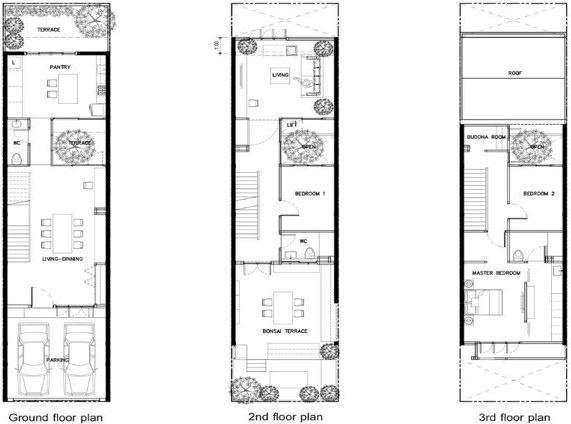
Công trình này được chúng tôi thiết kế và xây dựng vào năm 2021 là một trong những sản phẩm mới nhất từ đơn vị. Thể hiện chân thực nhất về kiến trúc từ kết cấu 3 tầng một cách hiện đại, mà khai thác được tính toàn diện cho một cuộc sống tiện nghi để đáp ứng các yêu cầu từ chủ đầu tư. Mời bạn xem qua hồ sơ từ những tư liệu và hình ảnh ngay bên dưới.

Từ một gam màu chủ đạo là trắng, ngôi nhà đã thể hiện cho người xem một kiến trúc hoàn toàn mới lạ thể hiện từ nét tiện nghi hiện đại và không kém phần tinh tế đến từ các đường nét tạo hình. Làm cho người xem mãn nhãn từ những góc nhìn khác nhau mà đó cũng là yêu cầu chính từ phía chủ đầu tư.

Ngôi nhà được đánh bật lên so với công trình xung quanh theo một phong cách hoàn toàn khác so với công trình thông thường mà bạn được thấy qua hình ảnh. Như một lời khẳng định riêng từ giá trị đang được hiện diện và cả việc phân bổ các không gian theo một tổ chức sáng tạo từ kiến trúc.

Bản vẽ thiết kế đã diễn tả chân thực nhất các kết cấu từng tầng với một tổ chức sáng tạo từ kiến trúc sư như mang đến cho chủ đầu tư. Các không gian hiện lên theo lối bố trí khoa học như chính là một thành công nhằm đến đến một cuộc sống tiện nghi nhất. Mà với những khách hàng quan tâm đến kiến trúc này có thể liên hệ với chúng tôi để nhận được một sự tư vấn cụ thể nhất.
Trên là các dẫn chứng từ hồ sơ thiết kế bởi các ngôi nhà có kết cấu từ 1-2-3 tầng mà bạn hoàn toàn có thể xem chúng như một phần tư liệu cho công trình của mình trong tương lai. Xin hẹn gặp lại trong các bài viết tiếp theo của chúng tôi !
Xem thêm :


































