Tiêu đề từ bài viết có thể sẽ làm bạn khá “Khó chịu” vì những thông tin nằm bên trong. Nhưng chúng sẽ có thể làm bạn phải đi hết bất ngờ này đến bất ngờ khác vì những thông tin mà chúng tôi mang đến.

Trước khi xem qua thông tin về ngôi nhà, chúng ta hãy xem lại các thông tin về kiến trúc nhà ống mà có thể bạn chưa được biết quá nhiều về chúng. Nhà ống – một công trình kiến trúc được xây dựng dựa theo diện tích về thửa đất với một chiều rộng có phần hạn hẹp hơn so với chiều dài. Mà theo nhiều người, chúng được hiện diện với một hình dạng khá tương đồng với các tạo hình từ ống.
Sử dụng khá nhiều ở các vùng thành phố đông dân cư và dần được phố biến theo thời gian từ cả vùng ngoại ô và nông thôn trong thời điểm hiện tại. Ngày nay, nhà ống đã trở thành một kiến trúc khá phổ biến với mọi gia đình từ các ưu điểm của chúng. Vậy hãy xem với các thiết kế mà chúng tôi mang đến có thực sự làm cho bạn hài lòng không nhé !
Thiết kế nhà ống với diện tích 8x12m với nét thẩm mỹ cao từ những thay đổi từ kiến trúc sư :
Với diện tích 8x12m, bạn hoàn toàn có thể tạo nên một công trình sống với đầy đủ những tính năng mang tính ưu việt. Các chức năng sinh hoạt cũng được hoàn thiện hơn rất nhiều và theo thời gian thì các mẫu nhà này trở nên thông thoáng hơn, tiện nghi hơn rất nhiều so với nửa đầu từ quá trình hình thành.
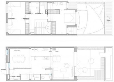
1. Thiết kế số 1 (Mẫu nhà ống 8x12m hiện đại với hệ thống mái thái sang trọng)
Ngôi nhà đầu tiên được chúng tôi mang đến được hình thành từ nét bố trí mang dáng vẻ độc đáo khi chúng được kết hợp từ phần mái thái được hiện rõ thông qua phối cảnh. Khi thành kết cấu này được sử dụng khá nhiều trong các phong cách tạo hình mà nhà ống hay sử dựng. Dựa trên một mảnh đất có diện tích lớn hơn khá nhiều với kiến trúc, phối cảnh tổng quan đã thể hiện được một sức hút riêng từ một khoảng sân vườn để góp phần tạo nên sự thông thoáng, mát mẻ có phần được cơi nới cho ngôi nhà.

Thành công của chúng còn đến từ các hình khối được đan xen với nhau từ dạng chữ nhật và hình tam giác để có thể mang đến một nét riêng biệt. Sử dụng với gam màu trắng ở phần chân tường và phía tầng 2 có kết hợp từ gỗ ốp tường độc đáo. Hệ thống của ra vào có thể sẽ mang đến nguồn năng lượng bên ngoài được phân bổ rộng khắp các công trình khi mở ra. Xóa tan đi cảm giác bí bách thường thấy.

Bản vẽ đã thể hiện được mặt bằng 2 tầng của ngôi nhà một cách cụ thể nhất. Với mặt bằng tầng 1 gồm có : 1 phòng khách, 1 nhà bếp, kèm phòng ăn nằm phía sau. Mặt bằng tầng 2 gồm : 3 phòng ngủ nằm tách biệt với nhau ở các vị trí thích hợp cho chủ nhà và các thành viên nhỏ. Khi gian trước là phòng ngủ với các tiện ích bên trong và 2 phòng phía dưới có các tiện ích sinh hoạt bên ngoài và thông với nhau từ 2 tầng bằng hệ thống cầu thang nằm cạnh chính giữa ở góc bên phải của ngôi nhà.
2. Thiết kế số 2 (Mẫu nhà ống 8x12m mái bằng hiện đại)
Thiết kế thứ 2 mang đến từ nét hiện đại từ phối cảnh mặt tiền tạo nên một cảm giác mới lạ cho công trình. Mà chúng có thể bao quát được những giá trị mà kiến trúc sư đang mang đến cho chủ đầu tư từ những chi tiết nhỏ nhất. Công trình là sự đổi mới trong tư duy thiết kế nhà ống đem đến cho các gia đình yêu mến sự hiện đại.

Trở lại với hướng trang trí từ mặt tiền ngôi nhà là khoảng sân rộng phía trước với một thảm cỏ xanh là các hàng cây như tô điểm cho công trình. Vào bên trong một công trình phụ với mái che dùng với mục đích làm nơi để xe được kết hợp với tấm lợp lấy sáng giúp không gian này bị chìm. Nhà với 2 cửa ra vào từ chính giữa và cửa bên hông là cửa phụ. Các màu sắc được sử dụng bên trong là trắng,xám, kèm các chi tiết từ gạch ốp tường với màu từ gỗ tự nhiên.

Bản vẽ ngôi nhà đã thể hiện cho mọi người thấy được nét tiện nghi khi sử dụng từ 2 mặt bằng xây dựng với các chi tiết không quá rườm rà mà ngược lại sử dụng đến nét tạo hình từ không gian mở mà tạo cho người sử dụng một cảm giác được nới rộng hơn rất nhiều. Mặt bằng tầng 1 gồm : 2 phòng sinh hoạt 1 để tiếp khách và 1 để sử dụng trong gia đình. 1 nhà vệ sinh, nhà bếp và 1 không gian rộng làm bàn ăn. Mặt bằng tầng 2 với 3 phòng ngủ kèm 2 nhà vệ sinh để các thành viên có thể sinh hoạt một cách thuận tiện nhất.
3. Thiết kế số 3 (Mẫu nhà ống 8x12m phong cách tân cổ điển)
Nhà dựa trên các yêu cầu từ phía gia chủ khi kết hợp được 2 sắc thái hiện đại và cổ điển để làm nên một giá trị thẩm mỹ hoàn hảo cho công trình. Mà theo phối cảnh được cung cấp, mọi người có thể thấy 2 phong cách này hiện diện ở phía mặt tiền với nửa trên mang nét cổ điển và phần dưới tạo nên một sự hiện đại cho công trình một cách cụ thể nhất.

Sự thành công còn đến từ phần diện tích với khi kiến trúc sư có thể tự do sáng tạo cho công trình từ phía mặt tiền, hệ thống sân vườn, mà còn là kiến trúc với cách tạo hình vô cùng độc đáo. Là các miếng mảng được kết hợp với nhau thông qua hệ thống sơn được tô điểm ở các vị trí hợp lý, là các tạo hình nổi bật từ các bức tường tạo nên một sự khỏe khoắn, chắc chắn đến lạ thường. Nhà được kết hợp với một hệ thống từ mái thái càng tôn lên dáng vẻ uy nghi cho công trình ở những tháng năm được trường tồn theo thời gian.

Với mặt bằng tầng 1 là sự kết hợp từ gara ô tô nằm ngay phía bên trong kiến trúc với một không gian rộng mà chủ nhà có thể chứa các vật dụng thiết yếu như phụ tùng sửa chữa cho xe. Thông qua không gian sinh hoạt bằng 1 cánh cửa dưới chân cầu thang dẫn đến một phòng khách rộng rãi với góc cuối nhà là một bàn ăn và bên cạnh là hệ thống nhà bếp với 1 nhà kho. Với các yêu câu sử dụng các gian phòng chứa đồ là nhà kho giúp không gian trở nên rộng rãi hơn rất nhiều. Tạo nên một cảnh quan phù hợp cho lối trang trí nội thất mà gia chủ hướng đến.

Phía bên trên là mặt bằng xây dựng tầng hai được liên kết với 1 cầu thang khi phía bên trên chưa đầy đủ các công năng cho một không gian sinh hoạt riêng biệt đan xen với nhau một cách chặt chẽ. Với 3 phòng ngủ phía trước dùng cho các bé có thể tự do khi sinh hoạt học tập bên trong và 1 nhà vệ sinh phía bên cạnh ngay cầu thang. Kèm theo là một phòng ngủ chứa đầy đủ tiện nghi với nhà vệ sinh phòng chứa đồ với một diện tích rộng dùng cho vợ chồng chủ nhà. Thể hiện nét tiện nghi mà mọi thành viên có thể tận hưởng từ những tiện ích hiện đại.

4.Thiết kế số 4 (mẫu nhà ống diện tích 8x12m từ kết cấu 1 tầng)
Nếu như những thiết kế nhà phía trên làm bạn gặp một số khó khăn khi chi phí xây dựng mà bạn đang gặp phải thì thiết kế này sẽ giúp cho mọi người mang đến cho mình với một ý tưởng độc đáo khi có thể phân bổ các chức năng một cách đầy đủ mà vẫn đáp ứng được nét thẩm mỹ cần có cho công trình của một ngôi nhà trong thời điểm hiện đại ngày nay.

Là một màu sắc hoàn toàn mới lạ cho diện tích từ thửa đất lên đến 120m nhưng chủ đầu tư lại chọn cho mình với thiết kế chỉ nằm ở 96m (8x12m) khi diện tích đất còn lại sử dụng cho hệ thống sân vườn cũng là điểm sáng nổi bật cho công trình một cách hiện đại nhất. Nhà chọn cho mình với một hệ thống mái thái, khi bố cục giữa các bức tường vuông vắn là các điểm nhấn từ gạch ốp với hoa văn đồng bộ với màu mái nhà dựa trên một lớp sơn màu trắng tinh tế. Đã làm nên thành công cho công trình một cách tiện nghi nhất mà thông qua góc chụp từ ngôi nhà này.

Các chức năng bên trong nội thất có phần khá hạn hẹp với các bức tường ngăn cách với chức năng phân chia không gian. Khi nằm về phía bên phải là 1 phòng tiếp khách riêng dẫn vào 1 nhà bếp kèm bàn ăn và nằm liên tiếp là 1 phòng sinh hoạt của gia đình. Nằm ở phía còn lại là một gian nhà với 3 phòng ngủ với 2 nhà vệ sinh được thông với gian nhà còn lại. Bên trong nội thất là hệ thống gara chiếm khá nhiều diện tích của công trình. Nhưng tất cả đã kết hợp và bổ trợ cho nhau một cách hợp lý để mang đến cho sự thành công của công trình.
Phía trên là các thiết kế mà trong bài viết hôm nay chúng tôi muốn hướng đến dành cho các gia đình với đầy đủ các thiết kế tạo hình và kết cấu từ 1 đến 2 tầng. Bạn có thể chọn ra một phong cách mà mình cho rằng phù hợp nhất để tiến hành xây dựng cho ngôi nhà của mình và liên hệ với chúng tôi để nhận được sự tư vấn và báo giá một cách cụ thể nhất.
Xem thêm :


































