Vai trò của nhà ống thực sự đã mang đến nhiều hơn cho kiến trúc sự đa dạng trong việc lựa chọn từ các gia đình về một loại hình xây dựng phổ biến tại các thành phố, chúng còn được xem như một mô hình kiểu mẫu các khu đô thị tập trung đông đúc nguồn cư dân sinh sống, là giải pháp được ưu tiên lựa chọn của các diện tích có phần hạn hẹp từ các thửa đất khác nhau.

Bạn đang là người có nhu cầu trong việc xây dựng một ngôi nhà dạng ống với kết cấu 4 tầng ? Bạn chưa tìm cho mình được một kiến trúc phù hợp nhằm nâng cao chất lượng thẩm mỹ vốn là tiêu chí hàng đầu của gia đình ? Bạn đang tìm kiếm một thiết kế phù hợp để nâng cao giá trị sinh hoạt bên trong kiến trúc một cách thuận lợi nhất thì xin chúc mừng mọi người bài viết này sẽ giải đáp mọi thắc mắc về quy trình xây dựng thiết kế từ nguồn thông tin bên trên. Hãy cùng chúng tôi tìm hiểu nhé !
Các thiết kế nhà ống 4 tầng với diện tích 4x10 thông dụng của năm 2021 :

Trước khi đi vào các thiết kế chính từ bài viết, hãy xem qua các nguyên tắc vàng trong thiết kế nhà ống khi diện tích xây dựng của bạn nằm ở mức hạn hẹp và cụ thể là 40m2. Chúng sẽ thực sự bổ ích dành cho bạn đấy
- Tạo nên cho không gian sự thoáng mát bằng cách lựa chọn các vật dụng vật liệu nội thất có thước nhỏ gọn, kiểu dáng tinh tế, hiện đại hoặc tin chọn các sản phẩm thông minh, xếp gọn để tăng khả năng tiết kiệm cho diện tích.
- Bên trong không gian nội thất cần hạn chế tối đa các vật dụng không cần thiết, cần sử dụng các vật dụng ôm sát các góc tường hoặc trên cao để đường di chuyển của bạn được thoải mái và tạo cảm giác rộng hơn thông qua các bức tranh có chiều sâu nhằm đánh lựa thị giác.
- Bạn cần chọn màu tường hoặc nội thất có gam màu sáng hoặc trung tính để làm nên cảm giác thoải mái hơn, mát mẻ hơn từ không gian bởi chúng sẽ là một sự lựa chọn phù hợp cho mọi ngôi nhà, mọi kiến trúc.
- Bày trí thêm hoa tươi hoặc chậu cảnh để làm cho không gian tươi mới, sinh động ngoài ra chúng cũng sẽ giúp cho không gian của bạn trông thông thoáng hơn rất nhiều từ màu xanh.
- Sử dụng giếng trời hoặc phân bổ hệ thống thông gió để tạo nên cảm giác thoải mái, tránh đi sự ngột ngạt từ diện tích có phần bị hạn chế mà bạn cũng cần lưu ý để kiến trúc trở nên hoàn thiện hơn.

Đó sẽ là các bước đơn giản nhất để hình thành nên một kiến trúc nhằm khắc phục đi các hạn chế từ phần diện tích mang đến cho công trình. Ngoài ra sẽ còn rất nhiều các hình thức khác nhau để công trình nhà ống diện tích nhỏ này được chúng tôi chia sẻ trong một bài viết riêng, còn bây giờ hãy đi vào ngay các thiết kế được chúng tôi tổng hợp và chia sẻ nhé.
1.Thiết kế số 1 | Mẫu nhà ống hiện đại của năm 2021 từ cấu tạo 4 tầng tiện nghi
Khi xã hội ngày càng được phát triển thì mọi thứ cũng dần được thay đổi để bắt kịp theo những xu hướng đó và kiến trúc cũng không nằm ngoài. Chính vì thế, khi thiết kế cho gia đình một ngôi nhà đẹp,một không gian sống hiện đại, thoáng mát và tiện nghi thì chúng ta nên bỏ một chút công sức để tìm hiểu, cân đối và lựa chọn cho mình một không gian phù hợp mà kiến trúc này sẽ là một gợi ý dành cho bạn.

Với thiết kế độc đáo từ ngôi nhà này mà bạn có thể tận hưởng sự tiện nghi từ những giá trị mà chúng mang đến. Là một sự uy nghi từ kiến trúc nằm ngay mặt tiền đường lớn. Gia chủ yêu cầu hơn cả về giá trị thẩm mỹ mang đến bởi chúng cũng thể hiện phong cách mà chủ đầu tư đang mang đến cho không gian từ nơi sinh sống. Với một màu sắc được phá cách ở mọi không gian, mỗi hình thể mang đến sự mới lạ hơn theo các cấp bậc từ mặt bằng từng tầng. Và đó cũng là điều được sử dụng khá nhiều tại thời điểm hiện tại.

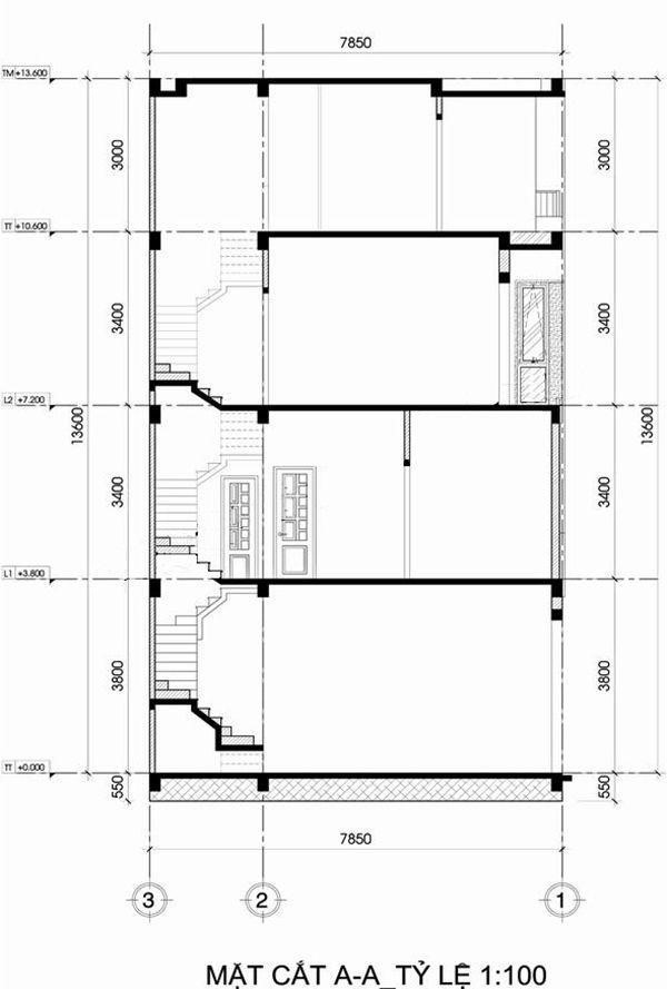
Thông qua mặt cắt ngang của ngôi nhà này cũng sẽ mang đến cho mọi người về một góc nhìn chân thực nhất từ các mặt bằng xây dựng. Cân đối các diện tích nhằm bố trí chức năng của từng gian phòng theo các hình thức khác nhau dựa trên số lượng thành viên, diện tích, mà còn khái quát được định hướng mang đến dành cho gia đình bạn.

Từ hệ thống tầng 1, gia chủ lựa chọn là nơi để bảo quản các phương tiện di chuyển bằng một diện tích rộng rãi thoáng mát và thông lên bằng hệ thống cầu thang nằm ở một vị trí phù hợp. Với mặt bằng tầng 2 với các chức năng bao gồm : 1 phòng khách, 1 bàn ăn kèm theo là 1 nhà vệ sinh là không gian sinh hoạt chung. Mặt bằng tầng 3 với : với 2 phòng ngủ rộng rãi và 1 nhà vệ sinh nằm cạnh cầu thang. Và cuối cùng là mặt bằng tầng 4 gia chủ quyết định sử dụng chúng bằng 1 gian thờ và sân phơi. Đó là một ý tưởng thiết kế khá phù hợp cho các gia đình từ 4 thành viên.
2.Thiết kế số 2 | Mẫu nhà ống mái bằng diện tích 40m2 3 phòng ngủ thoải mái
Từ phối cảnh tiếp theo mà bạn có thể tạo nên một không gian sống tiện nghi bám sát theo thiết kế, lối tạo hình từ các chi tiết, màu sắc khác nhau để hình thành nên một không gian sinh sống khi kết hợp từ 2 hoặc có thể là 3 thế hệ bên trong hoàn toàn phù hợp.

Ngôi nhà có cho mình với một hệ thống mái bằng tiện nghi vốn được sử dụng khá nhiều khi kết hợp với kiến trúc nhà ống. Là các khối hình được tô điểm riêng biệt theo từng mặt bằng xây dựng ngoài mặt tiền nhằm thể hiện sự đổi mới để thể hiện với một dáng vẻ hiện đại mà các ngôi nhà được thiết kế trong thời điểm hiện đại ngày nay luôn tuân thủ. Hoặc có thể phá cách để có thể tạo nên sự khác biệt cho công trình so với các thiết kế liền kề.
Chức năng của từng mặt bằng có thể thay đổi và bám sát theo diện tích xây dựng để tạo nên sự độc đáo, khác lạ mà từ hình thức bày trí nội thất hợp lý mà không gian của ngôi nhà có thể trở nên thoáng mát hơn để biến kiến trúc nhà ở thành một nơi thư giãn sau một ngày làm việc vất vả. Bên cạnh đó, nội thất cũng nên thiết kế với phong cách độc đáo, sáng tạo, hiện đại nhưng vẫn rất gần gũi, thân quen với lối sinh hoạt của người Việt.

Gói gọn thiết kế từ mặt bằng tầng trệt với : 1 phòng khách, 1 phòng ăn kết hợp với nhà bếp. Mặt bằng tầng 2 gồm 2 phòng ngủ, mặt bằng tầng 3 với một phòng học 1 phòng ngủ kèm 1 nhà vệ sinh nằm bên ngoài. Và cuối cùng là mặt bằng tầng 4 với 1 gian thờ và 1 phòng ngủ. Ở các chức năng phía mặt tiền là các ban công nhỏ gọn là nơi đón gió, lấy sáng cũng cần lưu ý đến các hệ thống sân vườn nhỏ gọn để không gian trở nên hoàn thiện hơn nhé.
3.Thiết kế số 3 | Mẫu nhà ống diện tích 4x10m hiện đại từ công năng bên trong nội thất
Đây có thể sẽ là những chia sẻ với thiết kế cuối cùng mà chúng tôi mang đến trong bài viết này. Từ các tư liệu kèm theo là phối cảnh mặt tiền của ngôi nhà dạng ống 4x10m mà còn là thiết kế từ bản vẽ nhằm khái quát các chức năng bên trong mà các gia đình có thể bám sát vào kiến trúc số 3 này để tọa nên cho mình với một ngôi nhà hiện đại trong năm 2021 này.

So với các công trình còn lại thì mẫu nhà ống 4x10 này được đánh bật hơn rất nhiều từ chức năng từ 4 mặt bằng xây dựng. Kết hợp là các ban công, hệ thống kính cường lực nhằm lấy sáng hiệu quả và cùng là phần đối lưu không khí nhằm giải quyết vấn đề bị ngột ngạt từ các công trình. Kèm theo là các sân vườn nhỏ bên ngoài cửa giúp trang trí hiệu quả mà còn đánh bật không gian bằng một màu xanh luôn cần có bên trong và cả ngoài của mọi kiến trúc.

Khi bạn đang bí ý tưởng cho công trình từ ngôi nhà ống 4x10 thì với thiết kế này sẽ giúp bạn giải quyết vấn đề đó một cách hiệu quả. Thông qua các thông tin đầy đủ mà với từng chức năng đã được kèm theo. Ta có thể tóm tắt thiết kế thông qua từng mặt bằng xây dựng từ mặt bằng tầng 1 gồm : gara, 1 nhà kho, phòng cho người giúp việc và khoảng sân phía sau. Mặt bằng tầng 2 gồm : phòng khách, nhà bếp, bàn ăn và 1 phần ban công nằm phía trước. Mặt bằng tầng 3 gồm có 1 phòng ngủ của 2 con và 1 phòng ngủ master khi có đầy đủ tiện ích sinh hoạt bên trong. Và cuối cùng là mặt bằng tầng thượng với góc tập thể dục sân phơi, phòng thờ và 1 khoảng sân vườn nhỏ.
Thông qua các hồ sơ về các mẫu nhà 4 tầng có diện tích 4x10m bạn có thể tạo nên một ngôi nhà đẹp, tiện nghi từ các hình ảnh và thiết kế bên trên. Hoặc có thể liên hệ ngay với chúng tôi để nhận được sự tư vấn cụ thể kèm theo báo giá chi tiết cho từng công trình. Rất vinh dự nếu được hợp tác với quý khách hàng trong thời gian tới !
Xem thêm :


































