Với diện tích phía trên, quả thật sẽ là một sự lựa chọn thoải mái khi các thiết kế từ nhà ống ngày nay thực sự đa dạng từ việc phát triển của xu hướng xây dựng 2021 này. Quan trọng hơn cả chính là chi phí để bạn bỏ ra để từ đó có thể triển khai công trình mà hướng đến phong cách tối giản hay tỉ mỹ bởi các chi tiết tạo hình hoặc cổ điển hay hiện đại mà gia chủ đang hướng đến.

Như một lời tri ân đến mọi khách hàng và các quý đọc giả luôn theo dõi xaydungso.vn trong suốt thời gian hình thành và phát triển. Thì trong bài viết này, chúng tôi sẽ tiếp tục gửi tặng mọi người các thiết kế từ kiến trúc nhà ống thông qua bộ hồ sơ nhà ống đẹp của năm 2021 và đừng quên để lại cho chúng tôi những cảm nhận riêng về chúng nhé, nào chúng ta hãy tiến hành ngay với các kiến trúc phía dưới !
Tổng hợp những thiết kế nhà ống với mặt tiền 9m

Không phải là các công trình thượng hạng như biệt thự với giá trị cao vút, cũng không phải là các công trình với các thiết kế cao tầng. Nhà ống trong xu hướng xây dựng hiện đại ngày nay tin chọn cho mình với chỉ 1 tầng khi chúng vẫn thể hiện với những giá trị khác nhau mặt khác vẫn phân bổ được mọi chức năng bên trong một cách hiệu quả. Mà với các thiết kế ngay phía dưới đây có thể sẽ làm cho bạn phải trầm trồ khen ngợi từ sự phát triển của kiến trúc.
Thiết kế số 1 : mẫu nhà ống 1 tầng diện tích 9m mái thái độc đáo.
Các thiết kế nhà ống khi kết hợp với kết cấu từ mái thái đã và đang tạo nên sự thành công một cách phù hợp và tồn tại trong một thời gian dài. Đó là một công thức riêng mà vẫn được sử dụng cho đến ngày hôm nay. Mà thông qua thiết kế phía dưới bạn có thể nhận ra một cách đơn giản.
Thông tin về mẫu nhà ống mặt tiện rộng 9m

Tuy vậy đây mới chính là phần mặt tiền của kiến trúc, khi chủ đầu tư quyết định chọn cho mình với thiết kế này để áp dụng vào nơi sinh sống của mình. Khi công trình hiện lên với một dáng vẻ riêng từ hệ thống mái thái kết hợp sân vườn bao quanh làm đánh bật lên một ngôi nhà giữa khoảng trời xanh vô cùng thơ mộng.

Nhà chọn cho mình với gam màu trắng nằm xuyên suốt công trình khi chấm phá với hệ thống lợp với gam xám. Các chức năng từ cửa sổ cũng có số lượng khá nhiều để tăng sự thông thoáng bên trong nội thất. Mà theo đánh giá từ chúng tôi chúng đã được kết hợp một cách vô cùng tinh tế để làm nên sự thành công cho cả một công trình để bước đến trở thành xu hướng xây dựng.

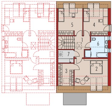
Với bố cục bên trong nội thất thông quả bản vẽ thiết kế mà mọi người có thể cảm nhận được nét tiện nghi bên trong từ các vị trí, bố cục như sắp xếp một cách hiệu quả và hướng đến khá nhiều đến việc sử dụng của các thành viên bên trong. Với các chức năng đầy đủ, với 3 phòng ngủ, 2 nhà vệ sinh, 1 phòng master (Phòng khách, nhà bếp, không gian ăn uống) và không thể thiếu hệ thống gara nằm bên trong ngôi nhà.
Thiết kế số 2 : mẫu nhà ống 1 tầng diện tích 9m mái bằng hiện đại
Thông tin về mẫu nhà ống mặt tiện rộng 9m
Nhà mái bằng cũng là một trong những phần quan trọng để kiến trúc nhà ống mang đến với người sử dụng thông qua một bố cục từ hình khối tạo nên. Là một sự kết hợp độc đáo cho công trình mà mọi người luôn yêu thích từ trước đến nay.

Bằng một nét độc đáo rất riêng, rất hiện đại mà không gian này đã mang đến cho người xem với một nét chân thực nhất từ góc chụp từ phía trên cao. Nhà ống đã hiện lên trên một thửa đất rộng đầy giá trị mà hệ thống sân vườn bao phủ ngôi nhà cũng đã nhấn mạnh vào xu hướng mà các gia đình đang theo đuổi.

Đây là phần mặt tiền của ngôi nhà khi chúng tạo nên từ sự thành công của các khối hình đã sắp xếp một cách tính toán từ kiến trúc sư giúp chúng có một vẻ ngoài khá bắt mắt. Với 2 màu sắc chủ đạo là trắng và được kết hợp với các thanh gỗ ốp tường đã làm tốt nhất nhiệm vụ của mình đã được hình thành. Với hình dạng này nếu quan sát kỹ bạn sẽ thấy chúng khá giống với hình số 7 được gọt dũa độc đáo.

Phần phía sau của ngôi nhà là một khoảng không gian được tinh tế trang trí không khác gì so với phần mặt tiền của ngôi nhà. Khi nét thẩm mỹ là phong cách chính từ chủ đầu tư mạnh tay chi trả thì các kiến trúc sư cũng có thể khai thác được năng lực của mình mà không chịu bởi sự bó buộc nào để tạo nên một ngôi nhà được bám sát với xu hướng xây dựng của thời đại.

Vẫn là các thiết kế nhấn mạnh vào việc xây dựng đáp ứng nhu cầu mang tính cao bởi sự tiện nghi, hiện đại mà nhiều người vẫn yêu mến. Mà thông qua bản vẽ thiết kế này các bạn cần sử dụng ngay cho ngôi nhà của mình. Để dành chúng như phần quà dành cho các thành viên tận hưởng được cuộc sống của thời đại. Nhà ống có cho mình với 3 phòng ngủ, 2 nhà vệ sinh, 1 phòng khách nhà bếp với lợi thế cao từ phần diện tích khiến việc sinh hoạt trở nên đơn giản hơn.
Thiết kế số 3 : mẫu nhà ống 1 tầng mặt tiền diện tích 9m có gác lửng tiện nghi
Bố cục từ gác lửng trong các bài viết trước đã được chia sẻ với rất nhiều bài viết từ chúng tôi. Nhưng với rất nhiều những yêu cầu của các khách hàng khác nhau ở rất nhiều nơi mà trong xu hướng thiết kế 2021 này chúng tôi sẽ tiếp tục khai thác về chúng.
Thông tin về mẫu nhà ống mặt tiện rộng 9m

Nếu như được chọn cho mình với một ngôi nhà trong danh sách nhà đẹp ngày hôm nay, có thể kiến trúc số 3 này sẽ là phương án mà tôi lựa chọn để dành tặng cho các thành viên trong gia đình của mình. Trước là do sự thẩm mỹ mà được thể hiện từ các kiến trúc sư và sau chắc chắn là tính toàn diện từ một công trình có một chức năng bên trong hoàn hảo.

Từ phía mặt tiền là sự nhấn nhá hết sức đặc biệt từ cá đường nét trang trí như đã tô điểm bằng gam màu trắng sang rộng khắp ở các bức tường. Là sự kết hợp từ vật liệu lợp được ứng dụng bởi công nghệ chống nóng chống cháy, cách âm hiệu quả bởi hệ thống từ gác lửng nằm cạnh ngay sát với mái nhà.
Các ô cửa sổ, phân bổ rộng khắp các chức năng của gian nhà ở các vị trí thích hợp vừa đón gió mà vừa có thể đào thải được nhiệt độ bên trong vốn là ưu điểm từ các kiến trúc nhà ống và sự độc đáo ở kiến trúc này có thể chính là từ phần ngôi nhà có cho mình với cả 2 gara để xe nhằm phục vụ cho việc bảo quản tài sản của gia đình mà còn mang đến với một sự đồng bộ từ hình thể của công trình từ phía mặt tiền.

Với các gia đình có số lượng lớn thành viên kết hợp sinh sống thì kiến trúc này sẽ là một sự lựa chọn phù hợp bởi vừa thể hiện được điểm chung và riêng khi 2 gian nhà có các chức năng khá giống nhau. Mà theo chia sẻ của chủ đầu tư, anh muốn xây dựng theo hình thể này là để đón cha mẹ lên sinh sống để tiện cho việc chăm sóc mà gia đình vẫn có sự riêng tư nhất đình.
Với kết cấu từ tầng 1, không gì khác là các chức năng từ cửa ra vào là nhà kho chứa các vật dụng thiết yếu đối diện là không gian của hệ thống gara. Đi vào bên trong là phòng khách, nhà bếp kèm không gian ăn uống và góc cuối là không gian sinh hoạt của các thành viên như giải trí, học tập hay làm việc.

Với chức năng từ mặt bằng tầng 2 được dẫn lên bằng một cầu thang nằm sát với góc nhà bên trái. Khi bước lên là 1 nhà vệ sinh với đầy đủ tiện nghi bên trong và nằm ở phía chính diện nơi mà 3 phòng ngủ có thể di chuyển đến một cách thuận lợi cho các thành viên. Và các gian phòng âm tường để chứa độ khi phòng ngủ lớn phía trước của cặp vợ chồng còn được tích hợp với 1 phòng làm việc.
Với gian nhà liền kề là phiên bản được tạo hình kèm các chức năng không khác gì so với gian nhà bên cạnh. Mà bạn có thể lựa chọn cho mình hình thức xây dựng này để tạo nên một công trình giá trị cao. Đây cũng là nguồn tư liệu nằm trong xu hướng xây dựng của năm 2021 này một cách rõ nét nhất. Xin hẹn gặp lại trong các bài viết tiếp theo của chúng tôi !
Xem thêm :


































