Mô hình nông thôn mới đang từng ngày khiến bộ mặt nông thôn Việt Nam thay da đổi thịt. Những mẫu nhà văn hóa thôn đẹp khang trang được xây dựng để phục vụ sinh hoạt cho nhân dân trong thôn. Trong bài viết này, chúng tôi sẽ giới thiệu cho các bạn mẫu hội trường nhà văn hóa thôn đẹp nhất.

Mặt đứng trục A-C, 1-6

Mặt cắt 1-1, 2-2

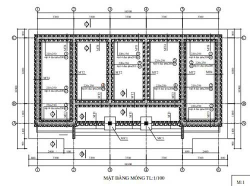
Mặt bằng móng

Mặt bằng kết cấu và bố trí thép sàn

Mặt bằng kết cấu mái

Bố trí thép cột và thép vòm

Móng MT1, MT2, MT3
Độc đáo trong thiết kế mẫu hội trường nhà văn hóa thôn
Như chúng ta thường thấy thì nhà văn hóa thôn được coi là nơi sinh hoạt chung của toàn bộ nhân dân trong thôn. Bao gồm tổ chức các cuộc họp, giao lưu văn hóa, văn nghệ, thể dục thể thao, là nơi để người dân quây quần vào những ngày lễ lớn. Nhà văn hóa còn là bộ mặt của làng, của xóm, chính vì thế mà nó rất được coi trọng về mặt hình thức và tính ứng dụng cao.

Đôi nét về nhà văn hóa thôn
Nhà văn hóa thôn đẹp, nổi bật, vị trí xây dựng đẹp còn là hãnh diện của người dân mỗi khi nhắc tới thôn mình hoặc đem so sánh với các thôn khác. Vì vậy, bản vẽ thiết kế mẫu hội trường nhà văn hóa thôn vô cùng quan trọng, vừa hợp lý, khoa học, lại phải đáp ứng được đầy đủ nhu cầu sinh hoạt của người dân.
Thường thì nhà văn hóa được xây dựng theo kiểu nhà cấp 4 một tầng truyền thống nhưng phải độc đáo hơn nhà ở bình thường, đáp ứng đầy đủ các tiêu chí rộng - khang trang - đẹp mắt. Mỗi xã có nhiều thôn và mỗi thôn có 1 nhà văn hóa khác nhau, nhìn chung mô típ nhà văn hóa của từng xã sẽ giống nhau về mặt hình thức bên ngoài.
Kinh phí xây dựng nhà văn hóa sẽ do xã quyết định chi bao nhiêu cho mỗi thôn xóm còn lại những phần chi phí thiếu sẽ do người dân đóng góp theo hình thức tự nguyện. Bản vẽ thiết kế nhà văn hóa này được xây dựng theo kiểu dáng hiện đại, được xây dựng thành nhà cấp 4 mái bằng.
Nét riêng trong bản vẽ thiết kế mẫu hội trường nhà văn hóa thôn
Hầu hết, bản vẽ thiết kế mẫu hội trường nhà văn hóa thôn đã có từ đầu, vì tùy vào từng khu vực, từng vùng miền sẽ có những bản vẽ khác nhau phù hợp với vị trí, cuộc sống và con người. Tuy nhiên, đối với vị trí địa hình của từng nơi mà mẫu thiết kế có những thay đổi về mặt diện tích nhà văn hóa. Sẽ có những nơi có thể xây dựng to, thoải mái hơn so với những nơi có diện tích hẹp, hạn chế sân vườn trong quá trình xây dựng.

Đặc điểm nổi bật cảu nhà văn hóa thôn
Chính vì đặc thù như vậy nên chúng tôi đưa ra các mẫu nhà văn hóa thôn này chỉ để tham khảo mà thôi, nên bất cứ ở đâu muốn xây dựng nhà văn hóa thôn có thể tham khảo hình ảnh từ phía công ty chúng tôi để có những định hướng hay những ý kiến đóng góp mới để xây dựng nhà văn hóa to đẹp hơn.
Nhìn chung hầu như rất ít người có nhu cầu về mẫu này. Thực ra mẫu này cũng làm lâu rồi nhưng bây giờ không biết có còn tìm lại được không, nếu bạn nào có nhu cầu xin mẫu bản vẽ xin vui lòng gửi email tới chúng tôi để chúng tôi gửi qua email cho các bạn cùng tham khảo nhé.
Hy vọng với những gợi ý của chúng tôi các bạn sẽ có những ý tưởng mới để thiết kế mẫu hội trường nhà văn hóa thôn. Nếu các bạn có nhu cầu xin vui lòng liên hệ với chúng tôi. Phương châm làm việc “khách hàng là ông chủ duy nhất”, chắc chắn sẽ có những bản thiết kế mẫu hội trường nhà văn hóa thôn đẹp khiến các bạn hài lòng.
Nguồn tin: https://thietkethicongnhadep.net


































