Mẫu thiết kế nhà ống 2 tầng trên diện tích 5x18 m2 được chúng tôi giới thiệu sau đây được cả chủ nhà lẫn giới chuyên môn đánh giá cao bởi sự đơn giản nhưng trang trọng và tinh tế rất phù hợp với xu hướng thiết kế của số đông hiện nay.

Phong cách thiết kế nhà ống 2 tầng hiện đại
*Thông số kỹ thuật của thiết kế:
- Loại hình: Nhà phố đẹp
- Phong cách: Hiện đại
- Diện tích: 5x18 m
- Tầng 1: Phòng khách, phòng bếp ăn, phòng ngủ 1, wc
- Tầng 2: Phòng ngủ 2, phòng ngủ 3, wc, sân phơi giặt, phòng thờ + thư viện sách
- Chủ đầu tư: Anh Hoàng Thanh Hóa
- Năm thi công: 2018
- Kinh phí: 1,2 tỷ
Tổng quan về bản vẽ mẫu nhà ống 2 tầng đẹp 5x18m
Ngôi nhà được thiết kế theo phong cách hiện đại khá đơn giản. Các đường nét vuông vắn chứ không cầu kỳ, phức tạp như phong cách cổ điển. Nhìn tổng thể nó là một hình khối chữ nhật vuông vắn. Điểm nhấn của mặt tiền là hệ thống thanh nan và phần diện tích tường được ốp đá tự nhiên.
Tầng 2 được đổ trần bê tông rộng ra khoảng 1m so với tầng 1 để mở rộng diện tích sử dụng đồng thời cũng là tạo sự cân đối cho ngôi nhà. Tầng 2 còn có ban công rộng, lan can ban công được làm bằng kính cường lực dày 15mm vừa chắc, bền bỉ trước tác động của các yếu tố thời tiết vừa an toàn cho người sử dụng.

Phối cảnh mặt tiền nhà ống 2 tầng đẹp trên diện tích 5x18m
Ấn tượng của ngôi nhà đẹp hiện đại còn nằm ở cửa chính trước sân. Nó được làm bằng gỗ nâu gụ với phong cách khá lạ mắt vừa tạo sự kín đáo cần thiết cho ngôi nhà vừa mang vẻ đẹp sang trọng và tinh thế cho thiết kế.
Điểm đáng chú ý của thiết kế này còn nằm ở sự phối màu tài tình của kiến trúc sư. Ngôi nhà là tổng thể của nhiều màu sắc màu: sơn trắng, màu gạch ốp và thanh chắn là màu xám …Đây đều là những gam màu trung tính nhưng khi kết hợp lại với nhau lại không hề trầm mà tạo nên một tổng thể hài hòa.
Bản vẽ thiết kế của ngôi nhà ống 2 tầng đẹp diện tích 5x18m
Gia chủ là hai vợ chồng trẻ mới có 1 đứa con. Tài chính của họ không dồi dào nên chỉ muốn thiết kế căn nhà khoảng 2 tầng, có đủ phòng ngủ cho các thành viên hiện tại và tổng kinh phí xây dựng chỉ tầm 1,2 tỷ. Các kiến trúc sư đã căn cứ vào tình hình thực tế để bố trí công năng sử dụng phù hợp nhất.

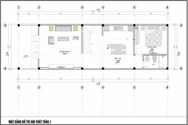
Mặt bằng tầng 1
Với chiều sâu là 15 m nên kiến trúc sư quyết định dành ra 2 m phía trước để làm sân vừa là nơi để xe cho cả nhà vừa là khoảng không gian thoáng đãng. Sau cánh cửa chính là phòng khách khá rộng rãi được bố trí nội thất hài hòa và bắt mắt. Vào sâu bên trong là phòng bếp và phòng ăn. Tầng 1 được kiến trúc sư bố trí 1 phòng ngủ và 1 nhà vệ sinh chung.

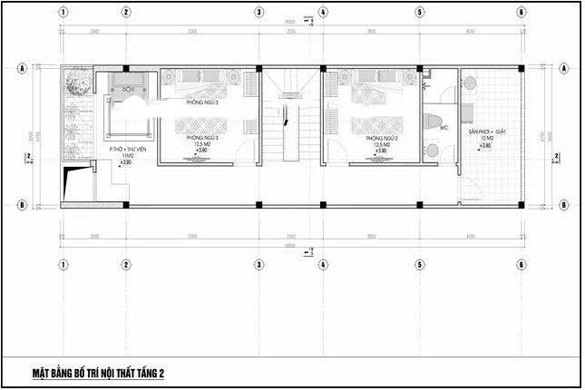
Mặt bằng tầng 2
Tầng 2 được dành hoàn toàn làm không gian nghỉ ngơi của gia đình. Vì thế nó được bố trí 2 phòng ngủ: 1 phòng dành cho 2 vợ chồng, 1 phòng dành cho đứa con nhỏ. Tầng 2 có 1 nhà vệ sinh chung. Ngoài ra tầng 2 cũng được bố trí một phòng thờ được thiết kế tỷ mỉ, cẩn thận.
Như vậy ngôi nhà 2 tầng này có 3 phòng ngủ hoàn toàn đáp ứng nhu cầu của gia chủ. Phong cách thiết kế hiện đại, tối giản và khoa học cũng phù hợp với yêu cầu của những đôi vợ chồng trẻ nói chung. Quý khách hàng có những thắc mắc liên quan đến thiết kế này hoặc có nhu cầu cần được tư vấn, thiết kế vui lòng liên hệ với chúng tôi để được tư vấn cụ thể thông tin.
Nguồn tin: https://wedo.vn/
Có thể bạn muốn xem thêm:


































