Một trong những mẫu thiết kế thịnh hành nhất hiện nay đó là thiết kế nhà 1 tầng đẹp. Vậy có những đặc điểm nào để thiết kế này thu hút đến thế chúng ta hãy cùng tìm hiểu qua bản vẽ thiết kế nhà 1 tầng đẹp trên diện tích 8.5×24 trong bài viết này nhé!
Thiết kế nhà 1 tầng phù hợp với không gian nào?
Thiết kế nhà 1 tầng đẹp là từ khóa được đông đảo người dân khu vực ngoại thành và nông thôn tìm kiếm để sở hữu cho mình ngôi nhà đẹp như mong ước. Tại sao lại vậy? Những bản vẽ cho nhà cấp 4 còn khá là ít bởi chi phí để thiết kế nhà 1 tầng đẹp khá cao so với tổng giá trị của căn nhà. Thậm chí, bản vẽ thiết kế nhà cấp 4 có giá trị chiếm 5-10% tổng giá trị của căn nhà. Vì vậy, mẫu thiết kế nhà trệt hay là cấp 4 ít hơn là điều đương nhiên.
Sở dĩ, thiết kế nhà 1 tầng đa số sẽ nghĩ thiết đơn giản và ít chi phí. Nhưng không, đối với những ai am hiểu biết và đã từng tìm hiểu sẽ đánh giá độ khó về mặt thiết kế nhà 1 tầng khó hơn rất nhiều so với các kiểu mẫu nhà khác. Tùy thuộc vào diện tích đất, khu vực sinh sống, mỗi người sẽ chọn một mẫu nhà
riêng.
Nhà 1 tầng thường phù hợp với khu vực nội thành và nông thôn bởi đây là khu vực có diện tích đất rộng hơn so với thành phố, thoải mái để thiết kế tầng 1 thành nhiều phòng khác nhau, bao gồm cả: phòng khách, phòng ngủ, phòng vệ sinh và cả khu vực nấu ăn.
Bản vẽ thiết kế nhà 1 tầng đẹp 8.5×24m

Mặt bên nhà 1 tầng

Mặt cắt A-A

Mặt cắt chi tiết

Kiến trúc mặt trước

Mặt bằng trần

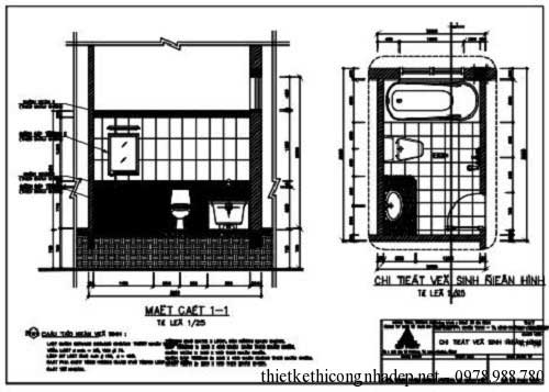
Mặt cắt chi tiết của nhà vệ sinh

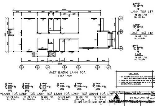
Mặt bằng tầng trệt

Mặt bằng lát gạch

Chi tiết cửa
Bản vẽ phần cấp thoát và điện nước nhà

Bản vẽ phần cấp thoát và điện nước nhà

Bản vẽ phần cấp thoát và điện nước nhà

Bản vẽ phần cấp thoát và điện nước nhà

Mặt bằng thoát nước
Bản vẽ kết cấu của nhà 1 tầng

Bản vẽ mặt bằng móng

Bản vẽ mặt bằng dầm

Bản vẽ mặt bằng móng

Bản vẽ mặt bằng bố trí thép

Bản vẽ mặt cắt móng

Bản vẽ kết cấu

Bản vẽ chi tiết dầm


Bản vẽ kết cấu thiết kế

Bản vẽ kết cấu
Những điều bạn nên biết khi thiết kế nhà 1 tầng
Điều khó khăn nhất để xây nhà có lẽ là mặt kinh phí, thiết kế sao cho phù hợp để không bị sai lệch chi phí quá nhiều so với dự định ban đầu. Vì thế, chúng ta nên thiết kế một bản vẽ riêng cho nhà mình để tận dụng được không gian nhà hợp lý, cũng như kết cấu của nhà giúp chúng ta tiết kiệm tối đa được chi phí xây dựng.

Xu hướng thiết kế nhà 1 tầng luôn là chủ để nổi bật hiện nay
Kiểu thiết kế nhà 1 tầng chắc chắn là mẫu nhà được nhiều người yêu thích bởi chắc chắn sẽ mang lại sự thoải mái, tiện nghi, rộng rãi hơn rất nhiều so với những mẫu nhà khác. Vì thế việc lên ý tưởng ban đầu cho ngôi nhà là vô cùng quan trọng, tùy thuộc vào diện tích đất sẽ thấy được vị trí ngôi nhà mình có phù hợp với nhà 1 tầng hay không. Nếu như các bạn may mắn sở hữu một diện tích đủ lớn thì việc thiết kế nhà một tầng sẽ trở nên đơn giản hơn nhiều.
Cũng như những mẫu nhà khác, phong cách xây dựng cũng rất quan trọng. Có người thích xu thế hiện đại và muốn ngôi nhà phải thật thời thượng, nhưng ngược lại nhiều người lại chọn mẫu nhà cổ điển, hoặc cũng có thể kết hợp giữa hiện đại và cổ điển trong cùng 1 ngôi nhà. Ngôi nhà có thể thiết kế đơn giản, nhẹ nhàng nhưng vẫn tinh tế trong từng chi tiết hoặc thiết kế rất cầu kỳ, tỉ mỉ trong từng nét chạm.
Tùy theo cá tính của mình để có thể lựa chọn ra được phong cách thiết kế thích hợp nhất, mỗi phong cách thiết kế có đặc điểm nổi bật riêng, lựa chọn phong cách nào thì các bạn nên tìm hiểu kỹ về phong cách đó để thiết kế phù hợp nhất.
Để đáp ứng nhu cầu của các bạn, chúng tôi xin gửi tới một mẫu thiết kế nhà cấp 4 với thiết kế nhà 1 tầng đẹp tương đối rộng rãi, bao gồm thiết kế kiến trúc, bản vẽ chi tiết và kết cấu. Với kinh nghiệm nhiều năm trong lĩnh vực thiết kế, thi công trọn gói nhà, thi công trọn gói nội thất nhà đẹp chúng tôi tự hào là đơn vị đi đầu trong lĩnh vực thiết kế nhà ở. Phương châm làm việc “khách hàng là ông chủ duy nhất”, chắc chắn sẽ có những bản thiết kế nhà 1 tầng đẹp khiến các bạn hài lòng.
Nguồn tin: https://thietkethicongnhadep.net/
Xem thêm tin hot => Những mẫu nhà 1 tầng có 3 phòng ngủ (không sợ lỗi thời)


































