Gắn liền với sự phát triển kinh tế của đất nước, các lĩnh vực đua nhau cùng phát triển, không ngoại lệ nghành xây dựng kiến trúc cũng có những bước chuyển mình rõ rệt, khẳng định một thị trường xây dựng Việt Nam sánh ngang với thị trường kiến trúc khu vực và thế giới. Đóng góp rất lớn là những mẫu biệt thự với kiểu dáng, loại hình khác nhau. Để giúp quý khách hiểu biết hơn về những mẫu biệt thự bài viết của chúng tôi hôm nay sẽ giúp các chủ đầu tư có được những mẫu biệt thự 9x15m với những phong cách lôi cuốn đặc biệt. Chúng ta cùng tìm hiểu về những mẫu biệt thự này nhé!
Hình ảnh 3D mẫu biệt thự 9x15m với những phong cách lôi cuốn đặc biệt
Mở đầu cho bộ sưu tập những căn biệt thự 9x15m theo các phong cách khác nhau chúng ta cùng đến với mẫu thiết kế biệt thự có mặt tiền rộng 9m theo phong cách tân cổ điển xa hoa, lộng lẫy. Bạn thường thấy những căn biệt thự cổ điển, tân cổ điển rộng lớn, đồ sộ. Bạn nghĩ rằng với diện tích 9x15 chỉ phù hợp với những mẫu biệt thự hiện đại. Điều này hoàn toàn không hẳn chính xác vì câu trả lời được nằm ở căn biệt thự trên đây của chúng tôi. Màu sắc chủ đạo của phong cách tân cổ điển là gam màu trắng sáng càng làm nổi bật vẻ đẹp của những sản phẩm nội thất có trong căn biệt thự, với bên ngoài ngoại thất thì màu trắng làm nổi bật màu đen của mái của những bộ cửa kính viền đen...

Sự sang trọng, hiện đại mang màu sắc cổ điển là những gì mà căn biệt thự mái thái tân cổ điển này mang đến cho chúng ta. Vừa có những yếu tố mới mẻ của hiện đại, vừa có sự chỉnh chu, tỉ mỉ ở những đường nét hoa văn nội thất điêu luyện. Điều dễ nhận thấy ở ngôi nhà này là sự xuất hiện của bộ cửa cổng sắt và lan can có những đường uốn lượn kì công ta thường thấy ở phong cách cổ điển, nhưng hệ mái thái và kết cấu bố cục của ngôi nhà lại đậm dấu ấn cổ điển. Điều này đã làm nên vẻ đẹp cho căn biệt thự mang phong cách tân cổ điển này.

Trong bộ sưu tập những căn biệt thự độc đáo 9x15m chúng ta không thể nào bỏ qua được mẫu biệt thự mái lệch đầy tính sáng tạo này. Chỉ cần ngang qua thôi đã làm mê mẩn cả những chủ đầu tư khó tính nhất. Vẻ đẹp hiện đại của ngôi nhà toát nên bằng sự hiện đại qua sự kết hợp giữa gam màu trắng sáng với gam màu trung tính hiện đại trẻ trung, toàn bộ căn biệt thự hiện lên với vẻ đẹp không quá đơn giản, cũng chẳng quá cầu kì cứ thế gieo vào lòng người sự mãn nguyện, mát mắt, đặc biệt khi được sống trong chính căn nhà này thì không còn điều gì tuyệt vời hơn nữa.
Căn biệt thự với diện tích 9x15m này được xây dựng với phong cách hiện đại nhất. Bạn có thể lựa chọn mẫu biệt thự này kết hợp với hình thức nghỉ dưỡng. Sự sang trọng hiện đại này chắc chắn mỗi lần đón khách đến thăm quan ngôi nhà sẽ để dấu ấn đẹp về một căn biệt thự sang trọng hiện đại. Bạn không có nhu cầu kinh doanh, bạn xây với mục đích để gia đình sinh sống thì chắc chắn căn biệt thự này sẽ mang đến cho bạn và gia đình một cuộc sống tận hưởng thực thụ với sự tiện nghi, một không gian trong lành lí tưởng cho bạn và gia đình mình đó nhé.
Phối cảnh bản vẽ mẫu biệt thự 9x15m đẹp nhất hiện nay
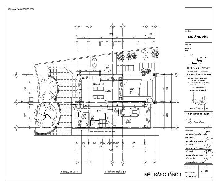
Bởi lẽ khi có bản vẽ xây dựng cho căn biệt thự sẽ giúp cho các chủ đầu tư có thể từ đó định hình được toàn bộ công trình đã nằm trên một khổ giấy sao cho thỏa mãn được 5 yếu tố gồm có: Yếu tố thứ nhất là an toàn, yếu tố thứ 2 là tối ưu chi phí, yếu tố thứ 3 là tiện nghi, yếu tố thứ 4 là thẩm mỹ và yếu tố cuối cùng là phù hợp với cảnh quan có trong căn biệt thự.

Ngoài ra bản thiết kế còn mang ý nghĩa với xây dựng một căn biệt thự đó là thỏa thuận giữa các bên liên quan. Cụ thể là cơ quan nhà nước,đơn vị nhà thầu thi công và đơn vị thiết kế. Ngoài ra bản vẽ thiết kế còn có mục đích để lập kế hoạch thi công, kiểm soát thi công, dự toán ước tính chi phí xây dựng một cách kĩ lưỡng. Định hình được diện tích xây dựng, vị trí công năng của từng phòng...

Bạn liều lĩnh không lựa chọn một bản vẽ thiết kế sẽ dẫn đến việc xảy ra các phát sinh chi phí vì phát sinh công tác. Bạn phải dành nhiều thời gian trong quá trình xây dựng vì thiếu thông tin khi không có sự cụ thể từ bản vẽ. Ngoài ra khi nhà thầu có làm không đúng theo ý của bạn thì bạn cũng không có một cơ sở nào để đưa ra chấp vấn và không có một hướng giải quyết thỏa đáng. Đó chính là những điều mà bạn buộc cần phải có một bản vẽ chi tiết cho căn biệt thự 9x15m.
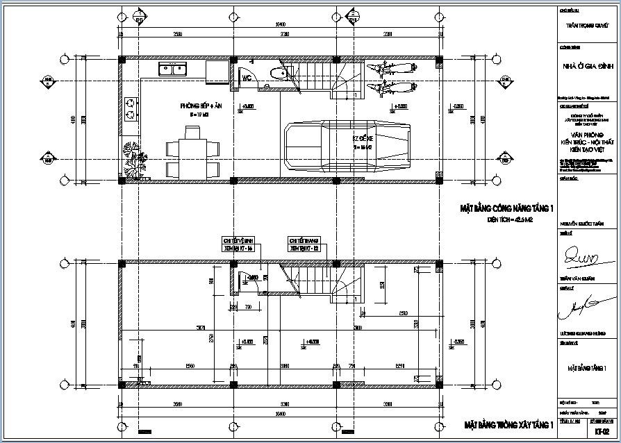
Mặt bằng tổng thể nội thất mẫu biệt thự 9x15m
Trong một mặt bằng tổng thể thiết kế nội thất cho biệt thự 9x15m bạn cần phải đảm bảo yếu tố cân bằng trong thiết kế nội thất đó là sự đối xứng, cân đối của các yếu tố chính có thể trực tiếp cấu tạo nên không gian bên trong nội thất từ việc cân bằng trong chiều rộng của không gian, chiều cao và cả cách bài trí đồ nội thất sao cho phù hợp nhất,... Hay nói cách khác, quy luật cân bằng trong thiết kế mặt bằng tổng thể nội thất được thể hiện ở tất cả các yếu tố sắp xếp có trong một bố cục tổng thể của căn biệt thự.

Sự cân bằng trong thiết kế nội thất được các kiến trúc sư phân thành 2 loại chính đó là thiết kế nội thất cân bằng đối xứng và cân bằng bất đối xứng. Trong đó quy luật cân bằng trong thiết kế nội thất được hiểu là bố cục đồ nội thất, các yếu tố khác cấu thành không gian nội thất cho căn biệt thự hay đó còn là sự trang trí nghệ thuật trên tường ở mỗi phòng chức năng trong căn biệt thự. Một bố cục được xem là đối xứng khi chúng thể hiện rõ sự đối xứng ở những điều tưởng chừng như rất nhỏ như các gối bố trí trên sofa đối xứng với đèn và bình hoa.

Còn với lối thiết kế cân bằng bất đối xứng được áp dụng trong nội thất phòng khách. Kỹ thuật thiết kế nội thất cân bằng bất đối xứng ở đây là tạo ra một không gian cân bằng nhưng không hẳn phải là sử dụng cân bằng đúng đối tượng cụ thể nào đó mà có thể là cân bằng giữa đối tượng này với đối tượng khác. Đó chính là những yếu tố đảm bảo có được một mặt bằng tổng thể nội thất 9x15m hài hòa, hợp lý.
Sàn giao dịch thương mại điện tử Xây Dựng Số
Bạn biết đến sàn giao dịch Xây Dựng Số nhưng lại chưa hiểu tường tận về sàn, chưa giám khẳng định sự tin cậy từ sàn giao dịch này. Vì dù sao một công trình xây dựng biệt thự là một công trình rất lớn. Điều này thật dễ hiểu. Nhưng qua đây chúng tôi xin được củng cố niềm tin đến khách hàng bằng những lí do cụ thể vì sao bạn nên cần sự tư vấn tường tận của chúng tôi.

Thứ nhất Sàn giao dịch thương mại điện tử Xây Dựng Số là một cầu nối trong nhiều năm qua giữa nhà thầu và các chủ đầu tư, có địa vị, tiếng tăm trên mạng xã hội. Có đầy đủ hồ sơ pháp lý khẳng định sự tin tưởng tuyệt đối.

Thứ 2 tất cả hệ thống nhà thầu trong sàn đều thuộc tốp những nhà thầu uy tín, đứng đầu mỗi tỉnh thành. Sự thương hiệu này được gây dựng bởi rất nhiều công trình nhỏ từ nhà ở đến công trình lớn như biệt thự, khách sạn, các dự án lớn... Mỗi nhà thầu khi có mặt tại Xây Dựng Số thì đều được kiểm định chất lượng một cách kĩ lưỡng từ đội ngũ chuyên gia về lĩnh vực xây dựng của sàn. Nên tất cả những nhà thầu có tên trong danh sách của sàn đều có bộ hồ sơ năng lực công ty rõ ràng, minh bạch và đáng tin cậy.

Thứ 3 khi qua sự kết nối này bạn hoàn toàn yên tâm về chất lượng công trình. Bởi những nhà thầu của sàn Xây Dựng Số gây dựng thương hiệu qua chữ tâm và chữ tín. Chất lượng công trình đảm bảo, chi phí xây dựng hợp lý, thi công đúng như bản thiết kế, thời gian thi công hoàn thiện đúng như quy ước trong bản hợp đồng... Đó là những lí do xác đáng khiến cho các nhà thầu trong những năm qua đã đặt niềm tin tuyệt đối vào sàn giao dịch Xây Dựng Số.
Trên đây là những chia sẻ của chúng tôi về mẫu biệt thự 9x15m. Hi vọng với những chia sẻ này của chúng tôi sẽ giúp các chủ đầu tư có được những kế hoạch cụ thể cho căn biệt thự của gia đình mình trong tương lai.





































