Đúng như tên gọi, mẫu thiết kế biệt thự nhà vườn villa là công trình đòi hỏi sự tỉ mỉ trong từng khâu thiết kế. Kiến tạo không gian đẳng cấp và sang trọng thực sự khi kết hợp giữa nhà vườn xanh mát và không gian sinh hoạt chung. Mẫu này thường được áp dụng sử dụng tại các khu resort nghỉ dưỡng, đối với gia đình có nhu cầu thì cần cân nhắc kỹ bởi đòi hỏi chi phí thi công cao và nhiều chi tiết trang trí đắt giá, sáng tạo.
Biệt thự nhà vườn, villa được xây dựng trên khu đất rộng 482m2. Trong đó phần mái sẽ thiết kế diện tích 195m2. Mật độ xây dựng là 40%. Các tầng sẽ có những diện tích khác nhau tạo sự mới lạ và đẹp mắt. Cụ thể, tầng 1 sẽ có diện tích 147m2, tầng 2 là 172m2 còn tầng 3 nhỏ nhất diện tích chỉ là 112,7m2. Tổng thể diện tích căn biệt thự bao gồm cả phần ban công là 423m2. Dự trù kinh phí để hoàn thiện công trình là 4,500 triệu đồng.

Phối cảnh thiết kế biệt thự vườn góc 1

Phối cảnh thiết kế biệt thự vườn góc 2

Phối cảnh thiết kế biệt thự vườn góc 3

Phối cảnh thiết kế biệt thự vườn góc 4

Phối cảnh thiết kế biệt thự vườn góc 5

Phối cảnh thiết kế biệt thự vườn góc 6
Vì là mẫu thiết kế đòi hỏi sự hiện đại và sang trọng, do vậy biệt thự 3 tầng sẽ sử dụng chất liệu kính cường lực tại các không gian chính và sinh hoạt chung như phòng khách, phòng sinh hoạt và phòng bếp để tạo sự tinh tế, khang trang, tận hưởng tối đa nguồn năng lượng ánh sáng từ phía bên ngoài vào. Tông màu được ưu tiên sử dụng là màu trắng sữa cùng phần mái xám ấn tượng. Mẫu thiết kế này tạo dựng không gian nhẹ nhàng, chốn bình yên cho cả gia đình, thuận lợi để nghỉ ngơi và tận hưởng cuộc sống. Điểm nhấn nữa của công trình nằm ở lan can ban công khi kết hợp sử dụng chất lượng kính cường lực trong suốt.

Mặt bằng tầng 1
Với ưu thế quỹ đất rộng lớn nên tại mặt bằng tầng 1 sẽ được xây dựng các không gian bao gồm phòng khách, phòng ăn, 1 phòng ngủ dành cho gia nhân và phòng ngủ lớn ưu tiên dành cho ông bà. 1 sảnh phụ sẽ được bố trí hợp lý tại đây. Nhằm tạo sự thuận tiện cho các bà nội trợ, khu vực bếp sẽ xây dựng phần dành riêng cho bếp khô và ướt.

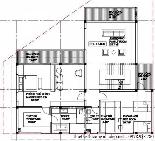
Mặt bằng tầng 2
Một phòng sinh hoạt chung sẽ được bố trí tại mặt bằng tầng 2 biệt thự, tiếp đó là 2 phòng ngủ, 1 phòng ngủ chính có diện tích rộng rãi sẽ dành cho bố mẹ, trang bị thêm phòng thay đồ và nhà vệ sinh riêng. Phòng còn lại dành cho con cái cũng sẽ là không gian riêng tư thông thoáng và thoải mái.

Mặt bằng tầng 3
Lên đến tầng 3 thì không gian đã được thu hẹp và tối giản hơn rất nhiều. Nơi đây dành làm phòng đa năng, phòng thờ và khu vực giặt đồ. Cả tầng sẽ dùng chung 1 phòng vệ sinh được bố trí kín đáo và thuận tiện.

Mặt bằng tầng mái
Mặt bằng tầng mái được thiết kế ấn tượng và bắt mắt. Vì là mẫu thiết kế đòi hỏi sự đầu tư cũng như chăm chút đến từng chi tiết, trang bị vật liệu hiện đại và chất lượng do vậy chi phí xây dựng khá cao. Gia chủ lựa chọn mẫu thiết kế này cần cân nhắc kỹ lưỡng.
Nguồn tin: https://thietkethicongnhadep.net/


































