Đơn giản nhưng vẫn rất hiện đại và ấn tượng, đó là mẫu thiết kế nhà phố 2 tầng đẹp diện tích 7.6x16m mà chúng tôi muốn giới thiệu đến quý khách hàng. Hy vọng bản mẫu này sẽ là sự lựa chọn đáng để tham khảo của những gia đình đang có mong muốn sở hữu không gian tiện nghi, đẹp mắt.
Mẫu nhà phố 2 tầng hiện đại này được xây dựng trên diện tích đất 7,6x16m. Theo yêu cầu của gia chủ, công trình sẽ thiết kế bao gồm 1 phòng khách, gara thuận tiện để xe, 4 phòng ngủ cho các thành viên trong gia đình ( 1 phòng có vệ sinh riêng dành cho bố mẹ) phòng ăn và phòng vệ sinh chung dùng riêng cho từng tầng.
Tổng quan thiết kế nhà phố 2 tầng đẹp 7.6x16m

Phối cảnh nhà phố 2 tầng 7.6x16m
Hình ảnh phối cảnh thiết kế nhà phố 2 tầng hiện lên khang trang và nhẹ nhàng bởi những khối màu đan kết hòa quyện. Cấu trúc hình khối tuy đơn giản nhưng lại toát lên sự hiện đại. Theo đó, mẫu nhà phố được thiết kế mái bằng đẹp mắt. Phía trước sẽ là ban công tầng 2 với vật liệu sắt sơn trắng được sử dụng. Khu vực phía sau dành làm sân thượng phơi quần áo. Không quá cầu kỳ trong khâu thiết kế bởi các kiến trúc sư đã tận dụng tối đa các đường nét góc cạnh vuông vắn, đơn giản.
Mặt tiền phía trước sẽ là phòng khách ngay lối ra vào và gara để xe dùng cửa cuốn. Một khu cầu thang sẽ được bố trí cạnh gara và làm cửa chớp để tận dụng nguồn năng lượng tự nhiên, tiết kiệm điện năng mà vẫn tỏa sáng toàn ngôi nhà.

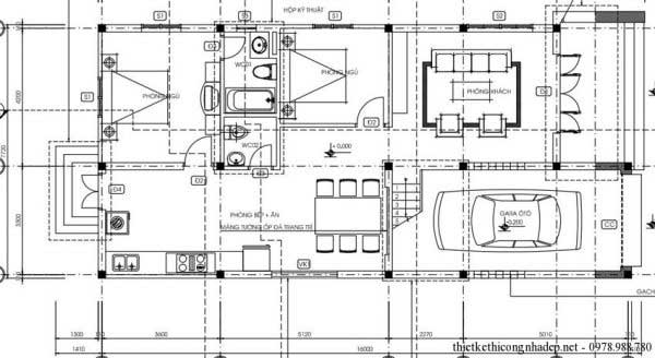
Mặt bằng tầng 1
Như đã giới thiệu khái quát ở trên, mặt bằng tầng 1 thiết kế nhà phố 2 tầng sẽ bao gồm khu vực gara để xe, phòng khách vị trí đầu tiên và tiếp nối là 2 phòng ngủ. Trong đó 1 phòng ngủ được bố trí nhà vệ sinh riêng, 1 phòng vệ sinh chung nữa dành cho cả tầng. Phần còn lại là khu vực nhà ăn và bếp. Tại đây xây dựng thêm cửa hậu thuận tiện kết nối không gian sân vườn phía sau.

Mặt bằng tầng 2
Một không gian sinh hoạt chung sẽ được bố trí tại mặt bằng tầng 2. Bên cạnh đó, đây cũng sẽ là nơi bố trí phòng thờ trang nghiêm, hướng cùng với ngôi nhà. Phần ban công phía ngoài sẽ là địa điểm được gia chủ yêu thích hít thở không khí trong lành và tận hưởng bầu không gian thoáng đãng. 1 hệ thống cửa được bố trí từ phòng thờ di chuyển ra ban công. 2 phòng ngủ còn lại sẽ sắp xếp thông minh và hợp lý đối diện với nhau qua cầu thang. Đồng thời 1 phòng vệ sinh chung sẽ dành cho cả tầng. Diện tích còn lại dành làm sân phơi rộng rãi phía sau nhà.

Mặt bằng tầng mái
Quý khách hàng có thể tham khảo bài viết trên đây để đưa ra cho mình những dự kiến hợp lý xây dựng không gian thuận tiện cho cả gia đình. So với các thiết kế trước đây thì mẫu kiến trúc nhà phố 2 tầng được đánh giá là dễ thực hiện và giúp gia chủ tiết kiệm được khá nhiều chi phí thi công. Hạn chế duy nhất của mẫu thiết kế này so với nhà sử dụng mái ngói là nó sẽ nóng hơn. Tuy nhiên, khách hàng có thể lựa chọn phương án làm trần thạch cao chống nóng hoặc lợp thêm tôn để góp phần làm mát và bảo vệ mái của ngôi nhà.
Nguồn tin: https://thietkethicongnhadep.net/
Xem thêm tin:
- Bản vẽ thiết kế nhà 2 tầng 4x14m
- Mẫu nhà phố 1 trệt 1 lửng 1 lầu 4x13m2
- Mẫu nhà phố 2.5 tầng đẹp kinh phí 950 triệu đồng


































